
This stunning waterfront home in Saint Augustine, FL, offers a serene retreat with exquisite views of the St. Johns River. The architectural design reflects Classic Beach Cottage (CBC) style, boasting a spacious and flexible floor plan designed for comfort and versatility. Built with timeless charm, this residence features 140 feet of riverfront and 112 feet of canal frontage, making it a rare find for water lovers. A newly rebuilt dock (2024) complements the property, alongside a new 60-foot bulkhead on the western side. Inside, the main living space is located upstairs, featuring the expansive Owner’s suite with extraordinary river views, a huge dressing room, and convenient laundry facilities. The kitchen is a highlight, equipped with a massive island, cabinets reclaimed from the original home, an oven tower, a 5-burner gas cooktop, and a farm sink, all flowing openly to the family room and an office. Additionally, there is a large pantry and a second bedroom with a walk-in closet and ensuite bath. The main floor is designed for generational living or income potential, offering separate living quarters including a bedroom, full bath, family room, kitchenette, laundry/utility room, and a hobby room. Additional features include a huge garage with a cooled workshop area, advanced septic system, and water supplied by two wells. Outdoor amenities enhance the lifestyle with 850 square feet of covered decks on both front and back, both upstairs and downstairs. The yard is perfect for gatherings with a firepit and a boat ramp providing easy water access. Priced at $1,389,000, this home is an incredible opportunity for those seeking a luxurious and flexible riverfront lifestyle in one of Florida’s most historic cities.
Floor Plan

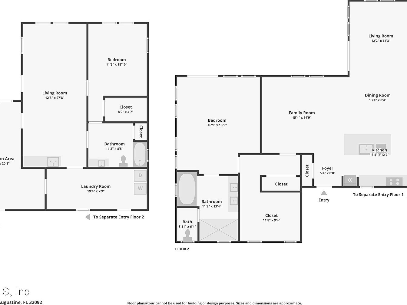
This layout reveals a well-structured two-floor home with distinct living and private spaces. The ground floor features a spacious living room (12’3″ x 27’8″) that seamlessly connects to a bedroom and bathroom, alongside a large laundry room. The second floor includes a family room (15’4″ x 14’9″) and an adjacent dining area, flowing into the kitchen. Two large bedrooms occupy significant space here, each with generous closet space and bathrooms designed for comfort. The overall plan emphasizes open, functional living areas combined with private retreats, optimized for both daily life and entertaining guests.
Cozy Family Room

This inviting family room features soft yellow walls that brighten the space and complement the natural light pouring in through multiple large windows. A vast gray sectional sofa anchors the room, providing ample seating with cozy pillows. Rustic wooden sliding barn doors add a charming architectural touch, matching the warm wooden trims and light hardwood floors. The entertainment center with open shelving and a television displaying a serene sunset view lends a relaxed vibe. Thoughtful décor, including framed photos and greenery above the shelves, creates a welcoming and homey atmosphere enhanced by a ceiling fan overhead.
Modern Farmhouse Kitchen

This spacious kitchen blends rustic charm with modern functionality, featuring warm yellow walls and rich stained wooden cabinetry. A large island with a smooth white countertop and integrated sink dominates the center, surrounded by cushioned, nailhead-trimmed stools offering ample seating. Industrial-style pendant lights with rectangular wooden beams hang above for focused illumination. The kitchen is equipped with a built-in double oven and a stovetop inset into the wood cabinetry with a sleek metal backsplash. Natural light filters through a small window, enhancing the inviting, cozy atmosphere contrasted against contemporary fixtures and clean lines.
Waterfront Bedroom View

This bright bedroom embraces a striking coastal aesthetic with vivid aqua blue walls contrasting warmly with dark wood trim around the multiple windows and door. The light wood plank flooring adds a soft, natural feel underfoot, complementing the deep-toned wooden furniture, including a tall chest of drawers and a matching wooden storage bench at the bed’s foot. A ceiling fan with dark blades hangs centrally, providing comfort. The room’s large windows and glass door open to a scenic waterfront view with calm waters and palm trees, infusing the space with natural light and a serene ambiance, perfect for restful retreat.
Bathroom Shower and Toilet Area

This bathroom features a spacious walk-in shower enclosed with a clear glass panel, highlighting the modern subway tile walls arranged in a classic horizontal brick pattern. The shower floor consists of small hexagonal tiles that add texture and visual interest. A vertical strip of mosaic tiles provides a sophisticated contrast within the shower space, doubling as both a decorative and functional detail with a built-in niche for toiletries. The bright blue wall paint above the tiles gives a vibrant, fresh energy, complementing the clean white fixtures. Adjacent to the shower, a white toilet sits near a window with a black frame, maintaining the contemporary aesthetic and allowing natural light to brighten the space. The overall design balances clean lines, bold color, and functional elegance.
Cozy Bedroom

This tranquil bedroom corner balances comfort and simplicity with soft blue walls that evoke calmness. Light wood flooring extends a warm natural feel throughout the space. A plush reclining armchair sits beside a pair of large windows framed in wood trim, inviting abundant natural light and offering a scenic water view. A small white wicker side table adds subtle texture and contrast. The bed, adorned with a botanical-patterned duvet and a neutral throw, anchors the room, while a ceiling fan with wooden blades and soft lighting overhead completes the understated yet inviting retreat.
Cozy Sunroom

This intimate sunroom features warm, light yellow walls offset by rich wooden wainscoting that adds texture and depth to the space. Natural light flows through three large windows and a door with glass panels, revealing serene outdoor views and a palm tree, enhancing a coastal vibe. The sitting area includes a cushioned black futon framed in wood, adorned with patterned throw pillows, and a striped, upholstered armchair. A wooden coffee table with a lower shelf sits atop a patterned rug with earth tones. A ceiling fan with wooden blades provides comfort and complements the room’s natural, relaxed aesthetic.
Bedroom

This cozy bedroom features soft blue walls paired with rich wood paneling halfway up, creating a warm and inviting atmosphere. Natural light spills through two large windows framed in matching wood trim, emphasizing a connection to the outdoors. A ceiling fan with wooden blades and light fixtures offers both functionality and style. The bed is centrally positioned with a neutral-toned comforter, complemented by a striped rug underfoot. A classic wooden dresser doubles as a TV stand, and a plush beige armchair nestles into the corner, perfect for reading or relaxing. A single framed artwork adds a subtle decorative touch.
Cozy Sitting Nook

This small sitting nook features calming blue walls paired with rich wood trim and paneling that adds warmth and texture. Two windows with white blinds frame serene views of water and palm trees outside, bringing natural light into the space. A plush beige armchair offers comfortable seating next to a classic dark wood chest of drawers, which also serves as a stand for a flat-screen TV. The area rug has a striped pattern in neutral tones, grounding the layout. Simple yet inviting, this corner blends coastal charm with traditional touches.
Bathroom with Bathtub

This bathroom features a calming blue wall color, complemented by white trim and cabinetry that add brightness to the space. A white bathtub with a tiled surround sits beneath a frosted window, allowing natural light while preserving privacy. The bathtub includes a simple silver shower curtain rod and a light-patterned curtain. Adjacent to the tub is a white toilet with clean lines. Opposite the tub is a large vanity with a white marble countertop, dual faucets, and a spacious mirror framed in white. The room has a grey speckled floor, a soft grey bath mat, and contemporary light fixtures to illuminate the area efficiently.
Garage Storage Area

This spacious garage features an unfinished look with exposed drywall seams on walls and ceiling, giving it a utilitarian and flexible work zone vibe. The concrete floor spans broadly, providing ample room for parking and storage. Natural light flows in from two small vertical windows on the far wall, brightening the area. Various construction materials, tools, gardening equipment, and storage bins are neatly arranged along one side, accompanied by a blue bicycle and a yellow electric lawn mower. The large, double-wide white garage door adds functionality, complemented by subtle recessed lighting overhead.
Workshop and Tool Storage

This elongated workshop area is designed for practical use and efficiency. It features a combination of metal and wooden cabinetry along one side, topped with a workbench cluttered with various tools and supplies. Above the bench, two open shelves hold power tool accessories, cleaning solutions, and small equipment. The other side is occupied by metal shelving stacked with bins, boxes, and hardware. Natural light streams in through two large windows, highlighting the soft, unfinished drywall ceiling and concrete flooring. A compact fan and assorted power tools, including a miter saw and drill, emphasize the space’s active use for home improvement projects.
Laundry Closet

This compact laundry closet maximizes functionality with a vertical stack of sleek, modern black appliances featuring a front-loading washing machine and dryer. The deep blue interior walls of the closet add a bold contrast to the creamy white folding doors that partially open to reveal the appliances. These white doors are set within rich, warm-toned wooden sliding barn doors that add a rustic charm and architectural interest to the space. The overall design balances practical utility and style, blending contemporary appliance aesthetics with traditional wooden finishes and smooth tile flooring below.
Listing Agent: ELIZABETH CAHILL-MENTON of ENGEL & VOLKERS FIRST COAST via Zillow