
Tucked away in the serene setting of Poughkeepsie, NY, this striking Mid-Century Modern residence offers a fresh perspective on suburban real estate. Set on 1.2 acres, the home spans 1,987 square feet and features 3 bedrooms, 2 bathrooms, and timeless architectural lines—all listed at $465,000.
1. Mid-Century Modern Retreat with Expansive Charm

This low-profile, single-story home captures the clean lines and open design of classic Mid-Century Modern architecture. A wide front lawn gently slopes toward the bold, horizontal façade, where brick and wood textures blend seamlessly. Deep eaves and large picture windows welcome natural light, while the flat roofline and covered entry evoke understated sophistication. This residence feels both rooted and refreshingly timeless.
2. Where is Poughkeepsie?

Poughkeepsie is a vibrant city in New York’s Hudson Valley, known for its scenic beauty, historic charm, and cultural richness. Set along the Hudson River, it offers a blend of urban energy and small-town warmth. Home to Vassar College and the Walkway Over the Hudson, Poughkeepsie boasts diverse neighborhoods, green spaces, and easy rail access to New York City—making it a favorite for those seeking both nature and convenience.
3. main level layout

This beautifully arranged main floor offers an ideal balance of openness and privacy. A spacious living room flows seamlessly into the dining area and a well-appointed kitchen, perfect for everyday living or entertaining. With four bedrooms, including a primary suite with dual walk-in closets and an en-suite bath, the layout is both practical and inviting. Smart storage solutions and generous room sizes complete the design.
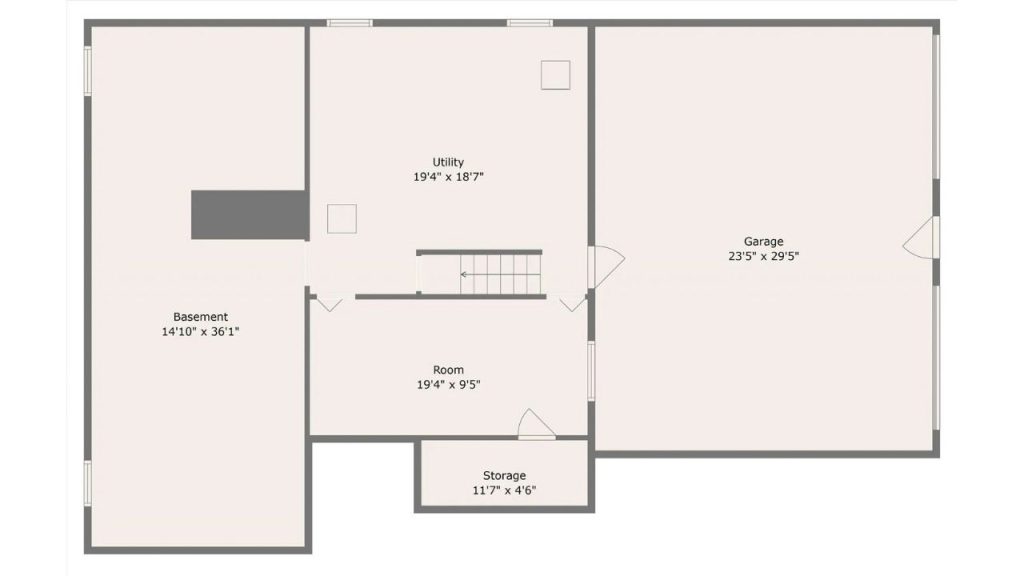
4. lower level layout

The lower level of this home offers an impressive array of functional spaces. A vast basement area provides flexibility for recreation or storage, while the utility room and additional finished room lend themselves to hobby or workspace use. A large garage easily accommodates multiple vehicles, and a dedicated storage room ensures everything has its place. Thoughtfully laid out for both utility and lifestyle.
5. Spacious Living Room with Panoramic Views

This sun-drenched living room blends simplicity with style, featuring a wall of oversized windows that frames a serene, wooded landscape. The crisp white walls and crown molding highlight the natural light, while gleaming hardwood floors add warmth and continuity. A whitewashed brick fireplace with a gold-framed insert anchors the space, offering a cozy focal point for quiet evenings or lively gatherings.
6. Inviting Hearth with Scenic Surroundings

A closer look at the fireplace reveals its charm—nestled in a white-painted brick feature wall, the gold-framed hearth glows with warmth and understated elegance. Crown molding traces the ceiling, adding architectural detail to the crisp space. Sunlight pours through the wall of windows, creating a dynamic interplay of indoor comfort and natural beauty just beyond the glass.
7. Mid-Century Kitchen with Nature Views

Rich in retro charm, this cozy kitchen features warm wood cabinetry, vintage brass hardware, and a unique two-tier island that doubles as a breakfast bar. A crystal-tiered chandelier adds a glam touch above, catching light from the large picture window. Framed by golden walls and natural views, the space blends indoor comfort with the serenity of the wooded landscape beyond.
8. Serene Bedroom with Natural Light

This peaceful bedroom offers a minimalist retreat, accentuated by clean white walls and natural hardwood floors. Dual corner windows frame wooded views, allowing daylight to pour in and soften the room’s crisp lines. A simple ceiling fixture adds subtle charm overhead, while a closet with louvered doors hints at practical storage. Quiet, calm, and filled with possibility.
9. Charming Retro Bathroom with Blue Tilework

This bathroom exudes vintage flair with its playful mosaic of blue and white tiles. The tub surround features a checkerboard pattern in various cool tones, adding visual interest and nostalgic charm. Complementing the look, the pedestal sink and classic toilet maintain a clean, timeless silhouette. A mirrored medicine cabinet and built-in ceramic accessories round out this cheerful, retro-inspired space.
10. Versatile Home Office with Built-In Storage

This charming room offers great potential as a home office or study. Featuring classic white paneling, built-in shelving, and a convenient wall-mounted desk, it blends vintage character with functionality. The hardwood floors add warmth and contrast nicely with the bright walls. With a few modern updates or personal touches, this space can easily be transformed into a stylish and productive work area.
11. Expansive Backyard Retreat

Tucked against a wooded backdrop, this spacious backyard offers a serene escape just steps from the home. A wide stretch of lush, green lawn invites endless outdoor activities, while mature trees provide privacy and a natural canopy. The brick exterior of the home blends seamlessly into the landscape, lending a sense of timeless simplicity. It’s a peaceful haven that feels both open and tucked away.
Listing Agent – William Spinelli @ Berkshire Hathaway HomeServices Hudson Valley Properties via realtor.com