
Discover this stunning Modern Farmhouse in West Linn, OR, a brand-new construction offering 3,155 sq ft of luxurious living on a 6,969 sq ft lot. Priced at $1,459,000, this 4-bed, 3-bath home is filled with high-end finishes including Hickory hardwood floors and breathtaking mountain views from every window. The primary suite impresses with trey ceilings, a spa-like bath featuring a stand-alone tub, spacious walk-in shower, heated floors, and a walk-in closet with custom built-ins and barn doors. Enjoy a large bonus/media room upstairs, plus an office and parlor on the main. The fenced yard is fully landscaped and irrigated for privacy and ease.
1. Modern Farmhouse exterior

This stunning Modern Farmhouse showcases timeless curb appeal with its crisp white exterior, contrasting black window shutters, and board-and-batten siding. A welcoming covered front porch with elegant lighting and sleek black railings leads up to the glass-paneled front door. Large windows throughout the home offer abundant natural light and frame the scenic mountain views. Thoughtfully landscaped with fresh greenery and set on a terraced lot, the exterior exudes warmth, charm, and sophistication.
2. Where Is West Linn, OR?

West Linn, OR is a scenic city located just south of Portland along the Willamette River. Known for its natural beauty, West Linn offers lush green spaces, rolling hills, and stunning views of Mt. Hood. This historic community features top-rated schools, charming neighborhoods, and a strong sense of community. Outdoor enthusiasts enjoy access to parks, hiking trails, and the riverfront. With its blend of small-town charm and proximity to urban amenities, West Linn is one of the most desirable places to live in the Portland metro area.
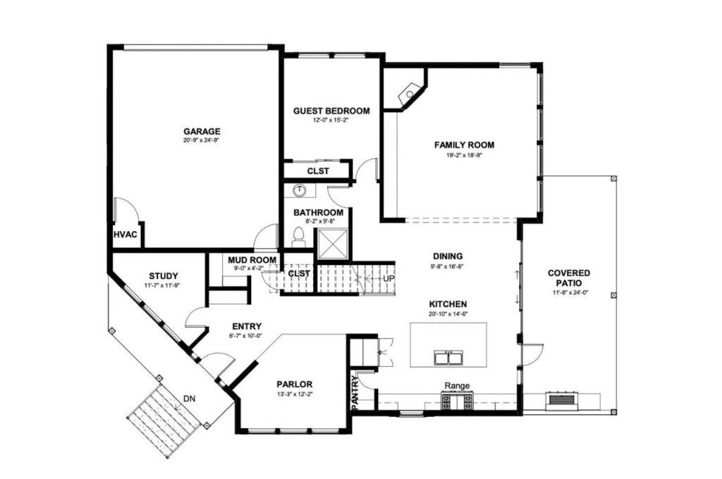
3. ground floor layout

The ground floor of this home offers a spacious and functional layout with a seamless flow. Upon entry, you’re welcomed by a parlor and a private study. A large open kitchen with a central island connects to the dining area and expansive family room, which leads to a covered patio—perfect for entertaining. A guest bedroom and full bath provide convenience and privacy. Additional features include a walk-in pantry, mudroom, and a generous 2-car garage with interior access.
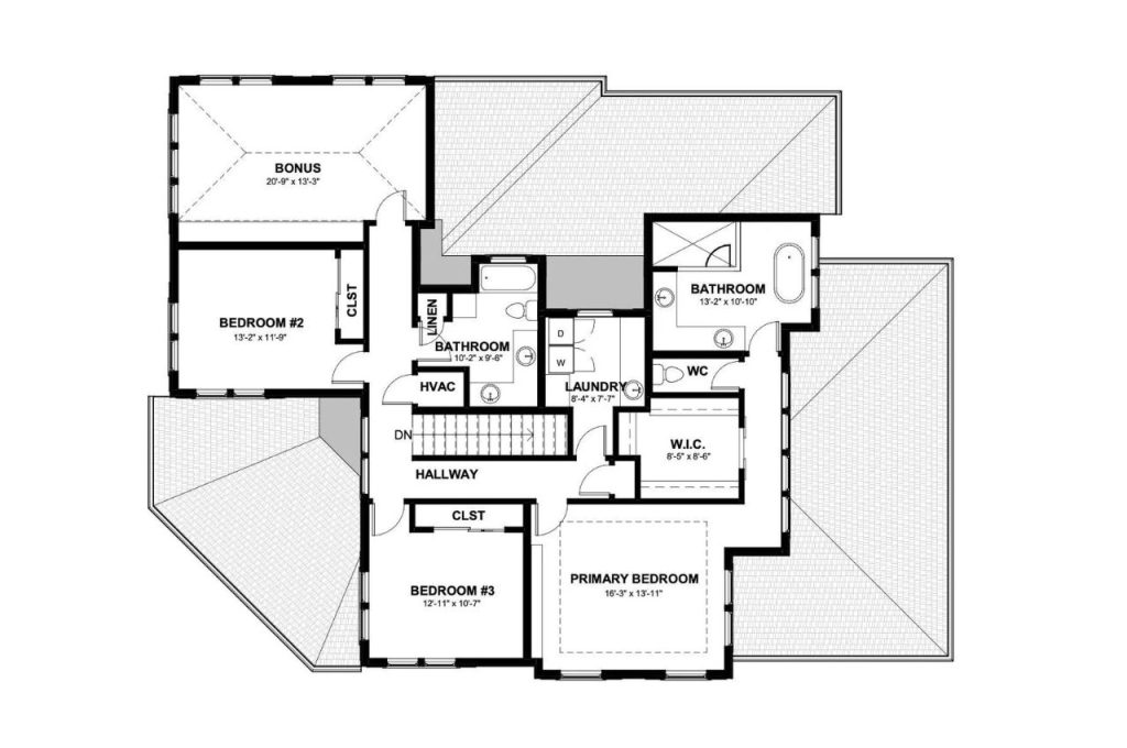
4. upper floor layout

The second floor of this home offers a thoughtful layout ideal for comfort and convenience. The spacious primary suite features a large walk-in closet and a luxurious en-suite bath. Two additional bedrooms share a full bathroom, while a bonus room provides versatile space for media, play, or hobbies. A centrally located laundry room adds practicality, and a hallway linen closet ensures ample storage. With vaulted ceilings and elegant design, the upper level is both functional and refined.
5. Elegant Living Room

The entry and living room of this home exude bright elegance with expansive windows that flood the space with natural light and showcase stunning outdoor views. Crisp white walls and detailed wainscoting add classic charm, while light-toned hardwood floors enhance the airy atmosphere. A modern chandelier and sleek furnishings create a welcoming, stylish environment perfect for relaxing or entertaining. This space effortlessly blends sophistication with warmth right from the moment you step inside.
6. Open Dining and Cozy Family Room

The dining and family room of this home blends modern comfort with elegant design. The dining area features a sleek wood table, neutral-toned chairs, and a soft area rug, all set beneath a stylish chandelier. Just beyond, the spacious family room offers built-in cabinetry, a cozy fireplace with a rich wood surround, and plenty of seating for relaxing or entertaining. Large windows flood the space with natural light, while warm hardwood floors tie both areas together in a seamless open layout.
7. scenic Family Room

The family room is bright and welcoming, featuring expansive windows that flood the space with natural light and offer views of lush greenery and neatly landscaped grounds. A modern fireplace with wood accents serves as a cozy focal point, complemented by contemporary furniture including plush seating, a sleek coffee table, and subtle decor. Neutral colors combined with tasteful greenery and stylish lamps enhance the calm and inviting atmosphere, ideal for relaxing or entertaining guests.
8. Serene Bedroom

This bedroom exudes elegance and serenity with its bright, airy atmosphere and modern minimalist design. The space is dominated by a neutral color palette of whites and soft grays, enhanced by natural light streaming through large windows that offer a scenic view of lush greenery. A plush bed with crisp white linens and layered pillows sits against a dark upholstered headboard, complemented by a cozy seating area featuring a stylish armchair and bench. Abstract artwork, a soft textured rug, and green plants add warmth and sophistication, creating a perfect retreat.
9. Spa-Inspired Bathroom

The bathroom exudes elegance and luxury, featuring polished marble tiles, sleek cabinetry with modern hardware, and a spacious glass-enclosed shower. Rich, earthy tones complement the pristine white counters and sophisticated fixtures. Decorative touches, including delicate greenery and contemporary lighting, enhance the refined ambiance. The generous layout and thoughtfully designed details transform this bathroom into a spa-like sanctuary, ideal for relaxation and rejuvenation.
10. Minimalist Modern Bathroom

This bathroom blends functionality with a minimalist modern aesthetic. The sleek walk-in shower with glass enclosure and contrasting tilework adds depth to the space. A crisp white vanity pairs beautifully with subtle decor, fresh greenery, and stylish fixtures, enhancing the clean, contemporary vibe. Soft tones and tasteful artwork contribute to an inviting yet understated atmosphere, making the bathroom an ideal, refreshing space for everyday use.
11. Versatile Functional Space

This versatile room offers a spacious and open layout accented by a large wall of custom cabinetry providing abundant storage and functionality. Natural light pours in from multiple windows, enhancing the bright and airy feel. Clean lines and neutral tones give this space flexibility, perfect for a home office, media room, or creative studio. The blend of modern elegance and practicality makes it adaptable to suit various family needs or lifestyle preferences.
12. Spacious Walk-In Closet

This spacious walk-in closet features a thoughtfully organized design, offering ample storage with various shelves, drawers, and hanging racks. Its pristine white finishes paired with sleek black accents provide a clean and modern look. Plenty of compartments cater to different clothing types and accessories, making organization effortless. The practical layout and stylish simplicity of this closet create a luxurious and functional dressing space.
13. Scenic Covered Patio

This inviting patio seamlessly blends indoor comfort with outdoor charm, featuring a spacious covered area perfect for gatherings or peaceful relaxation. The natural wood ceiling and recessed lighting create warmth and sophistication. Overlooking beautifully landscaped greenery, pristine lawns, and a scenic fenced yard, this patio provides an ideal setting for enjoying tranquil moments or entertaining guests amidst picturesque surroundings.
Listing agent – Cindy Fous @ Premiere Property Group, LLC via realtor.com