
This stunning custom-built ranch home in Enoch Springs Estates, West Liberty, OH, offers a perfect blend of elegance and comfort. Priced at $650,000, this 4,079 sq. ft. residence sits on a 2.88-acre wooded lot, providing privacy and scenic views. The 5-bedroom, 3.5-bathroom home boasts high-quality craftsmanship, featuring a stone and brick exterior, solid wood flooring, and a 50-year roof. Additional highlights include a heated 3-car garage, a covered patio, a vented gas fireplace, and a walkout basement with two egress stairways.
1. Timeless Stone & Brick house

This charming ranch-style home features a classic stone and brick façade, blending rustic warmth with modern elegance. The gabled roofline, symmetrical windows with dark shutters, and covered entryway create a welcoming curb appeal. The exterior is crafted with natural stone, brick, and wood accents, offering durability and character. Thoughtfully placed landscaping enhances the home’s inviting, countryside aesthetic.
2. Where is West Liberty?

Nestled in the scenic countryside, West Liberty is a charming town known for its peaceful atmosphere and strong sense of community. Surrounded by rolling farmland, lush woodlands, and picturesque rural landscapes, this area offers a perfect blend of small-town living and natural beauty. Residents enjoy a slower pace of life while still having access to essential amenities, local shops, and cozy dining spots. Outdoor enthusiasts can explore nearby parks, trails, and recreational areas, making West Liberty an ideal place for those who appreciate nature and tranquility. With its friendly neighborhoods and welcoming spirit, West Liberty embodies the warmth and charm of Midwestern living.
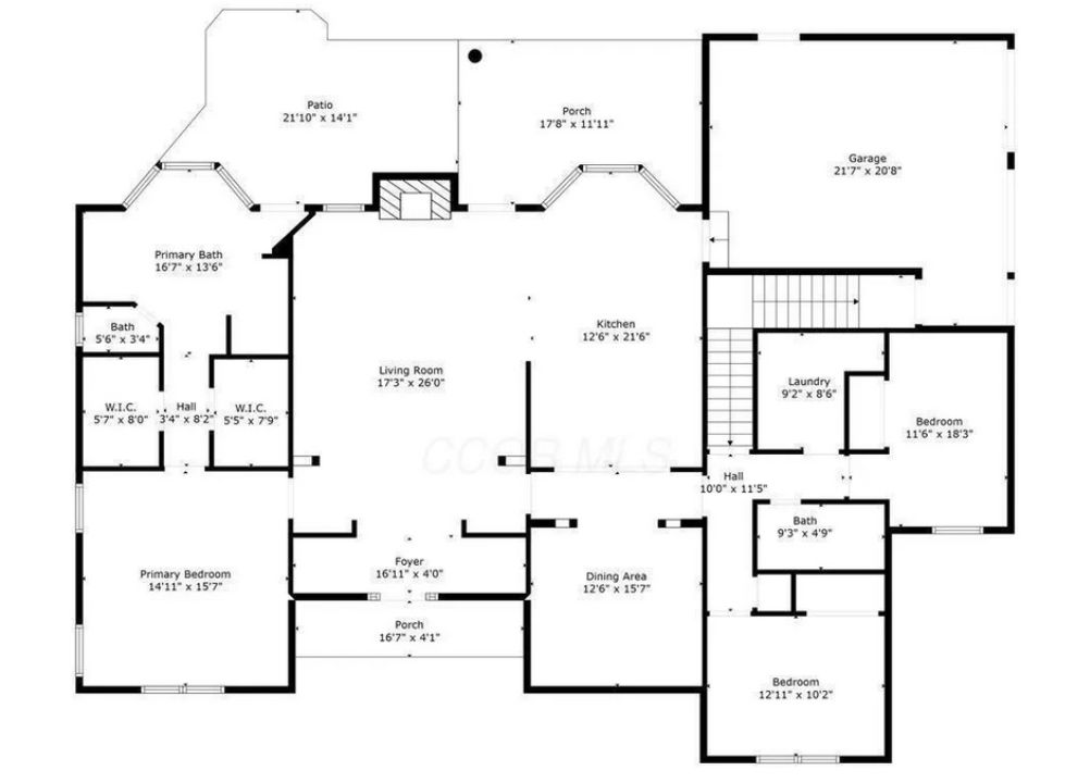
3. Ground Floor Layout

Stepping into the foyer, you’re welcomed by an open flow leading to the main living areas. The dining area sits nearby, perfect for meals and gatherings. The spacious living room serves as the heart of the home, seamlessly connecting to a well-equipped kitchen with ample cabinetry and patio access. The primary bedroom offers a peaceful retreat with walk-in closets and an en-suite bath. On the opposite side, two additional bedrooms share a bath and a convenient laundry area. A rear porch extends the living space outdoors, while the garage provides easy home access.
4. Lower Level Layout

The lower level offers a spacious recreation room, perfect for entertaining or relaxing. A secondary kitchen adds convenience, while two well-sized bedrooms with walk-in closets provide comfortable living spaces. A full bath serves this level, ensuring functionality. Ample storage rooms offer organization solutions. With its open layout and thoughtful design, this floor enhances both everyday living and entertainment potential.
5. Spacious Three-Car Garage

This home features a heated three-car garage with rustic-style doors that complement the brick exterior. The expansive concrete driveway provides ample parking and easy access, making it ideal for multiple vehicles or recreational storage. Surrounded by mature trees and lush greenery, the setting blends functionality with natural beauty, offering a private and serene entrance.
6. Elegant Entryway

This inviting foyer features a solid wood door with intricate leaded glass panels, allowing natural light to filter in while maintaining privacy. The warm oak trim and built-in shelving add a classic touch, complemented by soft green walls for a serene ambiance. A stylish metal chandelier completes the space, creating a welcoming and timeless entrance.
7. Living Room with Traditional Fireplace

This cozy and inviting living room features a traditional design with warm wooden accents and a soothing green color palette. The space is centered around a brick fireplace, complemented by a wooden mantel and decor. Large windows and a glass door allow natural light to brighten the room, while elegant crown molding and wood trim enhance the architectural details. Plush recliners and classic wooden furniture create a comfortable atmosphere, making it a perfect setting for relaxation and gatherings. The open-concept layout seamlessly connects to the dining area, adding to its spacious feel.
8. Spacious Traditional Kitchen

This warm and inviting kitchen features solid oak cabinetry with intricate detailing, offering ample storage. The black granite countertops contrast beautifully with the rich wood tones, creating a timeless aesthetic. A large central island with a built-in gas cooktop provides additional prep space. Pendant and recessed lighting ensure a well-lit environment, while the bay window and glass-paneled doors offer scenic outdoor views and natural light.
9. Elegant Traditional Dining Room

This formal dining room exudes classic charm with its rich wood paneling, crown molding, and a tray ceiling featuring intricate plasterwork. A large window framed by deep red valances allows natural light to flood the space, enhancing the warm tones of the hardwood flooring and Queen Anne-style dining set. The grandfather clock and built-in display cabinet add a refined, vintage touch, while the chandelier casts a soft glow for an inviting dining experience.
10. Cozy Primary Bedroom with Classic Charm

This primary bedroom, located on the ground floor, offers a warm and inviting atmosphere with its hardwood flooring, soft green walls, and wood-trimmed tray ceiling. Large windows allow plenty of natural light, while deep red valances add a touch of traditional elegance. The Mission-style wooden bed frame and quilted bedding enhance the rustic charm, complemented by vintage-inspired furniture. A ceiling fan provides both style and comfort, making this space a serene retreat.
11. En-Suite bath with views

This primary en-suite bathroom offers a blend of elegance and functionality, featuring a double vanity with a long countertop and ample storage in warm oak cabinetry. The bright lighting and framed mirrors enhance the space, creating a fresh and inviting atmosphere. A stunning built-in bathtub sits within a bay window alcove, providing a serene view of the outdoors. The natural light highlights the soft earth-toned tiles, adding warmth to the space. The en-suite also includes his-and-her walk-in closets and a separate toilet area with a door for added privacy.
12. Laundry Room with Ample Storage

This well-organized laundry room combines efficiency with practicality, featuring a washer and dryer set against a neutral-toned wall. Above, a row of oak cabinets provides generous storage for laundry essentials, while the lower cabinets and countertops offer additional workspace. A deep stainless steel utility sink is perfect for handwashing or cleaning, adding to the room’s functionality. The tiled flooring is both durable and easy to maintain, making this space ideal for daily household chores.
13. Lower Level Living and Kitchen Area

This open-concept living space seamlessly connects to a well-equipped kitchen, creating a warm and inviting atmosphere. The living area features plush seating, including a mix of classic armchairs and rocking chairs, set against a neutral carpet that enhances comfort. The kitchen boasts ample oak cabinetry, a built-in stove, and counter seating, making it perfect for casual dining. With recessed lighting and a neutral color palette, this space offers both functionality and a welcoming ambiance.
14. Multipurpose Room with Cozy Ambiance

This cozy multipurpose room features soft green carpeting and neutral walls, creating a relaxed and inviting atmosphere. The space is well-lit with recessed ceiling lights and a ceiling fan for added comfort. Simple wooden furniture, including a folding table, storage cabinet, and side tables, enhances functionality. Framed artwork adds a decorative touch, while a doorway leads to an adjacent storage or closet space, making this a versatile area for hobbies, work, or leisure.
15. Serene Outdoor Retreat

Step onto this covered patio and take in the peaceful beauty of the surrounding landscape. The sturdy columns frame a breathtaking view of lush greenery, mature trees, and open fields stretching into the horizon. A wrought-iron dining set invites you to relax and enjoy outdoor meals in the fresh air. The mix of manicured lawn and decorative stone landscaping creates a balanced, low-maintenance outdoor space perfect for entertaining or unwinding while soaking in the serene countryside ambiance.
16. Spacious Lush Backyard

This expansive backyard offers a lush, green retreat with plenty of open space for outdoor activities and leisure. The well-maintained lawn provides a soft, inviting landscape, ideal for playing, gardening, or simply unwinding in nature. Surrounded by mature trees, the backyard feels private and serene, offering a peaceful escape from daily life. Whether hosting gatherings or enjoying a quiet afternoon, this outdoor space enhances the home’s charm with its natural beauty.
17. a Private Woodland Retreat

This breathtaking aerial view showcases the home’s serene location, surrounded by mature trees and open green spaces. The expansive lot offers privacy and a natural escape, with a winding driveway leading to the residence. The backyard extends into a beautifully wooded area, creating a tranquil setting perfect for outdoor activities, relaxation, or wildlife watching. A rare blend of seclusion and spaciousness, this property is an ideal retreat from the hustle and bustle.
Listing Agent – Malia Hughes @ Key Realty via Realtor.com