
Located in the iconic setting of Pebble Beach, CA, this stunning single-family Real Estate residence at 1432 Viscaino Rd boasts 5,929 sq ft of beautifully designed living area on a expansive 1.06-acre parcel. Listed for $4,500,000, it boasts 5 expansive bedrooms and 4.5 bathrooms, ideal for comfort as well as entertaining. The colonial-modern facade of the home offers a classic combination of white stucco walls, multiple-pane windows, and slate gray roofing, under a calm and inviting appearance. Framed by verdant landscaping and curving driveway, the entrance beckons you to discover the generous interior layout, foreshadowed in the floor plan that is displayed up front.
1. Luxurious Estate Nestled in Greenery

Nested among high pines and ringed by a serene, wooded neighborhood, this one-level house swings open to a expansive circular driveway that is at once grand and earthy. The floor plan follows a soft curve, allowing the space to move naturally from front to back of the house, with a vast central patio fixing the outdoor landscape. From above, you can catch a considerate mix of architecture and nature mature trees along the border, secluded walking paths, and glimpses of a neighboring golf course through the trees. It’s the type of place where mornings dawn slow and tranquil, mere steps from nature.
2. Where Is pebble Beach?

Situated on the breathtaking Monterey Peninsula, Pebble Beach is a treasure renowned for its stunning ocean vistas, golf courses ranked among the world’s best, and serene atmosphere, making it a retreat for nature enthusiasts and individuals looking for a serene coastside lifestyle. The region’s temperate climate and proximity to quaint Monterey contribute to its charm, providing a perfect combination of relaxation and outdoor activity throughout the year.
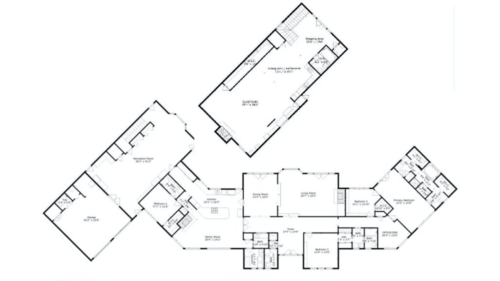
3. floor plan

Spread over several wings, this well planned house maintains balance between space and privacy. Two large living rooms at the center open into a connected kitchen and family area, perfect for special occasions and everyday life. One of the wings stretches to a huge recreation room and a multi car garage, and another to bedrooms, bathrooms, and a private office. The rightmost section consists of a serene primary suite with bath and dressing rooms, providing a private sanctuary. A private upper-level guest suite with its own entrance, lounge, and bathroom provides luxury and autonomy for extended guests.
4. Comfy Lounge Area

Enter this delightful room where two fashionable striped armchairs line a modern wooden coffee table with a combination of natural accents such as a wicker basket and a vase full of dried grasses. A comfortable beige sofa with cushiony pillows beckons to sit and stay awhile, while a snapping fireplace surrounded by marble provides the ambiance of class, accompanied by a floral piece of art hung above. Open French doors overlook a verdant garden, creating a smooth continuity that brings the outside in, ideal for relaxation. Recessed lighting and a stylish overhead chandelier tie in the serene atmosphere, this room being the ultimate retreat.
5. Inviting Kitchen Space

Large windows let in plenty of natural light, bathing warm cherry wood cabinetry and reflective granite countertops that beckon you to discover each nook and cranny. A stainless steel professional-grade range with a contemporary hood awaits gourmet exploits, as a double oven and large sink provide functionality in fashion. The hardwood floor, highlighted by a patterned rug, combines a comfortable yet sophisticated ambiance, and the open floor plan flows directly into the nearby dining space, becoming a central hub of the home. Above, recessed lighting provides an ambient glow, complementing the warm and welcoming ambiance ideal for congregating.
6. Flowing Kitchen-Diner

Light pours in from skylights and expansive windows, highlighting the rich oak cabinets and smooth appliances that characterize this open space. A contemporary dining table with padded chairs rests on a plush rug, ideal for quiet dinners with a view of the garden outside the glass doors. The air is circulated slowly by the ceiling fan, while the tiled floor of the kitchen provides a bit of pattern to the floor, complementing perfectly the warm carpet. A vase of flowers on a side table and artwork create a touch of personal warmth for this warm, open design.
7. Light-Filled Dining

Natural light pours in through large windows, enclosing a green garden vista that establishes a peaceful mood around a contemporary glass dining table ringed by stylish chairs. A two-way fireplace brings warmth and personality, its flames accessible from the dining as well as surrounding rooms, while a snug bench with striped cushions provides a delightful nook. The rich hardwood floor, edged by a round rug, adds to the high ceiling with recessed lights to create an airy but intimate setting ideal for leisurely meals. Subtlety abounds in the decorating, such as a large clock and flowers in a vase, to give the room its welcoming elegance.
8. Elegant Dining Room with Garden Views

A dramatic marble dining table grounds the space, flanked by traditional high-back chairs that encourage long discussions. Light filters in through French doors, opening onto a peaceful garden area and providing an open, airy sense. Delicate touches such as the sunburst mirror and towering indoor plants introduce personality without closing in the room. The show-stopping chandelier provides a contemporary contrast to the otherwise eternal look.
9. Tranquil Bath Space

Sunlight streams through a nearby window, bouncing off a shiny vanity with rich wood cabinets and a large sink lined with neatly folded towels. A chic light fixture with exposed bulbs provides a soft glow, enhanced by a bright blue vase and a splash of greenery that brings life to the room. The shower curtain in neutral tone complements the contemporary toilet perfectly, and an elegant lamp looks in from the next room, suggesting a warm relationship. The atmosphere as a whole suggests a pause of serenity in the midst of the rhythm of the day.
10. Quiet Bathroom Zone

Soft illumination from shell-shaped lighting fixtures bounces off a big mirror over a sleek gray vanity, where a splash of green in a potted plant provides a refreshing touch. The deep tub, edged by a clean white curtain, beckons a soothing soak, and a recessed shelf keeps necessities such as soap and a sponge close at hand. A glimpse of the bedroom through the open door suggests a smooth flow, and the neutral colors provide a peaceful retreat ideal for relaxing. The heavy-duty grab bar provides safety with a quiet, considerate touch.
11. Restful Bedroom

Light filters in through huge windows, highlighting a plush bed covered in gentle linens and a soft throw, against elegant night tables with traditional lamps. Two armchairs in orange and gray, edged with colorful pillows, form an inviting nook next to a little table carrying a vase of flowers. The hardwood floor, rich and soft from a patterned rug, looks lovely against pale artwork on walls, while the sight of an open door beckons towards a private ensuite, making it a peaceful retreat. Natural accents such as a potted plant introduce a bit of nature to the peaceful area.
12. Peaceful Sleep Space

Sunlight streams through high windows, outlining a green outdoor scene that illuminates a bed piled high with soft linens and a blue throw, crowned with a fashion hat. Coordinate nightstands with classy lamps on either side of the bed, while a white armchair with a vibrant cushion provides an ideal place to relax. The warm wood floor, cushioned by a soft rug, complements perfectly a built-in bookcase providing character, and a peaceful landscape painting completes the peaceful ambiance. A potted plant adds a splash of nature to this cozy retreat.
13. Calm Bedroom

Natural light pours in from tall windows with white shutters, lighting up a snug bed dressed in crisp white linens and gray trimmings, bordered by chic nightstands with softly glowing lamps. A decorative wall piece provides a touch of sophistication, while the warm hardwood floor mingles with a light rug on the floor. A compact plant on the side table adds a touch of green, and the open space encourages lounging with its tidy, welcoming atmosphere. Delicate touches such as a recessed light above add to the serene ambiance.
14. Creative Studio

Light pours through expansive windows, bathing a wooden easel with a still-life masterpiece, evoking an inspiration. Built in bookshelves along the walls overflow with books, sculptures, and quirky decor that tell a tale of artistic genius. The dark hardwood floor, cushioned by a beautiful rug, provides texture beneath feet, while a minimalist stool waits for its next masterpiece. A glimpse of the green outdoors filters in, harmonizing nature with this artistic retreat.
15. Fun Game Room

Natural light streams through huge windows, bathing a glossy ping pong table in waiting, its surface mirrored to reflect the warm atmosphere of the room. Shelves installed along the wall support a selection of decor, ranging from potted plants to books, which adds a hint of personality. The hexagonal tile floor and patterned rug provide a chic foundation, and a warm seating area spilling in from the corner promises a place for play and rest. Soft lighting completes the welcoming ambiance, an ideal place for spirited competition.
16. Roomy Laundry Area

Light pours in from above lighting, showcasing a pair of industrial washers and dryers nestled into a tidy alcove, tucked away for the day’s work. The blue and beige hexagonal tile floor provides a unique pattern beneath, complemented by built-in cabinets that provide more storage. A tiny sink visible through an open doorway implies a utilitarian addition, while the space remains airy and functional. Subtle touches such as a potted plant on the shelf add a sense of warmth to this functional sanctuary.
Listing Agent – Linda Miller @ Sotheby’s International Realty