
This beautiful home is situated in Fishers, Indiana, in a desirable location near the Nickel Plate Trail, SR 37, restaurants, and HTC, placed conveniently on a quiet cul-de-sac. The house features a classic suburban architectural style with a charming brick and siding exterior, a two-car attached garage with a 4-foot extension for added storage, and a freshly stained back deck overlooking a fenced backyard, perfect for outdoor living. The interior showcases engineered hardwood flooring on the main level, an open basement with a daylight window ready for finishing or recreational use, and a spacious family room with crown molding and a fireplace that connects seamlessly to the kitchen. The kitchen boasts granite countertops and stainless steel appliances with two pantry spaces, including a large walk-in pantry by the garage hallway double-functioning as storage or mudroom. The formal dining room features a boxed window seat ideal for hosting, supplemented by a flexible first-floor office or living room space. Upstairs includes well-sized bedrooms each with walk-in closets and ceiling fans, an upstairs laundry room for convenience, and a primary suite with vaulted ceilings, a large walk-in closet, double vanities, a garden tub, and a separate shower. The home is part of an affordable HOA with access to neighborhood sidewalks leading to the Nickel Plate Trail, and optional membership to the Summer Break Swim Club. The listing price is $400,000, making it an appealing option for families seeking a well-maintained, move-in-ready home with excellent amenities and a prime neighborhood location.
Front Porch Entrance

This inviting front porch blends traditional brickwork with white horizontal siding, creating a classic curb appeal. A concrete pathway leads to a small stoop framed by two brick walls. The black storm door features a large decorative frosted monogrammed glass panel, accented by a brass handle and trim. A single black wall-mounted lantern provides lighting on one side, while a modern black lantern with a candle inside adds charm to the right corner. Lush green shrubs and well-maintained planting beds flank the walkway, complementing the clean, welcoming aesthetic of this home’s entryway.
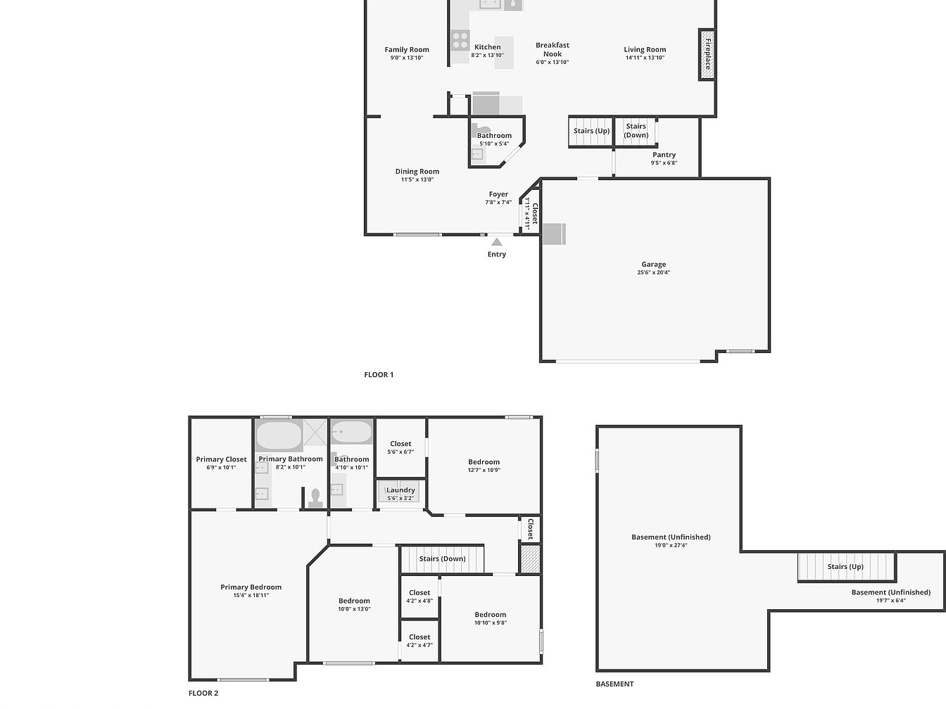
Floor Plans

This detailed floor plan reveals a well-organized two-story home with ample space and clearly defined zones for living and privacy. The main floor boasts an inviting foyer leading to a dining room, living room with fireplace, family room, kitchen, breakfast nook, and pantry, all designed for functionality and flow. A convenient half-bath is near the center. Upstairs houses the primary bedroom with a large closet and en-suite bathroom, plus three additional bedrooms, another bathroom, and a laundry area. The basement remains unfinished, offering opportunities for customization. The layout emphasizes open family spaces on floor one and restful private areas on floor two.
Dining Area

This dining area features a warm, inviting atmosphere with rich wooden flooring that adds depth and texture. A prominent rectangular dining table with a rustic white base and a natural wood top anchors the space, surrounded by a mix of black leather chairs and two upholstered white end chairs, blending comfort with sophistication. The walls are painted in a soft neutral gray, complemented by decorative wall accents including two arched window-style mirrors and a cursive wooden “gather” sign that encourages connection. Above the table, an industrial-style chandelier with exposed bulbs brings a touch of modern farmhouse charm. Adjacent open shelving in black contrasts with crisp white shiplap walls, displaying simple decor, contributing to the room’s cohesive, clean, yet cozy aesthetic.
Kitchen Island and Cabinetry

This bright kitchen features warm honey-toned wooden cabinets paired with granite countertops throughout, including on the central island. The island, situated in the middle of the room, includes two black cushioned bar stools with nailhead trim, providing an inviting spot for casual dining or food prep. Stainless steel appliances, such as a double oven, microwave, and refrigerator, add a modern touch, contrasting nicely with the natural wood. The flooring is a complementary medium-toned wood plank style, while soft grey walls create a calm backdrop. Overhead pendant lighting with glass shades completes the warm yet contemporary feel.
Living Room Seating Area

This living room features a spacious, charcoal gray leather reclining sectional arranged to face a white fireplace with a classic mantel. Above the fireplace hangs a decorative clock with a floral-inspired shape, flanked by two candle holders. The walls are painted a soft light gray, enhancing the bright and airy feel created by natural light pouring in through a large window adorned with black-and-white checkered curtains. Light hardwood flooring complements the neutral color palette, while a large, pale area rug adds warmth and texture. A modern circular ceiling fan and black media console with a mounted flat-screen TV complete the space, blending comfort with functionality.
Bathroom Details

This bathroom features a clean, minimalist design highlighted by soft white and gray walls that create a calm atmosphere. A white sink basin rests on a wooden vanity cabinet with natural wood grain, adding warmth to the space. Above the sink is a large, dark-framed mirror illuminated by a dual-light fixture with frosted glass shades, offering ample lighting. Two sleek black floating shelves hold small decorative pieces, including a framed sign and tiny plants, above the toilet. A practical wire holder with toilet paper is mounted on the right wall, balancing function with simplicity in this compact, well-organized bathroom.
Home Office

This cozy home office is designed with functionality in mind, featuring neutral light gray walls contrasted by white trim and molding that add a subtle architectural detail. A dark wooden desk is positioned in the corner, supporting dual monitors for enhanced productivity. The ergonomic black mesh office chair adds modern comfort. The carpet is a soft beige tone, complementing the muted color palette. Above, a ceiling fan with a warm light fixture ensures air circulation and ambient light. A side table covered with a patterned black and white throw adds a touch of personality and warmth, while a closed white door hints at additional storage or a small adjacent room.
Cozy Bedroom Corner

This inviting bedroom features a soft pastels color scheme highlighted by a pale lavender accent wall behind a white wooden bedframe with a lavender knitted bedspread. A cozy shag carpet adds warmth to the space. By the window, a sleek wooden desk with a white surface supports a pink swivel chair, a small desk lamp, and a globe, creating an ideal study nook. A hanging macrame chair near the corner offers a playful seating option, adorned with leafy greenery. Dreamcatchers and subtle wall art accentuate the calm, bohemian vibe, while a modern white standing lamp provides soft ambient lighting.
Laundry Room and Hallway

This compact laundry space features a white top-loading washing machine and a front-loading dryer, both modern and streamlined. Above, a white wire shelf holds an assortment of cleaning supplies organized in baskets and containers, maximizing vertical storage. An ironing board with a paisley cover leans against the wall, adding a subtle pattern to the otherwise neutral environment. Adjacent to the laundry area, the carpeted hallway is painted in soft gray and white tones, with white doors and a half-wall, creating a clean, calm transition space that feels inviting and practical.
Child’s Bedroom

This cozy bedroom features a single bed positioned against a vibrant blue accent wall adorned with Star Wars-themed decals and artwork. The bedding complements the theme with starry night patterns, reinforcing a space-inspired aesthetic. Opposite the bed, a large window with white blinds allows natural light to brighten the neutral cream walls and beige carpet floor. A wooden nightstand sits beside the bed, topped with a few small items and a lamp. On the opposite wall, a wooden book rack filled with children’s books adds warmth and functionality, creating a welcoming and imaginative space for a child.
Bathroom Details

This bathroom features a cheerful and inviting design with pastel blue walls creating a calming backdrop. The white countertop is smooth and clean, paired with a wooden vanity cabinet that adds warmth and natural texture to the space. A large mirror above the sink reflects light, enhancing the room’s spacious feel. The shower has a playful curtain with bold, colorful letters spelling “hello sunshine,” injecting personality and brightness. Fixtures such as the brushed nickel faucet and vanity light bar add a modern touch, while a small step stool by the toilet indicates family-friendly functionality.
Master Bedroom Retreat

This master bedroom features a calming color palette of soft grays and creamy whites, with plush carpeting that adds warmth underfoot. The bed is the focal point, dressed in neutral linens with a tufted upholstered headboard, flanked by matching vintage-style nightstands topped with elegant lamps. A large window with white blinds floods the room with natural light, balancing the gentle tones of the space. Decorative touches include a wooden ladder holding a gray throw and a comfortable armchair in the corner. The ceiling fan has a modern, streamlined design, enhancing the fresh, inviting atmosphere.
Master Bedroom View

This master bedroom presents a serene and spacious layout with high vaulted ceilings painted in a soft sage green, complemented by cream and neutral-toned furnishings. A large bed dressed with textured gray and white pillows anchors the room, facing a vintage-style cream dresser topped with a flat-screen TV. The carpeted floor adds warmth and comfort underfoot. Architectural details include a modern ceiling fan and an elevated display ledge running above the doorway entrances, hosting decorative lanterns and a framed inspirational quote. A cozy reading chair sits adjacent to the dresser, while two doorways lead to a walk-in closet and an ensuite bathroom, enhancing functionality within this tranquil retreat.
Bathroom Vanity and Tub

This bathroom features a clean, symmetrical layout with a double vanity sink set into a long white countertop. Wooden cabinetry beneath the sinks adds warmth and texture to the neutral color palette of soft beige walls and matching tiled floors. Above the vanity, a large frameless mirror spans the entire length, enhanced by modern chrome light fixtures with six round bulbs providing ample illumination. To the right, a built-in bathtub is positioned beneath a large window with white blinds, allowing natural light to brighten the space while maintaining privacy. Adjacent glass-enclosed shower completes this functional and inviting bathroom design.
Basement Recreation Area

This basement space is an unfinished area with exposed wooden beams and insulation covered in clear plastic sheeting on the walls. Concrete floors and bare concrete lower walls create an industrial, utilitarian feel. Centered on a large patterned area rug is a small table draped with a polka-dot tablecloth and surrounded by four black wooden chairs, offering a casual gathering spot. A television sits atop a small white vintage-style console, complemented by a black leather chair nearby. Storage bins and cinder blocks occupy the corners, indicating multipurpose use for storage and leisure activities within this raw, adaptable space.
Backyard Deck Area

This backyard space features a charming wooden deck in a rich brown finish, seamlessly connected to the house via a sliding glass door that invites natural light indoors. The deck is modestly sized with space for a single lounge chair, perfect for relaxing or soaking up the sun. Decorative railings frame the deck, enhancing safety and style with vertical and fan-like pattern details. Surrounding the deck is a neatly bordered garden bed filled with reddish mulch and edged with natural stone, contrasting the lush green lawn encircling the area. A wooden fence encloses the yard, providing privacy alongside a built-in fire pit in the corner for cozy outdoor gatherings.
Backyard view

This backyard showcases a spacious green lawn bordered by a wooden privacy fence, providing a serene and secure outdoor space. The deck, constructed from warm-toned stained wood, extends from the house offering an elevated view of the yard. A black lounge chair rests on the deck, inviting relaxation. The yard features a central circular fire pit surrounded by safe stone pavers, ideal for gatherings. A trampoline stands in the back corner, suggesting family-friendly recreation. Mature trees, including a prominently cascading willow, add lush vertical greenery, creating a peaceful and natural atmosphere for outdoor enjoyment.
Listing Agent: Keri Schuster of F.C. Tucker Company via Zillow