
This stunning country-style residence in Iowa, LA, offers 4 bedrooms, 4 bathrooms, and 3,068 sq. ft. of beautifully designed living space. Set on an expansive 130,680 sq. ft. lot, this home blends modern comfort with rustic charm, featuring a welcoming front porch, a spacious open layout, and breathtaking views of the surrounding landscape.
1. Expansive Country Retreat

This picturesque country home blends rustic charm with modern elegance, set on an impressive 130,680 sq. ft. lot. A welcoming front porch, accented by wooden columns, invites you inside, while the sprawling open land offers endless possibilities. The gabled roof and neutral exterior complement the serene rural setting, creating a peaceful retreat. With a spacious layout and scenic pond views, this home embraces both comfort and tranquility.
2. Where is Iowa?

Iowa, LA, is a quiet rural town offering a perfect blend of small-town charm and modern convenience. Known for its wide-open spaces, scenic farmland, and welcoming community, it provides a relaxed lifestyle just minutes from the city of Lake Charles. With easy access to major highways, local shops, and outdoor recreation, Iowa is an ideal place for those seeking tranquility without sacrificing accessibility. Its expansive landscapes make it a haven for country living.
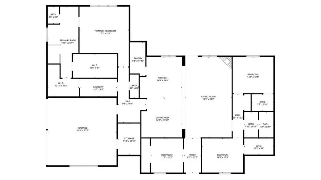
3. floor Plan

This home offers a well-planned floor design, balancing functionality and comfort. The open-concept kitchen, dining, and living areas create a seamless flow, ideal for entertaining. A private primary suite boasts dual walk-in closets and a spa-like bath. Additional bedrooms are generously sized, each with ample storage. A large laundry room, walk-in pantry, and dedicated storage spaces enhance convenience, while the attached garage ensures easy access.
4. Open-Concept Living with Rustic Charm

This inviting living space seamlessly blends comfort and style, featuring warm wood flooring and exposed beams that add a rustic touch. A neutral color palette enhances the airy feel, while a brick column creates a striking focal point. The kitchen, with its white cabinetry, open shelving, and pendant lighting, flows effortlessly into the living area, making it perfect for entertaining. A large sectional sofa offers a cozy retreat, completing this elegant yet relaxed space.
5. Kitchen with Timeless Appeal

This stunning kitchen combines classic charm with modern functionality. Crisp white cabinetry, accented by warm wood details, creates a bright and inviting space. A spacious island with bar seating offers the perfect spot for casual dining, while pendant lighting adds a touch of elegance. The sleek subway tile backsplash and stainless-steel appliances enhance the clean, sophisticated aesthetic. Large windows flood the room with natural light, making it a true centerpiece of the home.
7. Breakfast Nook with Rustic Touches

This inviting breakfast nook blends casual comfort with refined style. A natural wood dining table, paired with a mix of teal cross-back chairs and a warm wooden bench, creates a relaxed yet stylish setting. The shiplap accent wall enhances the farmhouse appeal, while open wooden shelves add a personal touch with framed photos and decor. Overhead, a geometric chandelier casts a soft glow, making this cozy corner the perfect spot for gathering over morning coffee or family meals.
8. Serene and Airy Master Bedroom

This spacious master bedroom exudes tranquility with its soft color palette and natural elements. The vaulted ceiling, complete with a rustic wooden beam, adds warmth and character, while the shiplap accent wall enhances the modern farmhouse aesthetic. Large windows framed by airy curtains flood the space with natural light, offering a stunning view of the outdoors. A cozy blue accent chair in the corner provides a perfect reading nook, and the sleek wooden bed frame, dressed in crisp white linens with blue accent pillows, completes the peaceful retreat.
9. Elegant Master Bathroom

This stunning master bathroom showcases a spa-like ambiance with a sophisticated white and gold color palette. The floor and walls are adorned with elegant marble tiles, creating a seamless and polished look. A freestanding soaking tub, complete with bronze fixtures, sits beneath large plantation-shuttered windows that provide privacy while allowing natural light to filter in. The glass-enclosed walk-in shower adds a modern touch, while the dual vanity with gold hardware offers both functionality and style. A chic, geometric pendant light adds a warm and inviting glow, completing this refined retreat.
10. Functional Laundry Room

This beautifully organized laundry room maximizes functionality with custom cabinetry, gold hardware, and a sleek white aesthetic. A dedicated hanging and folding area ensures efficiency, while woven baskets in built-in shelving add stylish storage. The hexagonal tile flooring enhances the space, creating a clean and elegant look. A well-planned layout makes laundry chores seamless and organized.
11. Bedroom with Bold Contrast

This inviting bedroom balances simplicity with a striking touch, featuring a deep blue accent wall that adds depth and warmth. Natural light filters through white plantation shutters, enhancing the crisp contrast against the neutral tones. A sleek wooden bed frame complements the soft blue-striped bedding, while a minimalist desk and modern chair create a functional workspace. A geometric rug ties the space together, offering both comfort and style.
12. Baseball-Themed Bedroom

This vibrant bedroom blends personality with functionality, featuring a bold blue accent wall and a unique bed frame crafted from baseball bats. A mix of rustic and modern elements, the space is anchored by warm wood tones and a cozy plaid bedspread. Sports memorabilia and medals adorn the walls, adding a personal flair. A sleek wooden desk provides a dedicated workspace, while the plush area rug softens the room, making it both stylish and inviting.
13. Outdoor Kitchen

This stylish outdoor kitchen blends rustic charm with modern convenience, featuring a built-in stainless steel grill set against a classic brick backdrop. Expansive granite countertops provide ample prep space, while a bar-height counter with seating invites guests to gather. A deep sink and under-counter fridge add practicality, making alfresco dining effortless. With a covered ceiling for shade, this space is ideal for year-round entertaining.
14. Resort-Style Pool

This expansive pool offers a private retreat, with crystal-clear water reflecting the open sky. A sleek stone border frames the design, enhancing its modern appeal. The adjacent covered pavilion provides a shaded escape, complete with a bar and seating for effortless outdoor entertaining. Beyond, a vast green landscape creates a serene backdrop, making this the perfect setting for relaxation or lively gatherings under the sun.
15. Spacious Storage Barn

This versatile metal barn offers ample space for storage, equipment, or a workshop setup. Featuring a large roll-up garage door for easy access and a covered outdoor section, it’s ideal for housing tools, vehicles, or recreational gear. The concrete driveway ensures durability, while the expansive open land surrounding it provides a peaceful rural setting. Perfect for hobbyists, farmers, or those needing extra space for projects.
16. aerial view

This aerial view beautifully showcases the spacious property with a well-maintained home, a luxurious swimming pool, and an expansive metal workshop. The fenced backyard creates a private oasis, complete with a covered outdoor kitchen and entertainment area. The long driveway provides ample parking and leads to a sizable storage barn, perfect for housing equipment, vehicles, or hobbies. Surrounded by open land, this property offers the perfect blend of rural tranquility and modern comfort.
Listing agent – Lauren Huffman @ Exit Realty Southern via Coldwell Banker.