
Welcome to 2 Cutters Run, a stunning custom Mediterranean-inspired residence located in the prestigious city of South Barrington, Illinois. This exquisite home embodies superior quality and opulence, perfectly designed for a multi-generational lifestyle and grand entertaining. Featuring dramatic front French doors, the entrance opens into a dazzling two-story formal living and dining area adorned with pristine balconies, intricate wood milling, and exquisite Alabaster chandeliers imported from Spain, creating an atmosphere of refined luxury. The main level is highlighted by shimmering Venetian-yellow granite tiles leading to a vast chef’s kitchen equipped with endless granite countertops, abundant cabinetry, an island with seating, and a secondary kitchenette boasting a Viking Professional hood, double oven, Thermador cooktop, and grill. Adding warmth and ambiance, the home includes eight gas fireplaces throughout. Step outside onto the expansive 1,500 square foot concrete terrace to enjoy breathtaking waterfront views and a private pond pathway ideal for tranquil strolls. A regal study with floor-to-ceiling custom wooden bookshelves offers a sophisticated and functional space for reading or working. The second level features gleaming Brazilian cherry hardwood floors leading to five oversized bedrooms and four full bathrooms, including a Jack and Jill layout and a second laundry room. The primary suites on both levels provide custom walk-in closets and spa-like bathrooms for ultimate relaxation. The radiant heated basement boasts tiled flooring and serves as a luxe gathering haven complete with a wet bar, wine cellar, a third full kitchen, sitting areas, a bedroom, and a full bathroom. Furthermore, a covered enclosed sub-deck with a wood-fired brick oven is perfect for outdoor entertaining. The property includes an impressive eight-car epoxy-floored garage, with one side heated and convenient basement access. Conveniently located within walking distance to shopping and fine dining at the Arboretum of South Barrington and near I-90 and O’Hare Airport, this home offers both luxury and convenience for modern living. Listed at $3,595,000, this meticulously crafted residence invites you to experience the utmost in elegant living.
main floor layout

This detailed floor plan reveals a spacious, multi-level home featuring distinct zones designed for comfort and functionality. It includes multiple large garages on the left, ideal for several vehicles or storage. The central layout balances social and private spaces with a grand foyer leading to the living and dining rooms. The kitchen, breakfast nook, and sitting room form a cozy, connected cluster on the upper left, while the right wing offers bedrooms and a study, each accompanied by bathrooms and closets. Stairs link several levels, optimizing accessibility throughout the 14,701 sq ft residence.
Second Floor Layout

This floor plan reveals a spacious and well-organized second floor featuring multiple bedrooms and bathrooms, ideal for a large family or frequent guests. The primary bedroom is generously sized with two adjoining closets and an expansive primary bathroom, offering luxury and privacy. A large open space labeled “Open To Below” suggests a dramatic double-height ceiling or a grand foyer below. Additional bedrooms include their own closets and nearby bathrooms, providing convenience. A laundry room is centrally located, streamlining household chores. The layout balances privacy and openness, with hallways connecting rooms gracefully while maximizing natural light and accessibility.
basement layout

This spacious rec room centers around a sleek, modern fireplace with a subtle stone surround, creating a cozy yet contemporary focal point. The neutral color palette, dominated by soft grays and warm wood tones from the flooring and furniture, promotes a relaxing atmosphere. Plush sectional seating invites comfort and conversation, strategically positioned to face the fireplace and a wall-mounted TV. Ambient recessed lighting complements natural light filtering in, accentuating the room’s open layout. Architectural elements like clean lines, minimalistic decor, and tasteful accessories underscore a refined, inviting entertainment space perfect for gatherings or quiet evenings.
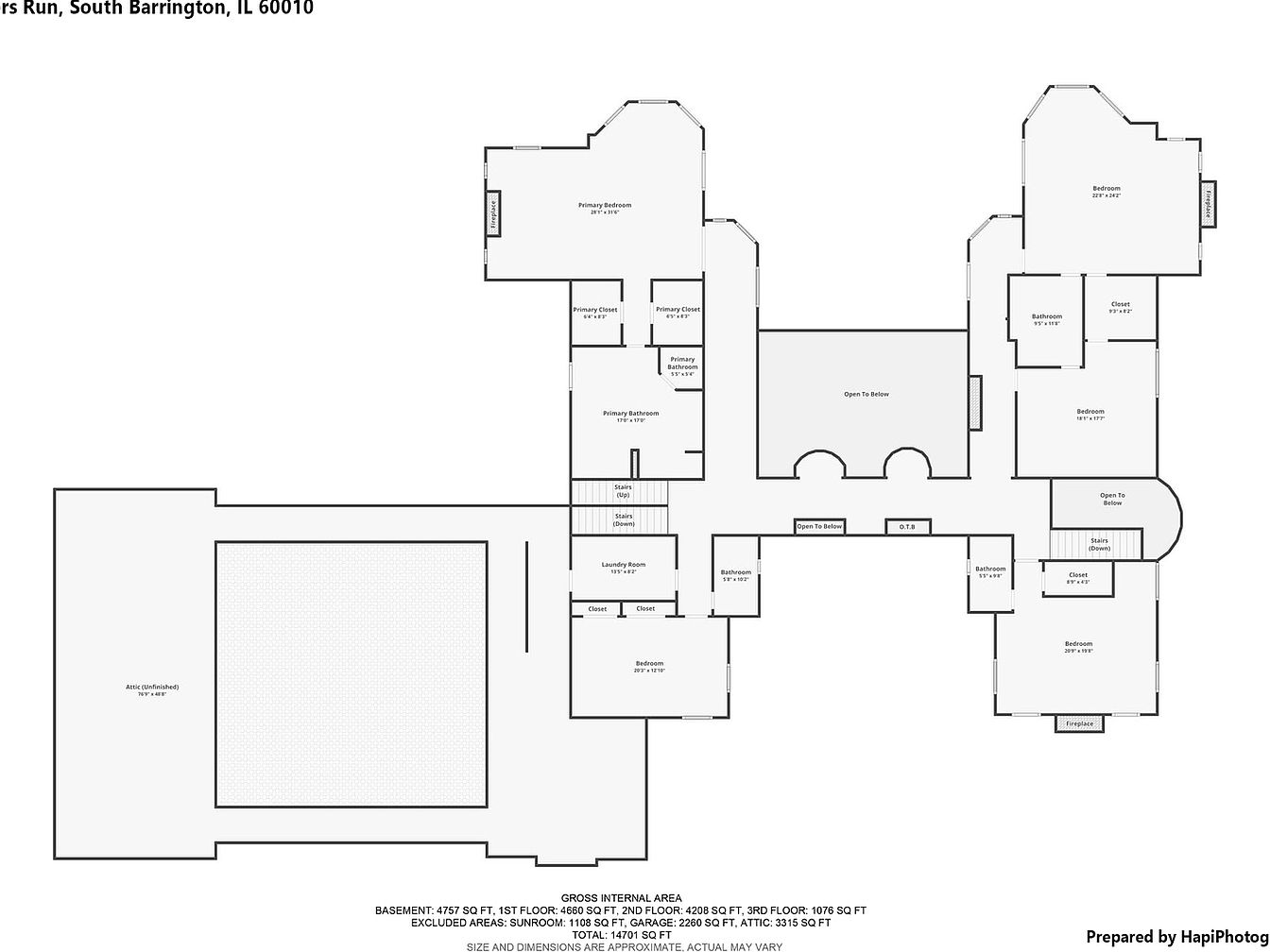
Attic Floorplan

This spacious attic is unfinished, measuring approximately 46 feet 10 inches by 21 feet 4 inches, providing a blank canvas for potential customization. It connects to two small utility rooms on either side, each roughly 6 to 7 feet square, ideal for storage or mechanical equipment. The attic is accessed via stairs leading downwards, emphasizing its position as an upper-level space. The layout highlights flexibility for future use, whether as additional living space, a studio, or storage. The simple design underscores the opportunity to tailor aesthetics and functionality to personal taste.
Front Entrance and Garden

This grand entrance features a stately façade with red brick walls complemented by elegant white Corinthian columns supporting three large arches. The symmetrical design highlights multiple French doors with transom windows, allowing natural light to flood the interior. A paved circular driveway leads to the entrance, bordered by meticulously trimmed conical evergreens and vibrant rose bushes. A classic stone fountain adorned with sculpted figures adds a sophisticated focal point amidst the lush greenery. The combination of traditional architectural elements and well-maintained landscaping exudes timeless charm and refined elegance.
Dining Area

This expansive dining area connects seamlessly with the adjoining living room, defined by a high, vaulted ceiling with warm crown molding accentuating its height. A large polished wooden dining table with cream upholstered chairs dominates the foreground, perfectly matching the classic chandeliers hanging overhead that add elegance and ambient light. The living room, visible beyond, features plush, patterned sofas arranged around a grand wooden fireplace with a tall mantel that reaches toward the ceiling. Architectural elements such as arched doorways and railings on the upper balcony enhance the traditional and sophisticated aesthetic, complemented by floral arrangements and framed artwork that enrich the visual harmony.
Living Room Details

This grand living room features a soaring double-height ceiling with rich wood trim and a large, elegant wood-paneled fireplace as the main focal point. The space is bathed in natural light streaming through the tall windows dressed with ornate, tassel-adorned drapes. Two large, comfortable sofas in cream and muted red stripes, paired with matching armchairs in soft mauve, create intimate seating areas on polished granite tile flooring with black diamond accents. Ornate glass-front cabinets and classic artwork add refinement, while the gold-toned chandelier with frosted glass shades complements the warm, traditional color scheme and architectural details.
Kitchen Island and Dining View

This spacious kitchen features a large island with rich wood cabinetry and a polished dark granite countertop. A stainless steel range hood hangs prominently above the stove, integrating modern appliances with the classic wood design. The ceiling curves elegantly with recessed lighting, while decorative gold and brown stenciling borders the ceiling edges, adding warmth and character. Beyond the island, a long dining area stretches out with a series of tall windows adorned with green patterned valances and white plantation shutters, bringing natural light and a traditional aesthetic to the open-plan space.
Dining and Living Area

This spacious open-concept area combines a large dining space and cozy living room. The dining table is an impressive wooden piece, seating sixteen with matching wooden chairs featuring cushioned seats. The floor is tiled in a soft cream tone that contrasts warmly with rich wood trim and crown molding. The living area features a curved leather sectional facing a built-in wooden entertainment center and a brick fireplace with a simple mantel. Multiple arched windows with wooden shutters and floral valances provide ample natural light, creating a warm, inviting atmosphere enhanced by traditional pendant lighting fixtures.
Family room Details

This family room features a cozy, traditional design centered around a beige brick fireplace with a wooden mantel, flanked by two tall windows dressed with elegant swags and lace curtains. A carved wood coffee table with a marble inset stands prominently atop a richly colored Persian-style rug. Deep brown leather sofas with textured cushions provide comfortable seating, complemented by an intricately patterned armchair near the fireplace. The walls are painted warm beige and accented with decorative wooden crown molding and trim. A large built-in wooden entertainment center with glass cabinets and a mounted flat-screen TV occupies one wall. Soft recessed lighting and a ceiling fan with wooden blades complete the inviting atmosphere.
Elegant Powder Bath

This powder bathroom exudes classic luxury with its mirrored walls creating a sense of expansive space. A pedestal sink in pristine white stands at the center, flanked by a small, round oriental rug featuring intricate patterns in muted tones. The rich wood trim around the mirrors and window shutters adds warmth and depth, contrasting beautifully with the reflective surfaces. Olive green towels with decorative tassels hang neatly, complementing the floral arrangement in warm oranges and reds perched on a green marble pedestal. Ornate antique-style lighting enhances the refined ambiance of this intimate space.
Master Bedroom

This spacious master bedroom features a warm, inviting ambiance with rich hardwood floors that provide a polished foundation. A dark wood four-poster canopy bed with matching nightstands anchors the room, dressed in patterned bedding and soft, coordinated drapery with a floral motif. Multiple windows framed with valances allow natural light to filter softly into the space. The seating area includes two elegantly upholstered armchairs and a small round table, positioned by the windows for relaxation. A central chandelier hangs above, complementing the classic crown molding and neutral walls. The stone fireplace with wooden mantel adds a cozy focal point, accented by artwork and delicate decorative pieces, creating a refined and comfortable retreat.
Family Room

This inviting family room features warm beige walls contrasted by rich, dark wood crown molding and trim, creating a classic and cozy ambiance. A large, comfortable L-shaped dark leather sectional sofa anchors the seating area, adorned with a variety of patterned and solid pillows. The focal point is a vibrant blue children’s play table with toys underneath, surrounded by soft beige floor poufs for seating. A traditional patterned area rug adds texture and warmth to the hardwood floor. The wall opposite the couch holds a mounted flat-screen TV flanked by dark wood cabinets filled with framed photos, complementing the extensive gallery of family portraits on the adjacent wall. A large, arched window with wood shutters brings natural light into this multi-generational space designed for relaxation and play.
Upstairs Hallway

This elegant upstairs hallway features rich, polished hardwood floors with intricate inlaid designs adding refined character. The ceiling is painted bright white, creating contrast with warm beige walls detailed by crown molding and wood trim in a deep, reddish-brown tone. Arched openings along the hallway overlook the stairwell below, supported by classic white balusters topped with matching wood rails. The corridor is softly illuminated by recessed lighting and wall sconces. Framed artwork adds color and visual interest, enhancing the traditional and sophisticated aesthetic of the space with classical architectural details and harmonious earthy tones.
Bedroom with Fireplace

This spacious master bedroom features warm wood tones throughout, with rich hardwood flooring complemented by detailed crown molding and window trim in a reddish-brown finish. The bed has a classic sleigh design and is dressed in neutral, earth-toned bedding. Positioned at the foot is a cozy loveseat adorned with patterned throw pillows, creating a relaxing sitting area. A striking black tile fireplace with wood mantel takes center stage on one wall, flanked by large windows with simple woven shades, allowing natural light to brighten the room. Personal photos and sports memorabilia add a personalized and inviting touch.
Bathroom Details

This bathroom presents a classic and cozy design featuring a combination of modern and traditional elements. A glass-enclosed shower with warm, earthy tile is adjacent to a white porcelain toilet with a vintage style. The corner bathtub is inset within striking black marble surrounds that continue along the floor, creating a polished contrast with the soft cream-colored walls. A pedestal sink stands elegantly with a bronze faucet, complementing the dark tones. Wood trim frames the shuttered window and mirrors, adding warmth. Artwork decorates the upper walls, infusing personality and visual interest into the space.
Bedroom Details

This spacious master bedroom features polished hardwood flooring that complements the warm, peach-toned walls and rich wood crown molding. A majestic four-poster wooden bed with a white quilt and bed skirt is the room’s centerpiece, flanked by dark wooden nightstands topped with elegant lamps. A vintage-style vanity with a floral cushioned stool sits near the window, creating a cozy nook. Large, multi-paned windows framed by draped, satin curtains let in ample natural light, brightening the room and adding a soft, inviting glow. The decor exudes a classic, timeless elegance with subtle floral artwork on the walls.
Bathroom Layout and Details

This bathroom features a classic, elegant design with a spacious layout. The black and white checkered tile flooring adds timeless charm and visual interest, complemented by beige tiled walls surrounding the bathtub and shower area. The glass-enclosed shower includes a decorative black diamond tile border, tying the space together. A large built-in bathtub offers a relaxing soak with bronze-toned fixtures. Opposite, a dark granite countertop with an under-mount sink and wooden cabinetry offers warmth and contrast. The wooden door and trim frame a peek into the adjacent bedroom, maintaining cohesive earthy tones. Black accent rugs and matching patterned towels add a refined finishing touch.
Bedroom

This master bedroom features warm wooden elements, including polished hardwood floors and rich honey-toned wooden doors and cabinetry. The bed is adorned with neutral beige and cream bedding, complemented by an array of plush pillows that enhance comfort. A ceiling fan with wooden blades hangs overhead, combining functionality with style. The room includes a dresser topped with two lamps and framed photographs, flanked by two vertical mirrors that add depth. Wooden crown molding runs along the ceiling, tying the room together with a classic and cozy aesthetic. A playpen signals family presence.
Bathroom Vanity and Tub

This bathroom features a warm and inviting aesthetic with rich wood cabinetry finished in a deep cherry tone, topped with a marbled countertop that complements the neutral beige tiles covering the walls and floor. The vanity area includes a large mirror with seven classic bell-shaped light fixtures above, creating a bright and elegant atmosphere. Adjacent is a white toilet that sits beneath a window framed in matching wood with white plantation shutters for privacy. The bathtub is enclosed by sliding glass doors with brass trim, paired with a soft gray bath mat adding subtle texture to the space.
Open Dining and Kitchen Area

This spacious open-concept area combines a large dining space and an adjacent kitchen, perfect for entertaining. The dining area features a long rectangular granite table surrounded by wooden chairs with black leather upholstery, illuminated by a classic chandelier above. The kitchen, located to the left, includes light wood cabinetry and a white refrigerator, with a small breakfast bar equipped with high-back dark stools. Recessed ceiling lights evenly brighten the beige-toned tiled floor and cream-colored walls. Large windows framed in warm wood trim bring natural light and outdoor views, enhancing the welcoming, elegant aesthetic throughout the space.
Game and Lounge Area

This spacious basement game and lounge area features a central billiards table with carved wooden legs, positioned on a tiled floor with decorative border patterns. The ceiling includes elegant curves and a hand-painted sky mural, illuminated by recessed lighting that creates a warm, inviting ambiance. A cozy seating area with leather sofas is set around a brick fireplace and built-in shelving topped with a mounted TV, perfect for relaxing. Alongside, a large oval marble-top table with cushioned wooden chairs lends itself to social gatherings. A scenic wall mural and classical columns enhance the room’s upscale, Mediterranean-inspired décor.
Home Bar Area

This home bar features rich wood cabinetry with glass-front upper cabinets for displaying glassware and built-in wine racks. The countertop is a polished stone surface that complements the warm wood tones. Bar stools with carved backs and turned legs provide traditional seating around the bar, creating a cozy social spot. The lighting is recessed in the ceiling, illuminating the bar area evenly. Decorative elements include colorful fruit arrangements adding a vibrant touch. Architectural details such as the ornamental column and paneled wooden door in the background enhance the classic, inviting ambiance of this entertaining space.
Wine Cellar

This intimate wine cellar features custom dark wood cabinetry and shelving designed to hold an extensive wine collection. The rich wood tones extend from the walls up to the intricately detailed ceiling trim, highlighted by recessed lighting that adds warmth. Bottles are displayed in a variety of compartments, including diamond bins and individual slots, maximizing storage and aesthetic appeal. A small, round marble-top table is paired with two wrought-iron chairs, offering a cozy spot for tasting. A stainless steel sink and wine accessories add functionality, while decorative grapevine accents enhance the wine country ambiance.
Living Room Fireplace Area

This cozy living room centers around a classic brick fireplace framed by built-in wooden shelves and cabinets on either side, creating a warm focal point. Above the mantle, a flat-screen TV is mounted, blending modern convenience with traditional warmth. Rich, dark leather armchairs and sofa define the seating area, which faces a detailed, ornate coffee table adorned with a floral centerpiece atop a lace doily. The ceiling has a tray design with a soft sky mural, complemented by recessed lighting for ambiance. Floor-to-ceiling French doors with green valances open to an outdoor seating area, inviting natural light and seamless indoor-outdoor flow. Nearby, a staircase with white railings and wooden accents adds architectural interest.
Home Gym Area

This workout room features a spacious layout with beige tiled flooring and soft, neutral-toned walls that create a calming environment. The ceiling angles upward, enhancing the feeling of openness, and recessed lighting evenly illuminates the entire space. Central to the room are three pieces of exercise equipment: two treadmills and a recumbent stationary bike, each positioned on individual mats to protect the floor. Rich wooden baseboards and matching closet doors add warmth and contrast to the neutral palette. A simple white futon along one wall provides a resting spot, while personal photos and artwork contribute a personalized, inviting touch.
Bathroom Details

This bathroom features a warm, neutral color palette dominated by beige ceramic tiles covering the walls and floor, creating a cohesive and soothing ambiance. A glass-enclosed shower with gold-toned framing adds a touch of elegance and transparency to the space. The white toilet is positioned adjacent to the shower, accompanied by coordinated plush beige and brown towels hanging on gold-finished towel bars. The vanity boasts a granite countertop with subtle veining atop wooden cabinetry, providing storage and contrasting textures. Soft shaggy rugs on the floor enhance comfort and warmth, while the minimalist lighting fixtures ensure a bright, inviting atmosphere.
Enclosed Patio Dining Area

This spacious enclosed patio features ample natural light streaming through large glass panels that line the perimeter, offering serene outdoor views while protecting from the elements. The floor is covered in large, earth-toned tiles with a textured pattern, complementing the exposed red brick walls for a warm, inviting atmosphere. Ceiling fans with built-in lights provide both illumination and air circulation. Two dining setups include a rectangular folding table with simple cushioned chairs and a smaller ornate metal table surrounded by mesh swivel chairs, creating versatile seating options for large gatherings or intimate meals.
Outdoor Patio and Grill Area

This expansive outdoor patio features a spacious tiled floor with earthy, natural tones that complement the red-brick exterior of the house. The built-in stainless steel grill station is prominently placed on a curved stone countertop supported by matching brickwork, blending functionality with aesthetic appeal. Elegant black wrought iron dining chairs surround a matching table, accompanied by neutral-toned umbrellas for shade. Multiple arched multi-pane windows and doors line the house wall, adding architectural interest and allowing natural light to flow indoors. Classic lantern-style wall sconces and a decorative balustraded railing enhance the sophisticated yet comfortable atmosphere, perfect for outdoor entertaining.
Outdoor Patio Seating

This spacious outdoor patio features a tiled floor with earthy tones complementing the red brick facade of the house. Two round tables with four high-backed, mesh chairs each provide comfortable seating areas, both accented by closed patio umbrellas in dark brown, perfectly blending with the overall natural color scheme. A built-in stainless steel grill set into a brick enclosure offers an ideal spot for outdoor cooking. The patio overlooks a lush green lawn with a pond and upscale neighboring homes in the distance, creating a serene and elegant backyard retreat to enjoy both relaxation and entertaining.
Backyard and Exterior View

This spacious backyard complements the brick exterior of the home, featuring a well-maintained lawn striped with fresh mowing lines. A secluded pond stretches in the background, framed by mature trees and neighboring houses. The home’s architecture includes tall chimneys and multi-pane windows with stone trim accents, adding classic elegance. Mature landscaping with neatly trimmed bushes and small trees borders the property, creating a lush, green environment perfect for relaxation and outdoor activities. The mix of natural elements and textured brick conveys a serene, inviting atmosphere with a touch of refined charm.
Garage Plant Storage

This spacious garage features a warm, earthy color palette with soft yellow walls complemented by wood wainscoting and terracotta-toned flooring. Large, arched windows framed in wood flood the space with natural light, creating an inviting atmosphere unusually bright for a garage. The design reflects both functionality and a touch of rustic charm. Rows of large potted plants, some bare-branched, suggest use as a temporary indoor nursery or plant storage area. Gardening tools hang neatly on a wooden rack at the rear, emphasizing a blend of practicality and organization in this multipurpose space. The high ceiling with visible garage hardware adds a structural, utilitarian element to the otherwise cozy environment.
Spacious Garage Interior

This spacious garage offers room for multiple vehicles, evident by the white SUV parked inside and four large white garage doors lined along one wall. The garage walls are finished with a warm yellow paint above wooden wainscoting that adds texture and warmth to the space. Multiple arched windows with black grid detailing flood the space with natural light, creating a bright and airy atmosphere. The reddish floor contrasts gently with the neutral walls and ceiling, while practical elements such as a sturdy green hand truck and a red ladder provide functional accents. The ceiling features exposed garage door mechanisms painted in white and silver, enhancing the garage’s utilitarian charm.
Listing Agent: Rosanna Tenuta of Compass via Zillow