
Experience peaceful country living in this 4-bed, 2-bath home on 2.24 acres, featuring 2,470 sq. ft. of space across 3 levels listed at $515,000 . Relax on the 300 sq. ft. front porch or entertain on the expansive 355 sq. ft. back deck with breathtaking Shenandoah mountain views. The primary suite offers a luxurious en-suite and a walk-in closet with a workspace option. The lower level boasts versatile living space. With new windows, a roof, and siding, this move-in-ready gem is just 1.8 miles from I-66.
1. cottage style exterior

This home features a charming Cape Cod design with a steep gable roof, symmetrical dormer windows, and a welcoming front porch. The light beige siding paired with crisp white trim offers a clean and timeless look. The elevated porch with natural wood railings adds warmth, while the centered entrance enhances the home’s classic appeal. Simple landscaping with dark mulch and small shrubs complements the wooded backdrop, blending the house harmoniously into its natural surroundings.
2. Where is Linden?

Linden is a city in Union County, New Jersey, located about 13 miles southwest of Manhattan and neighboring the city of Elizabeth. As a part of the New York metropolitan area, it offers convenient access to major highways, public transit, and Newark Liberty International Airport. Linden is known for its industrial roots and diverse community, with a mix of residential neighborhoods, local businesses, and commercial centers. The city features parks, recreational facilities, and cultural events, making it a vibrant suburban hub with easy access to the opportunities of the greater New York City region.
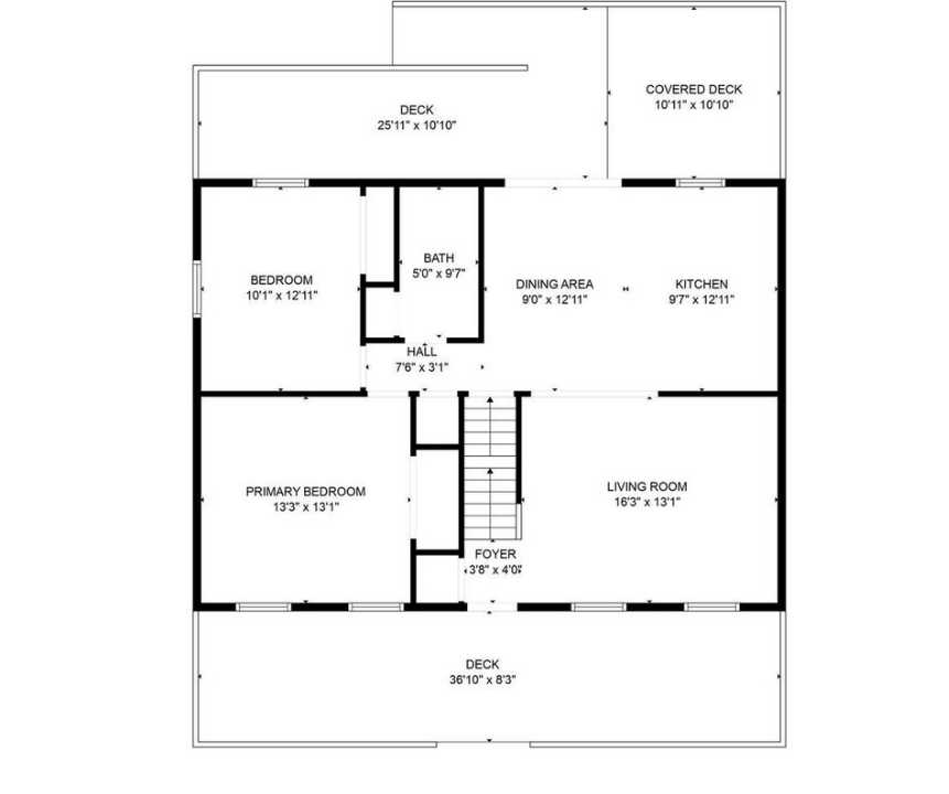
3. main level layout

The covered porch on the main level opens to a welcoming foyer with a staircase leading to the upper level. The foyer flows seamlessly into a spacious living room, offering an inviting space for relaxation. Adjacent to the living room is the dining area, conveniently located next to the kitchen for easy serving and entertaining. The dining space also provides access to a covered deck with a charming gazebo, perfect for enjoying the outdoors. A hallway from the dining area leads to the bedrooms, including a primary bedroom and a secondary bedroom, which share a well-appointed bathroom.
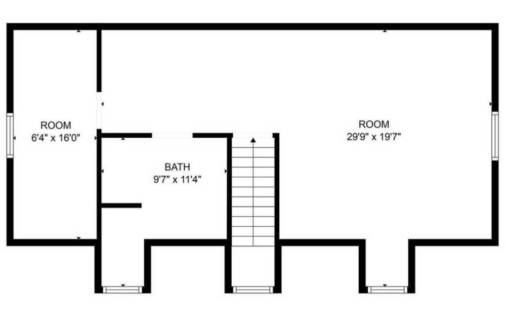
4. upper level layout

The stairs lead to the upper level, where you’ll find a cozy bedroom and a well-appointed bathroom, offering privacy and comfort. Natural light pours through the windows, creating a bright and airy ambiance. Additionally, there’s an inviting extra room situated by the window, perfect for a quiet reading nook, a productive home office, or even a creative space. The flexible layout allows for personalized use, making this upper level a serene and versatile retreat within the home.
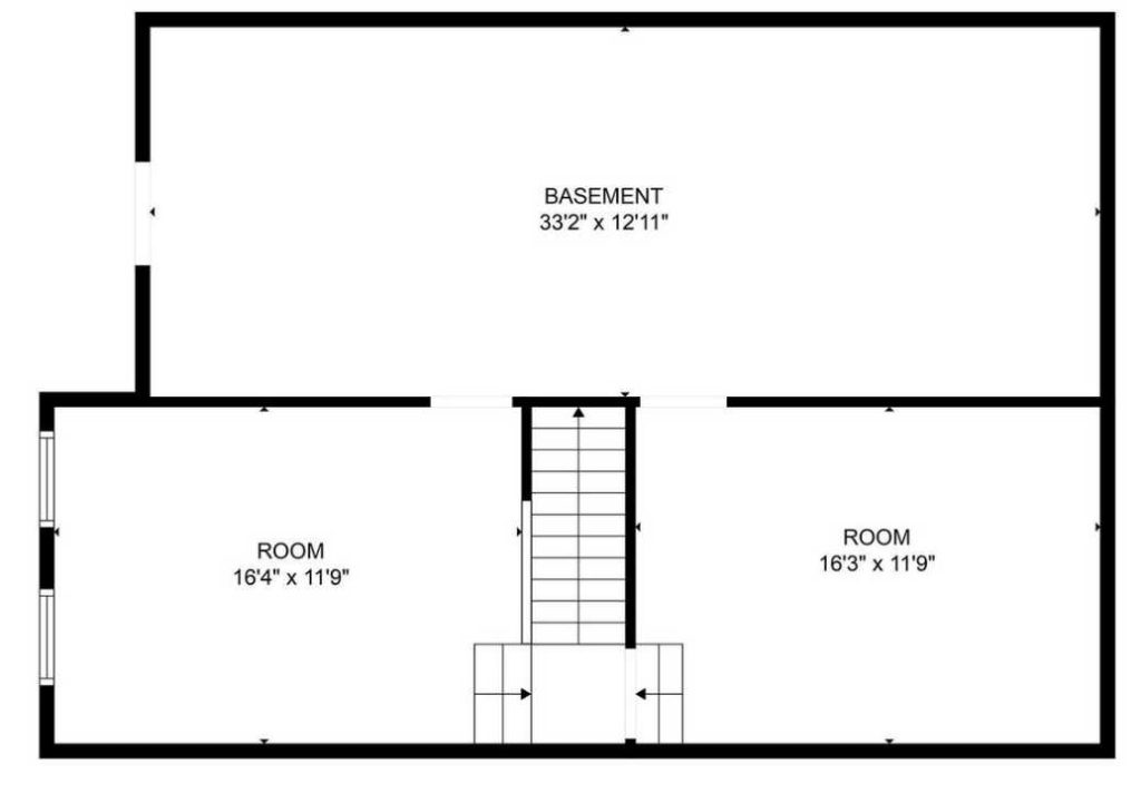
5. lower level layout

The lower level stairs lead to a spacious basement, providing ample storage space to keep your home organized and clutter-free. In addition to the storage area, there are two versatile rooms that can be adapted to suit your needs. Whether you envision a home gym, a hobby or craft room, a playroom for kids, or even a cozy guest space, these flexible rooms offer endless possibilities. The basement’s potential makes it a valuable extension of the home, adding both functionality and convenience.
6. Spacious Wraparound Porch

This inviting wraparound porch offers a rustic charm with its natural wood flooring and railings. The white beadboard ceiling adds a clean, traditional touch, while the black lantern-style wall sconce provides a subtle farmhouse aesthetic. Surrounded by tall trees, the porch creates a serene outdoor space perfect for relaxing or entertaining. Its elevated position offers sweeping views of the wooded landscape, enhancing the home’s connection to nature.
7. Bright Living Room

This spacious living room exudes a modern yet cozy charm with its neutral gray walls and wide-plank vinyl flooring. The white trim around the windows and baseboards provides a crisp contrast, enhancing the room’s brightness. Recessed ceiling lights and a sleek black ceiling fan offer both illumination and airflow. Natural light pours in through the large windows, offering picturesque views of the surrounding trees. The minimalist design creates a versatile canvas ready for personalization.
8. Elegant Dining Space

This dining area features a modern farmhouse ambiance, highlighted by the bronze chandelier with candle-style bulbs. The soft gray walls and luxury vinyl plank flooring provide a seamless transition from the living room. French doors with built-in blinds lead to a spacious deck, offering easy access to outdoor dining. Recessed lighting adds to the brightness, while the open layout maintains an airy, inviting atmosphere. The neutral palette allows flexibility for various decor styles.
9. Open-Concept Kitchen

This beautifully designed open-concept kitchen features crisp white cabinetry, sleek black hardware, and stainless steel appliances for a clean and contemporary look. The spacious layout includes a stylish farmhouse sink with a black faucet, a built-in microwave, and a large refrigerator. Recessed lighting brightens the space, complemented by a rustic chandelier over the dining area. The kitchen seamlessly flows into the living space, which includes ceiling fans and large windows that bring in natural light. The cohesive color palette and luxury vinyl plank flooring add warmth and elegance, making this space perfect for entertaining or everyday living.
10. Sleek Bathroom Design

This stylish bathroom features a contemporary aesthetic with a clean and minimalist design. The space is anchored by a wood-finish vanity with a crisp white countertop, complemented by a bold black faucet and matching hardware. A large round mirror adds a touch of elegance, reflecting the soft lighting that enhances the room’s airy feel. The combination of light neutral walls and contrasting dark floor tiles creates a balanced and sophisticated look. The shower area, adorned with sleek beige tiles and matte black fixtures, completes this modern retreat, offering both functionality and timeless appeal.
11. Spacious Bedroom

This inviting bedroom offers a clean and contemporary design, featuring soft neutral walls that enhance the room’s natural light. The stylish wood-look flooring complements the modern aesthetic, while the ceiling fan with a built-in light fixture adds both functionality and elegance. Large windows provide a serene view of the outdoors, creating a peaceful and airy atmosphere. With ample space and a minimalist feel, this room serves as a perfect blank canvas for personalization and comfort.
12. Bedroom with Ample Storage

This bedroom showcases a sleek and contemporary design with soft gray walls and wood-look flooring that adds warmth and elegance. A spacious closet with double doors offers ample storage, keeping the space functional and organized. The black ceiling fan with a built-in light provides both comfort and a stylish focal point. Recessed lighting enhances the bright and airy feel of the room, making it a versatile space that can be personalized to fit any design preference.
13. Spacious Attic Bedroom

This expansive room features a modern, neutral color palette with soft gray walls and stylish wood-look flooring. The sloped ceilings add character while maintaining an open and airy feel. Recessed lighting and a sleek ceiling fan provide both illumination and comfort. The multiple windows invite natural light, offering serene views of the surrounding landscape. This versatile space could function as a large bedroom, media room, or home office, catering to a variety of lifestyle needs.
14. Modern Farmhouse-Style Bathroom

This beautifully designed bathroom features a double vanity with a natural wood finish, adding warmth and charm to the space. The sleek white sinks are complemented by bronze faucets, which coordinate with the industrial-style light fixtures and mirror frames. The sloped ceiling adds character, while the large window in the background brings in natural light and a scenic view. The neutral color palette, including soft gray flooring and white walls, enhances the spa-like atmosphere. Thoughtfully placed towel bars and a toilet paper holder add functionality without compromising aesthetics.
15. Upper-Level Living Area

This expansive upper-level space features a sleek, modern design with light gray wood-style flooring and soft neutral-colored walls. The sloped ceiling adds character, while recessed lighting and a ceiling fan with a built-in light provide ample illumination. Large windows on either side bring in natural light and offer scenic views of the surrounding landscape. A set of doors leads to additional rooms, making this versatile space ideal for a bedroom, office, or recreational area.
16. Basement with Open Layout

This finished basement offers a clean, modern design with light gray wood-style flooring and neutral walls, creating a bright and inviting atmosphere. Recessed lighting adds warmth, while a simple staircase with white risers and a sleek railing leads to the upper level. The open layout provides flexibility for a variety of uses, such as a recreation room, home office, or additional living space. A doorway leads to an adjacent room, adding to the home’s functionality.
17. Expansive Deck

This cozy home is nestled on a sloped lot, offering a beautiful blend of nature and modern living. The back of the house features a spacious wooden deck with a stairway leading down to the yard. A covered gazebo area on the left side provides a perfect outdoor retreat, ideal for relaxing or entertaining. The home’s exterior is finished with light-colored siding and a dark roof, creating a classic yet contemporary look. Surrounded by tall trees, this property offers privacy and a peaceful, wooded atmosphere.
Listing agent – Cheryl C Spangler @ Spangler Real Estate via coldwellbanker.com