
This charming Cape Cod-style residence in Wenonah, NJ, offers 3 bedrooms, 2 bathrooms, and approximately 1,920 square feet of inviting living space. With its classic brick exterior, dormer windows, and an expansive front porch, this home blends timeless appeal with modern sustainability, featuring solar panels for energy efficiency. A warm and welcoming retreat awaits.
1. Charming brick exterior

This inviting Cape Cod-style home blends traditional charm with modern efficiency. Its brick facade, complemented by dormer windows and a welcoming front porch, exudes warmth and character. Solar panels line the roof, adding a sustainable touch to its timeless design. Manicured landscaping and a neatly edged walkway lead to the entrance, creating an inviting first impression perfect for relaxed suburban living.
2. Where is Wenonah?

Wenonah is a picturesque small town in Gloucester County, New Jersey, known for its tree-lined streets, historic charm, and tight-knit community. This quiet suburb offers a peaceful retreat while remaining conveniently close to Philadelphia. With its well-preserved Victorian homes, scenic parks, and a strong commitment to conservation, Wenonah provides a welcoming atmosphere. Residents enjoy easy access to local shops, nature trails, and a charming downtown, making it an ideal place to call home.
3. Corner-Lot Home

Nestled in a peaceful neighborhood, this beautifully maintained corner-lot home offers excellent curb appeal with its manicured lawn and inviting front porch. The property is enhanced by energy-efficient solar panels, providing sustainable living benefits. A private, fenced backyard with a covered patio creates an ideal space for entertaining or relaxation. The home’s strategic location on a quiet cul-de-sac adds to its charm, making it perfect for those seeking both comfort and convenience.
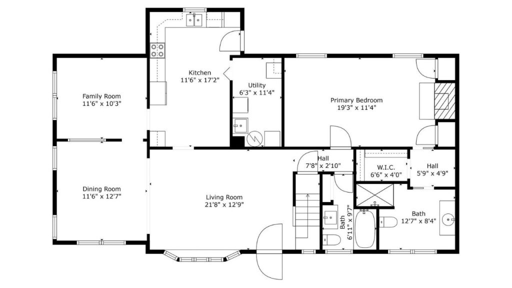
4. Main Level layout

Designed for both comfort and convenience, the main level offers a seamless flow between living spaces. A spacious living room leads to a formal dining area and a cozy family room, perfect for gatherings. The well-appointed kitchen is centrally located with easy access to the utility space. The primary bedroom features a walk-in closet, while two bathrooms enhance functionality. With its thoughtful layout and inviting atmosphere, this space is ideal for everyday living.
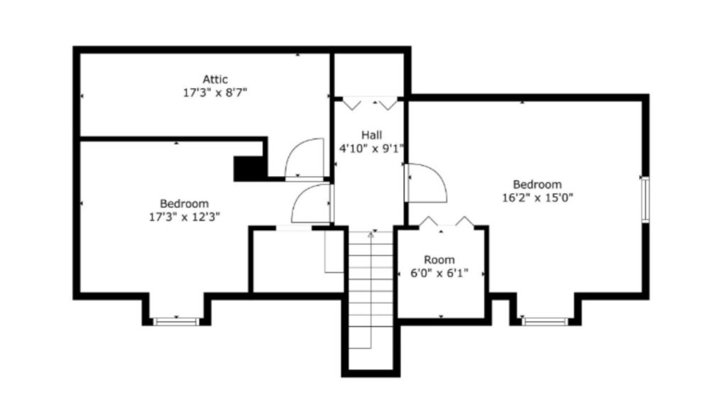
5. Upper level layout

The upper level offers a private and peaceful retreat, featuring two generously sized bedrooms with ample natural light. A versatile bonus room provides space for a home office or storage, while the attic adds additional flexibility. The central hallway connects each space seamlessly, ensuring both privacy and convenience. With its thoughtful layout and quiet ambiance, this level is ideal for restful nights and functional everyday living.
6. Inviting Wraparound Porch

This charming wraparound porch blends warmth and character, featuring a timeless brick exterior complemented by crisp white railings and columns. Large windows adorned with stained glass accents invite natural light while offering a glimpse into the home’s inviting interior. A classic lantern-style sconce and seasonal wreath create a welcoming entry, while the spacious covered area provides the perfect setting for outdoor relaxation. Surrounded by mature trees, this porch is an idyllic retreat in any season.
7. Charming Country Kitchen

This inviting kitchen blends classic charm with modern convenience, featuring cream cabinetry with glass-front accents and warm granite countertops. A vaulted ceiling enhances the airy feel, while a skylight and a stained-glass window over the sink bathe the space in natural light. Soft green walls provide a cozy backdrop, complementing the rustic wood flooring. Thoughtful details like a welcoming wreath, braided rugs, and open shelving create a homey atmosphere, perfect for both cooking and gathering.
8. Cozy Dining

This charming dining space offers a blend of rustic warmth and timeless appeal. A rich wooden table with black chairs anchors the room, complemented by soft green walls that create a cozy ambiance. A stained-glass pendant light adds a vintage touch, casting a warm glow over mealtime gatherings. Playful wall art and country-inspired decor enhance the welcoming feel, while an open doorway provides a seamless flow into the inviting living area beyond.
9. Bright Living Space

This spacious living room exudes warmth with its neutral tones and soft, plush carpeting. Natural light floods the space through large windows adorned with charming stained glass accents, creating a cozy and welcoming atmosphere. A comfortable sofa with decorative pillows sits beside a classic wooden end table and lamp, enhancing the inviting feel. The room extends into a bright dining area with vaulted ceilings and elegant arched windows, offering an airy and open layout perfect for relaxation and gatherings.
10. Tranquil Bedroom

This serene bedroom features soft blue walls that create a calming atmosphere, complemented by warm wood flooring. A plush, white bed with an elegant metal frame takes center stage, adorned with an array of decorative pillows for added comfort. Two large windows with patterned valances allow natural light to filter in, enhancing the cozy ambiance. The space is thoughtfully accented with traditional-style bedside tables, lamps, and a fireplace, making it a perfect retreat for rest and relaxation.
11. vintage appeal Bedroom

This well-appointed bedroom combines traditional charm with modern convenience. The soft blue walls provide a relaxing atmosphere, while warm wood flooring and a floral area rug add a touch of coziness. A large bed with a white comforter anchors the room, complemented by rich wooden furniture, including a tall dresser and a matching vanity with an arched mirror. A ceiling fan with lighting enhances airflow, and the fireplace adds a cozy focal point. The room also features an en-suite or connected space with a writing desk, blending comfort and functionality seamlessly.
12. Functional Bathroom

This bathroom exudes elegance with its blend of rich wood tones and neutral colors. The dark wood vanity with a double sink provides ample storage, while the mosaic-framed mirror and gold-tone fixtures add a touch of sophistication. The large window with white blinds allows for natural light, enhancing the airy feel of the space. A compact wooden vanity desk with a stool serves as a makeup or grooming station, making this bathroom both stylish and practical. The wood-look tile flooring and a woven laundry basket add warmth and texture, completing the inviting ambiance.
13. Attic Retreat

This charming attic space offers a cozy and inviting atmosphere, accentuated by its sloped ceilings and soft pastel walls. A classic ceiling fan with warm-toned lighting enhances the intimate setting, while a dormer window allows natural light to filter in. The plush lavender carpeting adds a touch of comfort underfoot, complementing the serene color palette. A double-door closet provides practical storage, and the adjoining hallway leads to additional living areas, making this an ideal retreat within the home.
14. Covered Patio

This inviting patio extends the home’s living space into the outdoors, offering a shaded retreat for relaxation and gatherings. A sturdy metal awning provides partial sunlight, casting dappled shadows over the glass-top dining table and chairs. A built-in grill stands ready for al fresco meals, while a white privacy fence frames the backyard with a crisp, clean touch. The concrete flooring ensures durability, making this a low-maintenance and versatile space for year-round enjoyment.
15. Backyard

This serene backyard offers a peaceful escape with its fully fenced perimeter, ensuring both privacy and charm. A covered patio extends the home’s living space, providing a shaded spot for outdoor dining and relaxation. The spacious lawn, bordered by a curved brick edge, invites endless possibilities for gardening or recreation. Mature trees and neatly placed shrubs add natural beauty, while a cozy storage shed tucked in the corner provides practicality. This thoughtfully designed space is perfect for enjoying quiet mornings or lively gatherings.
Listing agent – Basia Bubel @ KW Empower via realtor.com.