
Nestled in the heart of Wake Forest, this delightful 2-bedroom, 1-bathroom home at 2001 Rolesville Road offers classic charm with modern updates. Priced at $289,900, this 1,140 sq. ft. single-family residence sits on a spacious 0.36-acre lot, providing plenty of room to enjoy outdoor living. With a welcoming blue door, brick chimney, and timeless curb appeal, this 1949-built home is perfect for first-time buyers, downsizers, or investors. Low annual taxes of $1,144 and no HOA fees add to its affordability. Conveniently located in Wake County, this cozy retreat offers easy access to local amenities while maintaining a peaceful suburban feel.
1. Classic Exterior

The charm of this 1949 bungalow is evident from the moment you arrive. With its classic gabled architecture, fresh white siding, and striking brick chimney, the home effortlessly blends timeless appeal with modern updates. The inviting front porch, accented by a newly built wooden railing, provides a welcoming entrance that sets the stage for the warmth inside. The well-maintained landscape, complemented by a spacious yard, enhances the home’s curb appeal, offering a glimpse of the serene retreat that awaits beyond the front door.
2. Where is wake forest?

Nestled just northeast of Raleigh, North Carolina, Wake Forest is a charming town that offers a perfect blend of small-town warmth and modern conveniences. Situated in the Research Triangle region, it provides easy access to major highways, top-tier universities, and a thriving job market while maintaining its peaceful suburban appeal. This ideal location makes Wake Forest a sought-after destination for those looking for a quiet retreat with the benefits of city life just a short drive away.
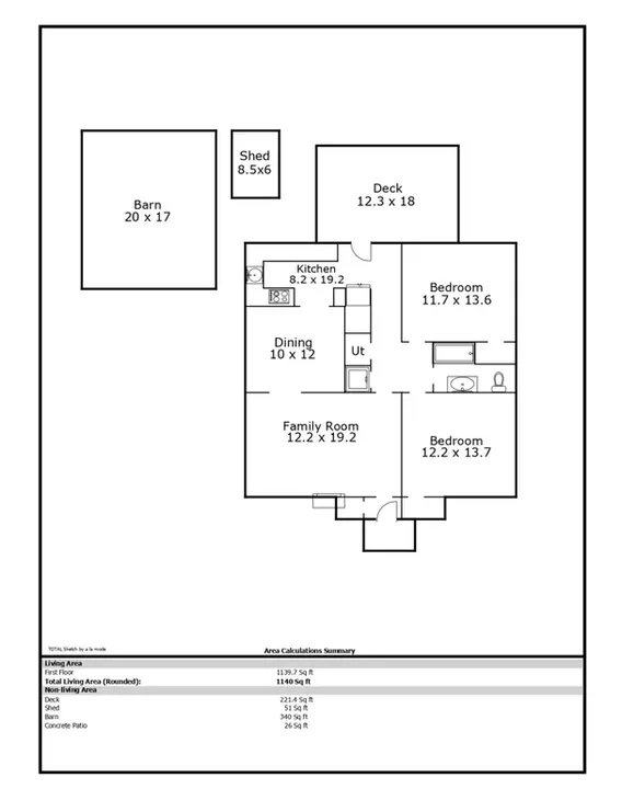
3. floor plan

This thoughtfully designed 1949 bungalow offers a well-balanced layout that maximizes both comfort and functionality. The spacious family room serves as the heart of the home, seamlessly connecting to the dining area and an extended kitchen. Two generously sized bedrooms provide a cozy retreat, while the well-appointed bathroom enhances convenience. The home extends beyond its interior, featuring a deck perfect for outdoor gatherings, a barn for extra storage or workspace, and a shed for added utility. With its efficient use of space and inviting design, this bungalow is a timeless gem in Wake Forest.
4. Bright living space

A bright and cozy living space sets the tone for this bungalow, offering both charm and modern comfort. Natural light streams through well-placed windows, enhancing the warmth of the LVP flooring that runs seamlessly throughout the home. The open layout fosters an inviting atmosphere, making it an ideal spot to unwind or entertain guests. Thoughtfully curated furnishings and soft tones add to the coziness, ensuring that this space remains a perfect blend of vintage appeal and contemporary ease.
5. Statement Fireplace

The statement fireplace serves as a timeless focal point blending classic craftsmanship with modern charm. Its rich wooden mantel adds warmth and character, while the contrasting black brick interior lends a bold, updated touch. Positioned within a bright and airy living space, this fireplace anchors the room, offering both visual appeal and a cozy ambiance. Whether used for warmth or as a decorative element, it enhances the inviting nature of this Wake Forest retreat, complementing the seamless flow of the LVP flooring throughout the home.
6. Elegant Dining

The Dining Area exudes simplicity and sophistication, creating a perfect setting for intimate meals and gatherings. A sleek modern light fixture adds a contemporary touch, complementing the warm wooden tones of the dining table and LVP flooring. The open layout seamlessly connects to the living space, where the statement fireplace enhances the home’s inviting ambiance. With its clean lines and minimalist aesthetic, this dining area balances classic charm with modern refinement, making it a timeless retreat in Wake Forest.
7. Spacious Kitchen

The kitchen blends functionality with a welcoming atmosphere. Crisp white cabinetry, warm butcher block countertops, and a stylish hexagonal backsplash create a fresh yet timeless aesthetic. Natural light pours in through a well-placed window, making the space feel open and airy while offering a pleasant view of the outdoors. The seamless transition to the dining area ensures effortless meal prep and entertaining, enhancing the home’s inviting charm. With ample counter space and modern appliances, this kitchen is both practical and full of character, making it a true heart of the home.
8. Serene Haven

Soft white walls and warm wood-toned flooring create an inviting and peaceful ambiance. Large windows on two sides fill the space with natural light, offering views of lush greenery and a charming outdoor deck. A sleek ceiling fan with wooden blades adds a modern touch while ensuring year-round comfort. With a spacious layout and minimalist design, the room provides a perfect blank canvas for personalization and relaxation.
9. Elegant Bathroom

Spacious and inviting bathroom featuring a chic vanity with a smooth white countertop, contemporary brushed nickel faucets, and generous storage. A wide mirror amplifies the natural light streaming in from the window, creating an airy ambiance. The shower area boasts refined marble-patterned tiles, paired with a sleek matte black rainfall showerhead. Thoughtful touches like a neatly hung towel and vibrant greenery enhance the stylish, modern aesthetic.
10. Bright and Airy Hallway

A well-lit hallway connects key areas of the home, featuring crisp white walls, warm wood flooring, and multiple doorways leading to bedrooms and a stylish bathroom. Louvered closet doors add charm, while natural light enhances the open feel.
11. Inviting Outdoor Escape

A beautifully crafted wooden deck extends the living space, offering a perfect spot for relaxation or entertaining. Surrounded by lush greenery, the area provides a sense of privacy and tranquility. A vibrant blue door adds a stylish contrast to the crisp white siding, enhancing the home’s curb appeal. Whether enjoying a morning coffee or hosting a gathering, this charming outdoor retreat is a seamless blend of comfort and style.
12. Charming deck

A welcoming wooden deck extends across the front of the home, offering a perfect space to relax and enjoy the outdoors. Newly built with sturdy railings and wide steps, it provides easy access to the house while enhancing the home’s appeal.
Listing Agent – Gretchen Coley, Devin Curlings @ Compass