
This stunning Colonial Revival home in Marshalltown offers 5 bedrooms, 4 bathrooms, and 2,698 sq. ft. of elegant living space on a 1.11-acre lot. Floor-to-ceiling windows flood the expansive living room with natural light. Enjoy a luxurious primary suite with a jet tub and walk-in closet, plus a gym, laundry room, and storage shed. A 3-stall garage and radon mitigation system add convenience and peace of mind. Priced at $499,900, this home is a must-see!
1. Stunning Colonial Revival Home

This stunning Colonial Revival home features a classic symmetrical facade, a charming covered front porch, and elegant white siding with contrasting black shutters. A striking arched window above the entrance adds grandeur, while the gabled roof with decorative trim enhances its timeless appeal. The landscaped yard and long, curved driveway provide both privacy and curb appeal. Nestled on 1.11 acres, this home offers ample outdoor space in a peaceful, scenic setting.
2. Where is Marshalltown?

Marshalltown, Iowa, is a charming city in central Iowa, serving as the county seat of Marshall County. Located about 50 miles northeast of Des Moines, it blends small-town charm with modern amenities. Known for its historic downtown, the city features stunning architecture, including the Marshall County Courthouse. Residents enjoy parks, trails, and the Iowa River, which flows nearby. Marshalltown is home to Marshalltown Community College and the Iowa Veterans Home, making it a vibrant and welcoming community with rich history and scenic surroundings.
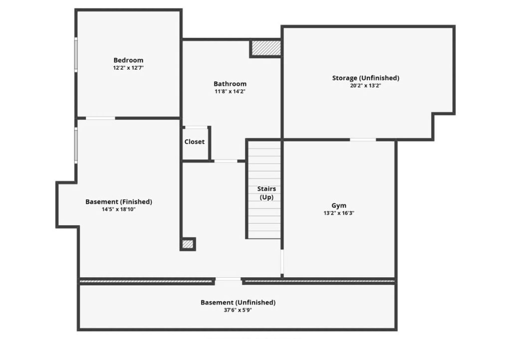
3. Spacious and Versatile Basement

The basement of this home offers a perfect balance of functionality and comfort. It features a finished living space ideal for relaxation or entertainment, a private bedroom, and a full bathroom for added convenience. A dedicated gym provides space for workouts, while an unfinished storage area offers ample room for organization. Additionally, a large unfinished section presents endless possibilities for customization. With easy stair access, this versatile lower level enhances the home’s overall space and practicality.
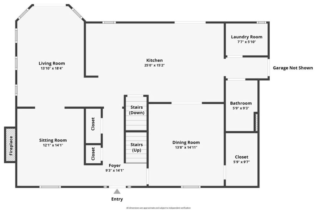
4. Open-Concept Living With storage

The ground floor of this home offers a spacious and functional layout. The entry foyer leads to a cozy sitting room with a fireplace and closets for storage. A large living room with ample natural light connects to the open-concept kitchen, creating a welcoming space for gatherings. The dining room is positioned nearby for easy meal access. A conveniently located bathroom and laundry room sit toward the back. Stairs lead both up and down, and a closet provides additional storage near the dining area.
5. Spacious and Functional Upper Level

The upper level of this home features a spacious layout with multiple bedrooms and bathrooms. The primary bedroom includes a large closet and an en-suite bathroom for added privacy. Additional bedrooms offer ample space and storage with built-in closets. Two more bathrooms are centrally located for convenience. The stairway leads to a landing with extra closet space for organization. With a thoughtful design, this floor provides comfort and functionality for a growing household.
6. Elegant Foyer with Classic Charm

The foyer of this home exudes warmth and elegance with its rich wooden finishes. A grand entry door, flanked by decorative glass panels, allows natural light to filter in, creating an inviting atmosphere. The hardwood flooring complements the detailed wood trim and crown molding, adding a classic touch. A carpeted staircase with intricately crafted wooden balusters leads to the upper level. The space connects seamlessly to adjacent rooms, offering both functionality and charm upon entering the home.
7. Warm and Inviting Sitting Room

The sitting room exudes warmth and comfort with its inviting design. A black leather loveseat sits against a softly lit wall, accompanied by a wooden side table with a potted plant. Rich wood trim and crown molding accentuate the space, enhancing its traditional charm. Large windows and glass-paneled doors in the adjacent room allow natural light to brighten the area. The open layout seamlessly connects to a cozy living space, while a few steps lead to additional rooms, adding depth to the home’s design.
8. Sunlit Living Room with Elegance

This sunlit living room boasts large arched windows that flood the space with natural light, creating a warm and inviting ambiance. The rich wooden trim accents the neutral walls, adding a touch of elegance. A sleek black leather sofa and matching recliner provide comfortable seating, complemented by stylish wooden side tables and warm-toned lamps. A cozy area rug anchors the space, while a ceiling fan with a light fixture enhances airflow. French doors lead to an outdoor deck, seamlessly blending indoor and outdoor living.
9. Warm Wood Kitchen with Island

This kitchen blends warmth and functionality with its rich wooden cabinetry, sleek black granite countertops, and stainless steel appliances. The spacious island provides ample prep space, while recessed lighting brightens the area. Natural light streams in through the windows and sliding glass door, offering views of the outdoors. The adjoining dining space creates a seamless flow, perfect for family gatherings. Hardwood floors add to the inviting charm, making this kitchen both stylish and practical.
10. Elegant Wooden Dining Room

This dining room exudes elegance and warmth with its rich wooden furniture and classic design. A grand dining table, surrounded by intricately carved chairs, sits at the heart of the space, perfect for gatherings. A large wooden china cabinet displays fine dishware, adding charm and sophistication. The neutral walls are accented with crown molding, while a window allows natural light to brighten the room. A sideboard with a blue runner provides additional storage and décor, completing this inviting and timeless dining area.
11. Modern Laundry Room with Storage

This well-organized laundry room features a modern washer and dryer set, offering both efficiency and style. White cabinetry above provides ample storage, keeping essentials neatly tucked away. A built-in utility sink adds convenience for handwashing delicate items. A metal shoe rack keeps footwear organized, while a hanging rod with hangers offers space for drying clothes. Natural light from the window brightens the room, complementing the clean white walls and tiled flooring for a fresh, functional space.
12. Stylish and Functional Bathroom Design

This bathroom features a clean and functional design with a pedestal sink, a toilet, and a spacious walk-in shower equipped with a grab bar for added safety. A large framed mirror enhances the sense of space, while a gray storage cabinet provides convenient organization. The neutral color scheme is complemented by striped shower curtains and a floral wall art piece, adding a touch of style. A towel rack and additional shelving ensure practicality, making this bathroom both stylish and efficient.
13. Spacious Primary Bedroom with Elegance

The primary bedroom exudes warmth and comfort with its soft green walls, plush carpeting, and classic wooden furniture. A spacious layout accommodates a beautifully crafted wooden bed with matching nightstands, each adorned with elegant lamps. Natural light streams in from an adjoining en-suite bathroom, enhancing the room’s inviting ambiance. The tray ceiling adds architectural charm, while rich wood trim and doors contribute to a timeless aesthetic. This serene retreat offers a perfect balance of style and relaxation.
14. Bright Bedroom with Scenic Views

This bedroom is a bright and inviting space featuring a stunning arched window that floods the room with natural light. The soft neutral walls complement the plush carpet, creating a cozy and serene atmosphere. A ceiling fan with a light fixture enhances comfort, while the bed is dressed in crisp white linens with elegant blue accent pillows. The wooden trim and furnishings add warmth and charm, making this bedroom a perfect retreat for relaxation with a beautiful outdoor view.
15. Bright and Cozy Bedroom

This bedroom is a cozy and inviting space featuring neutral walls and warm wooden trim. Natural light pours in through two large windows, offering serene views of the surrounding landscape. A wooden bed frame complements the soft, floral-patterned bedding, creating a peaceful ambiance. A ceiling fan with a light fixture adds both comfort and charm. With plush carpeting underfoot and a simple yet elegant layout, this bedroom is a perfect retreat for rest and relaxation.
16. Luxurious Bathroom with a Jet tub

This bathroom offers a spa-like retreat with its elegant design and thoughtful layout. A large built-in soaking tub sits beneath a bright window, allowing for natural light and a serene atmosphere. Dual vanities with gray cabinetry and sleek countertops provide ample storage and convenience. Flanking the tub are a spacious walk-in closet and a luxurious tiled shower. Soft lighting fixtures enhance the relaxing ambiance, making this en suite a perfect blend of comfort and sophistication.
17. Cozy Finished Basement with Entertainment

This finished basement offers a cozy and inviting retreat, perfect for relaxation or entertaining. The space features warm green walls, wood accents, and a plush sectional sofa, creating a comfortable atmosphere. A large area rug adds character, while built-in shelving provides storage and display options. Natural light streams in through the windows, complementing the ceiling fan’s soft glow. With a mounted TV and entertainment center, this versatile basement is ideal for movie nights or casual gatherings.
18. Spacious Private Home Gym

This home gym offers a private and well-equipped space for fitness enthusiasts. With soft carpet flooring and neutral-toned walls, it provides a comfortable workout environment. The room is spacious enough to accommodate various exercise equipment, including a treadmill, stationary bike, and free weights. A ceiling light fixture ensures ample illumination, while the closed-door design adds privacy. Whether for cardio sessions or strength training, this dedicated workout area makes staying active at home convenient and enjoyable.
19. Spacious Patio with Pergola

The back of this home features a spacious and inviting outdoor area, perfect for relaxation and entertaining. A charming brick patio provides ample space for outdoor dining with a sturdy metal table and chairs. The white-railed deck, accessible via a small staircase, includes a pergola for partial shade and a cozy seating area. With open views of the surrounding landscape, this backyard retreat blends comfort and function, offering the ideal space for gatherings or quiet outdoor moments.
20. Spacious Three-Car Garage

This home’s garage entry features a spacious three-car garage with a clean white exterior that seamlessly blends with the house. The wide driveway provides ample parking and easy access. The exterior lights flanking the doors enhance visibility and security. The well-maintained surroundings include neatly trimmed bushes and an open yard. With its durable construction and convenient layout, this garage entry is both functional and visually appealing, making it a valuable addition to the home.
Listing agent – Kelli Thurston @ Legacy Real Estate via Realtor