
Tucked away in the heart of Santa Rosa, CA, this charming Craftsman-style residence presents an ideal blend of timeless design and modern comfort. Priced at $869,000, the home features 5 bedrooms, 2.5 baths, and 1,968 square feet of living space on a spacious 0.3-acre lot—an exceptional real estate opportunity.
1. Inviting Craftsman Retreat with Vibrant Curb Appeal

This welcoming Craftsman-style home draws you in with its charming symmetry and bold red double doors. A wide front porch spans the facade, framed by white columns that contrast beautifully against the deep gray siding. A central dormer adds character and dimension to the roofline, while mature trees and manicured hedges provide natural privacy. The warm, inviting design hints at the comfort and character found within.
2. Where is Santa Rosa?

Santa Rosa is a vibrant city in Sonoma County, California, nestled in the heart of wine country. Known for its scenic beauty and relaxed pace, it blends small-town charm with urban amenities. The area boasts rolling hills, world-class vineyards, and a thriving arts scene. With its mild climate, walkable neighborhoods, and access to parks, dining, and culture, Santa Rosa offers a well-rounded lifestyle ideal for families and professionals alike.
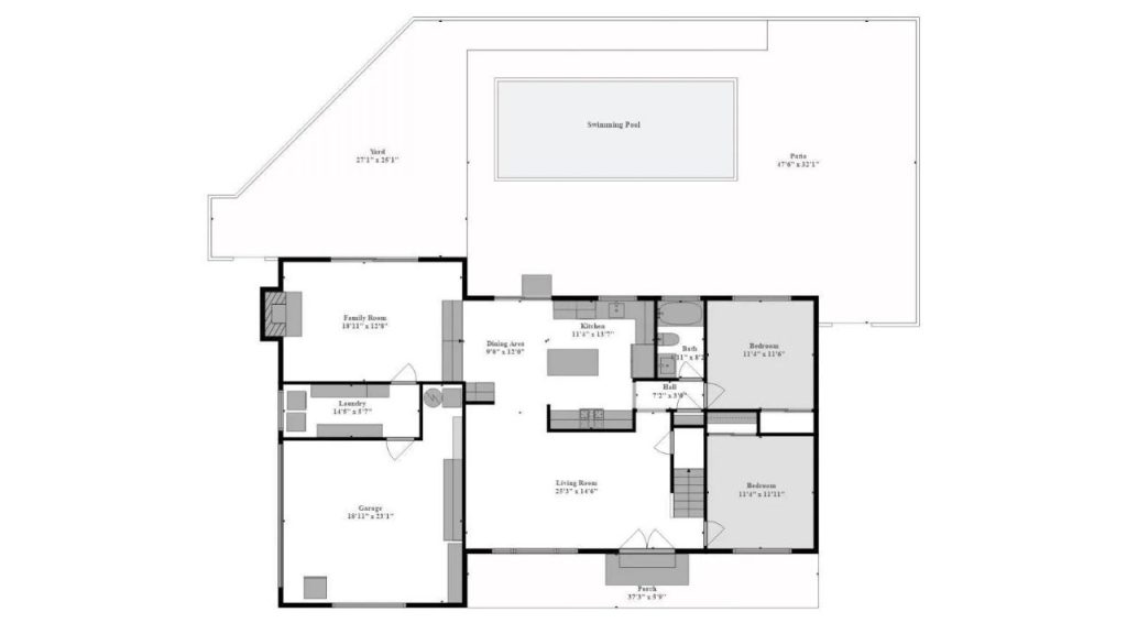
3. Ground Floor layout

Designed for comfort and flow, the ground floor opens to a spacious living room leading into a bright dining area and modern kitchen. Two bedrooms offer flexible use, while a full bath and generous hall closets enhance functionality. A cozy family room overlooks the yard and pool, creating the perfect indoor-outdoor connection. With a dedicated laundry room and attached garage, this level balances everyday convenience with welcoming warmth.
4. Second Floor layout

The upper level presents a well-appointed retreat, anchored by a spacious master bedroom with a generous walk-in closet and ensuite bath. Three additional bedrooms offer flexibility for family or guests, while two extra rooms provide space for an office, gym, or hobby area. Two full bathrooms and a central hallway ensure ease of movement and privacy. This layout perfectly balances relaxation, practicality, and personal space.
5. Bright Living Space with Serene View

This airy living area balances simplicity and style, featuring soft gray walls and recessed lighting that lend a calm, contemporary tone. Natural light streams through a wide picture window, drawing the eye toward the leafy view beyond. Richly grained wood-look flooring adds warmth and texture, while the double doors provide a classic touch. The open layout invites customization, ready for any design vision.
6. Versatile Open Concept Living

This expansive space is defined by clean lines and effortless flow, perfect for modern living. Soft gray walls and crisp white trim create a neutral backdrop, while wide-plank flooring brings warmth and movement underfoot. Recessed lighting brightens the room from above, and a broad window invites daylight in. The open passage to the kitchen hints at seamless entertaining and everyday comfort.
7. Contemporary Kitchen with Seamless Indoor-Outdoor Flow

This sleek kitchen balances function and flair with rich, dark cabinetry that contrasts beautifully with smooth white countertops. A central island anchors the space, while stainless steel appliances add a polished edge. Natural light pours in through expansive glass sliders, offering a view of the pool and patio beyond. The warm, striped wood flooring adds movement and texture, tying the room together in modern harmony.
8. Cozy Nook with Modern Rustic Charm

This intimate corner invites comfort with its striking black brick fireplace, offering a bold focal point against soft neutral walls. Recessed lighting above casts a gentle glow, perfect for quiet evenings. A wall of glass to the right frames the fenced backyard and draws in natural light, while the warm, variegated wood flooring grounds the space with natural texture and timeless appeal.
9. Open Living Space with Elevated Kitchen Overlook

Blending effortless flow with striking views, this open living area steps down from the kitchen to create a subtle yet stylish separation of space. Expansive sliding glass doors flood the room with light and offer a tranquil view of the lush backyard and pool. Consistent wood flooring ties the entire area together, while recessed lighting and warm neutral walls create a versatile canvas for everyday living and entertaining.
10. Cozy Bedroom with Mirror-Enhanced Light

This serene bedroom radiates quiet simplicity, elevated by natural light and clean lines. Crisp white walls reflect the daylight streaming through a modest window, creating a fresh, open atmosphere. The mirrored closet doors expand the sense of space while subtly bouncing light across the room. Underfoot, warm-toned laminate floors introduce a touch of organic texture, grounding the minimalist aesthetic with gentle charm.
11. Vibrant Bedroom with Bold Character

This eye-catching space makes a daring first impression with deep purple walls that bring personality and energy. A large window framed by white blinds offers soft, diffused light, balancing the dramatic palette with a gentle glow. Sleek laminate flooring adds warmth underfoot, while a minimalist ceiling fan brings function without distraction. A perfect room for those unafraid of color and charm.
12. Contemporary Bathroom with Subtle Accents

This charming bathroom blends modern simplicity with playful touches. A soft neutral palette is complemented by beige subway tiles lining the shower, finished with a mosaic border for added texture. Natural light filters through a frosted window, brightening the space. The vanity features a speckled stone countertop and warm wood tones, while a striped shower curtain in ocean hues adds a cheerful pop of color.
13. Tranquil Retreat with Sloped Ceiling

Bathed in soft natural light, this serene upper-level room offers a peaceful escape. A gently sloped ceiling adds architectural interest, while neutral taupe walls and crisp white trim create a calming backdrop. The warm-toned hardwood flooring brings richness and continuity, complemented by a modern ceiling fan overhead. A large window frames views of leafy treetops, inviting the outdoors in.
14. Modern Backyard Oasis with Pool

This vibrant outdoor retreat invites relaxation with its sleek rectangular pool framed by crisp concrete and lush artificial turf. The deep blue water mirrors the sky above, while a string of café lights adds evening charm. Terraced landscaping and mature trees offer privacy and a touch of nature. Perfect for lounging or entertaining, the space balances clean lines with a laid-back, resort-style vibe.
Listing Agent – Greg Beckham @ Beckham & Associates via realtor.com