
A spacious 4-bedroom, 3-bathroom contemporary home with 1,920 sq ft of living space is available at 3640 Two Rod Rd, East Aurora, NY 14052. Set on a generous 0.67-acre lot, this beautifully updated residence features a modern layout, inviting curb appeal, and ample room for comfortable living. Located in a peaceful East Aurora neighborhood, this home offers a perfect blend of space, style, and convenience for $399,900.
1. Colonial Modern Exterior

A modern interpretation of traditional colonial styling, this two story house mingles classic character with contemporary materials. Navy blue siding looks especially handsome next to deep red shutters and a black roof, and the textured look of stone veneer around the bottom gives it a welcome visual detail. The porch like front facade runs the width of the house, beckoning occupants to linger on rocking chairs as a flag above waves gently in the breeze. Tall trees line the background, providing a feeling of seclusion and harmony with nature, and a spacious driveway leads to the house, blending functionality with curb appeal.
2. Where is East Aurora?

Hidden away in western New York, East Aurora is a combination of small town character and artistic heritage that is distinct from the usual upstate feel. Famous for its pedestrian village center and strong connections to the Arts and Crafts movement, it’s the type of town where community gatherings, locally owned businesses, and a warm feeling of history inform everyday life. Being close to Buffalo provides convenience of the city while maintaining a relaxed attitude, setting East Aurora as an endearing pocket of personality and creativity.
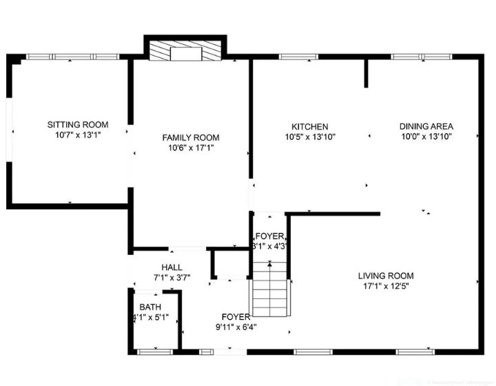
3. Lower-Level layout

Flow is inherent in this open floor plan, where every room blends effortlessly while still retaining its own personality. Focusing the layout, the family room is a central hub, with a warm sitting room unfolding one direction and an inviting kitchen and dining area the other. Two foyers provide a layered and friendly front entry, a prelude to what lies within. The living room stretches out lavishly, accommodating everything from quiet relaxation to active entertaining. Along the periphery, functional details such as a hidden bath and hallway are carefully positioned to maintain the openness and simplicity of the common areas.
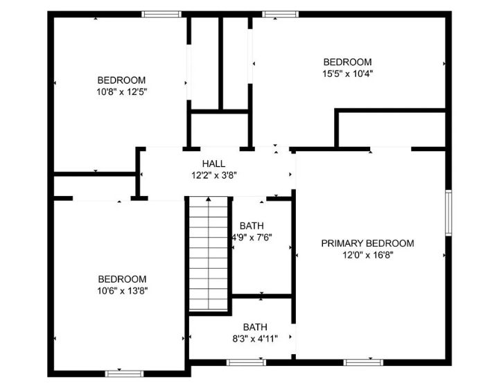
4. second floor layout

Upstairs, the design prioritizes privacy and balance. Four spacious bedrooms off a central hallway, each with its own pocket of tranquility. The master bedroom is notable for its square footage and convenient proximity to one of two bathrooms nearby. Two of the other bedrooms are almost the same size, ideal for siblings or guests, and the fourth is a little longer, providing flexibility for a home office or hobby room. The hallway itself is not merely a connector it provides a sense of breathing space between rooms.
5. Open Living Space with Warmth and Flow

A warm combination of comfort and practicality, this living room makes everyday life feel seamlessly connected. The soft gray walls offset well against the warmth of the hardwood floors, and the open floor plan naturally leads you from the living area to the kitchen and dining room. Design flourishes such as the wood adorned staircase, carved cabinet, and plush patterned armchair bring personality without overwhelming the room. It’s a configuration that encourages both peaceful nights and informal get togethers, with a design that keeps it all at hand but never cramped.
6. Relaxed Den with Farmhouse Charm

Nestled in a cozy corner, this reading nook finds the perfect harmony between calm and coziness. A plush gray sectional beckons you to sink in, surrounded by comfort, while rustic elements such as the barn door style sliding door and distressed wood media console add a touch of farmhouse flair. A big floral painting adds color softly, complementing the serene white walls without dominating the space. Underfoot, hardwood floors root the space in natural warmth. The sightline leads out toward the front door, and the partially hidden room behind the sliding door promises further discovery, making the nook both open and clearly its own.
7. Brick Hearth Gathering Room

Here’s a room that envelops you in coziness the second you walk through the door. The brick faced fireplace is all attention the instant you see it with its vintage, natural personality, even enhanced by the straightforward wood mantel that bears candles, framed portraits, and an adorable giant clock. You sink into the comfortable sectional and relax awhile, or at least be relaxed in an atmosphere, while the printed rug and beigey colors remind you to remain earthy and laid back. The double barn doors create a farmhouse ambiance in the room and introduce a chic segue to the connecting lounge, which is equally inviting with its pale wood walls and comfortable seating. It’s a room that is lived-in but in the very best way.
8. Open-Concept Dining and Kitchen Area

Entering this inviting open concept room, you’re instantly drawn to the deep wood tones of the circular dining table and soft, textured chairs, ideal for collecting family or friends. Above, a wood and metal accent chandelier adds a warm, cozy feel, which is carried by the light grey walls and sunlight pouring through the windows. Just past the dining area, the kitchen is a warm, practical arrangement of light grey cabinets, shiny granite countertops, and a cheerful white refrigerator that maintains the feel cheerful and sanitary. Two whimsical pendant lights above the breakfast bar provide character, with an effortless transition between dining, cooking, and living areas. Each nook feels well planned for relaxed comfort without compromising on style.
9. Light and Airy Bathroom

Nestled with a soothing, rejuvenating ambiance, this bathroom greets you with warm gray walls, clean white cabinetry, and a lovely shower curtain adorned with dainty floral patterns. Dappled light streams in from the window, contributing to the light airiness while the trimly tiled backsplash behind the sink adds a touch of understated texture and warmth. The vanity provides useful storage space underneath, and open shelving over the toilet allows for keeping necessary items in reach without sacrificing feel. Considered lighting above the mirror illuminates everything with brightness and functionality while creating a sense that the room is cheerful and efficiently organized.
10. Cheerful Lavender Bathroom

With its pale lavender walls and graphic floral shower curtain, this bathroom introduces a fun but calming atmosphere that feels fresh from the start. White cabinetry and fixtures add a bright touch to the space, and a plain overhead storage cabinet stores everyday items out of sight without overwhelming the room. The sink and mirror’s clean lines provide a crisp, clutter free appearance that’s easy on the eyes, so this intimate bathroom feels lively and welcoming.
11. Cozy Farmhouse Bedroom

Sliding natural wood barn doors and a distressed, soft accent wall immediately establish a rustic, farmhouse atmosphere in this cozy bedroom. The combination of blue, gray, and white soft tones on the bed gives a coastal, laid back look, and the textures stacked upon each other, along with strategically placed wall decorations, add personality and warmth. A retro inspired chandelier above softly brings together the old and the new, casting a warm light over the hardwood floors. Hidden just past the barn door, a glimpse of a flowered curtain hints at the adjoining ensuite, bringing comfort and continuity together.
12. serene Bedroom

Peaceful and uncluttered, this bedroom goes for soft neutrals and practical simplicity. A tufted headboard with understated stud detailing brings a touch of sophistication to the space, while the grey floral bedding keeps the colors muted and relaxing. Light slips through sheer ombré curtains, subtly lighting the modest nightstand and artwork above. The open closet space with standing mirror and traditional wooden chest provides the room with a warm, lived in look without overwhelming the minimalist design style.
Listing Agent – Joshua Collins @ House Talk Realty, LLC