
A chic 4-bedroom, 2 bathroom residence with 2,072 sq ft of living area is for sale at 1459 Lone Oak Ln, Eagan, MN 55121. Situated on a 0.66 acre property, this mid century modern home combines traditional architecture with modern flourishes, with a sunny open floor plan, a large kitchen, and several outdoor patios. In a quiet section of Eagan, it has lots of room inside and out for $459,000.
1. Midcentury Marvel Entrance

A splash of lime green on the front door immediately grabs your attention against the deep, dark siding of this traditional midcentury house. Simple lines, broad eaves, and a whimsical combination of wood and glass textures provide a friendly but unmistakably retro feel. The landscaping is simple and chic with pebbles, white sculptural globe lights, and a smooth path to the entrance, and the retro white Cadillac parked outside looks absolutely at home here in this chic environment.
2. Where Is Eagan?

Eagan combines the warmth of suburban living with the convenience of being only minutes from downtown Minneapolis and St. Paul. Famous for its large parks system, miles of walking trails, and tight knit sense of community, Eagan provides a serene way of life without sacrificing city amenities. It’s a place where you can spend the afternoon wandering nature preserves and still arrive at a concert or sporting event by night.
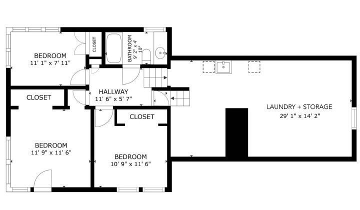
3. Lower Level Layout

The lower level is carefully planned, blending quiet bedrooms with usable space. Three quiet bedrooms are grouped around a central hallway, each with its own closet to stay organized and out of the way. A full bathroom is conveniently located nearby, allowing everyone to share without hassle. At the rear of the floor plan, a spacious laundry and storage room takes up the width of the house, providing ample space for chores, hobbies, and additional possessions. The transition between the rooms is smooth, producing a space that’s efficient yet welcoming.
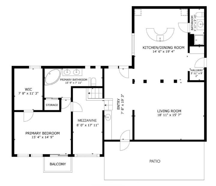
4. main level layout

Entering the main floor is like coming into a considerately designed refuge. A bright living room greets you with direct access to a sunny patio, ideal for indoor outdoor living. The kitchen and dining room, situated close by, provide an open, welcoming format suitable for both casual dining and lively parties. Hidden just past the living room, a hallway opens to an additional bathroom for guests. In the direction of the private side of the floor plan, the master bedroom has its own balcony, a spacious walk in closet, and a stunningly appointed bathroom with double sinks and a stand alone soaking tub. A snug mezzanine space close to the bedroom provides additional flexibility for relaxing, working, or showcasing treasured collections, all while linking seamlessly to the center of the home.
5. Bright and Welcoming Entryway

The front entryway immediately gives a lively feel with its vibrant orange accent wall and large window drawing in soft outside light. A contemporary floating cabinet with minimal legs makes the area stay light and airy, and a blue textured mirror provides a whimsical contrast. Just down the way, peeks at the dining room and its rich wood ceiling beckon you further into the home’s warm center, where greenery and bold lighting revive an invigorating, mid century feel.
6. Midcentury Living Room Full of Energy

A classic midcentury feel permeates the living room, where dramatic green leather sofas ground the room against the deep background of a geometric red rug. Exposed beams and a rough hewn stone fireplace make for an easy mix of rough and refined, and whimsical light fixtures inject a note of modern playfulness above. With open sightlines to dining and kitchen areas, the whole house has an air of connectivity, color, and vibrancy, ideal for anyone who enjoys lively, warm spaces.
7. Light-Filled Living Space with Nature Views

Floor to ceiling windows pour in the natural light, linking indoors to serene landscape beyond. Bright green armchairs and colorful red rug provide an energetic lift without dominating the tranquil mood from white walls and light wood ceiling. A low shelving unit brings a clean modernity below the mounted TV, and the comfortable lounge chair by the window invites lazy hours of reading or simply basking in the scenery.
8. Modern Kitchen with Artistic Details

A combination of crisp lines and whimsical details imbues this kitchen with its crisp, contemporary vitality. Dark lower cabinets provide a stunning contrast to the bright white walls and countertops, and a row of glass block windows provides soft illumination without compromising on privacy. Sculptural pendant lights provide a touch of glitter above, and the transparent chairs surrounding the island contribute a light, airy atmosphere to the space. A splash of green and a bowl of colorful fruit make the room feel alive and inhabited.
9. Contemporary Kitchen with Bold Accents

An imaginative combination of color and texture imbues this kitchen with a lively, welcoming atmosphere. The rounded island breaks up the bold lines of the black and white cabinetry, while the industrial faucet provides a modern, streamlined touch. Wood ceilings and exposed beams add warmth to the space, which is echoed by the bursts of bright red in the wall of built in ovens. Simple barstools maintain the design looking light and airy, while unusual pieces of wall art introduce a warm, individualistic vibe into the space.
10. Open-Concept Kitchen and Dining Area

Spacious and full of personality, the kitchen easily transitions into the dining area, defined by heavy beams and a natural wood ceiling. The rounded island provides a sculptural element, providing both function and aesthetic appeal with its two level countertop. Whimsical wall decor and industrial concrete panels provide a creative background, while clear chairs and a glass dining table maintain the space feeling light and airy. Big windows let the outside in, so the whole room feels part of nature.
11. Bright Dining Space with Indoor-Outdoor Connection

Focused around a slender glass table and ghost chairs, the dining space is airy and open, augmented by floor to ceiling windows that draw in views of the outdoor environment. A sculptural pendant light dangles above, bringing an updated touch to the room’s organic texture and exposed beams. Nearby, splashes of green and orange in the living space introduce a fun contrast, while a chic bar cart neatly fits into the corner, awaiting easy entertaining.
12. Cozy Corner Office with Midcentury Charm

Drenched in sunlight, this cozy corner office combines understated sophistication with midcentury charm, complete with a sculptural wood desk and vintage molded chairs set over a bold vintage rug. A group of glass pendant lights adds a warm modern ambiance, and plain white walls provide a backdrop for framed architectural prints for an edited look. Large windows surround tranquil natural views, making the room both inspiring and calming to work or read.
13. Modern Industrial Bathroom

Industrial chic collides with playful sophistication in this bathroom, where dramatic design elements form a dramatic yet inviting room. The focal point is the curved tub with glass shower curtain, creating a touch of softness amidst the bold lines that surround it. Twin vessel sinks in orange glass command attention on a black vanity, their rich color standing out against more subdued, industrial concrete and steel components. Over the sinks, studded metallic panel framed mirrors provide a room with a sophisticated, edgy feel, while the crystal chandelier above it tempers it with a hint of glamour. Tidy towels and a discreet flower arrangement finish the picture with considerate attention to detail.
14. Industrial Glam Bathroom

Proceeding further into the bathroom, the industrial ambiance is more alive with studded metal panels containing twin mirrors over the smooth vanity. The warmth of the wood tones from the slatted ceiling contrasts the chill of the concrete walls, rendering the room warm and edgy in personality. Bright orange vessel sinks introduce an airy splash of color, contrasting wonderfully with the dark cabinetry. Crystal chandeliers and sculptural decorative elements, such as the contorted metal sculpture and the exquisite orchids, add a gentle, artistic touch that combines industrial toughness with contemporary luxury.
15. Cozy Midcentury Bedroom

In the bedroom, midcentury charm collides with laid back comfort in a slatted wood ceiling and dramatic exposed beams that lift the eye upwards. Natural light floods through expansive windows and sliding glass doors, providing serene vistas of towering trees and effortless access to the balcony. A colorful red Persian rug grounds the area, with warm, deep color beneath one’s feet, while the fresh white sofa and glass coffee table add a pop of contemporary sophistication. The clean platform bed, which lies in a dark green coverlet, resides below an abstract work and warm pendant lights, making a restful, fashionable haven ideal for relaxing.
16. Bright Guest Bedroom

A warm guest room combines simple midcentury lines with lighthearted accents, boasting a sharp white background and a wood plank ceiling that is held aloft by inky beams. Soft light enters through large windows adorned with unfussy blinds, calling attention to the bright striped blanket tossed across the inky bedding. Minimalist details such as a thin metal side table and an industrial reading lamp maintain the area open and uncluttered, while a subdued landscape painting and a bright orange pillow introduce just the right touch of personality to this inviting sanctuary.
Listing agent – Charlie Neimeyer @ Coldwell Banker Realty – Crocus Hill via realtor.com