
This charming 1920 Tudor-style estate is located in Algonac, Michigan, beautifully positioned on a rare double lot along the canal. The home showcases classic Tudor architectural details, including a stucco exterior with distinctive timber framing accents and a steeply pitched roof. This historic residence combines original 1920 craftsmanship with modern updates for both comfort and style. Recent renovations include a fully reinforced seawall with new tiebacks, a new sump pump installed in the crawl space, updated electrical and plumbing systems, newer windows, and a new hot water heater. The interior features a spacious first-floor master suite with an attached full bathroom, generous living spaces, and cozy nooks that enhance the home’s character. The property offers impressive outdoor amenities with stunning canal views, a private boat hoist for boating enthusiasts, and expansive yard space perfect for entertaining or relaxing. Notably, the elevation survey indicates no flood insurance is required, and there is no HOA associated with this property. Listed at $500,000, this home represents a unique blend of historic charm, modern conveniences, and waterfront living on a generous plot, making it an exceptional opportunity in the Algonac area.
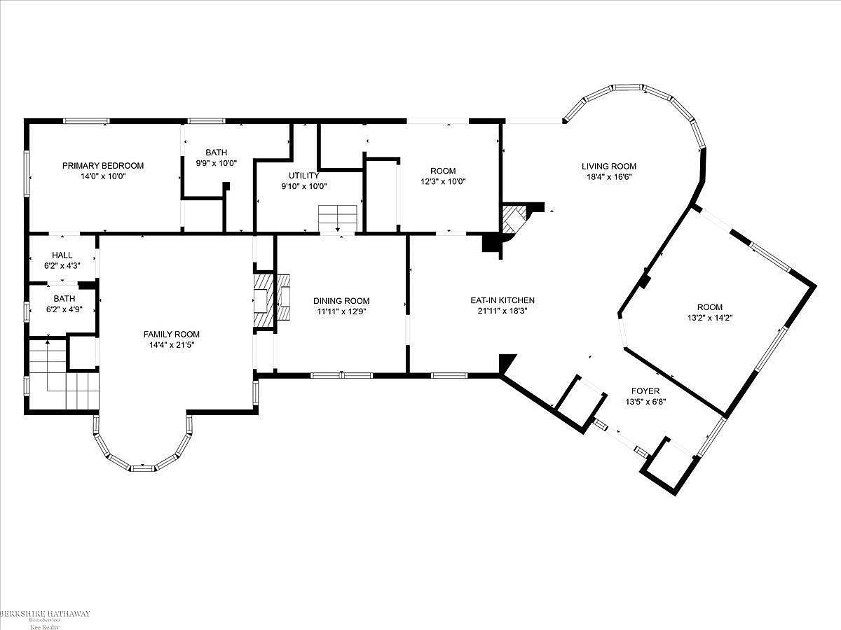
ground floor layout

This floor plan presents a spacious and well-organized layout, featuring key living areas that include a primary bedroom, family room, dining room, and an eat-in kitchen. The living room is uniquely shaped with a bay window area, enhancing natural light and providing a panoramic view. Multiple bathrooms and utility spaces are conveniently located for accessibility. The foyer opens into an adjoining room that could serve versatile functions, while the dining area sits centrally, connecting seamlessly to both the kitchen and family room. The design suggests practical flow and comfort, ideal for family living and entertaining.
upper floor layout

This compact floor plan outlines a well-organized layout including two bedrooms, a bathroom, a hall, a walk-in closet, and an additional large room that could serve versatile purposes such as a living area or office. The bedrooms are moderately sized with dimensions around 11 to 12 feet each, connected by a narrow hallway to the central spaces. A walk-in closet adjacent to one bedroom provides valuable storage. Windows are placed in each room for natural light. The design maximizes space utility while maintaining clear access and separation between living and private areas.
Living Room

This cozy living room centers on a warm, inviting seating area with classic brown leather sofas and a matching tufted leather ottoman used as a coffee table. A dark upholstered armchair with a cozy throw sets a comfortable tone. The curved wall features numerous evenly spaced windows that allow abundant natural light and views of the garden. Above, a unique dark circular ceiling inset houses a large wrought iron chandelier, creating a focal point. Warm wood flooring and a neutral textured rug complement soft beige walls adorned with framed landscape art, blending traditional and contemporary styles seamlessly.
Kitchen with Breakfast Bar

This kitchen features a warm, inviting layout with natural wood cabinetry contrasted by sleek black granite countertops. The breakfast bar extends into the open dining or living area, providing a casual spot for meals or socializing. Hardwood flooring adds to the cozy, traditional feel, while the modern stainless steel appliances bring contemporary functionality. A window above the sink offers a bright view and natural light, enhanced by recessed ceiling lights. The backsplash is tiled in shades of gray, which complements the dark countertops and balances the warm wood tones. Functional and stylish, this kitchen blends classic and modern elements thoughtfully.
Dining Room

This cozy dining area features warm wood tones with a set of four wooden chairs around a rectangular table draped in a floral tablecloth. The walls are painted a deep gray, complemented by dark wood crown molding and a large wood-paneled accent wall that adds rich texture. A patterned rug in muted colors anchors the space, while botanical artwork brings a natural touch to the décor. The ornate chandelier hanging over the table gives an elegant vintage feel, balancing the room’s modern rustic style. A view into the adjacent kitchen provides openness and flow.
family room

This spacious living room combines classic and cozy elements with a warm atmosphere presented through a lit brick fireplace that anchors the room. The neutral walls complement the rich, dark wood trim and built-in cabinetry, emphasizing timeless craftsmanship. Leather seating arranged around a large, colorful area rug offers comfortable lounging, while a patterned ottoman adds visual interest and functionality. The bay window nook floods the space with natural light, highlighting additional seating and greenery. Decorative accents, including vintage-inspired lamps and framed artwork, enhance the inviting and lived-in feel of this elegant setting.
Powder Room

This charming powder room blends classic and contemporary elements within a compact layout. A curved wooden vanity with a cream countertop contrasts with a striking green vessel sink featuring intricate koi fish designs. Above it, a large ornate gold-framed mirror adds elegance and vintage charm. Neutral beige walls provide a warm backdrop, with a black metal rack holding soft, neatly stacked towels, and matching towel ring nearby. The toilet area is accessorized with a white vase containing lavender and two modest floral prints in wood frames, adding subtle natural accents and promoting a calm, inviting atmosphere.
Cozy Bedroom

This inviting bedroom features a warm and cozy atmosphere with olive green walls complemented by dark wooden trim and matching doors. The centerpiece is a bed adorned with a floral quilt and a mix of soft pillows, flanked by two wooden nightstands with textured lamps. Natural light filters gently from a window with simple gray drapery. Across from the bed, a rich wooden dresser topped with a lamp and a classic doll adds character. The space blends rustic charm with nostalgic, homey touches, enhanced by a patterned area rug and a welcoming “Welcome Home” sign near the bed.
Bathroom Vanity and Shower

This bathroom features a cozy layout with a white vanity topped by a beige countertop, including a built-in sink and multiple drawers for storage. The walls are painted a soft yellow above dark green wainscoting that adds a classic touch. A large mirror spans the length of the vanity, reflecting ample natural light from a nearby frosted window. The shower is enclosed with a curtain decorated in a floral pattern with soft reds, yellows, and greens, complementing the earthy color palette. The floor is tiled in small squares, adding texture and a vintage feel. Bright towels in red, yellow, and blue introduce vibrant pops of color, enhancing the inviting atmosphere.
Cozy Twin Bedroom

This charming twin bedroom features two wooden beds with floral patterned quilts set against soft beige walls. Natural light filters through two windows framed with floral curtains, enhancing the cozy ambiance. A dark wooden dresser nestles in a corner alcove with linens stacked neatly on top. Intricate wall art and a stained-glass pendant light add character and a touch of vintage elegance. The floor is carpeted in a neutral shade, complementing the room’s warm, inviting color palette. Small whimsical touches, like a yellow duck statue, bring playful charm to the space.
Cozy Bedroom Corner

This inviting bedroom corner radiates warmth with its soft yellow walls that complement the rich, dark wood trim around the door and window. The classic wooden bed frame, featuring turned posts and spindles, is dressed in floral and textured bedding with an array of cozy pillows. A small nightstand with a simple lamp adds charm and practicality. Light filters through the patterned curtains, creating a serene ambiance. A small step stool under the window enhances the room’s functionality, while a wooden desk and chair beside the window create a practical, homey nook for work or relaxation.
Upstairs Bedroom

This cozy upper-level nook features angled ceilings typical of an attic bedroom, creating a warm and intimate space. Walls are painted in a soft cream color, contrasting beautifully with the rich dark wood trim framing the window, doorways, and baseboards. Two small closet doors with intricate dark wood paneling add character and storage functionality. A classic chandelier hangs from the ceiling, enhancing the vintage charm and serving as a focal point. Plush beige carpeting softens the room and complements the warm tones, while a single window invites natural light, creating a bright, inviting atmosphere.
Bathroom Vanity Area

This bathroom section features a double sink vanity with a warm wooden base and speckled beige countertop. Two round mirrors with chrome mounts hang side by side, complementing the silver faucets and matching fixtures. The walls are painted in a muted gray tone, creating a calm, neutral backdrop. To the left, a window allows natural light to enter, above a multi-tiered metal shelving unit holding rolled yellow towels and a potted green plant, adding a fresh pop of color. The room’s flooring is tiled in neutral earth tones, harmonizing with the overall cozy and practical design. A small black chandelier adds a touch of elegance above the window, balancing modern and classic aesthetics.
Backyard Deck

This inviting backyard deck showcases a cozy conversation area with a set of cushioned woven rattan chairs and a loveseat arranged around a central coffee table. A vibrant floral outdoor rug adds a dash of color beneath the seating grouping, harmonizing with the neutral gray cushions. A closed dark navy umbrella stands ready for shade, while various potted plants and greenery frame the wooden deck, connecting nature to the space. The deck overlooks a serene canal, enhancing the peaceful ambiance. The design blends comfort and casual elegance, encouraging relaxing outdoor gatherings in a scenic waterfront setting.
Listing Agent: David Izaguirre of Berkshire Hathaway HomeServices Kee Realty SCS via Zillow