
This expanded 1,920 sq. ft. Cape Cod, built in 1960, offers 3 bedrooms, 2 baths, and a cozy wood-burning fireplace. Natural light pours in from a kitchen skylight, while the inviting front porch adds curb appeal. The home features fully owned solar panels, keeping electric bills around $20/month, plus a newer furnace and AC (2020). With three sheds for extra storage and a well-maintained interior, this home is move-in ready. Nestled in a peaceful neighborhood, it’s the perfect blend of comfort and character.
1. Charming 3-Bedroom Cape Cod in Wenonah

This beautiful home showcases a traditional Cape Cod architectural style with a welcoming brick facade and dormer windows that add character and charm. The large, covered front porch with white railings provides the perfect spot for relaxation, while the neatly landscaped yard enhances the home’s curb appeal. Solar panels on the roof highlight energy efficiency, making this home both stylish and sustainable. The combination of classic design and modern touches makes this property a standout!
2. Where is Wenonah?

Wenonah is a small borough in Gloucester County, New Jersey, located about 10 miles south of Philadelphia. This quaint, residential community is known for its historic charm, tree-lined streets, and strong sense of community. Wenonah features well-preserved Victorian homes and a scenic downtown area with local shops and restaurants. The borough is also home to the Wenonah Woods, a nature preserve with walking trails that attract outdoor enthusiasts. With its small-town atmosphere, top-rated schools, and proximity to major highways, Wenonah offers a peaceful retreat while remaining close to urban conveniences.
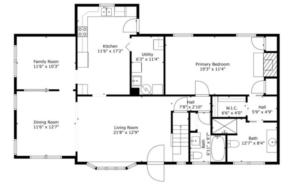
3. First floor layout

The first level of the house features an inviting entry that opens into the living room, with the dining area situated to the left. The dining room seamlessly connects to the family room, creating a natural flow for entertaining. The kitchen is conveniently accessible from both the living and dining areas. A functional utility room can be reached through the kitchen, providing additional convenience. Near the staircase, a well-placed bathroom offers easy access for guests. A hallway leads to the primary bedroom, which boasts a spacious walk-in closet and an en-suite bathroom for added comfort and privacy.
4. second level layout

The second level of the house features a charming attic room, along with two additional bedrooms that offer comfort and versatility. A smaller room provides a flexible space that can be used as a storage area, home office, or even an artist’s retreat, catering to a variety of needs. This thoughtfully designed upper level adds both functionality and character to the home.
5. Charming Wraparound Porch Retreat

Start your mornings on this inviting wraparound porch, where a cozy chair and a hot cup of coffee set the tone for the day. The brick exterior, white railings, and decorative columns exude timeless charm, while the warm outdoor lantern adds a welcoming glow at dusk. Spacious enough for seating, plants, and seasonal decor, this porch is perfect for relaxing, greeting neighbors, or enjoying a quiet evening. More than just an entryway, it’s a peaceful outdoor retreat waiting to be cherished.
6. Bright and Inviting Kitchen

Step into this charming, sunlit kitchen, where warmth and functionality meet. Vaulted ceilings and a skylight flood the space with natural light, complementing the soft sage-green walls and crisp white cabinetry. Granite countertops and a tile backsplash add a touch of elegance, while glass-front cabinets offer a stylish display for dishware. A cozy stained-glass window above the sink enhances the homey feel. With a gas stove, built-in microwave, and ample counter space, this kitchen is both practical and inviting—perfect for home-cooked meals and gathering with loved ones.
7. Cozy and Inviting Dining Space

Gather around in this charming dining nook, where comfort meets character. The warm green walls create a cozy ambiance, while the wooden dining table and black chairs add a rustic touch. A vintage-inspired stained-glass pendant light casts a soft glow, making every meal feel special. Thoughtful decor, from farmhouse-style wall art to crisp white cabinetry, ties the space together beautifully. With a seamless flow into the living room, this dining area is perfect for intimate dinners or lively gatherings with loved ones.
8. Cozy and Inviting Family Room

This charming family room exudes warmth and comfort, featuring a vaulted ceiling and a large arched window that fills the space with natural light. The plush seating, accented with decorative pillows, creates a relaxing atmosphere perfect for unwinding. A ceiling fan with light adds both style and functionality, while the built-in wall shelf serves as an elegant focal point for displaying decor. With a neutral color palette and tasteful rustic touches, this space is ideal for casual lounging, entertainment, or quiet evenings at home.
9. Charming Vintage-Inspired Powder room

This delightful powder room blends vintage charm with modern functionality. The soft pink walls and white tile accents create a soothing, elegant atmosphere. A floral shower curtain adds a touch of classic romance, while the stained-glass window enhances the space with colorful natural light. The updated vanity with a quartz countertop provides ample storage and a clean aesthetic. Thoughtful details like the hanging wooden storage box and decorative elements bring warmth and personality to this cozy retreat.
10. Serene and Cozy Bedroom

This inviting bedroom radiates comfort and tranquility with its soft blue walls and crisp white bedding. The large bed, adorned with plush pillows, serves as the room’s focal point, creating a cozy and restful atmosphere. Two matching nightstands with elegant table lamps frame the space beautifully, adding warmth and symmetry. The decorative valances above the windows introduce a touch of classic charm while allowing natural light to filter in. A ceiling fan with a built-in light fixture enhances airflow and illumination. The presence of a fireplace mantel on the right suggests a cozy ambiance, perfect for relaxation. This room is the ideal retreat for peaceful nights and lazy mornings.
11. Elegant and Functional Bathroom

This modern bathroom combines elegance and functionality with a spacious vanity featuring rich wooden cabinetry and a sleek white countertop. A large mosaic-framed mirror enhances the space, while a three-light fixture provides ample illumination. A wooden vanity desk with a stool offers a dedicated grooming area by a large window with blinds. Wood-look tile flooring adds warmth, complementing the neutral gray walls. A woven laundry hamper keeps the space organized, blending style and practicality.
12. Charming Attic Retreat with Cozy Ambiance

This spacious attic room features soft mint green walls and sloped ceilings, creating a cozy atmosphere. A central window with a simple valance allows natural light to brighten the space. Plush gray carpeting adds warmth, while a ceiling fan with a light fixture enhances comfort. A double-door closet provides storage, and multiple outlets along the walls offer convenience. The layout makes it ideal for a bedroom, office, or creative space.
13. Charming Attic Retreat

This cozy attic room features sloped ceilings, warm beige walls, and a ceiling fan for comfort. A small window brings in natural light, making it a perfect space for a home office, sewing area, or creative studio. The built-in storage door and decorative trim add character, while soft carpeting enhances comfort. Whether used as a workspace or relaxation nook, this charming retreat offers endless possibilities.
14. Spacious Covered Patio for Outdoor Living

This inviting covered patio offers a perfect space for outdoor entertaining and relaxation. The durable metal awning provides shade, while the concrete flooring ensures easy maintenance. A large dining set and built-in grill create an ideal setting for gatherings. The fenced backyard adds privacy, making this the perfect spot for enjoying meals, barbecues, or quiet afternoons outdoors.
Listing agent – Basia Bubel @ KW Empower via realtor.com