
Nestled in the heart of University Park, TX, this stunning 4-bedroom, 6-bathroom home offers 3,877 square feet of refined living space on a beautifully landscaped 0.18-acre lot. Designed in a charming cottage-inspired style with rustic stone accents and warm wood siding, this residence blends timeless elegance with modern luxury, creating a welcoming yet sophisticated retreat.
1. Charming Stone and Siding Home

This beautiful two-story home blends rustic charm with classic elegance, featuring a striking stone-accented facade paired with warm wood siding. The arched entryway, framed by a soft blue door, adds a welcoming touch, while the symmetrical windows enhance its balanced design. A gently curved pathway leads through the landscaped front yard, complementing the home’s inviting aesthetic. The steeply pitched roof and dormer windows complete the picturesque look, creating a cozy yet sophisticated retreat.
2. Where is University Park?

University Park is a prestigious enclave in Dallas County, Texas, known for its tree-lined streets, elegant homes, and vibrant community. Home to Southern Methodist University, it blends academic charm with upscale suburban living. With top-rated schools, scenic parks, and a variety of dining and shopping options, University Park offers a refined yet welcoming atmosphere. Its central location provides easy access to downtown Dallas while maintaining a peaceful, residential feel.
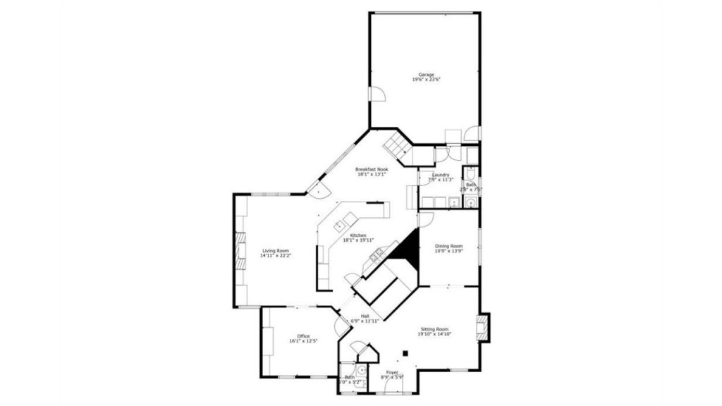
3. Ground Floor layout

This well-planned ground floor seamlessly blends functionality with comfort. A spacious living room flows into an open-concept kitchen and breakfast nook, ideal for gathering. A formal dining room and sitting room add elegance, while a private office offers a quiet retreat. Multiple bathrooms and a convenient laundry room enhance practicality. With ample storage and a two-car garage, this level is designed to accommodate both daily life and special occasions effortlessly.
4. Second Floor layout

Designed for comfort and privacy, the second floor features four generously sized bedrooms, including a luxurious primary suite with a spa-like bath and expansive walk-in closet. A central sitting room provides a cozy space to unwind, while additional bathrooms ensure convenience for all. Large windows brighten each room, enhancing the inviting atmosphere. Thoughtfully arranged, this level offers a perfect balance of personal space and shared comfort for families of all sizes.
5. Entryway with Timeless Charm

This inviting entryway blends classic elegance with modern warmth. Rich hardwood floors set a warm foundation, complemented by soft white walls and arched openings that enhance the airy feel. A striking black-framed mirror mimics the look of a window, adding depth and character. The console table, with its live-edge wood top and sleek metal legs, pairs beautifully with a vintage-inspired lamp and fresh florals. To the side, a graceful staircase with wrought-iron balusters completes the refined aesthetic.
6. Home Office with Cozy Touches

This sophisticated home office blends function with charm, featuring built-in cabinetry in a soft cream finish for ample storage. Wide-plank hardwood floors ground the space, while natural light filters through classic plantation shutters. A rustic wooden desk adds warmth, paired with a sleek black office chair. The plush pink tufted sofa introduces a subtle pop of color, creating a cozy reading nook. Thoughtful accents, like framed photos and fresh flowers, make this workspace both inspiring and inviting.
7. Warm Living Room

This charming living space strikes the perfect balance between comfort and sophistication. A plush L-shaped sectional anchors the room, accented with soft pillows for a cozy feel. Built-in cabinetry and open shelving provide ample storage while framing the sleek fireplace. Natural light floods in through expansive wood-framed windows, enhancing the airy ambiance. A pastel-toned area rug adds a subtle touch of color, while warm wood flooring ties the space together with timeless appeal.
8. Inviting Kitchen and Dining

This open-concept kitchen and dining area blends elegance with charm. A round farmhouse-style table with vintage-inspired chairs sets a welcoming tone, complemented by a gold geometric chandelier overhead. The kitchen features soft cream cabinetry, a spacious island with sleek white countertops, and transparent barstools that add a modern touch. Warm wood flooring unifies the space, while natural light streams in through large windows, creating an airy and inviting atmosphere perfect for gathering.
9. Elegant Kitchen

This spacious kitchen is designed with both elegance and functionality in mind. Featuring creamy white cabinetry with gold hardware, sleek quartz countertops, and a gas cooktop with a custom range hood, the space is both stylish and practical. A large island with a built-in sink and dishwasher provides ample prep space while allowing for seamless interaction with the adjacent dining and living areas. The warm tile flooring complements the cabinetry, and recessed lighting ensures a bright and inviting atmosphere. Large windows bring in natural light, enhancing the open and airy feel of the space.
10. Stylish Living Space

This inviting living room features a warm and earthy aesthetic with rich leather armchairs, a rustic wood coffee table, and dark hardwood flooring. A striking fireplace with an elegant mantel serves as the focal point, adorned with minimalist décor and a colorful, modern cow painting that adds a playful touch. The arched entryway leads to a sophisticated dining area with a statement chandelier, plush upholstered chairs, and plantation shutters that allow natural light to filter in. The combination of textures, neutral tones, and bold artwork creates a perfect balance of comfort and contemporary charm.
11. Living Space with Rustic Charm

This stylish living room blends warmth and elegance with rich brown leather seating, a rustic wood coffee table, and dark hardwood floors. A sleek fireplace adds charm, topped with modern décor and a bold cow painting. Large windows with plantation shutters bring in natural light, enhancing the airy feel. The arched entryway leads to a dining area, creating a seamless flow in this inviting, open-concept space.
12. minimalistic dining Room

This refined dining space blends rustic charm with timeless elegance. A weathered wood table sits at the center, surrounded by tufted velvet chairs that add a touch of sophistication. Overhead, a cascading crystal chandelier casts a warm glow, highlighting the soft neutral palette. A sleek sideboard provides storage and a stylish bar setup, while a lush fiddle-leaf fig in a decorative planter breathes life into the room.
13. Primary Suite with Vaulted Ceilings

This inviting primary suite boasts a serene atmosphere with soft neutral tones and a vaulted ceiling that enhances the airy feel. A wrought-iron bed frame is dressed in crisp white linens, complemented by colorful accent pillows. Rustic nightstands and wall sconces add warmth, while a vintage-inspired area rug softens the rich hardwood floors. A dedicated workout space offers versatility, making this retreat both stylish and functional.
14. elegant Bathroom

Wrapped in warm marble tones, this elegant bathroom blends timeless design with modern comfort. Dual vanities with rich granite countertops provide ample space, while oil-rubbed bronze fixtures add a touch of sophistication. The oversized walk-in shower, encased in frameless glass, features sleek black hardware for a bold contrast. A deep soaking tub invites relaxation, creating a serene retreat within this thoughtfully designed space.
15. Cozy Shared Bedroom

This delightful shared bedroom features two twin beds with elegant black metal frames, creating a cohesive and stylish look. Soft neutral tones on the walls and bedding are complemented by playful pops of color from the tie-dye blankets, adding a fun and youthful touch. The rich hardwood floors provide warmth, while ample natural light from the large windows brightens the space. A built-in desk and shelving offer functionality, making this room both practical and inviting.
16. Bright Living Space

This cozy and inviting living space features a large, plush sectional sofa in a neutral beige tone, adorned with decorative throw pillows in warm earthy hues. The room is illuminated by ample natural light streaming in through multiple large windows, which offer a serene view of lush greenery outside. The soft carpeting enhances the comfort of the space, while the marble-topped coffee table with a sleek metal frame adds a touch of sophistication. The sloped ceiling and architectural details give the room a charming, intimate feel, making it an ideal retreat for relaxation or casual gatherings.
17. Serene Backyard Retreat

This inviting outdoor oasis blends comfort and elegance, featuring a shimmering pool with a built-in spa for ultimate relaxation. A curved edge and diving board add a playful touch, while lush greenery and mature trees provide natural shade. The covered patio extends the home’s living space, complete with cozy seating and overhead fans for year-round enjoyment. Neutral-toned siding and black-trimmed windows create a timeless aesthetic, making this backyard a perfect retreat.
Listing agent – Annalee Aston @ Compass via Compass