
Nestled in the heart of Broadview Heights, OH, this stunning custom Colonial home listed at $515,000 offers 4 bedrooms, 2.5+ baths, and 3,089 sq. ft. of refined living space on a picturesque 0.47-acre lot. Thoughtfully designed with timeless charm and modern upgrades, this residence blends classic architecture with contemporary comfort, creating the perfect setting for elegant living.
1. classical charm exterior

This beautifully designed custom Colonial home in Broadview Heights exudes timeless appeal with its symmetrical facade and inviting presence. A covered front porch welcomes you inside, where large windows and thoughtful architectural details create a warm, light-filled atmosphere. The expansive lot provides ample outdoor space, perfect for relaxation or entertaining, while the home’s elegant design blends tradition with modern comfort.
2. Where is Broadview Heights?

Broadview Heights is a welcoming suburban community in northeastern Ohio, offering a perfect blend of small-town charm and modern convenience. Known for its tree-lined streets, spacious homes, and top-rated schools, it provides a peaceful retreat while remaining close to Cleveland’s bustling downtown. With parks, shopping, and dining just minutes away, plus easy highway access, Broadview Heights is an ideal location for those seeking both comfort and connectivity.
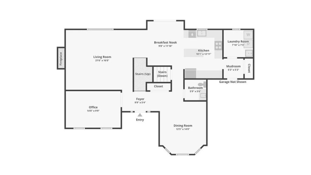
3. Main Level layout

This thoughtfully designed main level offers a balance of functionality and elegance. A spacious living room with a fireplace flows effortlessly into the breakfast nook and kitchen, creating an inviting atmosphere for daily living. The formal dining room features a charming bay window, while a private office provides a quiet retreat. A mudroom, laundry room, and half bath add convenience, ensuring every space is designed for comfort and efficiency.
4. Upper Level layout

The second floor offers a well-appointed layout with four generously sized bedrooms, including a luxurious primary suite featuring a walk-in closet and an en-suite bath with a soaking tub and dual vanities. Three additional bedrooms share a full bath, providing ample space for family or guests. Overlooking the great room below, the open design enhances natural light and flow, creating a perfect blend of comfort and functionality.
5. Lower Level layout

The spacious basement offers a versatile layout, featuring a media room, ample storage, and an additional bathroom for convenience. A large unfinished area provides endless possibilities, whether for a home gym, workshop, or future recreation space. The mechanical room ensures easy access to essential systems, while the open design allows for customization to fit any lifestyle.
6. Open concept living

This bright and airy living space seamlessly connects to the dining and kitchen areas, creating a welcoming flow. A plush seating arrangement provides comfort, while a large window framed in warm wood floods the room with natural light. The open staircase, accented with wooden railings, adds architectural interest and a sense of grandeur. Soft neutral tones and thoughtful decor create an inviting atmosphere, perfect for both relaxation and entertaining.
7. Warm Kitchen and Dining Area

This charming kitchen and dining space blends classic design with modern convenience. Rich wood cabinetry and sleek stainless steel appliances create a timeless aesthetic, while a central island provides added functionality. A round wooden table sits beneath a stylish pendant light, fostering a cozy dining experience. Sliding glass doors open to lush outdoor views, filling the room with natural light. Thoughtful details make this space both elegant and inviting.
8. Functional Kitchen

This beautifully designed kitchen blends classic warmth with modern convenience. Rich oak cabinetry provides ample storage, complemented by sleek quartz countertops and a crisp white backsplash. A deep farmhouse sink sits beneath a sunlit window, while stainless steel appliances add contemporary contrast. At the center, a dark-stained island serves as both a workspace and gathering spot. Soft recessed lighting enhances the inviting ambiance, making this kitchen the heart of the home.
9. Timeless Dining Room

This inviting dining space exudes warmth and tradition, featuring rich oak accents and a seamless blend of comfort and functionality. A graceful chandelier casts a soft glow over the solid wood table, surrounded by matching spindle-back chairs. The built-in hutch, with glass-paneled doors, offers an elegant showcase for fine glassware. Crown molding and wainscoting add depth, while natural light enhances the room’s welcoming appeal—perfect for gatherings both casual and formal.
10. Refined Home Office

This stately home office blends productivity with personality, featuring rich oak furnishings and a thoughtfully curated workspace. A commanding wooden desk anchors the room, complemented by a matching built-in bookcase that offers ample storage. Sunlight filters through lace-draped windows, casting a warm glow on the elegant blue and beige palette. Wall-mounted guitars add a creative touch, infusing the space with artistic charm while maintaining an air of refined professionalism.
11. Classic Bedroom

This inviting bedroom radiates warmth with its rich wood furnishings and soft, neutral tones. A vaulted ceiling enhances the sense of space, while a ceiling fan adds a refreshing breeze. The plush bed, adorned with deep-hued linens and a textured throw, creates a restful retreat. Framed photographs and delicate floral accents lend a personal touch, while the dresser’s large mirror reflects natural light, brightening the room. Thoughtfully arranged, this space feels both timeless and comforting.
12. Elegant Primary Bathroom

This well-appointed bathroom offers both luxury and functionality, featuring a spacious dual-sink vanity with warm wood cabinetry and brass accents. A large mirror reflects soft lighting, enhancing the airy feel. The deep soaking tub sits beneath a sunlit window, framed by rich burgundy drapery for a classic touch. Plush towels and a soft rug add comfort, while thoughtful details like a built-in makeup area and glass-enclosed shower complete this inviting retreat.
13. Bright and Airy Bedroom

This inviting bedroom boasts a serene ambiance with soft natural light pouring through its bay windows. Sheer lavender drapes frame the picturesque view, adding a touch of elegance. The neutral-toned walls and plush carpeting create a cozy yet spacious feel. A white ceiling fan with a central light fixture enhances both comfort and charm. Subtle wood trim accents the windows and baseboards, bringing warmth to this peaceful retreat.
14. Backyard Oasis

This expansive backyard offers a perfect blend of open space and natural beauty. A lush green lawn stretches across the landscape, framed by mature trees that provide shade and privacy. A charming shed nestled among the trees adds both functionality and character. The open sky and scattered foliage create a peaceful retreat, ideal for outdoor gatherings or quiet moments in nature. A small set of steps leads to the home, seamlessly connecting indoor and outdoor living.
Listing agent – Jamie Powers @ Howard Hanna – Medina via realtor.com