
Nestled on a sprawling 1.58-acre lot in Baltimore, this exquisite 7,672 sq. ft. Georgian-style estate offers timeless elegance and modern luxury. Priced at $2,988,880, the home features six spacious bedrooms and multiple fireplaces, creating a warm and inviting atmosphere. The property includes a fully renovated elevator, a climate-controlled wine room, and a butler’s pantry for seamless entertaining. Outside, enjoy a heated pool and a charming guesthouse. Recent upgrades include a new roof and enhanced drainage system, ensuring long-term comfort and peace of mind.
1. Estate with Timeless Charm

The exterior of this stately Georgian home embodies timeless elegance and grand architectural charm. Its classic red brick facade is accented by a slate roof, symmetrical windows, and dormers that reflect the traditional Georgian style. A welcoming front entrance features an arched doorway with decorative molding, while multiple chimneys add historic character. The meticulously landscaped grounds include winding stone pathways, lush gardens, and a private heated pool with a charming guesthouse nearby. A spacious driveway and attached garage provide convenience and curb appeal.
2. Where is Baltimore, MD?

Baltimore, MD, is a historic city located in the Mid-Atlantic region of the United States, along the Patapsco River and the Chesapeake Bay. Known for its rich maritime history, Baltimore is home to the iconic Inner Harbor, where visitors can explore the National Aquarium, historic ships, and waterfront dining. The city boasts a diverse cultural scene with renowned museums like the Walters Art Museum and the Baltimore Museum of Art. It’s also famous for its vibrant neighborhoods, including Fells Point, Canton, and Mount Vernon, each offering unique charm, architecture, and local flavor.
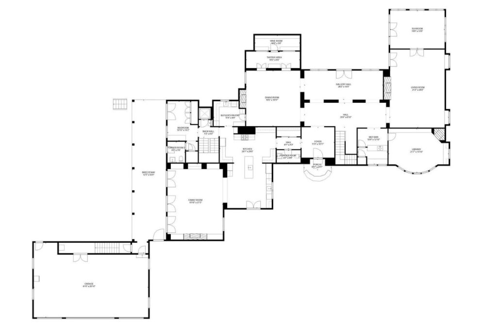
3. Ground Floor Layout

The ground floor of this home features a well-organized layout with a mix of formal and informal spaces. It includes a spacious foyer leading to a grand hall and gallery hall, connecting to the living room and sunroom. A library provides a quiet retreat, while the kitchen sits centrally with access to a breakfast area and butler’s pantry. The family room and breezeway offer casual gathering spaces. Additional amenities include a bedroom with an attached bathroom, a powder room, and a large garage connected via the breezeway.
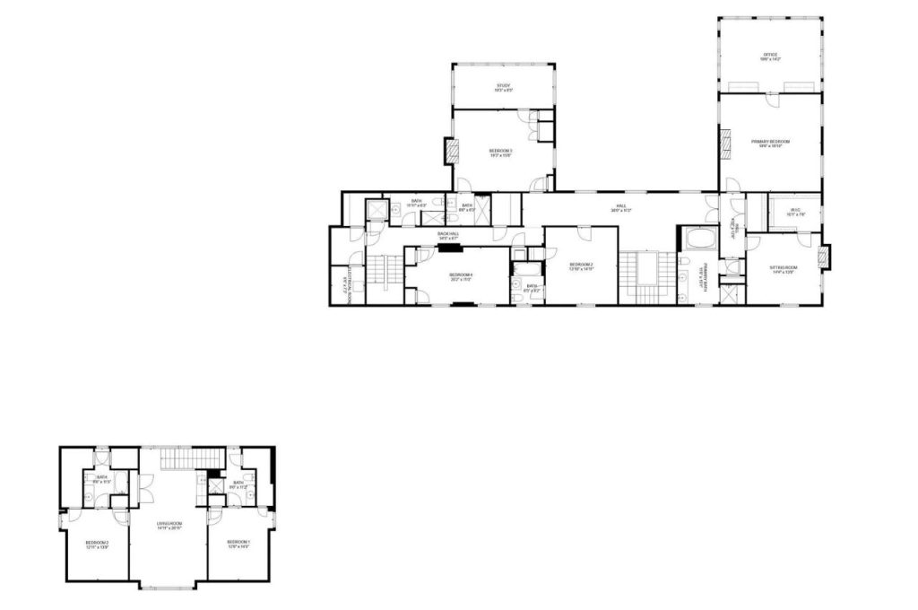
4. upper level layout

The upper floors of this home offer a well-designed layout with multiple bedrooms and functional spaces. The primary bedroom includes an en-suite bathroom, walk-in closet, and an attached sitting room, providing a private retreat. Additional bedrooms feature nearby bathrooms for convenience. An office and a study offer dedicated workspaces, while hallways connect all rooms seamlessly. The second floor ensures both comfort and practicality with ample living areas and thoughtful room placement.
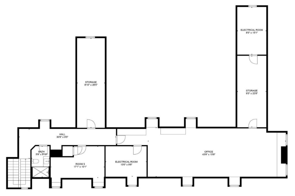
5. attic layout

The attic of this home is designed for practicality and functionality, featuring a combination of storage and utility spaces. It includes multiple storage rooms ideal for organizing belongings and an electrical room for housing essential systems. An office space provides a flexible area for work or hobbies, while an additional room and a bathroom enhance versatility. The layout ensures easy access through a central hall, balancing utility with convenience.
6. Poolside Retreat

The pool house offers a blend of recreation and relaxation, featuring a spacious gym ideal for fitness enthusiasts and a cozy media room perfect for unwinding. With a convenient bathroom and a hall connecting the spaces, it provides functionality and comfort. The design promotes seamless indoor-outdoor living, with easy access to the patio and pool area, making it an ideal spot for entertaining or enjoying leisurely days by the water.
7. Elegant Gallery Hall

The gallery hall of this home exudes elegance and warmth, featuring a harmonious blend of classic and modern elements. Arched doorways and large French doors allow natural light to flood the space, enhancing the bright, airy atmosphere. Hardwood flooring and marble accents add a touch of sophistication, while tasteful wall sconces provide soft lighting. A patterned runner and rich wooden furniture in adjacent spaces create an inviting, welcoming ambiance that sets the tone for the rest of the home.
8. classic living room

The living room of this home exudes warmth and sophistication, blending classic elegance with inviting comfort. Plush seating arrangements, including sofas and armchairs, are thoughtfully positioned around a charming fireplace, creating a cozy focal point. Large arched doorways and windows enhance the sense of openness, allowing natural light to fill the space. Rich hardwood floors and a patterned area rug add warmth, while tasteful décor and well-placed lamps contribute to the room’s welcoming ambiance.
9. Vibrant Sunroom

The sunroom of this home offers a bright and inviting space filled with natural light streaming through expansive windows. The vibrant decor, featuring bold floral patterns and pops of turquoise and orange, creates a cheerful atmosphere. Plush seating provides a comfortable spot to relax and enjoy views of the outdoors, while the neutral-toned carpet adds warmth to the room. This charming sunroom is the perfect blend of comfort and style, ideal for unwinding or entertaining in a serene setting.
10. sophisticated dining

The dining area exudes elegance with its rich hardwood flooring, vibrant blue accent walls, and classic wainscoting. A grand chandelier hangs above the polished wooden dining table, surrounded by upholstered chairs, creating a sophisticated atmosphere. The intricate rug adds warmth and color, while the fireplace and vintage cabinetry offer timeless charm. Natural light streams through large windows, enhancing the room’s inviting ambiance — ideal for hosting memorable gatherings.
11. elegant Kitchen

The kitchen boasts a perfect blend of elegance and functionality, featuring high-end stainless steel appliances and ample cabinetry for storage. Granite countertops and a spacious central island with a sink enhance practicality, while large arched windows flood the space with natural light. Soft blue walls add a calming ambiance, complemented by warm hardwood floors. With its open layout and cozy dining nook, this kitchen is ideal for both everyday meals and entertaining guests.
12. Serene Bedroom

The bedroom exudes tranquility with its soft pastel blue walls and ample natural light streaming through large windows. A plush bed with an ornate upholstered headboard serves as the room’s focal point, complemented by cozy carpeting underfoot. A classic fireplace adds warmth and charm, while the clean white trim and ceiling details enhance the room’s elegance. Spacious and serene, this bedroom offers a perfect retreat for rest and relaxation.
13. Marble Bathroom

The bathroom exudes elegance with its soothing light blue walls and polished marble flooring. A large vanity with white cabinetry offers ample storage space, topped with a pristine marble countertop that houses dual sinks. A spacious mirror, framed by stylish light fixtures, enhances the room’s brightness. Natural light filters through a sizable window adorned with lush green plants, adding warmth. The clean, modern design is completed by a well-placed toilet and sleek fixtures, creating a serene, spa-like atmosphere.
14. Garage

The garage entry of this home features a classic brick exterior with three spacious black garage doors, offering ample parking and storage space. A gently sloped paved driveway provides easy access, while lush greenery and mature trees frame the structure, adding natural charm. The upper level includes an elegant arched window, enhancing the architectural appeal. Well-placed exterior lighting flanks the garage doors, ensuring visibility and security, making this a functional yet stylish entrance.
15. Poolside Oasis

The pool area of this home offers a serene and inviting outdoor retreat. Surrounded by a natural stone patio, the circular pool shimmers under the sun, providing a refreshing oasis. Elegant outdoor seating with plush cushions creates a cozy space for relaxation or social gatherings. Tall trees and lush greenery offer privacy and a touch of nature, while the nearby pool house with expansive windows adds convenience and charm. This well-designed area is perfect for both entertaining and unwinding.
Listing agent – Jennifer Langford @ Hubble Bisbee Real Estate Group via Realtor.com