
Nestled on 16.25 acres in Warren, WI, this stunning 3,166 sq-ft modern farmhouse listed at $1,270,000 blends rustic charm with luxury. Featuring 5 bedrooms and 3 bathrooms, the home boasts an open-concept kitchen with a walk-in pantry, a serene three-season porch, and a primary suite with a spa-like bath, including a soaking tub and multi-head walk-in shower overlooking the countryside. Amenities include in-floor heating, a 3-car garage, raised garden beds, apple trees, a food plot, ATV trails, and a 40×80 pole shed with industrial-grade doors.
1. Modern Farmhouse with Rustic Elegance

This modern farmhouse boasts a charming yet sophisticated exterior with crisp white board-and-batten siding, complemented by dark brown garage doors and stone accents. A welcoming front porch with rustic wooden beams and stone pillars offers a cozy place to relax, complete with red rocking chairs. The expansive driveway leads to a spacious 3-car garage, providing ample parking and storage. Surrounded by open countryside, this home blends classic farmhouse aesthetics with contemporary elegance, creating an inviting and picturesque curb appeal.
2. Where Is Warren, WI?

Warren, Wisconsin, is a town located in St. Croix County, offering residents a rural atmosphere with a strong sense of community. The area is characterized by its scenic landscapes, including parks and open spaces, providing ample opportunities for outdoor activities. Residents often own their homes, contributing to the town’s stable and welcoming environment. Local amenities include various bars and recreational facilities, enhancing the small-town charm of Warren. The town’s proximity to nearby cities like Roberts and Clifton allows for convenient access to additional services and employment opportunities. Overall, Warren embodies the quintessential rural Wisconsin lifestyle, balancing tranquility with community engagement.
3. Farmhouse with Detached Shed

The exterior of this property features a charming, modern farmhouse-style home with a large, well-maintained front lawn and a long gravel driveway leading up to both the house and the spacious pole shed. The house boasts a welcoming covered porch with wood accents, and its white siding with dark trim creates a clean, elegant look. The pole shed, with its white metal siding and dark brown garage door, provides ample storage and workspace. Surrounded by mature trees and open land, this property offers both privacy and scenic views, making it ideal for comfortable rural living.
4. Expansive Backyard

The back of this home showcases a beautiful combination of modern design and rural charm. The exterior features crisp white siding contrasted by black-framed windows, creating a sleek, contemporary look. Large windows fill the home with natural light, while a walk-out basement offers direct access to the backyard. A covered, screened-in porch on the upper level provides a comfortable outdoor living space with scenic views. The sloped yard adds dimension to the property, enhancing the home’s connection to the natural landscape.
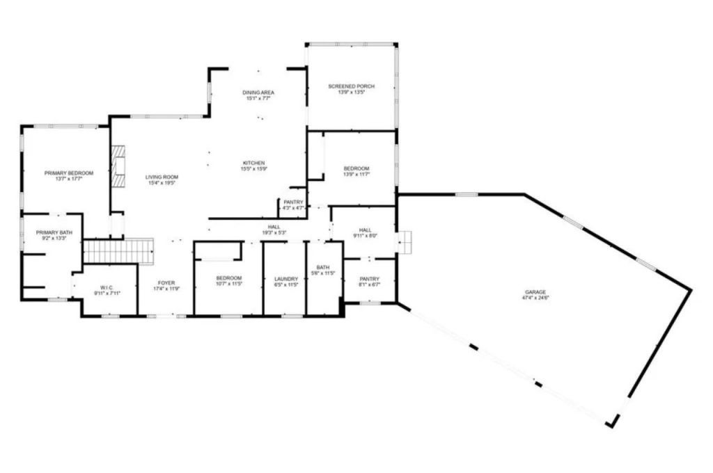
5. Open-Concept Living

The ground floor of this home offers a spacious and functional layout designed for modern living. The open-concept living room seamlessly flows into the kitchen and dining area, creating an inviting atmosphere. A screened porch extends the living space, perfect for enjoying the outdoors. The primary suite features a luxurious en-suite bath and walk-in closet, providing a private retreat. Additional bedrooms, a full bath, a laundry room, and two pantries add convenience. A large attached garage ensures ample storage and parking.
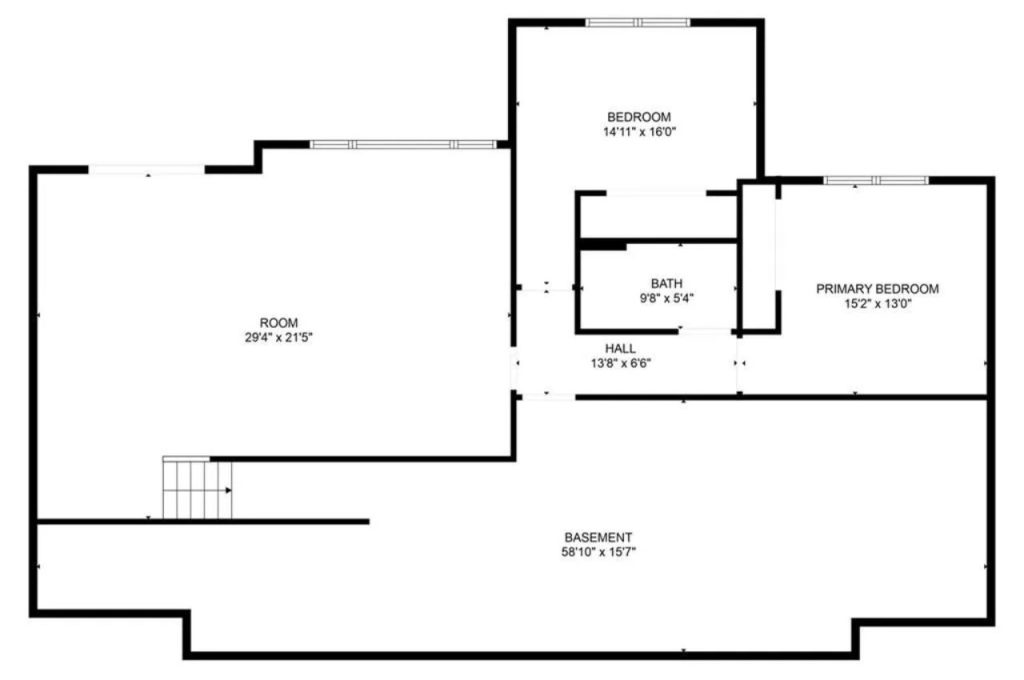
6. Spacious Second Floor with Versatile Living

The second floor of this home offers a private retreat with two spacious bedrooms, including a luxurious primary suite. A well-appointed bathroom is centrally located for convenience. A large open room provides versatile space for a home office, entertainment area, or additional living space. The layout ensures comfort and privacy while maintaining a seamless connection to the rest of the home. With ample natural light and functional design, this level is perfect for relaxation and daily living.
7. Foyer with Rustic Charm

The foyer of this home is warm and inviting, featuring a grand wooden door with glass panels that allow natural light to stream in. A blue patterned rug anchors the space, complementing the light hardwood flooring. To the left, a rustic wooden table with a decorative mirror and vase adds charm, while a brick accent wall on the right enhances the home’s character. A cozy wooden bench sits beside the staircase, which is accented by elegant black iron railings, creating a welcoming and stylish entryway.
8. Elegant Living Room with Fireplace

The living room exudes warmth and sophistication with a stunning floor-to-ceiling stone fireplace as its focal point. A rustic wooden mantel complements the built-in white cabinetry and floating shelves adorned with decorative accents. Natural light pours in through large windows, offering scenic outdoor views. Rich leather seating, a soft area rug, and a stylish chandelier enhance the inviting ambiance. This space seamlessly blends modern elegance with cozy farmhouse charm, perfect for relaxation or entertaining guests.
9. Open Kitchen and Dining

The kitchen and dining area of this home exudes warmth and elegance with its bright, open-concept design. A large island with a rich wooden base and striking blue barstools serves as the centerpiece, complemented by pendant lighting with a classic touch. White cabinetry, a subway tile backsplash, and a custom range hood add to the timeless aesthetic. Adjacent, the dining area features a rustic wooden table bathed in natural light from expansive windows, offering serene views of the outdoors for a perfect blend of charm and functionality.
10. Cozy Screened Porch

This porch offers a cozy retreat with a rustic yet modern aesthetic. Surrounded by large screens, it provides breathtaking views of the lush landscape and vibrant autumn foliage. The natural wood ceiling and walls enhance its warm, inviting ambiance, while the dark wicker furniture with plush cushions adds a touch of comfort. A soft, textured rug covers the wooden floor, creating a relaxed atmosphere. With recessed lighting and a ceiling fan, this space is perfect for unwinding in any season.
11. Serene Bedroom

The primary bedroom exudes a cozy yet elegant ambiance with its soft neutral color palette and thoughtfully selected furnishings. The centerpiece is a large wooden bed with a tufted headboard, dressed in gray and coral bedding accented with decorative pillows and a textured throw blanket. Matching wooden nightstands sit on either side of the bed, each adorned with a small plant and decor. Expansive windows flood the room with natural light and offer a scenic view of colorful autumn foliage. A plush gray armchair with nailhead trim sits near the window, adding comfort and style. The room’s soft carpeting and ceiling fan complete the inviting atmosphere.
12. Stylish Bathroom

The bathroom showcases a sophisticated and serene design with muted green walls that create a calming atmosphere. A white double vanity with marble countertops provides ample storage and is complemented by brushed nickel faucets and elegant framed mirrors. Natural light pours in through a large window, enhancing the airy feel of the space. A glass-enclosed shower adds a modern touch, while built-in shelves offer practical storage. Light wood-look flooring ties the design together, blending warmth and style for a spa-like retreat.
13. Serene Nursery

This room is designed with a soft and soothing ambiance, perfect for a nursery or child’s room. The light walls and plush gray carpeting create a calming backdrop, while the large windows allow natural light to brighten the space and offer views of the outdoors. A white crib with delicate bedding sits beneath a small decorative shelf adorned with charming accents. A cozy armchair with a fluffy pillow and blanket provides a comfortable spot for relaxation. The wooden rocking horse adds a touch of warmth and nostalgia, completing this inviting and serene space.
14. Bedroom with Rustic Charm

This bedroom features a cozy and rustic charm with its soft blue walls and natural light pouring in from the large window. The black metal bed frame, paired with a striped blue and white comforter, creates a relaxed and inviting atmosphere. A rustic wooden dresser and matching bedside table enhance the room’s warm, earthy tones. The neatly arranged bookshelf labeled adds a whimsical touch, making the space feel both stylish and functional. Plush carpeting and natural light complete the room’s serene and welcoming vibe.
15. Bright Laundry Space

The laundry room is bright and functional, featuring a sleek and modern design. A large window allows natural light to flood the space, complementing the soft gray walls and light wood-look flooring. The room includes a white washer and dryer set, neatly positioned side by side. Above them, a rustic wooden shelf holds glass jars and decorative items, adding warmth and character. A built-in wooden countertop with a white cabinet below provides ample space for folding laundry, while a small framed artwork and a potted plant enhance the cozy, inviting feel of the room.
16. Versatile Pole Shed

The spacious pole shed features a high vaulted ceiling supported by exposed wooden beams, creating a rustic yet functional atmosphere. Its expansive concrete floor provides ample room for vehicles, equipment, and projects. Large garage doors allow easy access, while the bright overhead lighting ensures visibility throughout. Organized workbenches and storage areas line the walls, offering practical space for tools and maintenance. With its blend of durability and versatility, this pole shed is ideal for both work and storage needs.
Listing agent – Rebekah L Chamberlain @ Keller Williams Select Realty via Realtor