
This spacious two-story home in East Earl, PA, features a classic suburban architectural style with clean lines and functional design. The exterior showcases beige siding with contrasting dark shutters and a symmetrical facade, complemented by a double garage and a well-maintained front lawn. Built in a traditional style, the home offers 4 generously sized bedrooms and 2.5 baths. The finished lower level includes a cozy fireplace and walkout access to a fenced rear yard, where you will find a large patio with a fire pit and built-in seating wall — perfect for outdoor gatherings. The first floor boasts a family room with a gas fireplace, an office, living room, formal dining room, and an eat-in kitchen equipped with an island and double oven. Two of the bedrooms feature walk-in closets, enhancing storage. Additionally, the rear deck provides a fabulous view of the surrounding landscape. Priced at $499,900, this home offers ample living space and modern amenities in a desirable Pennsylvania community.
Entryway

This welcoming entryway features a white front door with a half-circle window above, allowing natural light to brighten the space. The walls are painted a soft beige, complementing the warm hardwood flooring. A patterned rug in muted gray and white tones anchors the doorway area. To the right, a wooden staircase with natural finish balusters and handrails leads to the upper floor, contributing a classic touch. Beyond the stairs, a glimpse of a cozy living area is visible, furnished with an upholstered armchair and side tables, suggesting an inviting and warm home environment.
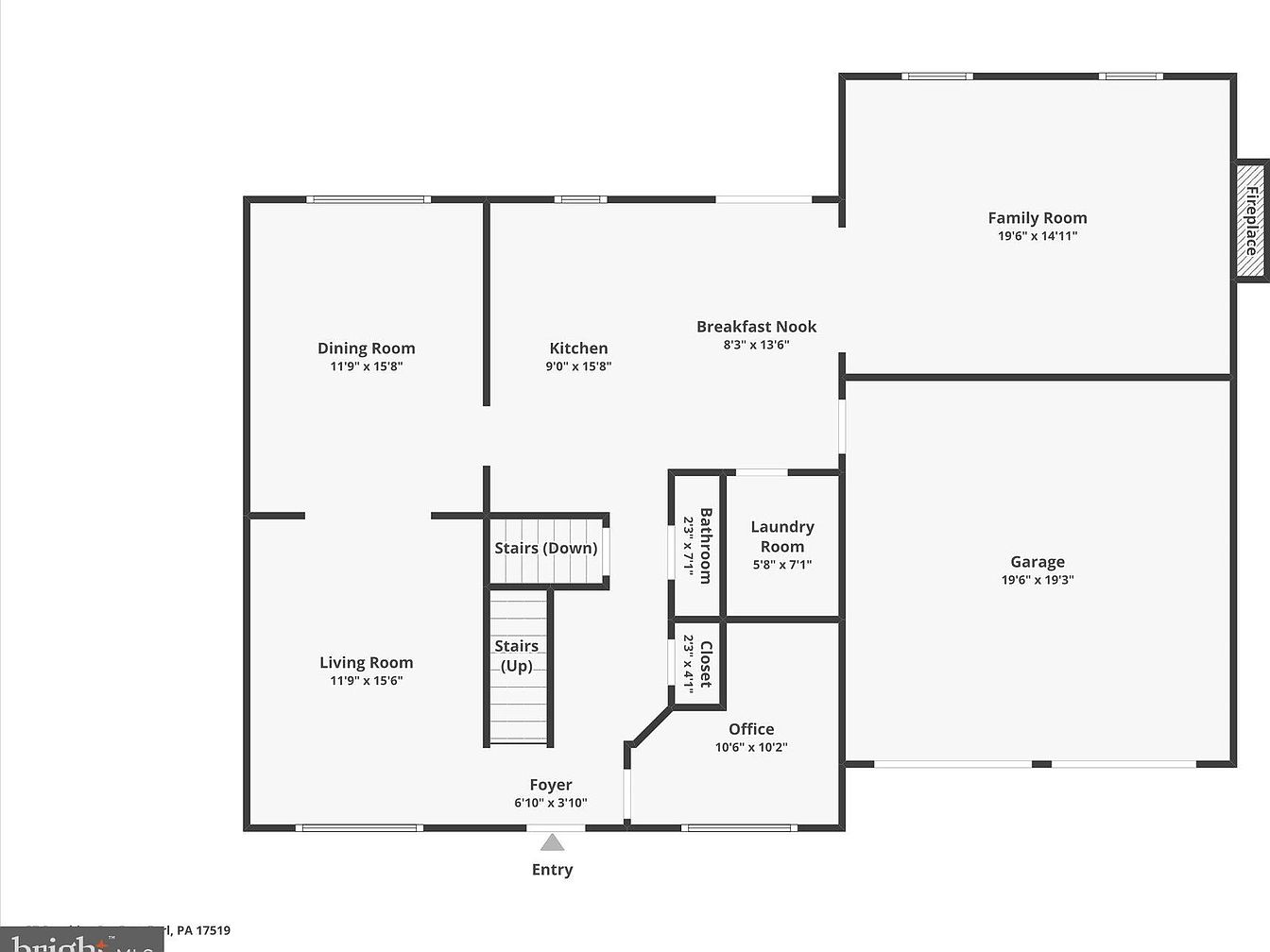
Main Floor Layout

This detailed floor plan presents a well-organized main level with clearly defined living spaces. The entry opens into a modest foyer and a centrally located staircase connecting upstairs and downstairs. To the left, the living room and dining room create a traditional gathering space with wide windows. The kitchen, adjacent to the dining room, stretches into a breakfast nook for casual meals and leads into the spacious family room, which includes a cozy fireplace. On the right side, practical rooms such as a laundry room, bathroom, and office are efficiently placed next to the large attached garage, ensuring convenience and good traffic flow.
Upper Floor Layout

This upper floor plan highlights a thoughtfully designed living space with four bedrooms and ample storage. The primary bedroom stands out with its generous size and attached primary bathroom and walk-in closet, providing a private retreat. Two additional full bedrooms share access to a centrally located bathroom, enhancing convenience. Each room features ample closet space, some with walk-in designs, reflecting efficient use of space. The staircase centrally positions accessibility for descending to the lower level. Overall, the layout blends comfort and functionality with clear separation of private and family areas.
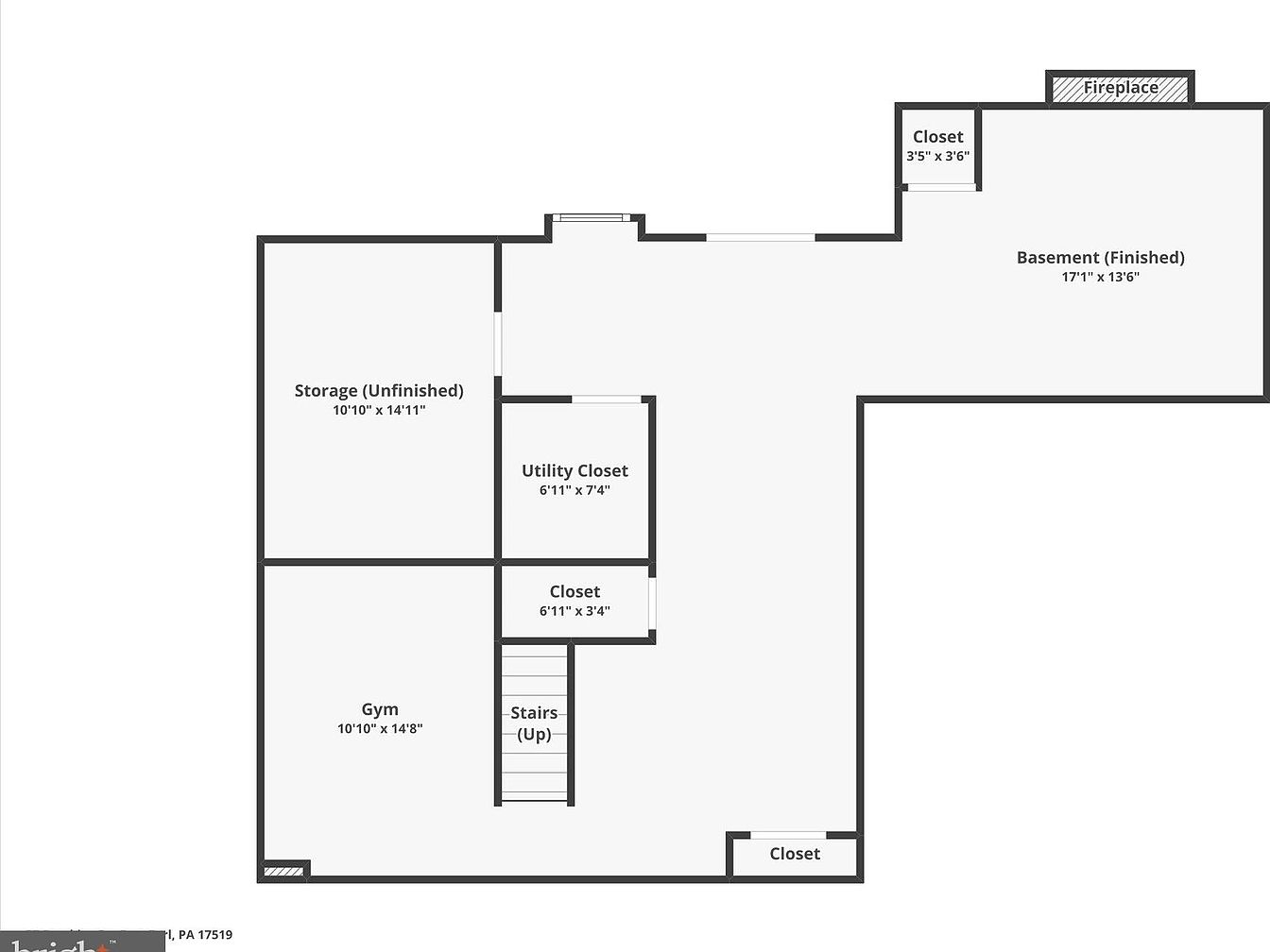
Finished Basement Layout

This finished basement offers a spacious, open layout featuring a large main room measuring 17’1″ by 13’6″, complete with a cozy fireplace and nearby closet space for storage. The basement connects directly to dedicated sections, including an unfinished storage room and a gym area, each over 10 feet by nearly 15 feet in size. Several additional closets and a utility closet are thoughtfully placed along the corridor and near the staircase leading upstairs. The design balances functional storage and workout areas with a comfortable living zone anchored by the fireplace for warmth and ambiance.
Living area with Workspace Nook

This living area features a neutral palette with soft beige walls and plush light gray carpeting that creates a warm, inviting atmosphere. The layout is open and functional, with a tufted dark gray sofa on the right complemented by a patterned armchair by the large window, both of which offer comfortable seating. The window is adorned with sheer gray curtains, allowing natural light to brighten the space gently. A small wooden side table with a plant adds a touch of nature, while the ceiling fan with wooden blades provides practical airflow. A modern white office chair and rustic wood cabinet suggest a blended space for relaxation and productivity.
Living Room

This living room features a spacious, open layout with soft gray walls and plush light gray carpeting that enhances comfort. A large sage-green sectional sofa spans one side, accented by striped pillows in muted blues, greens, and cream tones, adding subtle pops of color. Opposite, deep brown leather recliners offer a nostalgic yet cozy seating option. A round wooden coffee table with black metal accents anchors the center. Soft lighting includes a classic table lamp by the sofa and a ceiling fan with wood blades and a soft-glow light fixture. A large painting of abstract forest trees adds natural, artistic warmth, and the arched doorway leads seamlessly into a bright kitchen-dining space, emphasizing flow and openness.
Dining Room

This dining area presents a cozy, traditional aesthetic with warm wood tones dominating the space. The medium-tone hardwood floor complements the wooden dining table and chairs, which feature cushioned seats tied with fabric bows in an autumnal floral pattern. Soft beige walls meet white wainscoting, adding subtle architectural interest and a classic touch. A large window with sheer white curtains allows natural light to fill the room while providing views of the outdoors. A charming wooden rocking chair sits in the corner, and a sideboard with vintage-style oil lamps enhances the space’s inviting, homey atmosphere. The chandelier’s elegant, cream-colored glass shade provides warm overhead lighting.
Kitchen

This kitchen features a warm and inviting layout highlighted by natural wood cabinetry paired with light gray countertops that soften the space. A central island with a smooth surface offers additional workspace and casual seating with two dark wood stools tucked beneath. The hardwood flooring complements the cabinetry’s honey tones, enhancing the room’s cohesive aesthetic. Stainless steel appliances, including a double-door refrigerator and built-in oven, provide modern functionality. Pendant lights hang above the island, adding warm illumination, while a decorative tile backsplash behind the cooktop introduces subtle pattern and texture. The open doorway leads seamlessly into adjacent living spaces.
Dining Area

This cozy dining area features a light wood floor that contrasts gently with the soft neutral gray walls, creating an inviting ambiance. A simple square wooden dining table is surrounded by matching chairs with black cushioned seats, offering a comfortable setting for meals. Above, a modern chandelier with a circular metal frame and frosted cylindrical shades adds warmth to the space. Large sliding glass doors open to an outdoor deck, flooding the room with natural light. Through an arched doorway, the living room is visible, furnished with a wall-mounted TV, neutral-toned drapes, and a ceiling fan, maintaining a cohesive and homey decor.
Laundry Room

This compact laundry room features a neat arrangement of essential appliances and storage solutions. Two white front-loading machines—a washer and a dryer—are placed side-by-side against a calming blue-gray wall that creates a soothing atmosphere. Above the appliances, a simple wooden shelf holds a wicker basket and smaller storage box, adding functional yet charming storage. On the left wall, an ironing board with a floral cover hangs neatly from a rack, accompanied by an iron and cleaning equipment, optimizing vertical space. Hooks on the right side hold pet accessories and other items, showcasing a practical, organized, and inviting utility area.
Master Bedroom

This master bedroom features a calming design with soft blue walls that create a restful atmosphere. The neutral beige carpet adds warmth and comfort underfoot, complementing the cool wall color. A large bed with crisp white bedding is centered in the room, adorned with plaid and decorative pillows that add cozy textures. Two classic wooden nightstands flank the bed, each topped with a matching lamp providing symmetrical lighting. A ceiling fan with wooden blades offers both function and style. Opposite the bed, a dark gray dresser provides ample storage, and a bench at the foot of the bed adds a modern touch while offering seating. Natural light streams in from two windows, brightening the space and enhancing the tranquil ambiance.
Bathroom with Dual Vanity

This bathroom features a practical layout with a bathtub and shower combination enclosed by frosted glass sliding doors framed in a gold finish, adding a touch of vintage charm. The floor is covered in neutral-toned tiles arranged in a subtle pattern, providing durability and easy maintenance. A plush brown bath mat lies in front of the tub, contributing warmth and texture. Opposite the tub, a long countertop with two integrated sinks offers convenience for shared use. The walls and ceiling are painted crisp white, enhancing natural light filtering through the white, plantation-style shutter window. A small decorative sign above the toilet paper holder adds a lighthearted, personal touch to this functional and bright bathroom space.
Walk-In Closet

This spacious walk-in closet features a smart and organized layout, optimizing storage with white built-in drawers topped by neatly folded clothing. Multiple white wire racks provide ample hanging space for a colorful variety of garments arranged by type and color, from casual shirts and denim to patterned blouses and dresses. The beige carpet underfoot adds warmth to the neutral, light-colored walls and ceiling, creating a clean and airy atmosphere. On the left, shoes are visible on wire shelving, while boots stand upright on the floor to the right, showcasing attention to detail and functionality in everyday dressing needs.
Cozy Bedroom

This bedroom corner features a calming neutral palette with soft gray walls and plush beige carpeting, creating a serene retreat. A wooden bed frame with a subtle warm tone supports a deep blue comforter, which adds a rich pop of color. The headboard is upholstered with a patterned fabric featuring script text, lending a personalized touch. Positioned beside the bed is a simple wooden nightstand paired with a minimalistic table lamp emitting warm light. A round mirror hangs above the nightstand, enhancing the room’s depth, while a large white letter “N” on the wall introduces a unique decorative element. The closet with white bi-fold doors and a ceiling fan overhead complete the functional yet welcoming space.
Bedroom

This bedroom features a serene and minimalist design with soft, neutral tones enhancing a calm ambiance. A plush, light gray bedspread covers the bed, positioned centrally against a white wall adorned with a large decorative letter “K.” Natural light filters through a sizable window dressed with deep blue curtains and a white roller shade. The carpeted floor contributes warm comfort underfoot. A wooden nightstand beside the bed holds a lamp, clock, and decor, while a functional wooden desk and black office chair occupy the space opposite the bed. A white ceiling fan overhead provides practical air circulation.
Walk-In Closet

This walk-in closet features a practical and organized arrangement with wire shelving extending along two walls, providing ample hanging space for clothing. The neutral color palette, dominated by soft beige carpeting and white walls, creates a clean and calming atmosphere. Clothing is neatly hung, predominantly in muted tones, and a low wooden shoe rack accommodates several pairs of casual sneakers at floor level. A white fabric hamper is placed beneath a window that allows natural light to brighten the room, enhancing the functionality and airy feel of the space. The closet door, with its classic brass knob, adds a subtle traditional touch.
Cozy Bedroom Retreat

This serene bedroom is furnished with a warm, honey-toned wooden bed frame that anchors the space, complemented by a matching small chest at the foot of the bed. Soft gray bedding paired with a cozy plaid throw adds texture and subtle pattern, enhancing the inviting atmosphere. Light wood flooring and a dark area rug with geometric motifs provide contrast and warmth underfoot. Sunlight filters through large windows dressed with muted gray curtains, creating a tranquil ambiance. A classic corner cabinet with glass-paneled doors offers both storage and display, and a ceiling fan with a light fixture adds practicality while maintaining the room’s bright, airy feel.
Bathroom

This bathroom features a clean and practical layout with a light wood vanity topped by a white countertop and integrated sink. The wall color is a soft beige, complementing the warm tone of the cabinetry. A large mirror spans the width above the sink, enhancing the sense of space. The toilet is positioned next to the vanity, while a shower with a maroon curtain adorned with white circular patterns brings a subtle pop of color and pattern to the space. The floor is tiled in neutral tones, blending seamlessly with the overall warm and inviting aesthetic. A framed monochrome artwork hangs on the wall, adding a touch of personality and visual interest.
Basement Lounge

This basement lounge offers a modern and inviting setting featuring light gray walls combined with a darker accent wall creating subtle contrast. A spacious sectional sofa in soft white upholstery occupies the corner, enhanced by decorative pillows in shades of blue and patterned designs. A plush area rug with blue and white tones anchors the seating area on warm wood-look flooring. Minimalist recessed lighting brightens the room, complemented by a sleek, horizontal gas fireplace beneath a wall-mounted flat-screen TV displaying a serene beach scene. A framed sports jersey adds a personal touch alongside a small metal side table and hockey sticks.
Dining Area

This inviting dining nook features a set of four wooden chairs around a square wooden table, providing a cozy spot for meals or socializing. The flooring is a warm, natural wood tone that contrasts pleasantly with the soft grey painted walls. A playful chalkboard hangs above the dining set, offering a personalized touch to the space. In the corner, a faux plant with reddish leaves and delicate twinkle lights adds warmth and character. Visible in the background is a retro-style pale blue refrigerator next to a deep blue cabinet, enhancing the room’s charming and eclectic feel. Recessed ceiling lights brighten the space with even, modern illumination.
Home Gym

This home gym features a clean, minimalist design with light gray walls enhancing its bright and open feel. The flooring appears to be light wood or laminate with a natural tone, adding warmth to the space. Equipment includes a sleek elliptical machine and a versatile weight bench with an attached barbell rack, demonstrating readiness for both cardio and strength training. The organized layout leaves ample room for movement and additional exercises. Recessed ceiling lighting ensures even, unobtrusive illumination. The presence of a small fan and kettlebells suggests attention to comfort and varied workouts in this efficient fitness area.
Outdoor Deck Dining

This spacious outdoor deck is designed for dining and relaxation, featuring a rectangular table with a tile-look surface paired with six wicker chairs that have wooden legs, blending comfort with rustic charm. The warm, natural tones of the composite deck flooring complement the charcoal-colored furniture, while the black metal railings offer unobstructed views of the lush, expansive farmland beyond. An American flag adds a patriotic touch. The open sky and serene countryside create a tranquil backdrop, making this deck ideal for casual meals or social gatherings in a peaceful, rural setting.
Covered Patio Seating

This cozy covered patio features light grey stone flooring arranged in a grid pattern, providing a sturdy and elegant outdoor flooring choice. Sturdy wooden beams support the ceiling, showcasing the natural wood grain, complemented by a dark ceiling fan that adds both function and a touch of rustic charm. Several soft pastel blue Adirondack chairs are arranged casually for relaxed conversation or enjoying the wide open, verdant views beyond the white picket fence. String lights elegantly hang from the ceiling beams, adding ambiance for nighttime gatherings. A covered grill sits on one corner, indicating an ideal space for outdoor cooking and entertaining in a serene countryside setting.
Backyard

This spacious backyard features a well-maintained green lawn leading up to a two-story house with beige siding and white-framed windows. A prominent elevated wooden deck with black metal railings extends from the back of the house, accessible by a side staircase. Below the deck is a covered patio area with outdoor seating in light blue Adirondack chairs, a grill, and a cozy lighting fixture. To the right, a stone fire pit area with matching light blue chairs creates an inviting space for gatherings. The overall aesthetic combines practical outdoor living with a clean and welcoming suburban vibe.
Listing Agent: Michael Gordon of Berkshire Hathaway HomeServices Homesale Realty via Zillow