
This stunning home in Rollins, Montana, exemplifies modern rustic architectural style with its blend of natural materials, including wood pillars and stone bases, complemented by dark siding and a sleek roofline. Built recently with newer construction standards, the house offers an open layout with soaring ceilings over 12 feet on the main level, maximizing natural light through ample windows that frame exceptional views of Flathead Lake. The property features 3 bedrooms on the main level, along with 2 additional bedrooms and a bonus room upstairs, ideal for family living or guests. The large detached garage and separate shop provide abundant space for vehicles and recreational equipment. Situated above Flathead Lake, the home affords breathtaking panoramic views that stretch to the Swan and Mission mountains. Priced at $1,295,000, this residence is perfectly positioned for quiet Montana lake living, yet conveniently close to Lakeside, Kalispell, and Bigfork.
Front Porch Entrance

This front porch features a welcoming entry with a modern rustic charm, blending natural textures and clean lines. The exterior walls are clad in dark vertical siding complemented by a stone wainscoting that adds tactile contrast. A wooden-framed glass door invites natural light inside while reflecting the surrounding greenery. Two large potted plants bursting with vibrant red flowers flank the entrance, injecting a splash of color. Two cozy woven chairs create an intimate seating spot beside the windows, perfect for relaxing. Overhead, a simple yet stylish outdoor wall light adds functional elegance and warmth to the covered porch area.
Floor Plans

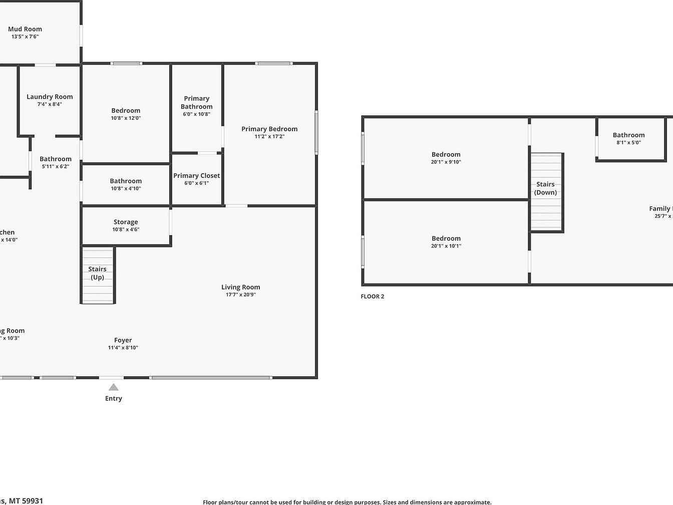
This detailed floor plan displays a spacious two-story home layout designed for functionality and comfort. The main level incorporates a large living room (17’7″ x 20’9″) centrally positioned, adjoining a foyer and multiple bedrooms including the primary bedroom (11’2″ x 17’2″) with an en suite bathroom and closet. Additional spaces include a kitchen, mudroom, laundry room, and storage, emphasizing convenience. The upper floor features two generously sized bedrooms and a family room alongside a bathroom, connected by stairs located centrally. The plan uses clear, straightforward black lines on a white background, providing easy readability of room dimensions and flow throughout the home.
Open Kitchen and Dining Area

This spacious open-concept area combines a modern kitchen and cozy dining nook, flooded with natural light from large windows along one wall. The kitchen features dark gray cabinetry contrasted by sleek white countertops and a matching island with several metal-height stools, ideal for casual meals or socializing. The warm wooden flooring adds richness and warmth throughout the space. Adjacent to the kitchen, a solid wood dining table surrounded by cushioned, white slipcovered chairs creates an inviting spot for family gatherings. A carpeted staircase with metal and wood railings leads upward, complementing the contemporary yet welcoming design aesthetic.
Living Room Fireplace Corner

This cozy living room corner centers around a wood-burning stove with a black metal finish, installed on a stone hearth with stacked stone veneer that adds texture and rustic charm. Neutral tones dominate, with white walls creating a bright, airy backdrop. A tan leather sofa with floral patterned cushions anchors the seating area next to a wooden coffee table featuring turned legs, complemented by a similarly styled console table against the wall. The console is accessorized with black pottery, greenery, a white lamp, and a round mirror that introduces a soft sculptural element, enhancing the warm and inviting atmosphere.
Bedroom with Nature View

This spacious bedroom features a serene, earthy color palette with shades of beige, brown, and muted grays. A large bed with a patterned, floral duvet takes center stage, adorned with complementary accent pillows. The room benefits from abundant natural light provided by two windows framed in rustic wood trim; one large window with gray curtains overlooks a wooded hillside while a smaller, horizontal window directly above the bed offers a lush, green forest view. Neutral-toned carpeting adds warmth underfoot. Two matching dressers with subtle antique hardware flank the bed, accompanied by decorative wall sconces and vintage-inspired mirrors, creating a cozy yet elegant retreat.
Bathroom Vanity and Closet

This bathroom features a sleek vanity with a white quartz countertop and integrated rectangular sink, complemented by modern chrome fixtures. The cabinetry is a dark wood finish with clean, straight edges and polished silver handles, offering contrast against the light walls. Above the sink is a large framed mirror with subtle detailing, illuminated by a set of four frosted glass lights, creating a bright, inviting atmosphere. To the left, a doorway leads to a small carpeted walk-in closet equipped with neatly stacked woven baskets, adding practical storage and natural texture to the functional space. Warm wood trim and flooring tie the room together with an earthy, contemporary aesthetic.
Bedroom with Window View

This bedroom features a cozy, balanced layout with a queen-sized bed at its center, adorned with a richly patterned brown and cream floral comforter complemented by two dark blue accent pillows. Flanking the bed are two light gray dressers topped with unique gold-trimmed mirrors that add symmetry and elegance to the space. White walls and a narrow horizontal window framed in dark wood bring natural light and a tranquil view of outdoors. The plush gray carpet softens the room, while a large black-framed floor mirror leans against the opposite wall, reflecting light and creating a sense of openness. Dark wood trim around the doorway and window contrasts beautifully with the light color palette, enhancing the room’s modern rustic charm.
Living Room with Fireplace

This spacious living room blends comfort and natural light, featuring large windows framed with warm wood tones that offer expansive views of greenery and distant mountains. The room centers around a rustic wood-burning stove set on a stone hearth, providing both a visual and functional focal point. Dark hardwood floors add richness and contrast against crisp white walls and ceiling with recessed lighting. The seating arrangement includes a tan leather sofa paired with a light beige fabric sofa, accented with neutral and muted blue throw pillows. A wooden coffee table anchors the space, complementing its organic, inviting ambiance. The open layout flows seamlessly to a dining area positioned near more windows, enhancing the airy and connected feel of the home.
Cozy Loft Seating Area

This loft area presents a spacious, open layout with neutral beige carpeting extending wall-to-wall, providing warmth. The walls are crisp white, complemented by dark wood baseboards and door trim that add rustic charm. A large, comfortable gray sofa adorned with a variety of textured cushions in muted earth tones and a soft knitted throw invites relaxation. Adjacent to the sofa, two brown leather armchairs contribute to a cozy seating zone. Recessed ceiling lighting illuminates the space evenly, while a sizeable rectangular mirror above the sofa visually expands the room, and a black metal railing marks the edge of the staircase.
Upstairs Sitting Area

This spacious upstairs sitting area features a cozy, open layout with plush taupe carpet flooring that extends throughout the space. The walls are painted in soft white, brightened by recessed ceiling lights. Two large windows framed in rich dark wood trim offer views of lush greenery, inviting natural light in. A pair of brown leather armchairs with matching pillows create a comfortable conversation nook near the windows. The white walls contrast beautifully with the dark wood baseboards and window frames. Nearby, a glimpse of a small bathroom or closet with matching dark wood trim is visible.
Bathroom

This bathroom features a clean and modern design with neutral tones creating a calm atmosphere. A wide granite countertop with subtle speckling sits atop dark wood cabinetry, offering ample storage with drawers and cabinets. The sink is rectangular with polished chrome fixtures that add a sleek contrast. Above, a large wooden-framed mirror complements the cabinetry with warm tones. The shower area includes a white tub and tiled surround, shielded by a beige and taupe striped fabric curtain. The walls are painted a soft off-white, and the floor has rich, dark wood-look tiles, harmonizing the space’s natural and refined elements.
Covered Patio

This outdoor covered patio features a cozy seating arrangement with a woven rattan three-seater sofa and two matching armchairs, all dressed in soft gray cushions. A rustic wooden coffee table, placed centrally, holds decorative potted plants adding greenery to the space. The patio floor is smooth concrete, complementing the modern gray vertical siding of the house’s exterior with stone accents beneath the windows. Large windows reflect a scenic view of trees and blue skies, blending nature with the home’s earthy, neutral color palette. The setting invites relaxation in a peaceful, sheltered environment.
spacious Backyard

This covered patio features a cozy seating arrangement with cushioned wicker chairs surrounding a dark wood coffee table with decorative pots on top. The design combines natural textures with modern outdoor furniture, offering comfort and style. Sturdy wooden beams supported by stacked stone columns frame the space while providing structural charm. Beyond the patio, a well-manicured green lawn stretches towards a scenic view of tall pine trees and distant mountains under a clear blue sky. This outdoor space blends rustic materials with contemporary comfort, creating an inviting spot to relax and enjoy nature.
Garage Space

This spacious garage features a clean, utilitarian design with neutral tones of light beige and gray on the walls and concrete floor. A large double garage door with upper window panels allows natural light to fill the area. The ceiling is fitted with white drywall and includes practical black metal brackets for possible storage or hanging items. On one side, there is a white door leading to the house interior, and along another wall, metal shelving units and a pair of tan leather chairs provide casual seating and storage options. The overall look is bright, functional, and ready for customization.
Garage Workshop

This spacious garage workshop features an open-floor design with unfinished wooden trusses and exposed insulation on the ceiling, emphasizing a raw, industrial look. The clean concrete floor provides ample room for multiple dirt bikes neatly lined up, showcasing the owner’s enthusiasm for motorbiking. On the left side, a sturdy wooden workbench with tools and various equipment sits beneath mounted antler trophies, adding a rugged, outdoorsy charm to the space. Bright overhead lighting ensures excellent visibility, and the overall utilitarian setup blends functional and personal elements harmoniously for a practical hobby area.
Listing Agent: Corey R Olofson of Coldwell Banker Landstar Properties via Zillow