
This elegant home in Bellevue, WA, showcases a modern architectural style with clean lines and a prominent use of solar panel technology for energy efficiency. Built with an emphasis on panoramic water views, the house overlooks Lake Sammamish, visible from almost every room on the main level. The expansive back deck provides an ideal setting for relaxation or entertaining, offering a full-width private perch above the serene lake. The interior features a light-filled living room, an updated kitchen, and a primary suite designed for comfort and tranquility. Recent renovations appear to include high-end spa-like bathrooms with heated floors and a large master shower, enhancing the property’s luxury feel. Energy-saving upgrades include a fully owned solar panel system and a high-efficiency heat pump, ensuring year-round comfort in an eco-friendly manner. Additional amenities such as an automated sprinkler system and a security system add convenience and peace of mind. Priced at $2,200,000, this home is situated in a top-rated school district in Bellevue, making it ideal for families.
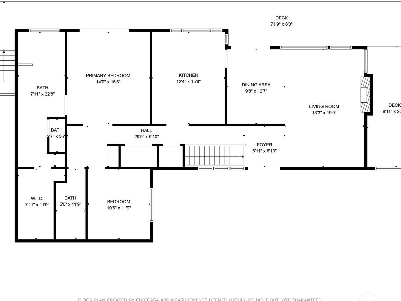
Main level floor Plan

This detailed floor plan highlights a well-organized home layout with a spacious primary bedroom measuring 14’0″ by 15’6″ and an adjacent large bath. The kitchen is centrally located, sized at 12’4″ by 15’6″, offering direct access to the dining area and expansive living room, which extends to two decks for outdoor enjoyment. The home also features a secondary bedroom, additional bathrooms, and a walk-in closet, all connected by a long hallway. The foyer and stair placement offer a clear entrance flow, emphasizing functionality and comfort throughout the residence.
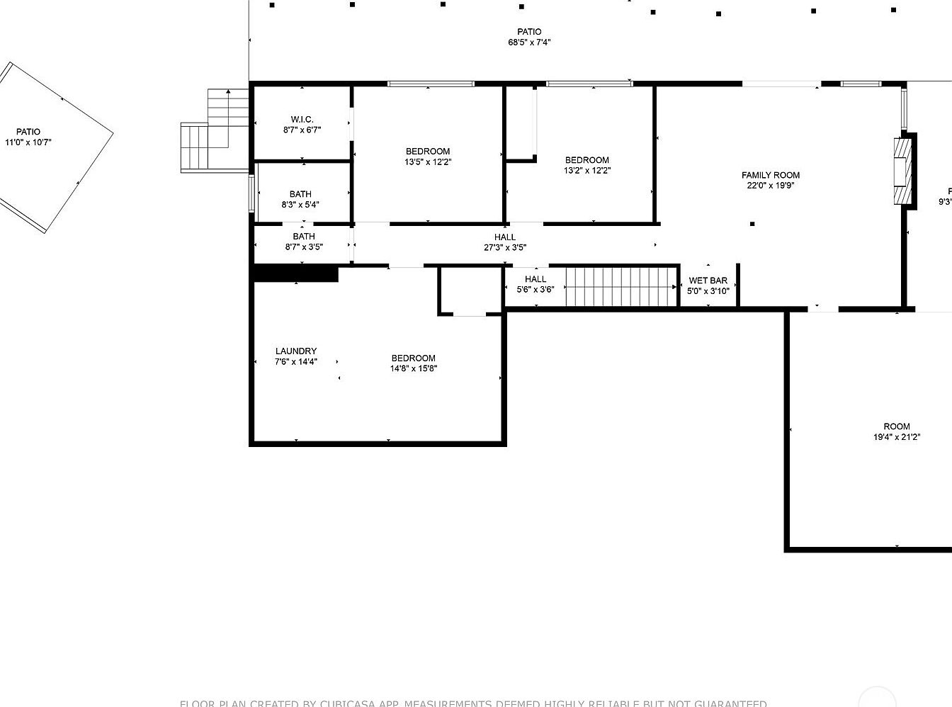
Lower Level Floor Plan

This floor plan reveals a thoughtfully designed lower level featuring multiple bedrooms for versatile living. The layout includes three bedrooms adjacent to a hall, showcasing two bathrooms for convenience. A generous family room anchors the space, complete with a fireplace, creating a cozy yet expansive living area measuring 22 by 19 feet. A wet bar nearby is perfect for entertaining. Additional functional spaces include a laundry room and a large multipurpose room. There are two patios accessible for outdoor enjoyment, highlighting a balance between comfort, utility, and recreation in this lower level design.
Living Room and Dining Area

This spacious living and dining area blends natural light and nature views through expansive sliding glass doors and large windows that open onto a deck. The room features warm honey-toned hardwood floors that contrast softly with light gray walls and white trim. A modern black dining table with quilted black chairs sits adjacent to the living space, which offers a neutral-colored sofa adorned with a beige knitted throw. Minimalist, modern accents, including a geometric side table, a hammered metal coffee table, and a contemporary light fixture, add subtle sophistication. Greenery in a tall planter enriches the airy ambiance.
Kitchen with Scenic View

This kitchen features a sleek and modern design with deep espresso cabinetry contrasted by a bright white quartz countertop. The L-shaped layout includes ample storage with both upper and lower cabinets, complemented by stainless steel appliances including a dishwasher. A high-arc spring coil faucet centers the sink area, enhancing functionality. Above, three pendant lights with red and white swirled glass shades add a pop of color and artistic flair. Large sliding glass doors offer an expansive view of lush greenery and a distant water body, creating a seamless indoor-outdoor connection and a serene cooking atmosphere.
spacious scenic Bathroom

The space features a modern, elegant bathroom with a dual vanity setup in dark wood cabinetry topped with rich, marbled countertops. Two rectangular mirrors with dark frames are mounted above the sinks, flanked by soft, wall-mounted light sconces that add ambient lighting. The floor is covered with large, neutral beige tiles complemented by a white textured bath mat. Adjacent to the vanity is a spacious glass-enclosed shower with dark tile walls, multiple showerheads, and a built-in bench. A large window brings in natural light and offers a tranquil view of lush greenery, enhancing the serene atmosphere.
Modern Kitchen

This kitchen corner features a sleek, contemporary design with dark brown cabinetry that extends seamlessly around the corner. The cabinetry is accented by stainless steel handles that enhance its modern appeal. A white quartz countertop contrasts beautifully against the darker wood tones while providing ample workspace. The backsplash consists of a smooth, glossy light blue-grey glass panel that reflects light and adds depth. Stainless steel appliances, including a built-in microwave and a gas stove with an oven below, bring a refined, professional touch to the space. The under-cabinet lighting and recessed ceiling lights ensure a bright, functional cooking area. Warm wooden flooring completes this inviting, stylish ensemble.
functional Bathroom

This elegantly modern bathroom features a sleek vanity with a dark wood cabinet base and a richly textured granite countertop, hosting a rectangular, under-mounted sink with a contemporary chrome faucet. A large mirror with a matching dark wood frame spans the length of the vanity, illuminated by a three-light brushed nickel fixture that adds warmth. The bathtub is surrounded by large gray tiles with a subway tile accent band, enclosed by a sliding glass door with polished stainless steel hardware. Clean lines, neutral tones, and hints of greenery create a fresh, sophisticated space.
Master Bedroom

This spacious master bedroom is designed for comfort and relaxation, highlighted by a large bed adorned with soft beige and cream pillows and linens. A ceiling fan with wooden blades and a central light fixture provides both airflow and illumination. The sliding glass doors allow abundant natural light while offering scenic views of lush greenery outside, complemented by simple dark curtains. The neutral color palette of soft whites and warm tans contrasts with the sleek dark wood media console positioned under a wall-mounted flat-screen TV. An adjacent bathroom with dark cabinetry is partially visible, enhancing convenience and style in this serene retreat.
Walk-In Closet

This spacious walk-in closet features a clean and functional layout with clothing racks on both sides, maximizing storage capacity. One side is dedicated to hanging jackets, shirts, and coats, arranged by color and style, while the opposite side offers shelves and multiple pull-out drawers beneath a rack of hanging pants and sweaters. The closet is finished with a neutral palette, primarily white walls, and light beige carpet flooring that adds a sense of warmth. A skylight overhead brings natural light into the space, enhancing visibility and contributing to an airy, organized atmosphere perfect for wardrobe management.
Home Office Space

This serene home office is bathed in natural light from a large window facing the garden, offering a calming view. The room features a sleek, black, height-adjustable desk paired with a modern ergonomic black office chair for comfort and productivity. A floor lamp adjacent to the desk adds focused lighting for work hours. The neutral beige carpet and soft white walls create an airy, minimalist backdrop. Subtle touches of greenery, including a potted plant and decor on a partially visible shelving unit, introduce natural elements that enhance the tranquil ambiance.
Lower-Level Living Room

This living room features a cozy, inviting layout centered around a traditional brick fireplace that adds rustic warmth to the space. Large windows and glass sliding doors bring in abundant natural light and showcase lush greenery outside, creating a seamless indoor-outdoor connection. The room’s color palette is neutral and understated, with soft beige carpeting and white walls that contrast with deep black furniture, including a sleek sofa and ottoman. Minimalistic furnishings and modern track lighting overhead emphasize clean lines and simplicity, making this space both contemporary and comfortable.
Basement Media & Workout Area

This basement combines entertainment and fitness in a spacious, functional layout. Exposed wooden beams highlight the ceiling, lending a warm, rustic touch against the industrial concrete walls. A large wall-mounted screen faces a deep black sectional sofa, creating a cozy media zone with accompanying ottomans and a plush bench enhancing seating options. Adjacent to this setup is an open floor exercise area outfitted with black interlocking mats, a yoga mat, and props, offering a dedicated workout space. Natural light filters in through a single window, softening the otherwise utilitarian atmosphere with balanced indoor-outdoor harmony.
functional Bathroom

The space features a compact bathroom vanity with a sleek, dark wood cabinet base and a polished granite countertop that adds a touch of natural luxury. A rectangular undermount sink is centered beneath a large, dark-framed mirror, which visually expands the space and reflects ambient light from the contemporary three-light fixture above. The walls are painted a clean, crisp white, enhancing brightness and contrast against the deep tones of the cabinetry and countertop. Accents include a simple black vase with greenery and a neatly arranged wicker basket with towels, while a navy blue hand towel and matching rug add subtle color. The adjacent toilet area is visible through an open layout, separated by a partial wall and featuring a small window that brings in natural light, while the overall design emphasizes functionality with a modern, minimalistic aesthetic.
Modern Bathroom

This bathroom corner features a sleek walk-in shower with a frameless glass door and brushed metal handle. The shower walls are adorned with large, matte brown tiles paired with a horizontal accent strip of small, light-toned mosaic tiles that add texture and subtle contrast. The shower floor is composed of pebble-like tiles in natural shades, complementing the overall earth-tone color palette. A built-in niche houses shower essentials neatly. Next to the shower, a simple towel bar in brushed metal holds a dark navy towel, balancing the warm, neutral hues with a touch of bold color.
Children’s Bedroom with Study Area

This bedroom features a clean, functional design with neutral-toned carpeting and white walls, creating a bright and airy atmosphere. A white bunk bed sits against one wall, with colorful accent pillows and a soft throw adding subtle pops of color. Adjacent is a study area by the large window, where a long, modern white desk accommodates two matching swivel chairs, perfect for homework or creative projects. The window offers scenic views of lush greenery outside, enhancing natural light. Dark curtains frame the window, complementing the overall minimalist and comfortable aesthetic. A small bookshelf filled with books and toys adds personality and practicality to the space.
Walk-in Closet

This walk-in closet features a well-organized and functional layout, maximizing storage space with modern cabinetry on one side and a combination of hanging rods and open cubbies on the other. The color palette is neutral and clean, dominated by white storage units and light beige walls, complemented by a soft, light carpet floor for comfort. Various clothing items and folded blankets bring subtle pops of color, creating a lived-in yet tidy feel. The overall aesthetic is minimal and practical, with an emphasis on efficient use of space and easy access to everyday essentials.
Cozy Bedroom

This bedroom corner offers a tranquil retreat with a large picture window framing lush greenery and distant water views, inviting ample natural light. The neutral walls and beige carpet provide a calming backdrop, accentuated by a textured, deep green area rug that adds warmth and depth. A single bed dressed in light linens is complemented by plush pillows and a soft green throw. A small workspace with a modern desk and ergonomic chair sits by the window, pairing functionality with scenic inspiration. Personal touches like a collection of books, a guitar, and a “Game On” neon sign create a relaxed, personalized ambiance.
Covered Balcony Seating

This spacious covered balcony extends alongside the home, offering fresh air and lush tree views. The flooring is a clean, modern gray wood plank style, complemented by natural wood railings with cable balusters adding a sense of openness and unobstructed greenery views. Comfortable, cozy seating with a cream-colored plush armchair and two black woven chairs with soft cushions invite relaxation. Overhead, exposed beams painted white and string lights add ambient charm. The balcony creates a peaceful outdoor retreat blending modern design with the serenity of nature just steps from indoors.
Listing Agent: Scott Huber of Rain Town Realty + JPAR via Zillow