
This exquisite home showcases a classic and elegant architectural style with a symmetrical facade, boxed windows with shutters, and a covered front entry that exudes timeless charm. Located in Bellevue, Washington, in the prestigious Silverleaf neighborhood of Lakemont, the residence is ideally positioned on a tranquil cul-de-sac that leads to a lush greenbelt, offering exceptional privacy. While the exact year of construction is not specified, the home has been recently updated and features a freshly finished walk-out basement providing a versatile space described as a home within a home. The interior boasts soaring ceilings and expansive windows that flood the living spaces with natural light, creating a welcoming atmosphere ideal for entertaining. The chef’s kitchen and multiple gathering areas support seamless indoor-outdoor living, with direct access to a spacious deck surrounded by serene mature trees. This property is part of the highly regarded Issaquah School District, adding significant value for families. Priced at $2,800,000, the home offers a blend of luxury, functionality, and nature just minutes away from I-90, shopping, parks, and hiking trails.
Front Entryway

The front entryway presents a clean, inviting approach with a subtle arch overhead enhancing the modern architectural appeal. The main door, painted in a muted taupe, complements the soft, neutral-toned exterior walls. Flanking the door are tall, narrow glass sidelights featuring an intricate geometric leaded design that adds elegance and light to the foyer. Symmetrically placed black lantern-style wall sconces provide ambient lighting. A small potted plant with vibrant pink flowers adds a touch of nature and color against the smooth gray exposed aggregate steps. The overall style suggests a blend of contemporary and classic design elements, welcoming visitors warmly.
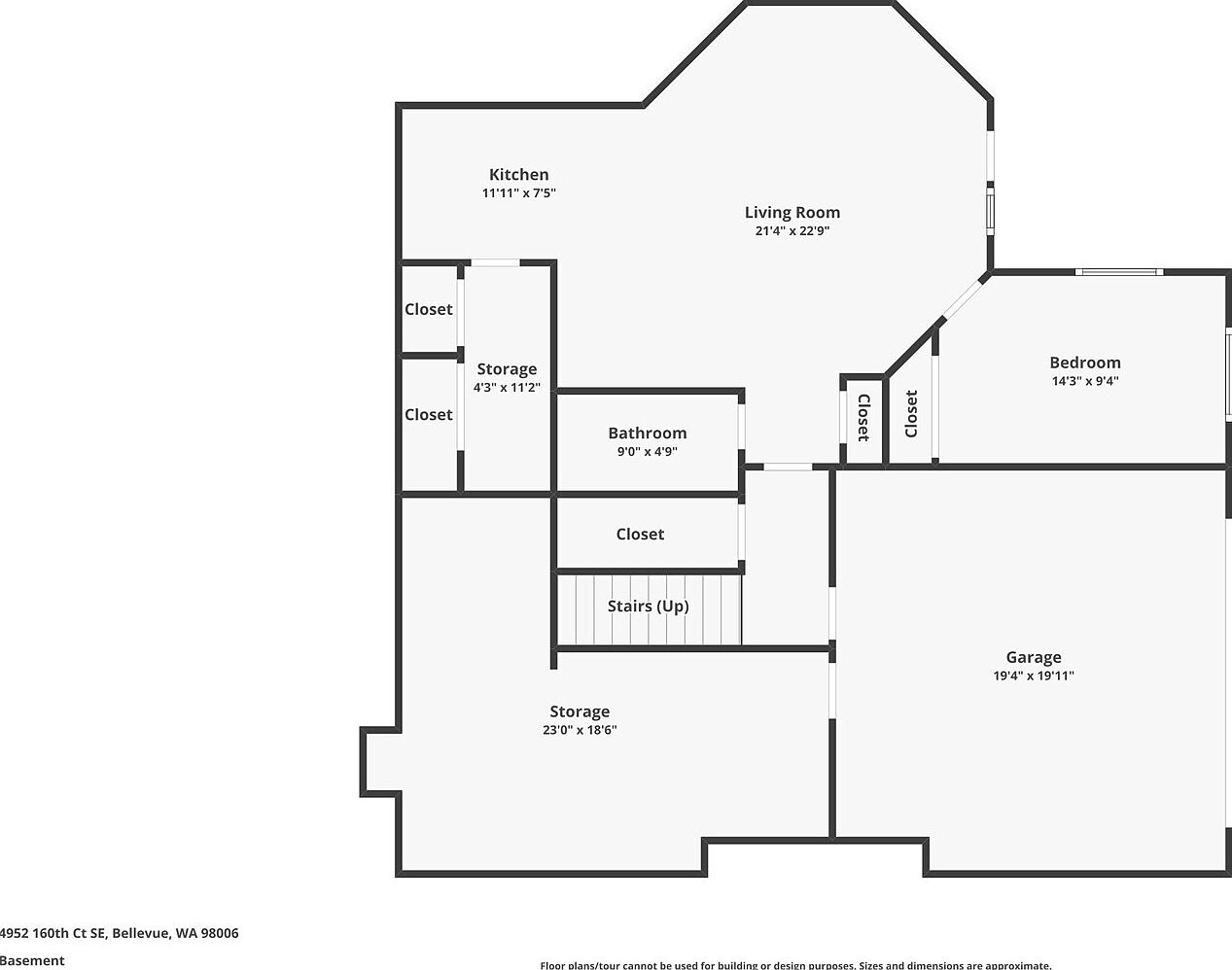
Basement Floor Plan

This basement layout features a well-organized design with a large living room measuring 21’4″ by 22’9″, positioned at the center. Adjacent to it is a compact kitchen area (11’11” by 7’5″), providing convenience for entertaining or daily use. Storage is abundant with two distinct spaces: a smaller one near the kitchen and a spacious 23’0″ by 18’6″ area at the bottom left, ideal for various needs. A bedroom with two closets sits next to the living room, complemented by a bathroom and multiple closets throughout. The garage occupies a significant portion on the right, easily accessible from the basement. Stairs connect this floor to the upper levels.
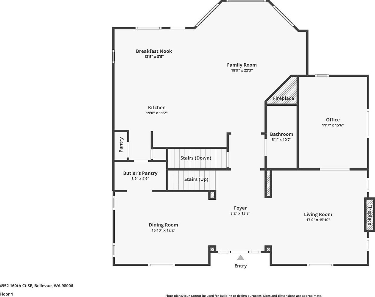
First Floor Layout

This first-floor plan reveals a spacious and thoughtful layout designed for comfortable living and entertaining. The entryway opens to a welcoming foyer, centrally positioned with stairs leading both up and down. On the right side, a large living room with a fireplace offers a cozy space, adjacent to an office and a small bathroom. The left side of the home features a formal dining room connecting to a sizable kitchen complete with a pantry and a dedicated butler’s pantry. The kitchen flows into a breakfast nook and a generously sized family room, also with a fireplace, making it perfect for gatherings. The design prioritizes natural light with multiple windows and an open flow among main living areas.
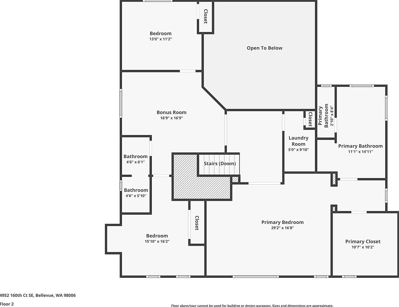
Second Floor Layout

This spacious second-floor plan features a large primary bedroom measuring 29’2″ by 16’8″ with an adjoining primary closet and two separate primary bathrooms, providing ample privacy and convenience. Two additional bedrooms and two bathrooms are positioned on the opposite side, offering balanced living space. A generous bonus room measures nearly 17 feet square, perfect for flexible usage like a playroom or office. The open area overlooking below adds an airy feel and visual connection to the level beneath. The laundry room is conveniently located near the primary suite. Central stairs offer smooth vertical circulation.
Family Room Seating Area

This elegant family room features a balanced layout centered around a fireplace flanked by two tall, narrow windows. The neutral color scheme revolves around soft gray walls paired with white trim and wainscoting, creating a bright and airy atmosphere. Two large sofas and two matching armchairs face each other over a modern marble coffee table set on a geometric-patterned rug. Plush cushions in muted blues and beige add subtle pops of color. Large windows on one side provide ample natural light, complemented by tasteful framed artwork on the walls and a touch of greenery near the fireplace, adding warmth and freshness to the sophisticated space.
Dining Room Details

This elegant dining room features a rectangular marble-top table seating eight, offering a contemporary yet cozy setting. The chairs have a two-tone design with light beige upholstery in front and muted blue fabric on the back, resting on dark wooden legs with light tips. Neutral tones dominate the walls and carpet, blending soft gray and beige hues with crisp white wainscoting and trim. Large, tall windows flood the space with natural light and provide views of greenery outside. Accent elements include a modern circular pendant light, abstract art on one wall, and a cabinet with tasteful decor beneath a framed tree painting. A lush green potted plant adds freshness to the corner, completing the harmonious, sophisticated look.
Kitchen and Dining Area

This open-plan kitchen and dining space features warm wooden cabinetry paired with sleek white countertops that create a balanced contrast. A large island with a polished surface extends into a breakfast bar with four minimalist stools, offering a casual seating area. Across from the island, a rectangular glass-top dining table sits surrounded by eight cushioned chairs with modern upholstery in soft taupe tones. Natural light filters through a window and glass door, brightening the space while a lush green plant adds a touch of nature. The clean lines, neutral palette, and wood flooring bring a contemporary yet inviting atmosphere to this communal hub.
Living Room with Fireplace

This living room features a striking double-height ceiling with expansive floor-to-ceiling windows that flood the space with natural light and provide serene views of lush, green trees. The color palette is soft and neutral, dominated by light grays and whites, creating a calm and airy ambiance. A modern curved sofa, two stylish armchairs, and a sleek ottoman are arranged around a large, patterned area rug that adds texture and visual interest. The focal point is a tall tiled fireplace with a wooden mantel, complemented by built-in wooden cabinetry under a wall-mounted flat-screen TV, blending modern design with cozy warmth.
Modern Bathroom Vanity

This sleek bathroom focuses on a minimalist design with a floating white vanity topped by a rectangular vessel sink, complemented by a modern single-handle faucet. The centerpiece is a large circular mirror with integrated LED lighting that casts a soft glow, enhancing the clean, neutral tones of the space. The shower features frameless sliding glass doors with brushed metal hardware, while marble-effect tiles with subtle grey veining line the walls. The shower floor has a patterned tile with a built-in niche for toiletries, blending functionality with contemporary elegance and simplicity throughout.
Master Bedroom

This spacious master bedroom features a calming neutral palette with soft beige walls and light gray carpet flooring that enhances the room’s airy feel. A large window fills the space with natural light, complementing the contemporary decor. The centerpiece is a plush bed with crisp white linens and navy blue accents, flanked by sleek nightstands with modern lamps. An inviting curved navy sofa pairs elegantly with a white marble coffee table adorned with fresh lilies, while a small upholstered round ottoman provides additional seating. Abstract artwork above the bed and sofa adds a splash of color and visual interest to this sophisticated retreat.
Recreation Room

This recreation room presents a cozy and inviting atmosphere with soft gray walls and light carpeting. Positioned centrally, a foosball table adds a playful touch, encouraging social interaction and fun. Along one wall, a white modern sofa with patterned pillows rests on a textured navy-blue rug, creating a comfortable seating area complemented by a small round wooden side table. Above the couch, three art pieces offer a simple yet stylish focal point. Natural light streams in through a large window, balancing the recessed ceiling lights and enhancing the room’s light, airy feel. Doorways lead to adjacent rooms, adding flow and accessibility.
Calm Master Bedroom

This peaceful master bedroom features a modern, minimalist design with a neutral gray color palette accented by soft white trims and ceiling. The low-profile upholstered bed is dressed in layered bedding with various shades of gray and a touch of warm brown in the pillows, creating a cozy atmosphere. Flanking the bed are sleek wooden nightstands with simple, elegant lamps. A large window with wooden blinds lets in natural light and frames lush greenery outside. Two framed botanical art pieces add subtle color and interest, while the light-patterned area rug underfoot enhances the room’s tranquil vibe.
Master Bedroom Details

This master bedroom features a tranquil neutral color palette with soft gray walls and carpeting that create a calm ambiance. The bed is centered against a recessed wall niche, which houses two white floating shelves displaying monochrome framed art and books, adding subtle character. The bed is dressed in light bedding layered with soft lavender and blush pink pillows, paired with a pale blue knitted throw for a hint of color. Each side of the bed has a mid-century modern wooden nightstand topped with minimalist table lamps, balancing function and style. Natural light filters in through a large window, brightening the space and enhancing the cozy atmosphere. A geometric patterned rug anchors the bed visually, emphasizing the room’s clean and modern aesthetic.
Living Area & Kitchen View

This open-concept living space combines comfort with functional design. The area features a modern gray tufted sofa adorned with patterned and solid cushions, positioned to face a sleek wall-mounted flat-screen TV that displays a scenic mountain view. A round glass coffee table with gold metal legs sits centrally on a plush white rug, enhancing the cozy ambiance. To the side, a soft, peachy-pink armchair adds a subtle pop of color against the neutral beige walls and carpeted flooring. The dining nook includes a small round table surrounded by four contemporary gray upholstered chairs, harmonizing with the seating in the living area. The adjacent kitchen is lined with warm wooden cabinetry, light countertops, and a marble-effect backsplash, providing a tasteful contrast and practical workspace. Recessed ceiling lights brighten the space, highlighting the smooth, minimalist décor and open flow from the kitchen to living and dining zones.
Bedroom Details

This bedroom features a calm, neutral color palette with light gray walls and soft white trim that enhance natural light from a large window overlooking greenery. The upholstered bed showcases a modern design with plush bedding in deep brown tones layered with a black and white houndstooth throw. Two matching nightstands flank the bed, each topped with elegant lamps with green glass bases and marble effect surfaces, adding subtle luxury. A large abstract painting in black and beige hangs above the headboard, complementing the contemporary yet cozy atmosphere. A potted plant adds a touch of nature to this serene retreat.
Bedroom with Garden View

This serene bedroom features soft gray walls that complement the plush, light-colored carpeting, creating a calming and inviting space. A large window offers an expansive view of lush greenery and wooden stairs outside, allowing abundant natural light to brighten the room. The white trim around the window and doors adds a crisp contrast, highlighting clean architectural lines. The double-door closet provides ample storage with paneled doors matching the entry door, which opens to a softly lit hallway, emphasizing the room’s cozy yet open atmosphere perfect for relaxation and peaceful mornings.
Bathroom Features

This bathroom combines functionality with elegant design. It has a white marble countertop with subtle gray veining atop warm wooden cabinetry, providing a balance of natural warmth and modern sleekness. The large mirror above the sink enhances the sense of space and reflects the neutral-toned walls, contributing to a calm atmosphere. A glass sliding door encloses the bathtub and shower area, where walls are adorned with large, white marble tiles featuring delicate gray patterns. Brushed metal fixtures including a curved faucet, towel bars, and showerhead add a sophisticated, contemporary touch to the overall design.
Butler’s Pantry

This transitional butler’s pantry creates an inviting transition between the kitchen and additional living space. It features rich, warm wood cabinetry with raised panel doors, adding a traditional touch. The countertops and backsplash are crafted from a sleek white marble-like material with subtle gray veining, complementing the cabinetry while brightening the space. The built-in stainless steel sink and faucet add modern convenience. The light wood flooring flows seamlessly into the adjacent kitchen, visible through a wide doorway framed with simple white trim. Natural light filters in from the large kitchen windows, creating an airy, cohesive look.
Upstairs Hallway Landing

This upstairs hallway landing features an open and airy layout enhanced by soft gray walls and light carpeting that adds warmth and comfort. The space includes a white wooden railing, allowing a view to the floor below and letting natural light from the large window illuminate the area. Simple architectural details like the arched entryway and clean trim work complement the modern, minimalist aesthetic. Multiple doorways lead to adjacent rooms, emphasizing connectivity and flow within the home’s upper level. The neutral color palette creates a calm, inviting atmosphere perfect for a transitional space.
Walk-In Closet Space

This spacious walk-in closet offers an organized and airy storage solution with a clean, minimalist design. White built-in shelving units and drawers line both sides of the room, providing ample space for folded clothes and accessories. Multiple hanging rods are strategically placed for easy access to hanging garments. Soft, neutral carpeting adds warmth and comfort underfoot, complementing the bright white walls and cabinetry. A large window at the far end lets in natural light, creating a bright and inviting atmosphere while showcasing a view of greenery outside, enhancing the refreshing and uncluttered aesthetic.
Bathroom Vanity and Tub

This spacious bathroom features a built-in soaking tub elevated on tiled steps, positioned under two large windows allowing abundant natural light and views of green foliage outside. The room’s color scheme blends soft light gray walls with neutral, beige tile flooring and tub surround. A long wooden vanity with rich, natural wood cabinetry contrasts elegantly against the white marble countertop that spans the length of the wall. Above the vanity, a large mirror with dual modern light fixtures enhances the brightness and feeling of openness, emphasizing clean lines and a tranquil, natural palette.
Laundry Room

This laundry room features a clean and modern design with a predominantly white color scheme. Against the wall sit a sleek front-loading washer and dryer set by LG, designed for efficiency and style. Above them, simple white cabinetry provides ample storage, seamlessly blending with the surrounding walls to maintain an uncluttered look. To the right, a built-in white sink with a modern faucet is integrated into a countertop that extends slightly over additional cabinetry below, offering practical workspace. A round mirror above the sink adds a touch of softness and functionality, reflecting the brightness of the room. The space prioritizes utility while maintaining a fresh, minimalistic aesthetic.
Outdoor Deck Seating

This serene outdoor deck features a natural wood flooring and railing that perfectly complements the surrounding tall evergreen trees, creating a tranquil retreat. The seating arrangement includes a cushioned sofa and four matching armchairs, all framed in warm wood tones with soft beige cushions and pale blue accent pillows for a subtle color contrast. Centered on the deck is a large wooden coffee table adorned with a round succulent centerpiece and a white tray holding a pitcher and glass, enhancing the inviting, nature-inspired aesthetic. This space offers an ideal setting for relaxation and casual gatherings amidst a lush forest backdrop.
Listing Agent: Greg Elwin of Rain Town Realty + JPAR via Zillow