
This stunning 1977 Northwest Contemporary home offers 2,110 sq. ft. of stylish living space on a 5,000 sq. ft. lot. This stunning home embraces a modern mid-century aesthetic with clean lines, expansive windows, and a well-balanced facade. The sleek horizontal wood siding in a muted gray tone blends seamlessly with the natural surroundings, while the dark roof and garage doors add a bold contrast. Large picture windows bring in abundant natural light and create a strong indoor-outdoor connection. The focal point is the contemporary entryway, featuring a statement front door with frosted glass panels, framed by a pergola-style overhang for added architectural interest. Conveniently located near West Seattle amenities with easy commuting access.
1. front Exterior

This beautifully designed home showcases a modern aesthetic with a sleek dark-toned facade, expansive windows, and a well-balanced architectural profile. Elevated above a spacious two-car garage, the front entrance is enhanced by a warm wood-accented door and stylish exterior lighting, creating a welcoming ambiance. The large picture windows not only add to the home’s striking curb appeal but also flood the interior with natural light. A private front fence and lush landscaping provide both seclusion and charm, while the home’s tiered structure blends seamlessly with its surroundings. Thoughtfully designed pathways, mature greenery, and contemporary railings complete the look, making this residence a stunning example of modern craftsmanship.
2. Elevated Outdoor Retreat

This elevated deck offers a perfect blend of comfort and natural beauty, featuring a stylish seating arrangement with woven armchairs and a sleek side table set against a lush, landscaped backdrop. The warm wood railing complements the surroundings, creating an inviting space to unwind with morning coffee or enjoy a sunset gathering. Thoughtfully designed with an outdoor rug and ambient lighting, this deck extends the home’s living area, providing a private retreat to soak in the fresh air and peaceful scenery.
3. where is Seattle?

Seattle is a dynamic city in Washington State, nestled between Puget Sound and Lake Washington, with stunning views of the Olympic and Cascade mountains. A major tech hub, it’s home to Amazon and has a strong Microsoft presence in nearby Redmond. Known for its iconic Space Needle and thriving coffee culture, Seattle blends urban energy with outdoor adventure. Its scenic parks, vibrant waterfront, and easy access to hiking, boating, and the Pacific Northwest’s natural beauty make it a unique destination.
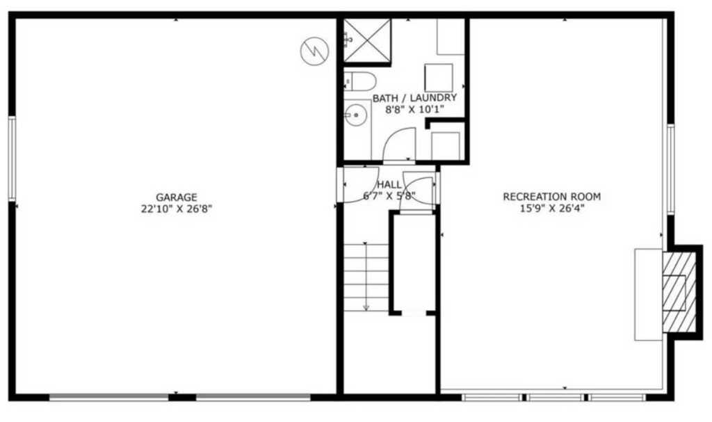
4. Lower Level Plan

The lower level offers a perfect blend of functionality and entertainment, featuring a spacious recreation room that can be used for a home theater, gym, or game room. A well-appointed bath and laundry area add convenience, while the oversized garage provides ample storage and parking space. With direct access to the outdoors, this level enhances the home’s livability, making it ideal for gatherings, hobbies, or additional workspace.
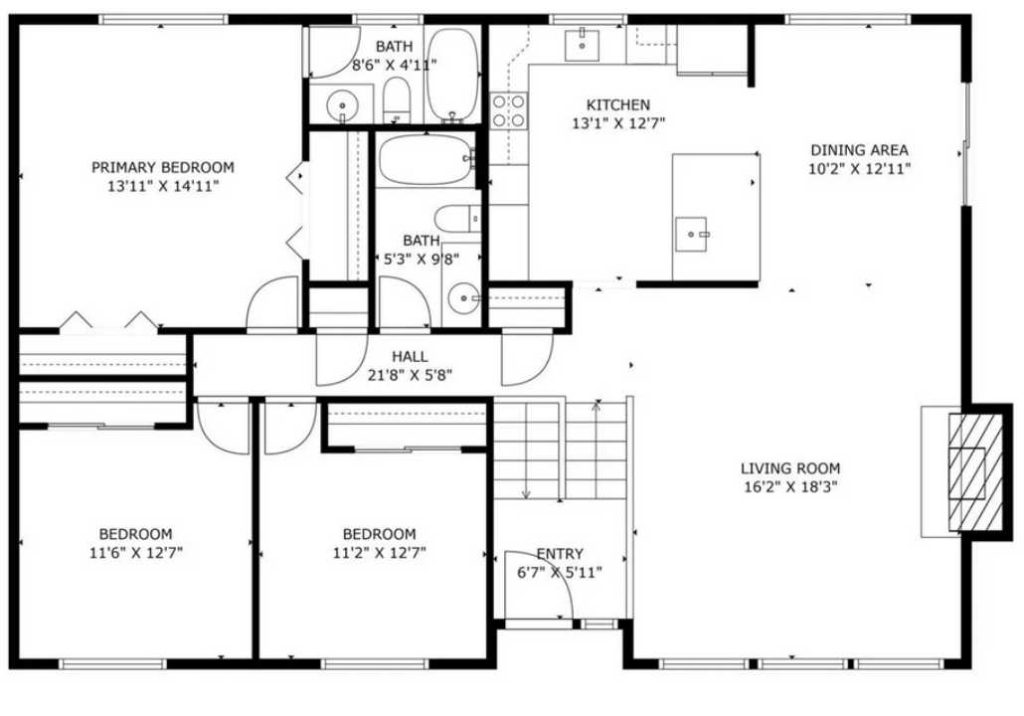
5. Main Floor Plan

This well-designed floor plan maximizes functionality and flow, featuring a spacious primary bedroom with a bath for added privacy. Two additional bedrooms, each with generous closet space, share a conveniently located full bath. The open-concept kitchen seamlessly connects to the dining area, creating an inviting space for meals and gatherings. A large living room with expansive windows offers a bright and airy atmosphere, while the entryway provides a welcoming transition into the home. Thoughtfully planned hallways enhance accessibility, ensuring comfort and ease of movement throughout.
6. Modern Split-Level Entry

The split-level entry of this home offers a stylish and functional design, creating a welcoming first impression. The natural wood front door, with its sleek horizontal glass panels, adds warmth while allowing soft light to filter through. Inside, the staircase is finished with rich wood treads and complemented by a modern black metal railing. The upper level is framed with a frosted glass and wood railing, enhancing the open feel of the space while maintaining privacy. Neutral walls and clean architectural lines make this entryway both inviting and contemporary, setting the tone for the rest of the home.
7. Mid-Century Living Room

This stunning mid-century living room balances warmth and sophistication with its open-concept design and striking architectural elements. A bold floor-to-ceiling stone fireplace serves as the focal point, adding texture and depth to the space. Large picture windows flood the room with natural light, enhancing the clean lines and airy feel. The open railing with wood trim maintains the connection between levels while adding a modern touch. Light hardwood flooring complements the neutral palette, creating a seamless flow throughout. Thoughtfully placed recessed lighting and pendant fixtures provide a warm ambiance, making this space both inviting and stylish.
8. Airy Dining Space

This inviting dining space offers a perfect balance of comfort and style. Positioned between large windows and a sliding glass door, natural light enhances the room’s airy feel while providing a seamless connection to the outdoors. A sleek, modern pendant light anchors the dining area, casting a warm glow over the rich wood table. Softly upholstered chairs in muted blue tones add a refined touch, complementing the neutral palette. The open layout ensures effortless flow, making this dining space ideal for both intimate meals and larger gatherings in a bright, welcoming atmosphere.
9. Sleek and Functional Kitchen

This beautifully designed kitchen blends warmth and efficiency with its modern yet inviting aesthetic. Natural wood cabinetry provides ample storage, while sleek black countertops add a striking contrast. A large picture window above the sink enhances natural light, making the space feel bright and open. Stainless steel appliances, including a double oven and French-door refrigerator, offer high-end functionality. The neutral tile flooring ensures durability and complements the overall design. Thoughtfully placed recessed and skylight lighting illuminate the space, creating a well-balanced atmosphere ideal for both cooking and entertaining.
10. Serene Bedroom

This bright and airy bedroom offers a perfect retreat with its expansive layout and peaceful ambiance. A large picture window invites natural light while framing lush outdoor views, enhancing the connection to nature. The neutral color palette, complemented by warm hardwood flooring, creates a tranquil and inviting atmosphere. Thoughtfully designed with ample space for furniture placement, the room exudes comfort and relaxation. Soft recessed lighting and bedside lamps add warmth, making this an ideal space for unwinding. With its calming aesthetic and functional layout, this bedroom embodies a harmonious blend of style and serenity.
11. Elegant Functional Bath

This bathroom balances style and practicality with its timeless design. The warm wood vanity with a white countertop provides ample storage and contrasts beautifully with the neutral tile flooring. Above, a sleek light fixture enhances the space with soft illumination. The bathtub and shower combo features classic white square tiles with an accent border, adding subtle texture and visual interest. A frosted window ensures privacy while allowing natural light to brighten the room. Thoughtful details like a framed artwork and greenery add warmth, making this bathroom both inviting and functional.
12. Bedroom with a View

This bedroom combines comfort and sophistication with a soft color palette and elegant furnishings. A large window lets in natural light and offers a scenic view, making the space feel airy and bright. The plush bed is layered with cozy textures, from a knitted throw to deep blue accent pillows, creating a warm and inviting ambiance. Sleek black nightstands with gold-accented lamps add a touch of contrast against the neutral walls. The minimalist artwork above the bed complements the modern aesthetic, while the sliding closet doors provide practical storage, maintaining the room’s streamlined appeal.
13. Minimalist Home Office

This sophisticated home office is designed for productivity and focus. A dark wooden desk anchors the space, contrasting beautifully with the light hardwood flooring and soft neutral walls. The desk is adorned with tasteful accents, including two modern lamps and potted greenery, adding warmth and a fresh touch to the room. A striking abstract painting on the wall enhances the contemporary feel. The sliding wooden closet doors provide ample storage while maintaining a streamlined look. With its simple yet refined design, this office is both functional and inspiring.
14. Inviting Bath

This well-appointed bathroom blends practicality with subtle elegance. A long vanity with a white countertop and under-mount sink offers ample space for daily routines, complemented by a large mirror that enhances the sense of space. The tiled backsplash in a muted tone adds a touch of texture and warmth. The bathtub-shower combination features classic ceramic tiles, while the curved shower rod and patterned curtain create a soft, airy feel. Thoughtful details, such as the neatly arranged towels, a decorative tray with essentials, and a vase with fresh greenery, add to the room’s inviting atmosphere.
15. Spacious Lower Level

This lower-level living area is designed for both relaxation and recreation, featuring a cozy seating arrangement around a charming arched brick fireplace. A natural wood beam adds warmth and character, complementing the modern aesthetic. Large windows invite natural light, enhancing the open and inviting atmosphere. The addition of a vibrant red ping pong table transforms the space into an entertainment hub, making it perfect for game nights, social gatherings, or quiet evenings by the fire.
16. Bath with Laundry

This well-designed bathroom combines practicality with style, featuring a modern vanity, a walk-in shower, and a dedicated laundry area with a stacked washer and dryer. Warm-toned countertops and tiled accents add a touch of elegance, while frosted glass provides privacy and natural light. Perfect for daily convenience, this space maximizes efficiency without compromising on aesthetics.
Listing agent – Jill Langer @ Windermere Real Estate North via realtor.com