
This stunning mid-century modern home is a true oasis located in the heart of Atlanta, Georgia, within the desirable Chastain Park neighborhood. Built by Chatham Homes with robust structural steel beams, this residence promises durability and timeless appeal. The house offers 4+ bedrooms and 4.5 bathrooms, with ample space for family and guests across its spacious layout. The property features a bright and airy interior highlighted by a family room with floor-to-ceiling windows that provide breathtaking views of the beautifully landscaped backyard. This outdoor space is a tropical retreat with a heated Pebble Tec pool, multiple koi ponds adorned with frogs and dragonflies, a cabana with an outdoor shower, a half bath, and a bar area perfect for entertaining. Inside, there is a gourmet kitchen with top-of-the-line appliances, custom walnut cabinetry, and a wall of windows, making meal preparation a delight. This exquisite home is listed at $2,195,000, merging mid-century charm, modern luxury, and outdoor paradise on a well-manicured plot area with lush greenery and beautifully designed gardens surrounding the residence.
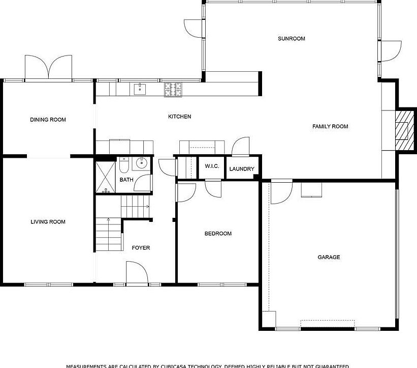
Floor Plan Overview

This floor plan highlights a thoughtfully arranged layout emphasizing open flow between living areas. The front entrance leads into a foyer centered by a staircase. Nearby, a spacious living room and adjacent dining room offer generous space for gatherings. The kitchen is centrally located, providing access to the dining area, family room, and a sunroom, creating a seamless transition for entertaining and daily living. The bedroom on this level includes a walk-in closet and laundry area nearby. The garage is connected through the family room, ensuring functional access. The design balances private and communal spaces efficiently.
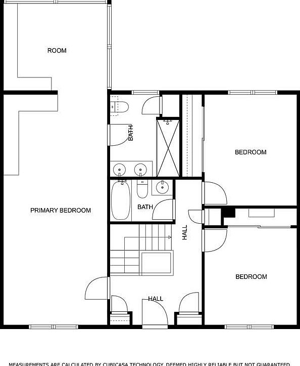
Upstairs Floor Plan

This layout reveals a well-organized upstairs living area featuring a large primary bedroom with an attached spacious room, perfect for an office or nursery. Adjacent to this are two additional bedrooms separated by a hallway, providing privacy for family or guests. Two bathrooms are centrally located for convenience; one includes a double sink vanity and a bathtub, while the other offers a shower and toilet. The hallways connect seamlessly with the staircase, offering easy access to the lower level. The design focuses on clear zoning between private and communal spaces, ensuring functional flow throughout the upper floor.
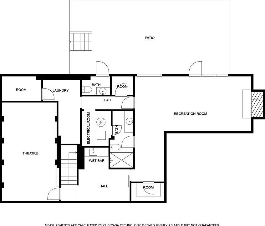
Basement Floor Plan

This basement level is designed for both entertainment and functionality, featuring a spacious recreation room ideal for family activities or social gatherings. Adjacent to it is a wet bar area, perfect for hosting and refreshments. The layout includes two bathrooms for convenience, and a dedicated theatre room designed for immersive viewing experiences. Additional multi-purpose rooms provide extra storage or flexible use. A laundry area is positioned near the theatre, making household chores more accessible. The presence of an electrical room ensures organized utility management. The basement also has outdoor patio access, integrating indoor and outdoor living spaces seamlessly.
Backyard Pool Area

This serene backyard oasis centers around an irregularly shaped swimming pool bordered by natural stone paving that seamlessly integrates with the surrounding landscape. The stone terrace curves gently around the pool, creating inviting walkways and cozy seating areas. Lush greenery frames the scene with mature trees and manicured shrubbery, contributing to a private, woodland feel. The modern home features large floor-to-ceiling glass windows on the lower level, allowing indoor spaces to flow visually into the outdoor sanctuary. Dark exterior siding contrasts with the natural stone and green foliage, evoking a contemporary yet rustic ambiance.
Sunroom Seating Area

This cozy sunroom features expansive floor-to-ceiling windows that frame a lush, green garden with a tranquil pond and stone wall. The seating area comprises two plush, textured armchairs in a muted gray fabric, positioned for optimal outdoor views. Between them sits a small, round side table with a book resting open, inviting relaxation. The room’s white walls and ceiling beams enhance the natural light, creating an airy atmosphere. The contrast between the soft interiors and vibrant outdoor foliage fosters a serene retreat, perfect for peaceful reading or quiet contemplation while surrounded by nature.
Dining Area with Scenic Views

This peaceful dining area is designed for both comfort and connection with nature, featuring floor-to-ceiling windows that wrap around the space, allowing an abundance of natural light and uninterrupted views of lush greenery. The light wood flooring complements the neutral-toned upholstered dining chairs arranged around a simple, modern rectangular table with thin black metal legs. A natural fiber rug with subtle stripes anchors the dining set, adding warmth and texture. Above, a sleek wooden ceiling fan with curved blades adds a sculptural element while maintaining the room’s airy, minimalist vibe. A single armchair is positioned to the left, enhancing the space’s cozy yet contemporary atmosphere.
Living Room Details

This living room showcases a modern and airy design with a neutral color palette centered around soft beige sofas and a lightly patterned area rug that anchors the space. Two abstract black and white art pieces adorn the pristine white walls, adding a subtle artistic touch. A sleek black oval coffee table contrasts with the light wood flooring, while various cushions in earthy tones provide warmth and texture. Accents include two matching side table lamps with sculptural bases, a contemporary gold and white ceiling fixture, and a cozy armchair draped with a soft throw. The open doorway leads into a dining area with large windows, bringing natural light and greenery into view. Overall, the room exudes minimalist elegance balanced with inviting comfort.
Bathroom Details

This bathroom combines sleek modern design with natural warmth. A wooden vanity with clean lines contrasts with the crisp white countertop and integrated sink. The brushed nickel faucet and matching soap dispensers add subtle metallic accents. Above, a large rectangular mirror enhances brightness and reflects the minimalist style. The walk-in shower features light blue geometric tiles, creating visual texture and a calming atmosphere. A frameless glass panel separates the shower area, maintaining an open feel. The floor is covered in light terrazzo tiles that add subtle speckled detail, while the all-white walls and ceiling keep the space feeling fresh and airy.
Home Theater Room

This dedicated home theater features a cozy, intimate layout with two rows of plush, light-colored recliners positioned for optimal viewing of a large projector screen. The walls and ceiling are dark, enhancing the cinematic experience, while subtle blue LED sconces provide soft ambient lighting, creating a relaxed atmosphere. The room is designed for comfort and immersion, offering an ideal setting for movie nights or gaming with excellent acoustics likely provided by the visible speaker setup near the screen. The overall aesthetic is modern and sleek, focused on function and comfort.
Wet Bar Area

This sleek wet bar corner features matte black cabinetry with gold hardware, complemented by a warm wooden countertop that adds subtle contrast. The walls are painted in a deep charcoal shade, creating an intimate and modern vibe. A gold metallic shelf above the sink holds a small selection of bottles and glassware, enhancing the bar’s stylish appeal. A mini beverage fridge with a glass door has a blue light accent, adding a cool, inviting touch. Adjacent to the bar is a light wood sliding barn door on a black track, leading to another part of the home. The flooring is a pale wood laminate, balancing the dark bar area with brightness.
Covered Outdoor Deck

This covered outdoor deck area offers a serene retreat surrounded by lush greenery. The space features a sleek gray wooden floor complemented by dark railings and ceiling, creating a modern yet natural aesthetic. Comfortable seating includes cushioned armchairs and a loveseat in soft gray tones adorned with pastel accent pillows. A black metal coffee table with a small potted plant sits atop a patterned area rug that adds warmth and texture. On one side, a round wooden table with chairs invites intimate dining or relaxing, while large windows from the adjacent interior room provide a seamless indoor-outdoor connection.
Long Kitchen Countertop

This spacious kitchen features a sleek, elongated countertop running along one side, combining smooth white surfaces with rich wood cabinetry below. The cabinetry presents a warm walnut finish with modern gold handles, creating a mid-century feel. The opposite wall integrates additional storage with a combination of green and wood finishes, highlighted by subtle recessed lighting and a small built-in niche with a lamp and plants that add a cozy touch. Natural light floods the space through expansive windows that frame lush greenery outside. The light wood floor complements the bright, airy aesthetic, enhanced by recessed ceiling lights providing a clean, contemporary ambiance.
Kitchen Breakfast Bar

This kitchen features a sleek and modern breakfast bar extending along a large window, allowing natural light to flood the space while providing a clear view of the adjacent outdoor deck. The counter is topped with a pristine white surface that contrasts beautifully with the warm, dark wood cabinetry beneath. Four contemporary bar stools with textured white upholstery and minimalist black metal legs line the counter, offering comfortable seating. In the background, cabinetry in muted green tones with integrated shelving and wooden accents adds sophisticated storage and display options. The light hardwood flooring and white walls keep the area bright and airy, enhancing the clean and inviting aesthetic.
Living Room Details

This cozy living room centers around a fireplace framed by built-in shelving painted in black, contrasting with a sage green accent wall. The shelves display a mix of decorative items and books, adding warmth and personality. A warm caramel leather sofa faces two light gray armchairs, creating an inviting seating arrangement on top of a neutral-striped area rug. Wooden floors and white walls maintain a fresh, clean backdrop, while modern recessed lighting brightens the room evenly. A minimalist piece of abstract art hangs on the far wall, balancing the space with subtle sophistication.
Dining Area with Patio View

This inviting dining area centers around a round wooden table paired with six sleek chairs featuring woven black seats and wooden legs, blending natural textures with modern design. Underfoot lies a circular woven rug that adds warmth to the light hardwood floor, complementing the overall neutral palette. The pristine white walls emphasize brightness and openness, enhanced by a contemporary chandelier with multiple white globe lights hanging above the table. Large glass doors open onto a serene deck surrounded by lush greenery, connecting indoor dining with an outdoor retreat. A subtle abstract painting and a spherical wall sconce add artistic interest while maintaining the clean and airy ambiance. The adjoining kitchen, visible through a doorway, continues the warm wood tones, establishing a cohesive flow throughout the space.
Living Room Details

This serene living room boasts a clean, modern aesthetic with a warm, inviting atmosphere. Crisp white walls and ceilings set a bright stage for the light wood flooring, which enhances the airy feel. The seating arrangement centers around a sleek, dark coffee table with sculptural legs, flanked by two light beige sofas adorned with rust and burnt orange accent pillows. A single upholstered chair with wooden legs and a cozy throw adds texture and comfort. Two terracotta table lamps with white shades bring warmth, complemented by a tall brass floor lamp. A large, muted area rug anchors the space, while a round, black framed mirror hangs on one wall, adding depth and interest. The large window features black and mustard curtains, letting in natural light and views of the green outdoors. Minimalist artwork and a leafy plant complete the tasteful, balanced design.
Home Office & Yoga Space

This serene space serves dual purposes as a minimalist home office and yoga area. Floor-to-ceiling windows dominate two walls, providing uninterrupted views of lush greenery outside and filling the room with abundant natural light. Light wood flooring complements the large built-in wooden cabinetry featuring sleek brass handles, which add a warm, modern touch. A simple white desk with angled legs sits on a black-and-white patterned rug, paired with a molded white chair that balances comfort and style. A small table lamp and potted plant enhance the calm atmosphere, while a ceiling fan with wooden blades supports airflow in this fresh, airy retreat.
Master Bathroom Vanity

This master bathroom features a double-sink vanity with a warm, mid-century modern wooden cabinet base contrasted by a clean, white countertop. The brass fixtures and hardware add a touch of elegance and continuity in color against the white and geometric patterned tiles that cover the shower walls. The shower area is enclosed with frameless glass, showcasing the bold, gray-and-white patterned tile that creates a focal point. Above the vanity, two tall, rounded mirrors with integrated modern brass sconces provide balanced lighting. The bathroom’s overall aesthetic balances modern geometric accents with natural wood tones, resulting in a harmonious and inviting space.
Living Room Fireplace

This spacious living room features a modern, minimalistic design with light wood flooring that brightens the space. A striking black brick fireplace serves as the central focal point, with warm lighting accentuating its texture. The walls and ceiling are painted crisp white, enhancing the room’s airy feel. A ceiling fan with dark blades complements the fireplace’s tone and adds a subtle touch of warmth. Large glass sliding doors and a big window provide a seamless transition to the outdoor covered patio and swimming pool, integrating indoor and outdoor living.
Compact Laundry Nook

This laundry area is efficiently tucked into a corner off a bright hallway with light wood flooring that extends into the living space. Sleek black front-load washer and dryer units fit snugly beneath a simple wooden shelf, offering practical storage. Matte black cabinetry frames the appliances, adding modern contrast against crisp white walls. The ceiling is distinct with a textured 3D geometric pattern and a skylight feature that illuminates the nook naturally. Minimalist black door hardware and understated baseboards emphasize clean lines, merging functionality and contemporary design in this compact utility space.
Home Theater Room

This dedicated home theater room features a sleek and modern design, optimized for an immersive viewing experience. The walls are painted a rich navy blue, creating a cozy and visually focused environment. Soft beige paneling accents the walls, adding a subtle contrast and architectural interest. Six comfortable, light gray reclining seats are arranged in two rows, allowing unobstructed views of the large white projection screen mounted on the far wall. Ambient wall sconces provide indirect lighting, enhancing the theater atmosphere without glare. A ceiling-mounted projector and discreet speakers complete the setup, while a small wooden table with remote controls adds a practical touch in the foreground.
Backyard Pool Area

This serene backyard space features a kidney-shaped pool surrounded by a natural stone patio, creating a seamless blend with the wooded environment. The pool’s edge is accented with dark trim, enhancing its organic shape. Terraced stone retaining walls frame the pool area, integrating lush greenery and shrubs that add texture and vibrancy. Mature trees encircle the space, providing shade and privacy, while the natural stone flooring complements the rustic aesthetic and earth tones. This outdoor retreat invites relaxation with its tranquil ambiance, sophisticated materials, and harmonious connection to nature.
Covered Porch Seating

This serene covered porch features a warm wood-paneled ceiling and matching privacy slats that elegantly blend with the wooden deck flooring. Three woven wicker lounge chairs with floral cushions are thoughtfully arranged, inviting relaxation and comfort. The ceiling fan overhead adds functionality and airflow, enhancing the outdoor experience. The porch opens to a tranquil, landscaped backyard with a stone-lined pond bordered by lush greenery, creating a peaceful retreat. Subtle lighting fixtures add charm and ambience to this harmonious outdoor living space, combining natural materials and thoughtful design for ultimate comfort and beauty.
Want to see more from Remodr?

Drop a comment below, share this with your friends and family, and don’t forget to follow us for more fresh ideas, updates, tips, and home trends.
Listing Agent: JEANNETTE FELDER of HomeSmart via Zillow