
This home is a grand gated estate located in San Jose, California, overlooking the picturesque Silicon Valley. With a stately and elegant architectural style blending classic and modern elements, the residence boasts 3,972 square feet of luxurious living space situated on a sprawling 4.4-acre plot. The exterior showcases a beautifully maintained facade with a combination of brick and stucco, complemented by large windows and a welcoming covered entryway. Inside, the home features spacious interiors including a sweeping staircase at the grand entry, a gourmet kitchen equipped with granite counters, stainless steel appliances, and a cooking island, as well as accesses to an expansive covered deck offering stunning city-light views. The living areas are designed for comfort and style, featuring formal dining with valley and canyon vistas, a living room with fireplace and bow window, and a vaulted family room with stone fireplace and built-ins. The luxurious primary suite is located on the first floor, complete with a private deck, office area, fireplace, dual vanities, jetted tub, oversized shower, and a walk-in closet. Upstairs includes three large bedrooms each with walk-in closets and an updated bath with dual vanities. The lower level offers additional functional spaces including a second en-suite bedroom ideal as an office, laundry, powder room, and a wine cellar. The outdoor area is meticulously curated with gardens, a fruit orchard, vegetable garden, gazebo, large lawn, and a private putting green. Additional features are a 3-car garage, circular driveway, motorhome/boat parking, and a solar system. The property has potential for further additions such as an accessory dwelling unit (ADU), pool, vineyard, tennis court, or additional garages. The listing price for this exceptional estate is $3,498,800. This is a unique and must-see home offering elegant, comfortable living with breathtaking views and abundant amenities.
Front Exterior Entrance

This charming home’s front exterior showcases a sophisticated blend of traditional and contemporary design. The grey stucco façade is complemented by a shingled, multi-gabled roof with dormer windows that add architectural interest and allow natural light inside. The welcoming entryway is accentuated by a brick-trimmed porch featuring double doors framed with glass panels, warmly lit by two sconces. The large concrete driveway leads to a three-car garage with white paneled doors. Landscaping includes neatly trimmed hedges, mature trees, and a flower bed with white and burgundy blooms, adding lush greenery and color to the neatly maintained lawn. Soft sunset lighting creates a warm, inviting atmosphere.
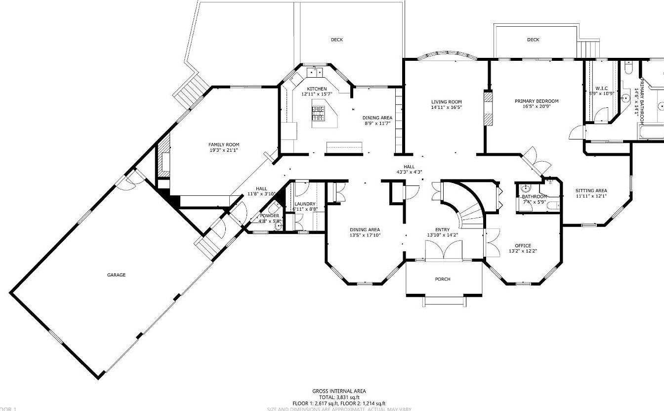
First Floor Layout

This floor plan reveals a thoughtfully designed layout that balances private and communal spaces across 3,831 square feet. The entryway opens via a porch into a foyer featuring a curved staircase, flanked by an office on one side and a formal dining room on the other, each with bay windows adding architectural interest. The living room offers a fireplace and access to the primary bedroom, which includes a walk-in closet and an attached bathroom with a sitting area. Centrally located, the kitchen features an island and opens to a dining area and a family room with large windows. Functional elements include a laundry room, powder room, and direct access to a spacious garage, demonstrating seamless flow and efficient use of space.
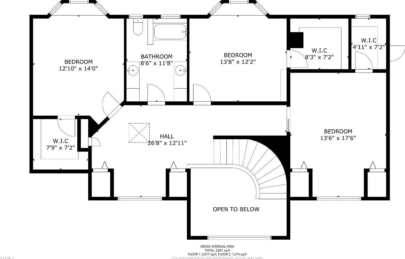
Second Floor Layout

This floor highlights a large central hall measuring approximately 26 feet by 13 feet, which connects three spacious bedrooms and a shared bathroom. The hall features a sweeping curved staircase that opens to the floor below, adding an elegant architectural detail. The bedrooms vary in size, with the largest at 13’6″ by 17’6″ and two others slightly smaller but still ample in space. Two of the bedrooms include walk-in closets, providing generous storage. The bathroom is centrally located, making it easily accessible. This floor plan emphasizes openness, flow, and functional use of space.
Front Entrance Details

The front entrance presents a grand double door painted in deep black with intricate glass panel inserts and decorative scrollwork, creating an elegant focal point. Flanked by tall, narrow windows with a grid design, the entryway invites natural light while maintaining privacy. The porch features classic red brick flooring laid in a traditional pattern, bordered by matching brick kneewalls that add architectural interest and a welcoming feel. A large terracotta planter filled with greenery brings warmth and life to the space, while a simple geometric light fixture on the ceiling ensures functional illumination. The neutral beige walls provide a subtle backdrop that enhances the door’s striking design.
Entry Foyer with Staircase

This bright and airy entry foyer features a gently curving staircase with steps carpeted in a soft gray tone, complemented by natural wood handrails and spindles that add warmth and texture. The walls are painted in a subtle light beige shade with elegant white wainscoting following the stair’s contour, enhancing architectural interest. A chic chandelier with multiple lamps hangs from the high ceiling, casting a welcoming glow. Hardwood flooring extends through the space, connecting to adjacent rooms visible through wide doorways, creating a seamless flow. A round metallic console table with décor accents anchors the stair base, balancing functionality with style.
Living Room with Scenic view

This serene living room features a neutral color palette with light beige walls and soft carpeting that enhance natural light from the large bay window. The seating arrangement includes a plush, tufted sofa paired with two wooden-framed armchairs embracing cream upholstery, centered around a sturdy, square wooden coffee table adorned with decorative pottery and a small plant. Recessed ceiling lights add ambiance, complementing the natural daylight. A classic white fireplace with dark stone surround anchors the space, flanked by built-in white cabinetry. Minimalist artwork and sculpture accents add subtle sophistication to this inviting area designed for comfort and scenic views.
Bay Window Seating

This charming bay window area presents a graceful architectural feature that offers expansive views of a distant valley and sprawling cityscape. The window frames are painted bright white, complementing the light neutral walls and creating an airy feel. A sleek, modern wire sculpture of a bear is artfully placed on the wide, built-in ledge, adding a subtle artistic touch. The scene captures natural greenery just outside, bringing a vibrant contrast to the soft interior palette. Plush seating with a curved arm and neutral upholstery invites quiet contemplation while soaking in the picturesque panorama.
Kitchen and Dining Area

This bright and airy kitchen flows seamlessly into the cozy dining nook, designed for casual family meals or entertaining guests. The kitchen features classic white cabinetry complemented by polished dark granite countertops for a timeless look. A central island painted in soft gray provides additional workspace and storage, with a built-in cooktop underneath a distinctive overhead light fixture that adds warm ambient lighting. The floors are a natural wood finish, contributing warmth and texture. Large windows and sliding glass doors flood the space with natural light and offer panoramic views, while neutral woven valances soften the windows’ lines. The dining area includes a round wooden table surrounded by four dark upholstered tufted chairs, balancing comfort with elegance, and a golden vase centerpiece adds a touch of sophistication, uniting the entire space in a harmonious, inviting atmosphere.
Bright Kitchen with Island

This kitchen features a spacious layout centered around a large island with a polished dark granite countertop, which houses a gas cooktop and offers storage cabinets. The perimeter counters are also granite, paired with crisp white cabinetry providing a clean, classic look. Stainless steel appliances, including a double oven and French-door refrigerator, add a modern touch. Warm wood floors contrast nicely with the cool tones of the counters and appliances. A large bay window with understated roman shades allows for natural light and scenic views, while a unique stained glass ceiling light fixture adds an artistic, elegant focal point to the space.
Breakfast Nook

This cozy breakfast nook features a round wooden table encircled by four elegant tufted chairs upholstered in a dark charcoal fabric, creating a striking contrast against the light surroundings. Along the back wall, a built-in storage unit with classic white cabinetry and decorative glass panels adds a refined touch. Natural light floods the space through large sliding glass doors adorned with beige Roman shades, illuminating the wide plank hardwood floors. The neutral color palette and clean lines promote a warm, inviting atmosphere perfect for casual dining or morning coffee.
Dining Room

This dining room features a round wooden table surrounded by six beige upholstered chairs with nailhead trim, creating an inviting space for gatherings. The walls are painted in a soft taupe above white wainscoting, adding subtle architectural interest and elegance. Natural light pours in through three symmetrically positioned windows that overlook greenery, enhancing the airy feel. Above the table, a classic chandelier with multiple frosted glass shades provides warm illumination. The flooring is light hardwood, complemented by a large neutral-toned area rug that anchors the dining set. A modern abstract painting on one wall adds a contemporary artistic touch.
Living Room Overview

This spacious living room features a vaulted ceiling and a large stone fireplace that acts as a striking focal point between a cozy armchair and a sectional sofa upholstered in light cream fabric. Soft, neutral carpeting adds warmth and complements the clean white walls. Natural light floods the room through double windows and a sliding glass door that opens to an outdoor balcony with expansive views. Blue accent pillows on the sofa bring subtle color, while the wooden coffee table and matching mantle add natural texture. A tall green plant adds a touch of freshness.
Cozy Living Room

This living room features a warm and inviting atmosphere, centered around a stone fireplace with a prominent, natural wood mantel that adds rustic charm. Above the mantel, two framed art pieces harmonize with the earth tones of the stone. A large, light-colored sectional sofa adorned with blue and patterned throw pillows offers abundant seating, complemented by a cushioned armchair. The room’s built-in wooden entertainment center showcases rich wood tones and offers ample storage, housing a flat-screen TV. Soft, neutral carpeting anchors the space, while large windows bathe the room in natural light, enhancing the bright and airy feel. Crown molding and a vaulted ceiling contribute to the architectural elegance.
Living Room Details

This living room blends comfort and elegance with a soft neutral color palette dominated by light beige walls and a plush carpeted floor. A large, light gray sectional sofa accented with blue and patterned throw pillows sits centrally, facing a circular wooden coffee table that adds warmth to the space. Natural light floods the room through multiple large windows that offer expansive views of the outdoors. Recessed ceiling lights provide subtle illumination, while a potted plant adds a touch of greenery. The adjoining hardwood hallway and stylish half-wall stair railing contribute architectural interest, complemented by tasteful artwork and lamps on a console table against the far wall.
Master Bedroom Details

An expansive master bedroom featuring a soft, neutral palette with light beige walls and plush grey carpeting. The room is brightened by recessed lighting and a ceiling fan with a sleek modern design. A cozy fireplace with a classic white mantel and beige marble surround adds warmth and elegance to the space. Opposite the fireplace, a large bed with a tufted headboard is flanked by minimalist white nightstands topped with simple lamps. Above the bed, two abstract art pieces create a serene focal point. Ample natural light fills the room through a trio of glass panels and a sliding door leading to an outdoor balcony with scenic views, enhancing the airy feel of the suite.
Cozy Reading Nook

A serene corner featuring three windows that invite ample natural light, enhancing the airy feel of the space. Two plush, muted blue armchairs with wooden legs and nailhead trim face each other, each adorned with a soft white faux fur pillow, creating a cozy seating arrangement. Between them sits a small round wooden table with decorative items including a succulent and a small book. Neutral tones dominate, with light beige walls and matching light carpet flooring, complemented by white trim and ceiling moulding for a clean, polished appearance. The vignette suggests a tranquil spot perfect for reading or quiet conversation.
Master Bathroom Overview

This spacious master bathroom features a warm, neutral color palette with beige tiled floors and walls accented by decorative horizontal tile strips. A large soaking tub with bronze fixtures anchors one corner, while adjacent wood cabinetry with granite countertops provides ample storage and workspace. The glass-enclosed shower boasts matching tilework and modern fixtures, allowing natural light from the frosted window to permeate the space while maintaining privacy. A large, well-lit mirror above the sinks, framed by round vanity lights, enhances brightness and adds a touch of glamour. The overall design balances functionality with classic elegance in a well-organized layout.
Walk-in Closet

This walk-in closet is designed for maximum storage and organization. It features white built-in shelving units on the left side along with multiple wooden rods on both sides for hanging clothes. The walls and ceiling are painted crisp white, creating a bright and clean atmosphere accentuated by a small window at the far end that allows natural light to enter. The flooring has a soft, neutral carpet with a subtle geometric pattern, adding a touch of texture while maintaining a simple and functional aesthetic throughout the space.
Home Office Nook

This compact home office nook combines functionality with cozy comfort. Warm wood cabinetry lines the left wall, featuring abundant storage with a mix of closed drawers and open shelves adorned with minimalist decor and books. A wooden desk extends into the corner beneath matching upper shelves, offering ample workspace lit by recessed ceiling lights and subtle under-cabinet lighting. Across the room, two cushioned armchairs in a soft, neutral tone create a small seating area beside a round, dark wood side table holding a classic lamp. Three windows with floral valances bring natural light and garden views, enhancing the inviting ambiance.
Cozy Bedroom Nook

This bedroom features a calming, neutral color palette dominated by whites and soft beiges, enhanced by natural light streaming through three side-by-side windows framing a cozy built-in bench with storage drawers below, topped with a subtle green cushion and accent pillow. A white ceiling fan with integrated lighting hovers overhead amidst recessed ceiling lights, emphasizing the room’s bright and airy atmosphere. The carpeted floor adds warmth, while a black desk and beige chair offer a small workspace. On the right, open white shelves introduce subtle decor elements, and a partially open closet door suggests ample storage space.
Shared Bedroom Details

This spacious bedroom features two twin beds with tufted gray headboards, centered by a decorative nightstand with textured cabinet doors. The beds are dressed in crisp white bedding accented with golden-yellow throw pillows that add warmth. Soft plush gray carpet covers the floor, complementing the neutral beige walls. The vaulted ceiling with crown molding enhances the room’s airy ambiance. Natural light filters through a window near a mustard-yellow accent chair in the corner, creating a cozy reading nook. A framed motivational print hangs above the nightstand, adding a personal and uplifting touch to this bright, inviting space.
Master Bedroom with Window Seat

This master bedroom features a serene and neutral color palette, with soft beige walls complemented by light carpeting. A wooden bed frame with a geometric-patterned headboard anchors the room, paired with matching nightstands topped by modern lamps with dark bases. Plush white pillows add texture to the bed’s crisp white linens. The space is brightened by a trio of windows in a bay configuration, creating a cozy window seat with storage cabinetry beneath. The ceiling fan and recessed lighting enhance the room’s light, airy ambiance, while minimalist wall art adds a subtle natural touch.
Upstairs Landing Lounge

This serene upstairs landing area serves as a cozy lounge space with soft, neutral-toned carpet underfoot that complements the light-colored walls. A plush, tufted armchair sits adjacent to a round, dark wood side table adorned with decorative plants, offering a quiet relaxation spot near two wide windows that fill the room with natural light. The space flows seamlessly into a hallway leading to bedrooms, visible at the far end. Architectural details include a wooden banister around the staircase and recessed ceiling lights that provide ample illumination while maintaining a clean, modern aesthetic.
Bathroom Vanity and Tub

This spacious bathroom features a clean and bright design with a white hexagonal tile floor extending throughout. Two white vanities with matching brass hardware and faucets flank the space, each topped with illuminated rectangular mirrors that add a modern touch. The bathtub area is inset with white square tiles and accented by a horizontal strip of mosaic tiles. A muted brown shower curtain hangs on a brass rod, complementing the warm metallic fixtures including the showerhead and tub controls. The small octagonal window adds architectural interest and natural light, balancing the soft beige walls and artistic wall prints.
Bathroom Vanity Area

This bathroom features a dual-sink vanity with white tiled countertops and backsplash accented with small mosaic tile borders. The cabinetry is painted white with brass hardware, complementing the warm brass faucets. Each sink is paired with a large, backlit rectangular mirror that provides soft, even illumination. The floor is covered in white hexagonal tiles with subtle grout lines, tying the space together in a clean, cohesive style. Neutral beige walls balance the bright white surfaces, while the ceiling light fixture offers additional ambient light. A tall linen cabinet is conveniently placed between the vanities, maximizing storage without crowding the space.
Bathroom Corner

This compact bathroom corner features a clean, minimalist design with a light neutral color palette dominated by soft whites and beiges. The shower has a distinct octagonal shape with white tiled walls and a gold-tone framed glass enclosure that adds subtle warmth and elegance. A white pedestal sink with brass-finished hardware sits beneath a large mirror framed in complementary gold. Soft, white towels hang neatly on gold fixtures, and two floral artwork pieces in muted tones introduce a gentle decorative touch, enhancing the space’s calm and inviting atmosphere. The overall design balances simplicity with refined accents.
Laundry Room Details

This airy laundry room features a clean, bright aesthetic dominated by white cabinetry with silver hardware, creating a fresh, timeless look. The pale tile countertops with soft grout lines complement the white walls and cabinetry, adding subtle texture. Built-in upper and lower cabinets maximize storage on both sides, maintaining an organized and efficient workspace. A single window at the end allows natural light to filter in, with a view of greenery outside. The neutral beige tile flooring ensures durability while harmonizing with the space’s muted color palette. Practicality combines with simplicity in this well-appointed utility area.
Outdoor Patio Seating

This outdoor patio area features an expansive deck with a light gray wooden floor and a white pergola overhead, casting artistic striped shadows. The space is furnished with a cozy outdoor seating set made of woven rattan in neutral tones, accented with soft coral and patterned cushions to add warmth. Beyond the lounge area is a dining table with matching chairs, perfect for al fresco meals. The railing is simple white metal, ensuring unobstructed panoramic views of the lush greenery and distant hills under a bright blue sky dotted with fluffy clouds. The design balances comfort and openness with contemporary elegance.
Backyard Patio View

This outdoor space features a neatly manicured green lawn bordered by a curved brick-paved patio area centered around a classic stone fountain. The white metal railing encloses the patio, providing a subtle contrast to the natural earth tones and greenery. The backyard overlooks an expansive, panoramic view of a sprawling suburban landscape with rolling hills and distant mountains under a bright blue sky dotted with soft clouds. The layout emphasizes open space and serenity, blending well-maintained gardens with breathtaking vistas, ideal for relaxing or entertaining while enjoying the natural surroundings.
Listing Agent: Chris Knox of Compass via Zillow