
This charming single-story home located in Fremont, Nebraska, offers a warm and inviting outdoor space perfect for relaxation and entertaining. Featuring a contemporary ranch architectural style, the residence is priced at $675,000. The home sits on a spacious plot with beautifully landscaped terraced yards and a dedicated fire pit area, ideal for cozy evenings outdoors. While the exact year the home was built and recent renovations are not provided, the well-maintained exterior and modern patio design suggest attention to detail and possible updates. This property boasts an expansive patio area with comfortable seating arrangements, large windows allowing ample natural light, and a covered porch area for outdoor dining and gatherings, enhancing both indoor and outdoor living experiences.
Floor Plan

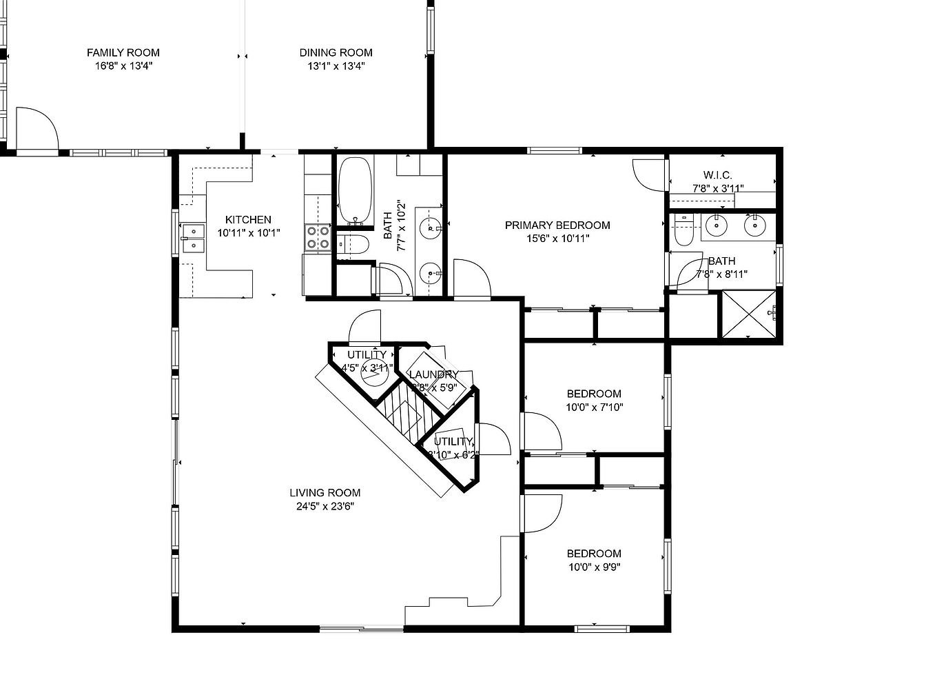
This well-organized floor plan highlights a spacious living room at the center, measuring 24’5” by 23’6”, creating a grand and open social hub. Connected to it is a compact kitchen, efficiently designed at approximately 11 by 10 feet, adjacent to the dining room sized 13’1” by 13’4”. The layout also includes a family room and three bedrooms including a generous primary bedroom with a walk-in closet and private bathroom. Additional utility and laundry areas are cleverly integrated into the space, maximizing functionality while maintaining open, flowing movement throughout the home.
Living Room with patio Access

A spacious living room featuring a high vaulted ceiling with wooden beams and a ceiling fan. The seating arrangement includes a dark leather sofa and two recliners, accented with colorful throw pillows in yellow and blue patterns. A large, patterned area rug anchors the seating zone, sitting atop neutral-tone tiled flooring. Multiple sliding glass doors offer abundant natural light and provide access to an outdoor patio space, highlighting the connection between indoor and outdoor living. Soft beige walls and soft lighting from side lamps create a warm, inviting atmosphere, complemented by simple decorative elements and greenery.
Kitchen

This kitchen features an L-shaped layout with honey oak cabinetry and granite countertops extending into a peninsula that doubles as a breakfast bar with two cushioned stools. The backsplash is tiled in neutral beige tones that complement the similarly hued, large ceramic floor tiles. A window above the stainless steel sink provides natural light, highlighting the warm wood tones and sleek granite surface. Decorative mugs and a “Coffee” sign sit atop the cabinets, adding a cozy, personal touch. A ceiling fan with lights ensures comfort, blending practicality with a welcoming atmosphere.
Dining Area and Adjacent Living Room

The dining area features a rich wooden table with six matching chairs upholstered in neutral tones, creating a cozy yet elegant setting. A light blue runner and a decorative orchid centerpiece add subtle color and freshness. The space is illuminated by a ceiling fan with light fixtures, balancing functionality with style. Neutral beige walls and large ceramic floor tiles enhance the room’s warm and inviting atmosphere. Through an open archway, the living room is visible with comfortable leather seating, a unique natural wood coffee table, and a geometric patterned rug. Expansive windows flood the space with natural light, offering scenic views and connecting the rooms seamlessly.
Sunroom Seating Area

This sunroom offers a cozy yet stylish seating space with an earthy color palette of warm browns and neutral tones. Natural light flows in through large wraparound windows that create a bright and airy atmosphere while providing views of the outdoor scenery. The room centers around a striking rustic live-edge wood coffee table on a geometric-patterned rug blending shades of blue, brown, and beige. Reclining leather armchairs and a matching sofa add comfort, pairing classic craftsmanship with casual relaxation. Thoughtful touches like plants, a floor lamp, and mounted television complete this inviting retreat.
Master Bedroom

This corner of the master bedroom features a large, comfortable bed dressed in muted taupe bedding with subtle, leaf-patterned designs and layered with multiple decorative pillows in complementary neutral tones. Light lavender-gray walls provide a calm and soothing backdrop, while two small windows with sheer white valances allow soft natural light to filter in. On one side, a bedside lamp casts a warm glow, enhancing the cozy atmosphere. A ceiling fan with lights provides functionality and air circulation. The mounted flat-screen TV in the corner maximizes space, balancing comfort with modern convenience. The plush, earth-toned carpet adds warmth and texture to the space.
Cozy Bedroom

This bedroom corner combines functionality and comfort with a soft, muted color palette dominated by pale blue walls and light gray bedding. A white chest of drawers stands beside the bed, topped with a decorative stained-glass lamp that adds a touch of artisanal charm. The bed is neatly made, featuring a collection of pillows including a long cylindrical bolster and floral-patterned sleeps pillows. Light filters through a window dressed with delicate, ruffled lace curtains, enhancing the room’s serene and inviting atmosphere. A framed landscape painting on the wall adds warmth and a natural element to the simple, calming design.
Master Bedroom

This master bedroom features a calming pastel blue wall color paired with soft brown carpeting, creating a cozy and serene atmosphere. A large bed dressed in a white comforter and matching pillows, including a single purple accent pillow, anchors the space. On either side of the bed, wooden nightstands with bright lamps provide balanced lighting. Above the bed, sheer white curtains soften the natural light coming through the window. A ceiling fan with wooden blades hangs overhead, complementing the warm tones of the furniture. A framed swan artwork and a small bench near the door add subtle touches of character and practicality. The open doorway reveals a glimpse of an adjoining bathroom with light pink walls and tiled flooring.
Bathroom Vanity Area

This bathroom features a soft lavender wall color that adds a calming atmosphere. The double vanity has a white countertop with two oval sinks, each equipped with chrome faucets. Underneath, white cabinetry provides ample storage, complemented by a matching overhead cabinet for additional space. A large rectangular mirror spans the width of the vanity, illuminated by a row of globe light bulbs above, enhancing brightness. A small potted plant adds a touch of greenery. To the left, a white toilet sits beneath a framed piece of art, and a frosted glass shower door is visible by the far wall. The overall design balances functionality with a fresh, gentle color palette.
Laundry Closet

This compact laundry closet fits a white front-loading dryer and washing machine side by side, nestled neatly behind bifold doors. Above, open wooden shelves provide practical storage for laundry essentials like detergent, fabric softener, and folded linens. The walls are textured and painted in a neutral off-white, contrasting with the natural wood tones of the shelving. The closet opens into a hallway with beige-tiled flooring and simple white trim, adding to the clean, functional aesthetic. The adjacent cabinetry and open shelving nearby hint at organized household storage beyond the laundry area.
Covered Patio

This spacious covered patio overlooks a tranquil waterway, creating a perfect blend of indoor-outdoor living. The ceiling is finished with white planked panels that complement the stucco walls and provide a clean, bright overhead space. A wooden ceiling fan with dark blades hangs centrally to offer a cooling breeze. The floor is stamped and stained a warm reddish color, adding texture and vibrance to the area. Seating includes a round glass-top table with wicker chairs featuring striped cushions, and a curved bar-height counter with multiple metal and mesh stools, ideal for entertaining while enjoying the scenic water view.
Backyard Patio

This spacious backyard patio features a textured, reddish concrete floor that adds warmth and durability to the outdoor living area. A round glass-top table with wrought iron legs is complemented by four wicker chairs with green cushions, creating an inviting dining space. Nearby, two white Adirondack chairs with a green palm-patterned pillow and a single black reclining chair offer additional relaxation spots. The beige stucco exterior wall of the house has exposed brick accents and decorative ladybug wall hangings, infusing charm and personality. The patio overlooks a serene lakeside view with docks and trees, enhancing its tranquil, nature-inspired ambiance.
Outdoor Firepit Area

This backyard space features a circular stone firepit centrally located on a patterned concrete patio, bordered by a low retaining wall constructed of stacked stone blocks. Beyond the patio, a sandy shoreline leads down to a calm waterfront with dock access and moored boats. The area is shaded by mature trees, adding natural greenery and a sense of privacy. The house exterior visible here exhibits light-colored stucco with red trim, complemented by bright blue flower pots overflowing with vibrant blooms, offering a charming contrast and cheerful curb appeal in this serene lakeside setting.
Listing Agent: Kori Krause of NP Dodge RE Sales Inc 148Dodge via Zillow