
This fixer-upper property, located in the serene city of Foster, Oregon, offers a unique investment opportunity with stunning lake views of Foster Lake and Green Peter Mountain. The home embodies a lodge-style architectural vibe, emphasized by its vaulted and beamed ceilings in the spacious living room, perfect for a lake house setting. Built with solid foundations and updated systems, the home features a heat pump and A/C installed in 2017, a well holding tank from 2015, a hot water heater from 2020, and a newly replaced main composite roof in 2024, ensuring durability and modern comforts. The residence includes three bedrooms, two bathrooms, and a large recreation room, ready for your creative renovation ideas to bring it to its full potential. Listed at $439,950, this spacious home promises great possibilities in a prime lakeside location.
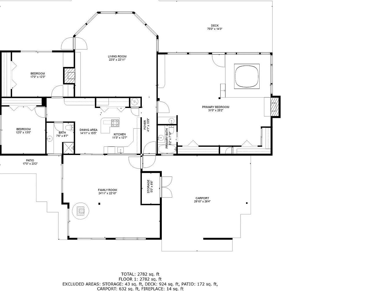
House Floor Plan Overview

This spacious floor plan encompasses a welcoming foyer leading to multiple distinct areas. The home features a large family room with a fireplace, adjacent to a patio, ideal for entertaining. The living room is generously sized with a distinctive angled wall of windows, allowing natural light to fill the space. The kitchen and dining area create a functional hub near the center, optimized for workflow and accessibility. Three bedrooms include a primary suite with an attached bath and access to a deck, offering both privacy and outdoor enjoyment. Additional storage and a carport complete the layout, reflecting thoughtful design and practical living.
Entry Hallway

Stepping inside through the distinctive black front door featuring intricate carved patterns, the entry hallway extends long and narrow with light gray walls and a textured ceiling. The flooring consists of pale tiles with subtle geometric designs, leading the eye toward the bright living area beyond. Three wrought iron pendant lights hang in a row from the ceiling, adding an old-world charm to this transitional space. The hallway’s simplicity in color and decor highlights the architectural beams and large windows visible ahead, creating an inviting passage that connects to the heart of the home.
Entryway and Kitchen Island

The entryway features a dark wooden front door with geometric paneling that contrasts with the bright white walls and light-toned tiled flooring. Two wrought iron pendant light fixtures with intricate scrollwork add a touch of vintage charm to the otherwise simple space. As you move further, an open view into the kitchen reveals a central island made of medium-tone wood cabinetry, topped with a built-in stovetop and a matching overhead vent hood. The kitchen maintains a clean, functional feel with neutral colors, while natural light filters in from a sliding glass door at the back, enhancing the airy atmosphere of this transitional zone.
Living Room with Fireplace

This spacious living room features a striking combination of natural materials and large windows that bring the outdoors in. The vaulted ceiling with exposed beams is clad in warm wood, complemented by a ceiling fan and an antique-style chandelier for layered lighting. A full brick wall anchors the space, showcasing a built-in wood stove fireplace for cozy ambiance. Floor-to-ceiling windows with unique geometric shapes offer panoramic views of surrounding trees and hills, flooding the room with natural light. The soft, light-colored carpet enhances comfort while balancing the rustic architectural details.
Kitchen Layout and Features

This kitchen boasts a functional layout centered around a wooden island with an electric stovetop and an overhead range hood, framed in matching wood cabinetry. The cabinetry extends along the walls, featuring a mix of drawers and cupboards in a warm medium-tone wood finish. A large window above the sink offers natural light and views into an enclosed outdoor space with wood siding and beams. The flooring is a light beige tile with a subtle pattern, complementing the white walls and ceiling, creating a spacious and clean atmosphere. Sliding glass doors lead to an outside patio, enhancing indoor-outdoor flow.
Kitchen Island and Pantry

This kitchen area features a compact island with a built-in electric stove and oven in black, contrasting with the warm wood tones of the cabinetry. Overhead cabinetry extends above the stove, providing extra storage while housing a black range hood. The kitchen design highlights natural wood finishes with a classic, slightly retro appeal. Along one wall, louvered wooden pantry doors add texture and warmth. The countertops are light-colored, creating a subtle contrast against the wood. The space is bright and airy, with a light ceiling fan and neutral walls enhancing the welcoming atmosphere.
Laundry Room Storage

This laundry area features an efficient use of vertical space with built-in shelving painted a muted sage green, matching the walls and creating a cohesive look. The built-in countertop provides a convenient folding or sorting surface, while open shelves offer ample storage for detergents and supplies. The floor shows clear utility connections and tape outlining placement for laundry appliances, hinting at an unfinished or in-progress setup. A wooden bi-fold door with horizontal slats adds a touch of warmth and traditional style, contrasting with the cooler green tones and vinyl tile flooring, represented in light, neutral hues.
Breakfast Nook

This cozy breakfast nook features a clean, minimalist design with white walls and a light-colored vinyl floor that mimics stone patterns. The space is illuminated by natural sunlight streaming through a large sliding glass door framed in varnished wood, offering a view into a sunroom or enclosed porch with striking red carpeting. A ceiling fan with wooden blades and a round light fixture hangs overhead, adding functionality and subtle charm. The room’s neutral color palette and uncluttered layout make it a versatile spot for casual dining or morning coffee, seamlessly connecting indoor and outdoor living areas.
Living Room with Sunken Hot Tub

This spacious living room features expansive floor-to-ceiling windows on two walls, inviting abundant natural light and showcasing serene forest and mountain views. The walls are painted in a crisp white, contrasting with the deep magenta plush carpet that covers the entire floor, creating a retro yet cozy atmosphere. A unique sunken hot tub area is integrated into the corner of the room, surrounded by large windows and topped with an angled wooden ceiling and exposed beams, adding architectural interest. A white painted brick fireplace anchors the space, while a small chandelier provides soft overhead illumination. Sliding glass doors lead to adjacent rooms, completing the open and airy layout.
Recreation Room with View

This spacious recreation room features a striking deep red plush carpet that extends throughout the floor, creating a bold, retro vibe. On one side, a built-in wooden cabinet with drawer storage and a long countertop area is set against a wood-paneled accent wall, complemented by a large rectangular mirror and vintage-style sconce lights. The opposite side reveals floor-to-ceiling windows and a glass door, framing a scenic forested landscape and lake views, inviting natural light. The ceiling transitions into wood paneling with exposed beams above a raised platform that likely holds a hot tub, blending rustic charm with mid-century character.
Bathroom Details

This bathroom features a compact layout with soft pink ceramic tiles covering the walls around the bathtub and vanity area, creating a subtle retro vibe. A frosted glass window framed with natural wood adds privacy while allowing natural light to filter in. The bathtub is classic white, paired with a sleek, modern showerhead on a flexible hose. A red shower curtain adds a bold pop of color, harmonizing with the striking red sink basin set into a black countertop. Below, natural wood cabinets provide storage, contrasting the colorful elements with warmth and simplicity. The mirror extends above the vanity, reflecting light to enhance the room’s brightness. Overall, the bathroom exudes a vintage charm with functional, vibrant accents.
Bathroom Vanity and Tub Area

This bathroom features a warm wooden vanity with multiple cabinet doors beneath a dark countertop, complementing the soft pastel pink tile walls that extend halfway up. A matching pink bathtub and a similarly hued shower curtain add a retro charm to the space. The floor is tiled in a classic black and white hexagonal pattern, creating a subtle contrast to the pink tones. Above the vanity, a large frameless mirror spans the wall, reflecting the room’s layout, and a mirrored medicine cabinet with wooden trim adds extra functionality. Brass towel rings and a mounted light bar contribute to the room’s vintage aesthetic.
Bedroom with Retro Touches

This bedroom features a mix of vintage and natural elements. One wall is clad in medium-toned wood paneling, adding warmth and texture, complemented by inset brick-accented shelves that provide architectural interest and practical storage. The opposite wall is painted in a crisp, soft white, maintaining brightness and balance in the space. The floor is covered with a vibrant, patterned carpet in shades of blue, green, and gray, which contrasts with the neutral walls and adds a playful, retro vibe. The door opens into what appears to be a kitchen or adjoining living area, connecting the spaces fluidly.
Living Room with Deck Access

This living room features a large sliding glass door that opens directly onto a wooden deck, offering stunning views of lush trees and distant hills. The walls combine white paint with a wood-paneled accent wall, giving a retro yet cozy feel. A recessed nook with exposed brick adds architectural interest and a rustic touch, complemented by a built-in bookshelf. The carpet is vintage-style with a blend of blue, green, and beige floral patterns that add color and texture. Together, these elements create a room full of natural light and inviting character.
Bathroom Vanity Area

This bathroom features a long, white-tiled countertop with an inset olive-green sink, complemented by a large mirror stretching the length of the vanity. The cabinetry below is made of warm wood with a natural finish, adding a touch of classic style. The walls are painted a soft blue, creating a serene and calming atmosphere, paired with square white tiles halfway up the walls. The shower area, visible to the left, has a silver-framed glass enclosure. Decorative patterned floor tiles and matching accent tiles with circular sunburst motifs on the backsplash and wall edges lend a vintage charm to the space. A metal towel rack and frosted window frame complete the design.
Bathroom Vanity and Shower

This bathroom area features a linear vanity topped with white tiled countertops and built-in sink in a muted beige tone. A large mirror spans the length of the vanity, reflecting the light from a row of globe bulbs on a fixture above. The walls are painted a soft sky blue above a half-height white tile wainscoting adorned with a decorative round floral tile border. The window trim is finished in natural wood, adding warmth to the space. Adjacent is a shower enclosed with a frosted sliding door. The patterned floor tile combines gray and earthy brown hues with intricate geometric floral motifs, contributing an artistic touch to the vintage-inspired aesthetic.
Sunroom with Wood Stove

This spacious sunroom features a rustic yet bright design, anchored by a free-standing wood stove perched on a round brick hearth, perfect for cozy warmth. Natural light floods through large sliding glass doors that open to the garden, enhancing the airy ambiance. The ceiling consists of exposed wooden beams painted white, adding architectural interest and complementing the vertical wood paneling on the walls. The standout feature is the vivid red carpet that covers the floor, providing a bold contrast to the neutral tones and inviting a lively, energetic atmosphere. Skylights contribute additional sunlight, enhancing the open, inviting vibe of this versatile indoor-outdoor space.
Backyard Patio Cover

This cozy backyard patio features a red-stained wooden pergola with a translucent roof, offering protection while still allowing natural light to filter through. The flooring uses reddish-brown square tiles arranged neatly, tapering off into a grassy yard space. A simple wire fence borders the area, enhancing the sense of openness while maintaining subtle boundary control. Lush greenery surrounds the space, including mature trees and a small rock-bordered garden bed, giving a natural, serene atmosphere. The overall aesthetic combines rustic and functional elements, perfect for appreciating the outdoors year-round in a low-maintenance setup.
Backyard Exterior View

This peaceful backyard features a rustic wooden house surrounded by tall pine trees, providing a serene natural setting. The home’s exterior showcases vertical wood paneling painted in a warm brown tone, harmonizing with the earthy landscape. Two large sliding glass doors allow abundant natural light and easy access to the outdoors. A small covered porch area with simple red wooden supports adds a subtle accent to the façade. The garden is edged by a natural rock border with low greenery and shrubs, blending the home organically into its woodland environment.
Want to see more from Remodr?

Drop a comment below, share this with your friends and family, and don’t forget to follow us for more fresh ideas, updates, tips, and home trends.
Listing Agent: MINDI HOLSTEIN of Re/Max Equity Group via Zillow