
Welcome to a unique mid-century modern architectural masterpiece located in the prestigious North Beverly neighborhood of Chicago, IL. This historic home, known as the Klarich and Michel House, was designed in 1949 by the acclaimed Chicago architect S. Richard Klarich as his personal family estate. The residence has been carefully preserved by only three families since 1951 and proudly carries a historic designation from the Ridge Historical Society. Offered at $850,000, this meticulously maintained and lovingly cared for estate is more than a home—it is a legacy, rich with history.
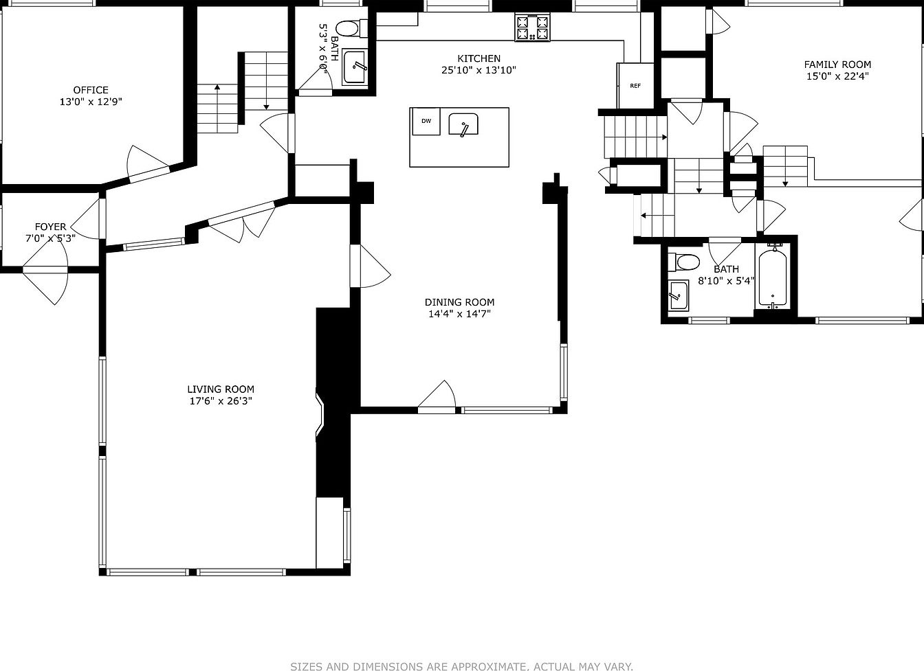
First Floor Layout

This floor plan highlights an open and well-organized main floor with distinct functional areas. The large living room (17’6” x 26’3”) is positioned prominently, offering a spacious area likely for relaxation and entertaining. Adjacent is the dining room (14’4” x 14’7”), connected directly to the kitchen (25’10” x 13’10”), which features an island with integrated sink and dishwasher, enhancing the flow for cooking and socializing. Additional spaces include an office, two bathrooms, and a sizable family room to the right, supporting varied household activities. The foyer and staircase placement create clear entry and transition points, emphasizing practical circulation throughout the home.
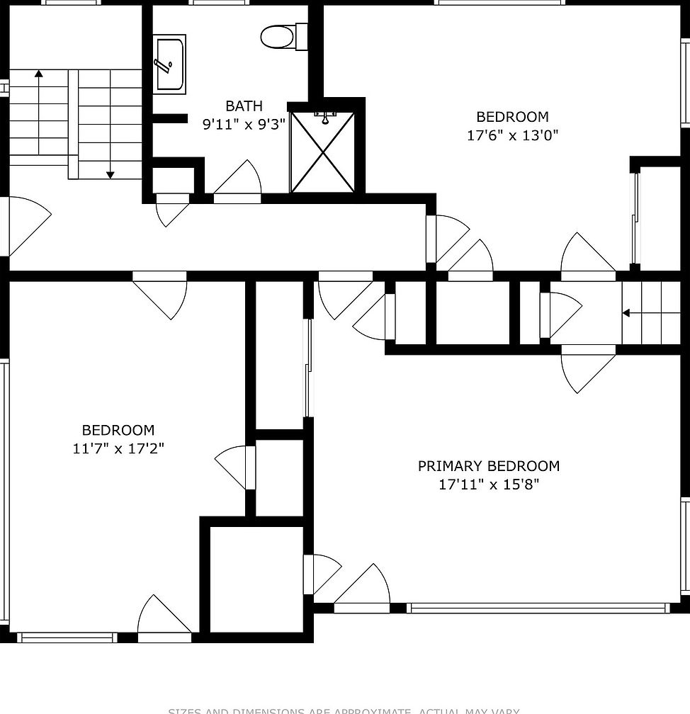
Upper Floor Layout

This plan details the upper floor arrangement featuring three bedrooms and a bathroom. The primary bedroom, the largest at roughly 17’11” by 15’8″, sits prominently with two doors providing access to adjacent areas. Another bedroom measures 17’6″ by 13’0″ and is positioned near the bathroom, sized 9’11” by 9’3″ and equipped with a vanity, toilet, and a shower. A third bedroom, 11’7″ by 17’2″, sits nearby with easy access from the central hallway. The layout optimizes flow between rooms with multiple doors and closets, reflecting a balanced design for comfort and privacy.
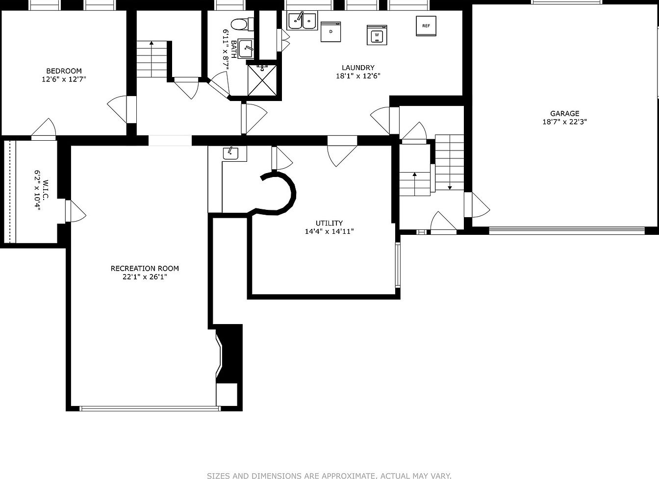
Basement Floor Plan

This basement layout offers a spacious recreation room measuring 22’1″ x 26’1″, ideal for entertainment or relaxation, connected to a walk-in closet providing ample storage. A bedroom sized 12’6″ x 12’7″ offers private quarters here. The utility room, centrally located at 14’4″ x 14’11”, provides functional space, adjoining a laundry room with washer, dryer, and sink, measuring 18’1″ x 12’6″. A compact bathroom with shower and toilet is conveniently placed nearby. The garage space measuring 18’7″ x 22’3″ connects through a stairwell leading upstairs, completing this practical and organized area.
Living Room Details

This sunlit living room boasts a harmonious blend of mid-century and contemporary design elements. The space features large, wood-framed windows that flood the room with natural light, offering expansive views of greenery outside. A rich, cognac leather sectional anchors the seating area, complemented by two plush, mustard velvet armchairs, creating an inviting conversation nook. The floor is adorned with a traditional Persian-style rug in deep reds and blues, adding warmth and texture to the parquet flooring. A sleek glass coffee table sits in the center, while a stone hearth fireplace with horizontal tile lines brings a subtle architectural focal point. Lush green plants add a touch of nature indoors, completing the cozy and elegant atmosphere.
Modern Kitchen Island

This kitchen features a spacious white quartz island with a built-in sink and black pull-down faucet, perfect for food preparation and casual dining. Four sleek black bar stools offer seating along the island’s wood-paneled base. The perimeter cabinets are rich, warm wood with minimalist brass handles, complemented by geometric white and grey backsplash tiles that add texture and visual interest. Two large pendant lights with matte black and gold interiors hang above the island, providing focused illumination. Stainless steel appliances, floating wooden shelves, wide windows with natural wood frames, and light hardwood floors complete the inviting, contemporary design. A staircase to the right leads to an upper level, enhancing the open flow.
Dining Room

This well-lit dining area features a mid-century modern wooden table paired with six matching chairs with black cushions, set atop a geometric striped rug. The room highlights warm honey-toned hardwood floors arranged in a herringbone pattern, complementing natural wood window trim and door frames. A round-paned wooden door adds vintage character while a contemporary linear chandelier with globe bulbs provides modern elegance overhead. Large windows bring in ample daylight, connecting the space to the outdoors. An audio cabinet with retro speakers and a globe create an inviting, nostalgic ambiance that blends classic and modern design elements seamlessly.
Bathroom Vanity and Toilet

This bathroom features a modern aesthetic with a combination of sleek and warm elements. The vanity showcases rich wood cabinetry with horizontal gold handles, topped with a smooth white countertop housing a rectangular undermount sink. Matte black fixtures, including a three-piece faucet set, add a contemporary contrast. The wall behind the vanity is a standout with navy blue wallpaper accented by a gold speckled pattern, creating a luxurious focal point. A gold-framed oval mirror and wall sconce with a white shade enhance the elegance. A small floating shelf holds a green hanging plant and framed art, complementing the natural light streaming through the multi-pane window. White hexagonal floor tiles add subtle pattern and texture to the space.
Cozy Living Room Nook

This intimate living space features rich, dark wood-paneled walls that create a warm, inviting atmosphere. A large window dressed with sheer white curtains layered under heavier gray drapes floods the room with natural light. The corner is furnished with a sizable charcoal gray sectional sofa, punctuated by colorful geometric throw pillows that add a lively contrast. A glass-top coffee table with a dark wooden base sits atop a patterned area rug in soft blues, pinks, and creams, complementing the natural wood parquet flooring. Wooden stairs with a simple railing lead to an elevated adjacent room, separated by a rustic half-wall. The ceiling fan with wooden blades adds functionality without compromising the room’s cozy aesthetic.
Staircase Landing

This landing area features warm honey-toned wooden stairs and parquet flooring that contrast beautifully with the soft grayish-white walls. Natural light filters through square glass block windows both above the upper stairwell and beneath the down staircase, illuminating the space gently. A wooden handrail runs alongside each flight of stairs, emphasizing the clean, classic architectural lines. An adjacent room with a textured glass and wooden door reveals a glimpse of a tiled bathroom interior. Decorative touches include a tall textured planter with lush green plants and framed artwork nestled within a recessed wall niche, adding a personalized, inviting feel to this transitional area.
Bedroom with Garden View

This cozy bedroom features a harmonious blend of natural wood and soft neutral tones. The parquet flooring adds warmth and texture, beautifully complemented by a large abstract rug in black and white beneath the bed. The bed itself is dressed in crisp white linens with subtle stripes, accented by delicate blush pink pillows. A wooden dresser with vintage charm sits to the side, adorned with artwork and a stylish lamp. Floor-to-ceiling windows framed in natural wood flood the room with light and offer a serene view of lush greenery, while beige curtains provide privacy and elegance. A ceiling fan with wood blades completes the inviting space with both function and style.
Bedroom with Scenic Views

This serene bedroom features a cozy, understated layout centered around a low-profile bed dressed in muted green bedding, contributing to a calm ambiance. Large windows along two walls are framed by neutral beige curtains, inviting abundant natural light and offering lush outdoor views that enhance the peaceful atmosphere. Rich wood paneling on the lower half of the walls and polished parquet flooring introduce warm, natural textures, complemented by a vibrant, intricate area rug that adds layers of color and pattern. The space balances simplicity with charm, promoting relaxation and connection to nature.
Bathroom Vanity and Fixtures

This bathroom features a modern, clean design with a focus on simplicity and functionality. The vanity has a wood grain finish with three drawers, topped with a sleek white countertop and an integrated sink. A round mirror with a thin black frame enhances the space above the vanity, complemented by a minimalist pendant light hanging from the ceiling. The wall color is a soft neutral gray, providing a calm backdrop that contrasts subtly with the bold, large black hexagonal floor tiles. A single window framed in white lets in natural light, brightening the room and emphasizing the contemporary yet cozy atmosphere. The toilet is a classic white design, positioned under the window, with a chrome toilet paper holder mounted on the wall beside it.
Basement Lounge Area

This cozy basement lounge features rustic charm with a strong emphasis on natural textures. The floor and lower walls are adorned with warm terracotta tiles, complementing the horizontally grooved brick wall that adds unique architectural character. A large gray sectional sofa paired with a sleek black coffee table sits atop a neutral area rug, anchoring the space while providing comfort. The wood-paneled wall opposite the sofa introduces organic warmth, illuminated by modern track lighting overhead. A built-in bar counter with three rattan stools topped with light blue cushions invites casual socializing, visible through an open serving window linked to an adjacent room. The overall palette blends earthy tones with soft neutrals for a welcoming ambiance.
Kitchen Pass-Through Counter

This cozy kitchen pass-through features a warm, rustic aesthetic with exposed brick walls framing a window-like counter opening. The counter surface is a soft coral color, adding a pop of vintage charm against the earthy brick and handcrafted wood details. Folding wooden shutters provide flexibility to open or close the space between the kitchen and adjoining room. Below, three round stools with light blue cushioned tops and rattan wood bases invite casual dining or conversation. Inside, the kitchen reveals wooden cabinetry, a stainless steel vent hood, and a smooth white wall with a single shelf holding glassware, balancing old-world charm with functional simplicity.
Bright Bedroom Retreat

This bedroom features a striking orange upholstered bed frame as the focal point, complemented by matching vibrant orange pillows that inject warmth and personality. The room is designed with a two-tone wall finish, combining a soft white brick pattern on the lower half and a muted dark taupe on the upper, creating contrast and texture. Natural light streams in through two rectangular windows with wooden frames, brightening the space. A minimalist media console with a flat-screen TV is positioned opposite the bed, paired with a green leafy plant adding life. The light wood flooring and simple ceiling lighting complete this modern, cozy retreat.
Bathroom Vanity and Shower

This bathroom area blends functionality and simplicity with a muted, fresh color palette. Soft green walls complement the sleek, white vanity topped with a smooth counter and stainless steel faucet. Above, a large mirrored cabinet doubles as storage and reflects light, enhancing the room’s brightness. A narrow window with wooden frames introduces natural light while maintaining privacy. The adjacent shower is tiled in clean white with a modern handheld showerhead design, enclosed subtly without doors. The floor contrasts with linear dark tiles, grounding the space in understated elegance.
Outdoor Patio Dining Area

This inviting outdoor patio features a covered dining space with a modern metal table and matching chairs with beige mesh seating, perfect for al fresco meals. The area is framed by warm reddish-brown brick walls, adding a cozy, rustic touch while complementing lush green trees visible nearby. A built-in brick grill or fireplace niche serves as a focal point, topped with a decorative wrought iron wall piece that enhances the charm. Large black-framed windows and a door link the patio to the interior, blending industrial elements with natural textures. The concrete floor adds durability and simplicity to the space.
Backyard Lawn

This spacious backyard offers a lush, well-maintained green lawn framed by a variety of dense shrubbery and small trees along the wooden fence line, creating a natural privacy screen. The lawn provides ample open space for outdoor activities or potential landscaping enhancements. A concrete pathway runs adjacent to the lawn, directly connecting the house to the yard, ensuring easy access. The surrounding neighborhood is visible beyond the fence, with rooftops and power lines extending across the bright blue sky. The overall aesthetic is clean, simple, and inviting, ideal for relaxation or entertaining in a suburban setting.
Want to see more from Remodr?

Drop a comment below, share this with your friends and family, and don’t forget to follow us for more fresh ideas, updates, tips, and home trends.
Listing Agent: Frankie DaPonte of @properties Christie’s International Real Estate via Zillow