
This stunning riverfront home at 6403 Riverside Road in Fennville, MI, offers a rare blend of modern comfort and elegant design, perfect for those seeking a refined private retreat. This spacious residence boasts 4 bedrooms and 4 spa-style bathrooms, emphasizing luxury living. The home sits on a generous plot that includes over 270 feet of private riverfront, allowing for breathtaking unobstructed water views and the convenience of docking a boat right at your doorstep. This expansive outdoor space includes a patio with a gas fireplace, ideal for enjoying serene nature moments with family and friends. Listed at $2,650,000, this property offers an extraordinary opportunity to embrace the good life in one of Michigan’s beautiful riverfront settings, combining privacy, luxury, and stunning views in a unique package.
Floor Plan

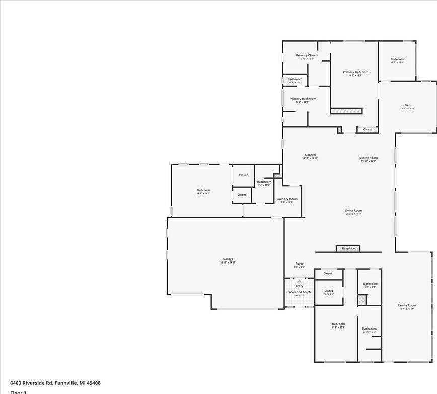
This floor plan reveals a spacious and thoughtfully designed single-story home with multiple bedrooms, bathrooms, and versatile living spaces. The layout includes a large garage on the left with direct entry through the laundry room into the main living areas. The central part features an open-concept kitchen, dining, and living room with a fireplace as a focal point. The primary bedroom suite is secluded on the top side, complete with a bathroom and closet. Additional bedrooms and bathrooms are distributed across the home, with a family room and den providing flexible space. The entry features a screened porch leading to a welcoming foyer with multiple closets for storage.
Entryway and Living Area

This bright entryway features a warm wooden front door with glass panels, inviting natural light inside. The light wood plank flooring extends through the space, creating a seamless flow. White walls amplify the room’s airy feel, complemented by modern, artistic touches such as colorful wall art and a sunburst mirror. A vibrant orange armchair anchors the living area near a sleek black fireplace framed in white, adding warmth and a focal point. Above, contemporary pendant lights with artistic glass orbs hang from the high ceiling, enhancing the space’s modern, welcoming aesthetic.
Living Room Details

This spacious living room boasts a bright and airy atmosphere, enhanced by white walls and a ceiling with exposed beams. Natural light flows through large windows, offering scenic views of the outdoors and a nearby body of water. Furnished with modern sofas in neutral tones accented by rich burgundy and orange cushions, the seating arrangement centers around an oval wooden coffee table paired with a round glass top. A colorful abstract rug adds vibrancy, while a sleek modern fireplace embedded in the wall provides warmth and a stylish focal point. Artistic decor and sculptures punctuate the space, blending contemporary design with cozy comfort.
Open Dining and Living Area

This spacious open-plan area blends the dining room, living room, and kitchen effortlessly, creating a warm, inviting atmosphere. Clean white walls and ceilings with exposed beams complement light wood flooring, enhancing natural light reflection. The round wooden dining table is encircled by six textured gray upholstered chairs, offering intimate seating. Adjacent, a cozy living space features an olive-green velvet sofa, a fireplace with colorful abstract art above it, and vibrant heart-themed wall decor. The kitchen showcases sleek wood cabinetry, a white countertop island with modern bar stools, and a large window filling the room with daylight.
Modern Kitchen Island

This kitchen features a spacious central island with a sleek white countertop, ideal for meal preparation and casual dining. Surrounding the island are stylish wooden stools with black seats, adding warmth and a mid-century touch. The cabinetry combines rich, natural wood tones with crisp white upper cabinets, creating visual balance and contrast. Stainless steel appliances, including a built-in oven and a modern range hood, emphasize the contemporary aesthetic. The room is illuminated by recessed ceiling lights and a skylight, ensuring brightness that complements the clean lines and minimalist design of the space. Light hardwood flooring completes the inviting atmosphere.
Living Room Details

This living room features a spacious, modern layout with a large gray sectional sofa that offers ample seating. The floor-to-ceiling windows flood the space with natural light and deliver a stunning view of lush trees and a river beyond, enhancing the serene atmosphere. Light wood flooring complements the neutral tones while a textured rug adds warmth and pattern. A leopard print armchair introduces a bold, playful touch, contrasting the sleek sofa. Colorful abstract art on the crisp white walls adds vibrancy, and minimalist ceiling fan and recessed lights maintain a clean, contemporary aesthetic.
Master Bedroom Overview

This master bedroom features a calm, minimalist aesthetic with clean lines and a neutral color palette dominated by soft whites and beige tones. A large upholstered bed with a beige headboard anchors the space, layered with simple white bedding for a crisp, tidy look. On either side, wooden nightstands with modern table lamps bring warmth with their rich, dark wood and angular design. The wide window on the right floods the room with natural light and offers lush views of greenery outside, creating a serene and inviting atmosphere. The hardwood floor complements the neutral tones, accented by a subtle area rug beneath the bed, while recessed ceiling lights and a modern ceiling fan add both function and style.
Bathroom with Tub

This bathroom features a minimalist and contemporary design with a focus on clean lines and neutral tones. The central element is a sleek, white freestanding bathtub positioned beneath a large window with grid-style panes, allowing natural light to flood the space and provide a view of lush greenery outside. The walls are painted a soft white, matching the trim and doors, which frame two adjoining rooms, one with a cozy wood floor and a neutral cushioned stool. The floor in the bathroom area contrasts with a large rug featuring organic, pebble-like patterns in earth tones, adding texture and warmth to the serene and uncluttered environment.
Bathroom Vanity and Shower

This bathroom features a sleek, modern design with a spacious dark wood vanity that spans the length of one wall, fitted with two undermount sinks and minimalist black hardware. Above the vanity, a large mirror framed by two linear wall sconces provides ample light and a clean visual flow. The walls and ceiling are painted a crisp white, contrasting subtly with the earthy tones of the pebble stone shower floor and the tiled shower walls. The walk-in shower is enclosed with a frameless glass door, enhancing the open, airy feel of the space, while a patterned neutral rug adds warmth and texture to the otherwise smooth tiled floor.
Sunroom Seating Area

This sunroom offers a cozy yet open seating space with ample natural light streaming through large windows on two sides, showcasing a serene riverside view. The neutral-toned sectional and matching armchairs in muted taupe provide comfortable seating, accented by patterned black and white pillows that add subtle visual interest. A simple rectangular coffee table anchors the arrangement, placed on a textured area rug with organic, flowing patterns that complement the natural scenery outside. The white beadboard ceiling and soft wood flooring enhance the airy feel, while deep red window and door frames add a warm contrast against the dark gray shiplap walls.
Home Office Nook

This compact home office nook features a sleek, modern design with clean white walls and cabinetry that enhance the bright, airy atmosphere. A long, white desk extends along the window, providing ample workspace illuminated by natural light from the adjacent glass door. Below the desk, a minimalist stool on a grey circular-patterned rug adds comfort without clutter. A tall shelving unit displays framed photos and books, while a cabinet offers additional storage. Light wood flooring contrasts warmly with the stark white, coordinating with black door hardware and subtle decor, creating a calm and organized workspace.
Living Room Details

This long, narrow living room features a calming natural palette dominated by light wood-paneled walls and white plank ceilings with exposed beams. Two dark wood ceiling fans hang above, complementing the warm honey-toned wood floors. A spacious L-shaped beige sectional sofa adorned with burnt orange pillows anchors the seating area, paired with a rounded black leather ottoman topped with a wooden tray. Large windows on one side flood the room with natural light and offer serene views of lush trees and water. An adjacent white chaise lounge, modern TV console, and vibrant artwork add personality to the airy, inviting space.
Sunroom Seating Area

This sunroom features light wood-paneled walls that complement the warm-toned hardwood flooring, creating an inviting, rustic yet modern atmosphere. Large windows with black mullions provide expansive views of lush greenery and a river outside, flooding the room with natural light. The ceiling is white with exposed beams and recessed lighting, enhancing the airy feel. A wooden bar-height table with a sleek marble top is paired with three minimalist stools featuring black metal frames and cushioned seats, inviting casual gatherings. A ceiling fan above adds comfort, while a small plant on the bar introduces a touch of greenery to the serene space.
Bedroom with Garden View

This bedroom features a minimalist, calming design with soft beige walls and a large window that offers a serene view of lush greenery outside. A comfortable bed with a dark upholstered headboard is dressed in crisp white bedding, accented by colorful geometric patterned pillows that add a lively touch. Matching white nightstands flank each side of the bed, each topped with a modern, cylindrical lamp that casts warm, inviting light. The floor is covered with a large textured rug in muted tones over wide plank wood flooring, creating a cozy and balanced ambiance. A vibrant Moulin Rouge poster adds a nostalgic splash of color and character to the space.
Bedroom with Garden Access

This spacious bedroom features a minimalist design with clean lines and a calming neutral color palette of white walls contrasted by warm wooden flooring. A low-profile wooden bed with neutral-toned bedding sits against one wall, flanked by a built-in wooden headboard with an integrated reading lamp. The room is brightened by three windows and a glass door that opens directly to a serene garden area, bringing nature into the space. The striped area rug adds texture and subtle color, balancing the modern furniture including a cushioned armchair and a wooden dresser. Ceiling fan and air conditioning unit enhance comfort.
Bathroom Vanity and Shower

This bathroom features a clean and modern design with a neutral color palette dominated by soft whites and light grays. The vanity area includes a sleek countertop with a vessel sink and a contemporary chrome faucet, complemented by a large framed mirror above. The cabinetry below offers ample storage with shaker-style doors in white, maintaining a minimalist aesthetic. The shower is enclosed by a clear glass door and includes white subway tiles arranged in a classic horizontal pattern, contrasted by pebble-like dark flooring. Subtle touches such as a small vase with orange tulips and neatly placed white towels add warm and inviting accents. Overall, the space feels bright, organized, and elegantly understated.
Riverside Lawn and Garden

This serene outdoor space features a lush, green lawn that gently slopes down to a calm riverbank. Mature trees provide shade and natural beauty, framing a picturesque view of the water. Along the edge of the river are small docks and seating areas perfect for relaxation or fishing. The adjacent house, painted in dark muted tones with white trim, complements the verdant landscaping filled with ferns and groundcover plants. The overall aesthetic emphasizes nature, tranquility, and connection to the waterfront, offering an inviting space for outdoor enjoyment and peaceful retreat.
Front Yard and Exterior

A charming stone walkway meanders through well-maintained greenery toward a single-story home surrounded by mature trees. The lush garden features neatly mulched beds with ornamental grasses and shrubs, providing a welcoming natural border. The house exterior is painted in muted earthy tones, blending seamlessly with the verdant landscape. Expansive windows with dark trim invite natural light inside and create a strong indoor-outdoor connection. The roofline is modest and flat, suggesting a mid-century modern influence, complemented by simple landscaping that emphasizes a tranquil and inviting atmosphere.
Garden Pathway

This serene garden pathway runs alongside the house’s exterior wall, featuring deep gray siding with cream trim around windows and doors. The pathway is crafted from irregularly shaped stone slabs set in a natural arrangement over a bed of earth and mulch. Lush greenery and a variety of shrubs with broad leaves flank the path, blending seamlessly with the tall trees whose trunks rise beside it. Beyond the garden, a tranquil body of water is visible under a bright blue sky, creating a peaceful and natural ambiance that invites exploration and relaxation.
Backyard Patio Seating

This inviting backyard patio is centered around a modern rectangular fire pit with realistic flames, surrounded by six cushioned chairs and a matching three-seat sofa in muted beige tones with sleek, silver metallic frames. The seating is arranged on a natural stone floor, adding rustic charm while blending seamlessly with the lush green landscape around. Mature trees provide shade and privacy, while a hammock hung between two trees enhances relaxation. The background reveals a spacious lawn, manicured garden beds, and a contemporary home façade with large windows, creating a harmonious indoor-outdoor connection.
Listing Agent: Kersh Ruhl of Coldwell Banker Woodland Schmidt via Zillow