
This charming home in Kingston Springs, TN, is a beautiful blend of classic and contemporary architectural styles, featuring a welcoming façade with a mix of brick and siding, steep gabled roofs, and elegant window shutters. Nestled on a sprawling 2.8-acre flat and level yard, this property boasts privacy with its wooded corner lot setting, enhancing its serene and natural appeal. Built prior to recent updates, the house has been thoughtfully renovated with several modern touches, including an updated primary bathroom that features double sinks and a tiled glass door shower with a built-in shelf. The interior offers an excellent layout with a primary bedroom conveniently located on the main level, two additional bedrooms, and a large bonus room upstairs providing great separation of space for family and guests. Notable features include a gas fireplace set in a living area with sky-high ceilings, zero carpet on the main floor, and abundant storage closets throughout. Practical amenities include a separate laundry/mud room with built-in shelving, a two-car garage, and all stainless steel kitchen appliances included with the sale, along with a washer and dryer. The outdoor space is equally impressive with a covered back patio and a separate covered pergola perfect for a hot tub, plus a large 24×36 metal shop building ideal for storing UTVs, boats, additional vehicles, or serving as a workshop. This home is an outdoor enthusiast’s dream, located just minutes from parks and the Harpeth River, evoking tranquil Gatlinburg vibes. Positioned in a prime location about 16 miles from Bellevue and 25 miles from downtown Nashville, residents enjoy proximity to the quaint downtown Kingston Springs, known for local dining and coffee options. With no HOA and availability of high-speed internet, this home also benefits from the highly regarded Kingston Springs Elementary, a Tennessee “Reward” school. Listed at $619,900, this thoughtfully designed property offers a perfect blend of comfort, style, and functionality on a substantial lot in a desirable community.
Entryway

This welcoming entryway corner highlights a crisp white front door accented by a narrow vertical window that allows natural light to filter in, offering a glimpse of the greenery outside. The staircase railings combine rich dark wood with white spindles, providing classic contrast and elegance. The overall palette is soft and inviting, blending light walls with dark wood for a timeless, cozy feel.
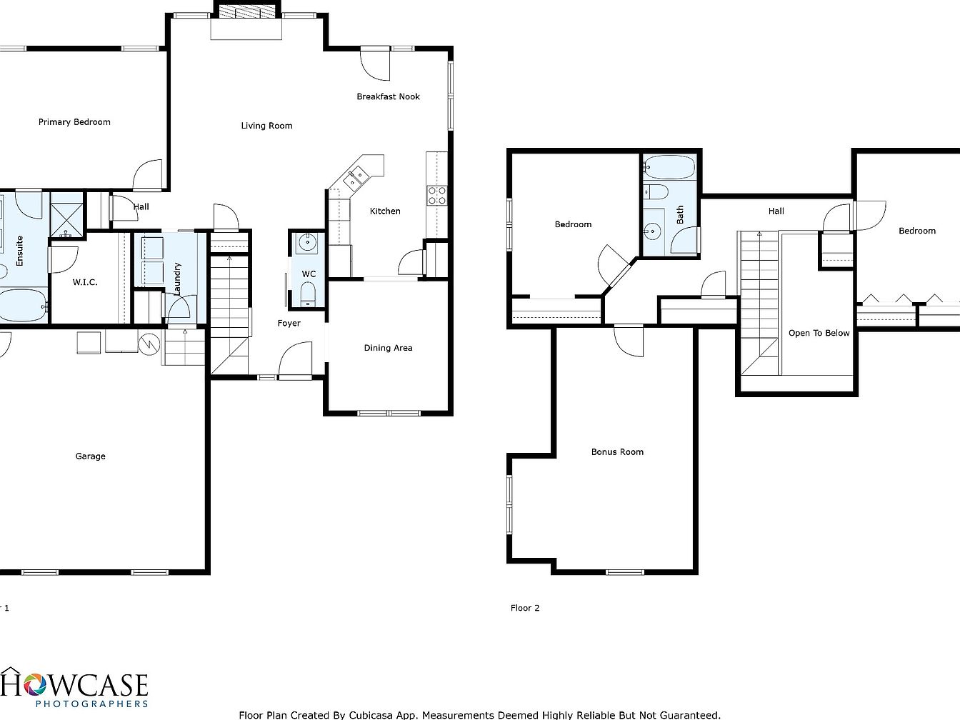
Floor Plans

This two-level floor plan features an efficient and well-organized layout. The main floor centers around an open living room, kitchen, and dining area arrangement. Adjacent to the kitchen is a cozy breakfast nook with access to the outdoors, perfect for casual meals. The primary bedroom on this level includes an ensuite bathroom and walk-in closet, offering privacy and convenience. A laundry room and a half bathroom are located near the foyer and garage. Upstairs includes two bedrooms, a shared full bathroom, and a spacious bonus room, making it an ideal space for family living or entertaining.
Cozy Living Room

This spacious living room centers around a large, comfortable gray sectional sofa adorned with textured cream and beige throw pillows, promoting a warm and inviting atmosphere. A wooden coffee table with a white painted base adds a rustic farmhouse touch, complementing the hardwood floors’ natural warmth. The room features a vaulted ceiling with a ceiling fan offering both style and function. A striking stone fireplace with a white mantle anchors the space, topped with a wall-mounted TV. Soft wall decor, including two symmetrical distressed wood window-frame pieces and a framed inspirational quote, enhances the room’s calm and homey aesthetic. Natural light pours in from a window near the fireplace, balancing the earthy tones throughout.
Dining Room

This inviting dining area features a sleek, dark wooden table surrounded by six beige chairs with black cushioned seats, creating a warm contrast. The light-toned hardwood floors complement the soft neutral wall color, fostering a calm and spacious feeling. A large, arch-topped window with white plantation shutters allows natural light to flood the space while offering privacy. Above the table, a distinctive geometric chandelier adds an element of rustic charm. A minimalist framed sign with the word “gather” hangs centrally, enhancing the welcoming ambiance of this room designed for family meals and social gatherings.
Kitchen and Patio Access

This bright kitchen features white cabinetry with matte black hardware, creating a modern yet timeless aesthetic. The granite countertops offer a speckled gray pattern, complementing the stainless steel appliances including a microwave, stove, and dishwasher. A herringbone tile backsplash adds subtle texture and style behind the cooking area. Light wood flooring runs throughout, enhancing the warm and inviting atmosphere. A peninsula with a double sink separates the kitchen from an adjacent living space with a stone fireplace. At the far end, French doors lead to a lush green backyard, with a cozy white wooden bench and standing lamp tucked beside a window for a quaint nook.
Master Bedroom

This master bedroom features a calming neutral palette with soft taupe walls complemented by warm wood flooring. A tufted, upholstered bed with nailhead trim serves as the focal point, framed by two vintage-style cream nightstands topped with classic bedside lamps providing cozy lighting. At the foot of the bed, a cushioned bench adds both comfort and functionality. The striped area rug introduces subtle texture and pattern, tying the room together. A ceiling fan with wooden blades hangs centrally for comfort. Natural light filters in through a large window, illuminating the room’s inviting, serene atmosphere. Minimal decorative accents maintain a clean, understated elegance.
Bathroom

This bathroom features a bright, calming design with neutral tones. The space is anchored by a natural wood vanity with black hardware and a white marble countertop that holds two dark bronze faucets. Above the vanity, a large mirror reflects a set of industrial-style light fixtures with cage covers. A white alcove bathtub sits adjacent to a window that allows natural light to fill the room. Above the tub, a rustic framed greenery wreath adds a touch of nature. Minimalist floating wood shelves with black brackets display candles and small decor, enhancing the modern farmhouse aesthetic. The floor is covered in large, light-colored tiles with subtle veining, contributing to the clean and fresh ambiance.
Walk-in Closet

This spacious walk-in closet features a clean and practical layout with white walls and light-colored tile flooring that mimics marble. Two levels of white metal wire shelving run along adjacent walls, offering ample hanging space for various jackets, shirts, and casual wear. On the right side, a dark wood cube organizer with beige fabric bins adds functional storage for smaller items or folded clothes. The overall aesthetic is minimalist and utilitarian, emphasizing organization and accessibility, with subtle, neutral tones creating a calm, orderly environment ideal for keeping personal belongings neatly arranged.
Laundry and Mudroom

This smartly designed laundry and mudroom combines practicality with cozy charm. On one side, a deep red front-loading washer and dryer are topped with a rustic wooden countertop, providing ample folding space. Above them, floating wooden shelves and a small cabinet offer storage for laundry essentials. Opposite, a built-in white cubby bench system provides organized seating and compartments for shoes or bags, blending functionality with clean, bright aesthetics. Light beige walls and wood-look tile flooring create a warm, inviting atmosphere, while recessed lighting enhances the room’s usability and welcoming feel.
Bedroom

This cozy bedroom features a soft, neutral wall color that enhances natural light streaming through a large window framed by patterned curtains. A daybed adorned with a variety of pastel and textured pillows creates a welcoming nook on one side, complemented by a colorful, abstract rug that adds vibrancy across the floor. Opposite, a blush pink accent chair with a matching ottoman sits atop a small white rug, contributing to the delicate, feminine aesthetic. White bifold closet doors maintain a clean, organized look while a ceiling fan with warm wood blades provides comfort and subtle charm.
Bathroom

This bathroom features a soft pink wall color that adds warmth and charm. A large, frameless mirror spans above a dark wood vanity with matte black handles, topped with a white tiled countertop and integrated sink. The black faucet enhances the modern yet cozy aesthetic. To the right, a white toilet stands adjacent to a bathtub enclosed by a light beige textured fabric shower curtain hung on a bronze curtain rod. Warm-toned wooden flooring completes the look, creating a seamless blend of contemporary and inviting design elements.
Cozy Bedroom

Soft gray walls and plush beige carpeting create a warm and inviting bedroom setting. The white wooden bed frame with classic panel detailing anchors the space near a large window, drawing in natural light filtered by simple cream curtains. Twin nightstands on either side of the bed hold a small lamp and decorative objects, complementing the neutral tones. A vintage-inspired teal vanity with an ornate mirror offers a charming contrast and adds character. The ceiling fan with wooden blades blends functionality with an earthy feel, while framed art and personal touches complete the serene, homey vibe.
Attic Bedroom Space

This spacious attic bedroom features a vaulted ceiling with sharply angled walls that create a cozy yet airy atmosphere. The soft beige carpeting complements the light cream-colored walls, enhancing the room’s warm and neutral palette. A small arched window centered on the far wall allows natural light to illuminate the space, while an additional window draped with sheer curtains brightens the corner. Modern track lighting runs along the ceiling, providing focused illumination. The room’s clean lines and minimalist design offer a versatile foundation for personalization, combining architectural character with a tranquil, inviting ambiance.
Cozy Media Room

This media room features a warm and inviting layout, highlighted by soft beige walls and plush, light carpeting that adds comfort underfoot. A large TV is stationed on a sleek black glass stand positioned near one corner, accompanied by a quaint white side table topped with a classic lamp providing ambient lighting. The space is light-filled due to two types of windows: a distinctive arched window with a divided grid pattern and a pair of traditional double-hung windows dressed in neutral-tone curtains, offering serene views of lush greenery outside. The ceiling has a modern track light fixture enhancing illumination.
Listing Agent: Callie Southerland of simpliHOM via Zillow