
This enchanting home, a classic example of Tudor Revival architecture, was built in 1927 and is situated in the highly desirable South Park Hill neighborhood of Denver, Colorado. The residence proudly showcases quintessential Tudor elements such as a steeply pitched gable roof and charming arched doorways, portraying timeless historic craftsmanship. Inside, the home features beautiful hardwood flooring and a spacious living room that flows effortlessly into a sunlit dining area designed for entertaining. The kitchen combines vintage character with modern functionality, equipped with premium appliances, tasteful finishes, and a convenient butler’s pantry. The bedrooms are cozy and filled with natural light, perfectly suited for tranquil retreats. Outdoor amenities include a private garden courtyard with mature landscaping, creating a peaceful oasis ideal for relaxation or social gatherings. Additional features include a covered composite deck with built-in storage and a finished walk-out basement, which offers a bedroom, bathroom, den, office, laundry room, and extra storage, providing versatile living options. A two-car detached garage with a small storage area completes the property. This rare gem perfectly balances historic romance with modern comfort and style, and notably, there is no HOA. The listing price for this distinguished home is $746,000.
Floor Plans

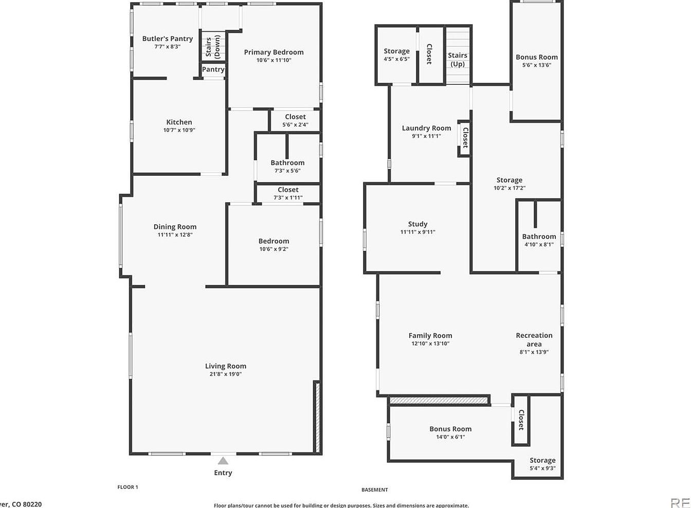
This detailed floor plan outlines a well-organized two-level home featuring functional divisions between living, dining, and sleeping areas on the first floor. The entry opens into a spacious living room, adjacent to a large dining room and kitchen, which includes a butler’s pantry for additional storage. Two bedrooms and a primary bedroom with multiple closets and a bathroom cluster together for convenience. The basement highlights versatile spaces such as a family room, recreation area, study, bonus rooms, laundry room, multiple storage areas, and an additional bathroom, supporting diverse lifestyle needs. The layout balances communal and private areas effectively.
Living Room

This inviting living room blends comfort with classic style, featuring warm wood flooring and neutral walls that create an open, airy feel. A large sectional sofa in dark gray anchors the space atop a traditional patterned area rug. Accent furniture includes a round side table and a wooden square coffee table, complemented by a textured pouf. Decorative framed artwork aligns neatly on the walls, enhancing the homey atmosphere. Soft curtains frame the windows near the front door, where a clock adds subtle charm. The room also includes a modern ceiling fan, a tall wooden cabinet, a stylish floor lamp, and a small round orange padded stool for a touch of vibrant color.
Dining Area with Living Room View

This cozy dining area features a round wooden table with a natural log base surrounded by four wooden chairs upholstered in striped fabric and cane backs. Soft yellow walls complement the warm hardwood floors that extend into the adjacent living room, visible through a wide, arched opening. The dining space is brightened by a vintage-style chandelier with glass candle covers hanging centrally above the table. A charming painted console with a fruit motif rests beneath three large windows adorned with light beige blinds. Various potted plants around the room add a lively touch of greenery and freshness, creating a welcoming and homey atmosphere.
Cozy Kitchen Space

This kitchen features a warm, inviting design with light wood cabinetry accented by black hardware, creating a soft contrast against the beige walls and tiled backsplash. The countertops are a light, speckled material that complements the natural tones throughout the space. Stainless steel appliances, including a stove, dishwasher, and coffee maker, add a modern touch. A small window above the sink brings in natural light filtered through a sheer curtain adorned with a floral pattern. Wood flooring adds warmth, while a ceiling fan with lights enhances comfort and illumination. An open pass-through connects the kitchen to an adjacent room, enhancing openness.
Utility Room Overview

This utility space is bathed in natural light from a series of large windows fitted with soft white roller shades, creating a bright and airy atmosphere. The long, black countertop rests above rich, warm wooden cabinets that provide ample storage options, balancing functionality with elegant finishes. The pale walls and white window trim add to the lightness of the area, while details like the wooden door with brass hardware and neatly placed decorative plants bring subtle warmth and personality. Practical elements such as multiple power outlets and a wall hook rack reinforce the room’s organized, purposeful design.
Cozy Bedroom Ambiance

The bedroom features a warm and inviting atmosphere with a soft, floral light blue bedspread accented by two decorative pillows and a beige throw. Walls display a unique color contrast with a rich beige behind the bed and a calming light blue opposite, creating visual interest. A ceiling fan with multiple light bulbs hangs overhead, supporting ambient lighting. A wooden closet with sliding doors sits opposite the bed beside a hallway entry framed in white trim that leads to other parts of the house. The carpeted floor in muted brown enhances the room’s cozy feel, while artwork on the walls adds personality and charm.
Bathroom Vanity and Shower

This compact bathroom features a dark wood vanity with clean lines, topped by a light beige countertop that holds an undermount sink with an oil-rubbed bronze faucet. Above it, a large rectangular mirror framed in matching dark wood reflects a warm, ambient light from dual wall sconces. To the right, a textured half-wall with a beige, stucco-like finish separates the vanity area from a shower stall with a curved curtain rod and frosted glass block window providing natural light. The white toilet stands adjacent against a pristine white wall, completing the neutral and functional space.
Cozy Single Bedroom

This intimate bedroom features soft beige walls that complement the dark wooden bed frame with elegant vertical slats. The bed is dressed in soothing shades of green, with a textured bedspread and a mix of patterned and solid pillows adding comfort and visual interest. A small wooden chair and a woven basket are placed near the window, which is fitted with a pleated shade that diffuses natural light softly into the room. Plush gray carpeting adds warmth underfoot, while minimal artwork above the bed enhances the room’s calm and inviting aesthetic.
Basement Recreation Area

This cozy basement area is designed as a multifunctional space combining relaxation, fitness, and entertainment. The room features a warm mustard-colored sectional sofa adorned with patterned pillows and a quilt, placed atop a textured rug that complements the wooden flooring. The walls are painted a soft neutral shade, paired with a ceiling of white acoustic tiles. To the left, an exercise bike and a Total Gym machine offer workout options, while a wooden shelf displays a guitar and percussion instruments. An arcade machine adds a playful touch, making this a versatile living spot for leisure and activity.
Cozy Reading Nook

This intimate space blends functionality and charm, featuring a compact writing desk with distressed black finish that doubles as a storage unit. The rich wood grain flooring adds warmth, contrasted by neutral white walls and ceiling tiles that keep the area bright. A mid-century modern wooden dresser with clean lines anchors the corner beneath a small window, providing ambient light alongside a soft-glowing table lamp. A vintage wooden chair with a patterned cushion invites relaxation, while the open bookshelf displays a collection of books. Artistic touches like a hanging decorative planter and sculptural objects complete the inviting, eclectic atmosphere.
Laundry Room Details

This laundry room features a compact and practical layout with a washer and dryer positioned side by side under a set of white, overhead storage cabinets. The cabinetry has a simple design with round knobs, providing ample space for detergents and cleaning supplies. A small sink with a basic faucet is integrated into the white quartz countertop, perfect for hand washing or pre-treating stains. The space has a mix of flooring, with wood-look vinyl near the appliances and a carpeted section in front of the doorway. The lighting includes a wall-mounted fixture, and the ceiling shows signs of needing repair, covered temporarily with plastic. The walls are painted white, lending the room a clean, if utilitarian, appearance. Featuring a single small window with a curtain, the laundry room is modest but functional.
Covered Outdoor Patio

This cozy covered patio blends comfort and functionality with a warm, inviting atmosphere. The wooden decking creates a natural foundation, complemented by brown support beams and an overhead metal roof for shade and protection. Comfortable wicker seating, adorned with patterned cushions, invites relaxation, while metal wire chairs provide a modern contrast. A central fire pit table serves as a gathering focal point. Earth-toned curtains frame the space, easily adjustable for privacy or airflow. Beyond, the yard includes a weathered wooden fence, a garage with an open door, and a bold red-and-white trailer, adding character and urban charm to the outdoor retreat.
Covered Backyard Deck

This cozy backyard deck features a warm wooden floor that extends into a covered seating area accessed by a few steps with modern black railings. The covered section includes a charming bench swing with a patterned cushion, perfect for relaxation. A contemporary hanging light fixture adds style and ambiance under the cream-toned overhead covering. The uncovered deck portion hosts a simple, dark metal dining table with matching chairs, ideal for outdoor meals. The surrounding walls and structures are clad in natural wood tones, creating an inviting blend of rustic and modern outdoor living under a bright blue sky.
Backyard Patio and Garden

This backyard features a cozy patio area attached to the house, showcasing a raised wooden deck with a small seating arrangement of modern chairs and a table. The deck is partially covered with a canopy supported by metal posts and beige curtains, offering shade and privacy. The exterior wall of the home is painted in warm tan tones, complementing the natural wood of the deck. A set of steps leads down to a garden space with raised bed planters bordered by rustic wooden beams and a pathway made of stones and white gravel. Mature trees beyond the fence provide a natural backdrop, enhancing the serene and inviting outdoor aesthetic.
Listing Agent: Tiffany Osborn of Orchard Brokerage LLC via Zillow