
This charming residence is a classic ranch-style home, nestled in the highly sought after Pleasant Valley neighborhood of Colorado Springs, CO. Offering 4 bedrooms and 3 baths, this spacious home is designed with both comfort and elegance in mind. The interior showcases an open floor plan with abundant natural light streaming through numerous windows, creating a warm and inviting atmosphere. Hardwood floors run throughout the main level, which includes a luxurious primary suite complete with a custom closet and a beautifully appointed en-suite bath. Two additional bedrooms and a full bathroom are also located on the main level. A standout exterior feature is the expansive 24’ x 30’ deck, ideal for entertaining or relaxing while enjoying sweeping views of the mountains, Red Rock Canyon, and the iconic Garden of the Gods. The finished lower level adds valuable living space with a spacious family room, an additional bedroom, a half bath, laundry area, and two versatile storage spaces that could serve as a workshop, gym, or art studio. The property is situated on a well-landscaped plot with mature gardens, creating a serene and private backyard retreat. Listed at $699,900, this exceptional home offers a rare opportunity to live in one of the area’s most coveted neighborhoods with breathtaking views and thoughtful modern amenities.
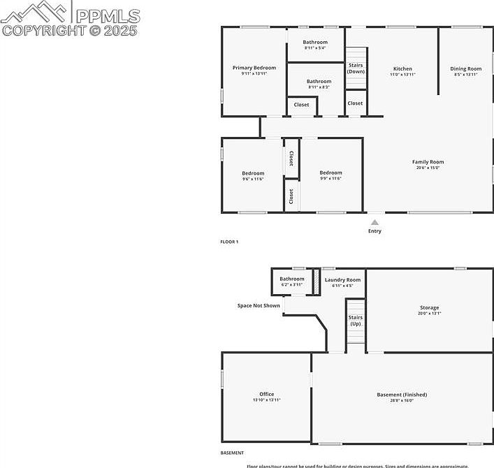
Floor Plan

This floor plan displays a well-organized layout across two levels. The main floor offers a spacious family room at its center, connected openly to the kitchen and dining room, promoting an airy and communal living environment. Three bedrooms, including the primary with an adjacent bathroom, are clustered thoughtfully on one side for privacy. Two bathrooms serve the upper floor efficiently. The basement is fully finished with distinct zones for an office, laundry, storage, and a large additional basement room, ideal for various uses. Stairs connect the two floors conveniently, emphasizing functionality and separation of living spaces.
Living Room

This inviting living room features warm tan walls contrasted by light trim, creating a cozy ambiance. The space is furnished with rich brown leather sofas adorned with soft, pastel-colored throw pillows. A sturdy wooden chest serves as a coffee table, adding rustic charm. Soft patterned rugs with subtle colorful accents enhance the flooring. The room flows seamlessly into a softly lit dining area, painted in a muted orange hue for warmth, with a round table and cushioned chairs positioned near a large window that frames leafy greenery outside. Ceiling fans provide both air circulation and style, while a kitchen with dark wood cabinetry is partially visible, forming an open and connected living space ideal for family gatherings and entertaining.
Kitchen Area

This kitchen features a clean, functional layout with light wood cabinetry that contrasts beautifully against rich olive-green walls. The countertop extends in an L-shape, offering ample prep space around a central stainless steel sink positioned beneath a large window that floods the room with natural light and frames a serene outdoor view. Stainless steel appliances, including a dishwasher and gas stove, balance modern convenience with classic design. Warm hardwood floors ground the space, while minimalist hardware and a few decorative touches, such as a bowl of fruit and a knife block, add subtle character without overcrowding.
Cozy Dining Nook

This intimate dining nook features a warm and inviting atmosphere, defined by soft yellow and muted orange walls that bring a subtle contrast and warmth to the space. The room is anchored by a round wooden dining table with a rich finish, surrounded by four plush, tufted upholstered chairs in a soft grayish-beige tone, offering both comfort and style. Natural light streams through two windows, one on the orange accent wall and the other on the yellow wall, providing a view of greenery outside. A small white ladder shelf in the corner adds a decorative touch, housing plants and artwork, while a modern ceiling fan with a brushed metal base and dark brown blades provides functionality and a contemporary flair. A neutral-toned area rug with hints of blue and tan ties the space together harmoniously, complementing the warm hardwood flooring beneath.
Dining area

This inviting dining space features a classic round wooden table with a warm finish, complemented by four upholstered chairs in a soft, neutral gray tone with tufted backs. A delicate lace runner and decorative centerpiece add a touch of elegance. The walls are painted in a muted yellow, creating a cozy atmosphere, accented by framed artwork and a personalized wooden wall plaque. Beyond the dining area, a glimpse of the living room reveals comfortable leather chairs in a rich brown hue and a large window framing a scenic mountain view. The ceiling fan with sleek blades adds a modern touch to the well-lit, open-plan space, which combines functional comfort with understated traditional charm.
Bedroom with Cozy Accents

This bedroom features a rich teal accent wall behind the bed that complements the bedding’s stripes of blue, gray, and white, creating a cohesive and inviting color palette. The bed is flanked by a sleek black nightstand with a modern lamp, while a large black dresser sits beneath a wide window offering a tranquil view of wooded terrain. Hardwood floors are partially covered by a beautifully patterned rug with tones that echo the room’s blues and grays. A ceiling fan with a light fixture adds practicality, blending seamlessly with the room’s understated elegance.
Bedroom

This bedroom features a calming palette of soft gray walls complemented by white trim and ceiling. The bed is dressed in a striped duvet cover with tones of gray, blue, and white, matched by accent pillows for a cohesive look. A patterned rug with abstract shapes adds texture and warmth beneath the bed. On one wall, a large piece of artwork with birch trees in neutral tones reinforces the tranquil atmosphere. The open closet shows organized clothing and built-in drawers, offering ample storage. The crisp white ceiling fan adds both function and simplicity, while a doorway leads to an adjoining room, enhancing flow.
Bathroom Vanity and Shower

This bathroom exudes a blend of warmth and modernity, featuring soft green walls that create a calming atmosphere. The wooden vanity with a granite countertop adds natural texture and warmth to the space. Above the vanity, a large silver-framed mirror and a classic light fixture enhance functionality and style. The corner shower has sleek glass doors and white tile with a horizontal band of teal accent tiles, injecting a refreshing splash of color. A white toilet nestles beside the vanity, while a small cushioned bench adds convenience and comfort. Natural light filters through two small windows, brightening the well-organized, compact layout.
Cozy Bedroom Details

This warm bedroom features bold terracotta walls that create an inviting and earthy atmosphere. A large window framed with cream and taupe striped curtains allows natural light to filter in, enhancing the cozy feeling of the space. The bed is dressed in a colorful quilt with intricate patterns in soft pastel greens, pinks, and blues, adding a subtle touch of whimsy. Above the bed, three framed prints of cute llamas complement the room’s color palette and playful vibe. The room includes a simple wooden nightstand with a classic lamp, light hardwood flooring, and a white ceiling fan for functionality and comfort.
Bathroom

This bathroom combines practicality with subtle warmth through its neutral beige walls and earth-tone tile flooring. The space includes a white bathtub with a glass sliding door and matching beige tiles lining the shower area. A white toilet sits adjacent to a cream-colored vanity topped with a smooth quartz countertop, featuring a sleek, modern sink and brushed-nickel faucet. Above the vanity, a rectangular wood-framed mirror is illuminated by three polished chrome light fixtures, creating a soft, inviting glow. Two simple floating wooden shelves provide minimalist storage and decorative options, enhancing a clean and functional design aesthetic.
Cozy Reading Nook

This intimate corner of the home features rich olive green walls that create a warm, inviting atmosphere. A large window dressed with soft, sheer gray curtains lets in ample natural light, balancing the deeper wall tones. Beneath the window, a modest black writing desk paired with a dark wooden chair sets a focused workspace. Adjacent to the desk is a rustic wooden drawer unit adding organic texture. The open black metal shelving unit holds an array of books and decorative items, enhancing the room’s personality. A plush, light-toned armchair with a matching ottoman and throw blanket invites relaxation, complemented by a standing floor lamp with dual lighting for reading. The cozy shag rug anchors the hardwood floor, tying the space together in a calming, functional, and stylish home retreat.
family Room

This living room features a warm and inviting layout with a sectional sofa in a soft gray tone, accompanied by patterned throw pillows that add subtle texture. A plush area rug with circular patterns in beige, brown, and green hues anchors the seating and introduces a cozy feel. The neutral wall color harmonizes with the light-toned wood flooring, creating a balanced backdrop. A red entry door adds a pop of color while natural light filters in through two small windows. The entertainment area is neatly organized with a cream-colored cabinet supporting a flat-screen TV, complemented by a unique wine barrel decor piece nearby. Simple ceiling lighting completes the understated yet comfortable aesthetic.
Game and Activity Room

This room features a calm and inviting atmosphere with walls painted in a soft, earthy olive tone complemented by white baseboards and trim. Light, wood-look flooring brightens the space and contrasts pleasantly with the darker furniture and accents. A variety of board games displayed on a white open shelving unit suggests a family-friendly or recreational purpose. The furniture includes a simple wooden chair and a rustic stool placed near an easel, indicating potential for creative or group activities. A unique wall clock with gear-like elements adds a touch of rustic industrial charm. Natural light comes through a medium window dressed in neutral curtains, and a doorway leads to another room with chevron-patterned curtains, maintaining a cohesive yet playful aesthetic.
Spacious Outdoor Deck

This expansive wooden deck offers a perfect blend of relaxation and outdoor living. Featuring a warm, honey-toned wood finish, the space invites cozy gatherings with a dark wicker sectional sofa adorned with light blue and white patterned throw pillows, providing a pop of color. Two red lounge chairs enhance the comfort for sunbathing or reading. A charming covered portion with a swing bench and bistro table adds versatility for shaded seating, framed by classic white columns supporting the overhang. Surrounded by a secure wooden railing and set against a backdrop of mature trees, this deck extends the living area seamlessly into nature.
Listing Agent: Aimee Fletcher CLHMS GRI of Exp Realty LLC via Zillow