
This elegant Toll Brothers home, located in the exclusive gated community of The Estates at Rancho Carrillo in Carlsbad, California, embodies a sophisticated Mediterranean architectural style with its stucco exterior and tiled roof. Positioned at the end of a cul-de-sac, the property sits on a generous 0.3-acre lot, providing ample outdoor space suitable for a pool and a tennis court. Priced at $2,200,000, this residence offers an expansive and versatile floor plan featuring 5 bedrooms and 5 bathrooms, including a main-level suite for convenient living. The layout includes a dedicated office with custom built-in cabinets and an oversized upstairs bonus room that accommodates flexible lifestyle needs. Inside, the home welcomes visitors with soaring high ceilings, elegant architectural details, and a dramatic main staircase complemented by a secondary staircase off the kitchen for ease of access. The kitchen is well-appointed with granite countertops, stainless steel appliances, double ovens, a grill cooktop, a walk-in pantry, and a center island with a prep sink, flowing seamlessly into the family room adorned with custom built-ins. Formal living and dining rooms enhance the home’s refined charm. The spacious primary suite, located in a private upstairs wing, features a large sitting area. Its en-suite bathroom boasts a Jacuzzi tub, dual vanities, private toilet rooms, and a walk-in closet. Two secondary bedrooms share a Jack-and-Jill bathroom, while a third adjoining bedroom has an adjacent full bath. A generous bonus room upstairs offers media, playroom, or additional living space options, with built-in cabinetry lining the hallway for extra storage. Additional practical spaces include a laundry room with upper and lower cabinetry and a secondary refrigerator. The beautifully landscaped backyard is a vibrant oasis with mature plants and flowers, a pergola, and a built-in BBQ island, ideal for outdoor entertaining.
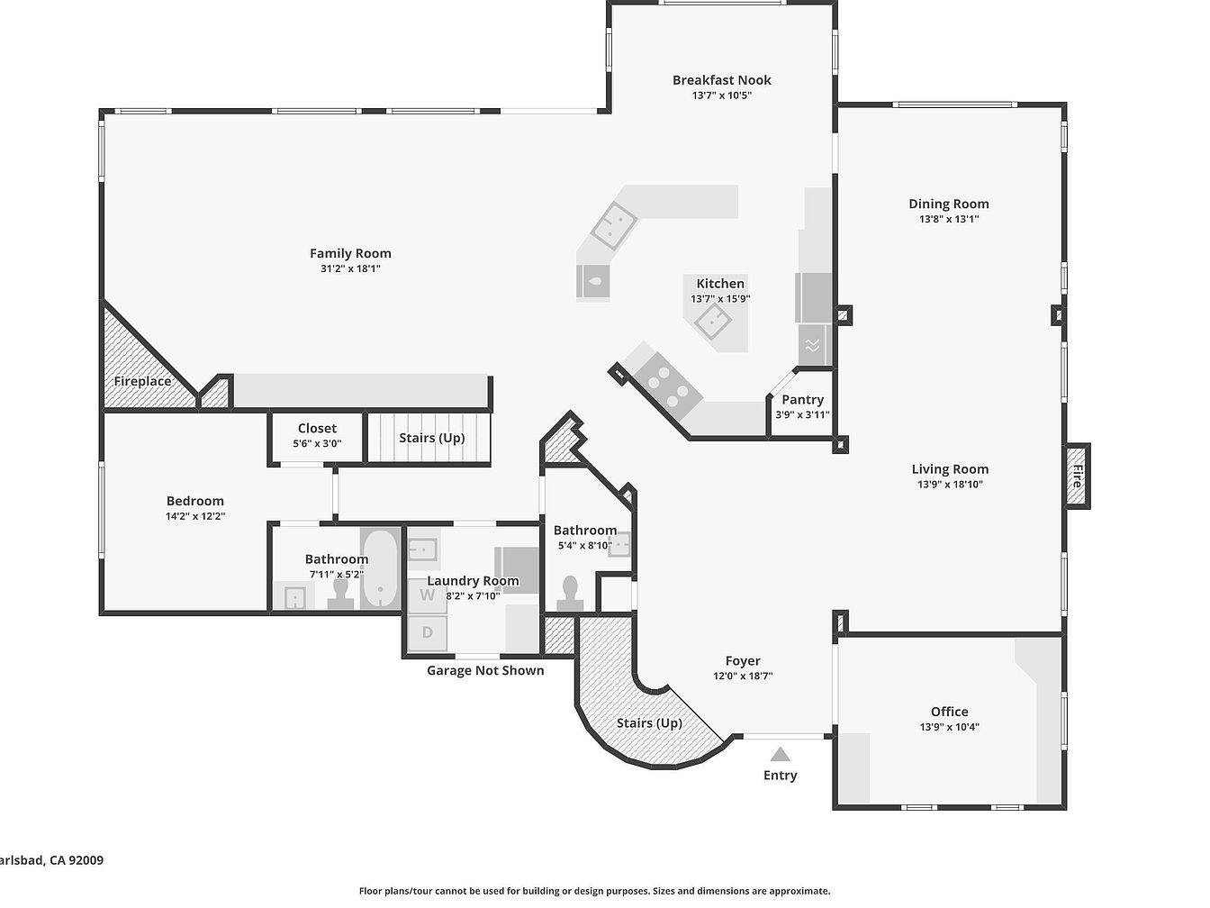
Main Floor Layout

This spacious floor plan features a large family room measuring 31’2″ by 18’1″, anchored by a fireplace in the corner, offering a cozy focal point. Adjacent to the family room is a well-designed kitchen with a central island that flows into a breakfast nook for casual dining. The dining room connects seamlessly to the living room, which also includes a fireplace, providing warmth and elegance. An office sits near the entry, ideal for a personal workspace. The layout includes two bathrooms, a laundry room near the garage entrance, and a bedroom with an attached closet to maximize convenience and functionality within the home.
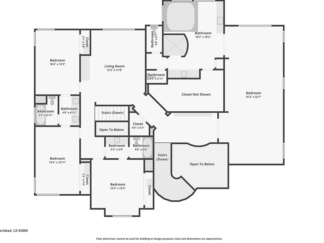
Second Floor Layout

This expansive second-floor layout features five bedrooms and six bathrooms, ensuring ample space and privacy. The design incorporates two sizable open-to-below areas that create visual openness and flow between levels. Centrally positioned stairs facilitate easy navigation, surrounded by closets for optimized storage. The largest bedroom boasts a sprawling footprint of 15’2” by 32’7” and an adjacent large bathroom with an attached closet, indicating a master suite. Bedrooms range from cozy to spacious, with close proximity to bathrooms for convenience. The floor plan maximizes natural light with multiple windows, promoting a bright and inviting atmosphere throughout.
Living Room

This living room showcases a warm and inviting setting with its soft beige walls and plush light carpet flooring, creating a cozy yet elegant atmosphere. The room features a classic white fireplace flanked by two tall, arched windows with plantation shutters, allowing natural light to flood the space while maintaining privacy. Furnished with a muted green sofa and two striped armchairs centered around a delicately crafted wooden coffee table with a glass top, the seating arrangement promotes conversation. Beyond, the dining area reveals an ornate wooden dining table paired with upholstered chairs under a charming wrought iron chandelier, emphasizing a timeless and sophisticated design throughout the open-plan space.
Kitchen

This kitchen features a central island with a polished granite countertop, integrating a small sink and a stainless steel dishwasher. The cabinetry is warm honey-toned wood with metal handles, consistent throughout the kitchen, providing abundant storage. Stainless steel appliances including a double-door refrigerator, built-in microwave, and oven add a modern touch. The flooring is a light neutral tile with occasional darker diamond accents. Recessed lighting keeps the space bright and inviting. Adjacent to the main kitchen area, a small built-in desk with drawers offers a functional workspace by a window with white plantation shutters, adding both charm and natural light.
Breakfast Nook

This cozy breakfast nook features a glass-top table supported by a delicate metal frame, paired with four matching chairs equipped with light mustard-yellow cushions, adding a touch of warmth to the neutral palette. Large white-trimmed windows with plantation shutters dominate one wall, allowing ample natural light to flood the space and offering clear views of the lush green outdoors. The floor is laid with large, light beige tiles, adding an elegant yet durable foundation. A brass chandelier with black lampshades hangs overhead, serving as a sophisticated focal point in this bright and inviting corner.
Dining Room with Classic Charm

The dining area features an elegant wooden table with ornate carved details and matching upholstered chairs in a diamond-patterned fabric, creating a formal atmosphere. Warm beige walls complement the dark wood furniture and are contrasted by white crown molding and trim, adding architectural interest. A rustic chandelier with amber glass shades hangs centrally above the table, providing soft, inviting lighting. Artwork depicting a serene canal scene adds color and character to the space. The room opens into a bright adjoining kitchen and living area, suggesting an open-concept flow while maintaining a distinct dining zone.
Family Room

This spacious living room features a large, dark brown leather sectional sofa paired with a matching leather armchair, arranged to create a cozy and inviting seating area. The flooring is warm-toned hardwood, complementing the neutral beige walls. Three large windows with white plantation shutters allow ample natural light to filter in, highlighting the room’s bright and airy ambiance. A rustic coffee table with wrought iron legs sits centrally, adorned with decorative candles. Additional touches include framed wall art, a table lamp with a decorative base, and a standing floor lamp providing soft ambient lighting, creating a balanced blend of comfort and style.
Powder Room

This powder room features a compact layout with a classic pedestal sink and a white toilet, creating a clean and functional space. The walls are painted in warm neutral tones, contrasting a soft beige with a rich taupe accent wall, which adds depth and coziness. Above the sink, an octagonal mirror with a light wood frame is illuminated by a two-light fixture. A decorative shelving unit with glass shelves and vintage detailing offers both storage and display of decorative items. The room also includes tasteful touches like a floral painting in an ornate frame and a silver waste bin, blending traditional elegance with practicality.
Cozy Bedroom

This intimate bedroom corner features a plush white upholstered bed with a tufted headboard, creating a soft and inviting centerpiece. The bedding is neutral-toned with subtle beige and taupe stripes, complementing the warm cream-colored walls. Natural light streams through white plantation shutters, enhancing the room’s airy feel and showcasing the greenery outside. A rustic wooden nightstand sits beside the bed, topped with a classic table lamp that emits a cozy glow. The wooden flooring adds an earthy tone, creating a calm and minimalist atmosphere perfect for rest and relaxation.
Bathroom Vanity and Tub

This bathroom features a clean and functional layout with a white tiled bathtub and shower combination on the left, surrounded by square ceramic tiles. A white shower curtain with a subtle palm tree pattern adds a soft decorative touch. The toilet is positioned adjacent to the tub, seamlessly integrated under an extended white countertop that wraps around the vanity. The vanity has a natural wood finish complemented by a white ceramic sink and countertop, balancing warmth and simplicity. Above, a large mirror stretches the width of the wall, reflecting light from the modern multi-bulb vanity fixture, while soft beige walls add a neutral backdrop for a calm and inviting atmosphere.
Master Bedroom

This spacious master bedroom features a high vaulted ceiling that enhances the airy feel of the room. The centerpiece is a white four-poster bed with crisp white linens, complemented by a matching white nightstand holding a traditional lamp. A deep slate-blue accent wall behind the bed adds a sophisticated contrast to the neutral beige walls and soft beige carpeting. To the side, a cozy sitting area includes a white sofa and glass coffee table, illuminated naturally through windows. Neutral tones and clean lines create a calming and elegant retreat. An open doorway reveals part of the adjoining bathroom area, conveying a thoughtful layout for convenience and comfort.
Upstairs Sitting Area

This upstairs sitting area features a cozy, conversational layout with a white, cushioned sofa flanked by two dark blue armchairs. A round, glass coffee table with a black metal frame sits centrally, adding a modern touch and maintaining openness. One wall is painted a deep muted blue, creating a calming backdrop enhanced by a rectangular silver-framed mirror that visually expands the space. Contrasting beige walls and carpet maintain warmth and neutrality. A traditional side table lamp with a stained glass shade adds warmth. An open door reveals a staircase with wooden railings, blending classic and contemporary elements harmoniously.
Bedroom Workspace Nook

This cozy bedroom corner is designed as a serene workspace, featuring a classic wooden writing desk paired with an upholstered chair adorned with a subtle floral pattern. Soft beige walls complement the plush, light carpet, creating a warm and inviting atmosphere. Large plantation shutters cover the wide window, allowing natural light to brighten the space while offering privacy. A vintage-style wooden cabinet with curved legs stands beside the desk, topped by a delicate lamp with a pleated shade, adding gentle ambient lighting. The adjacent open doorway leads to a bathroom with neutral tiles and natural light, enhancing the room’s tranquil elegance.
Bathroom Vanity Area

This bathroom features a spacious vanity with warm wooden cabinetry topped by a glossy white tiled countertop and integrated sink. The large mirror above enhances the room’s sense of openness, complemented by a sleek row of globe light bulbs that provide bright, even illumination. The walls are painted a sophisticated slate blue-gray, contrasting beautifully with the lighter tiles and cabinetry. Visible in the background is a curved frosted glass block wall enclosing the shower, adding a modern architectural detail. The area exudes a fresh, clean look with functional elements designed for comfort and style.
Corner Bathtub Area

This peaceful corner features a large, white-tiled bathtub with built-in steps for easy access. The tub is nestled beneath three sizeable windows fitted with white plantation shutters, offering plenty of natural light and privacy control. The walls around the bathtub are painted a calming shade of muted blue, creating a serene atmosphere that contrasts softly with the light beige tiled floor. A curved wall of textured glass blocks adds a unique architectural element, providing subtle separation while still allowing light to flow through. Fresh flowers in vases add a delicate, decorative touch to this relaxing bath retreat.
Bedroom

This bedroom features a cozy and inviting layout with a queen-sized bed positioned against a beige wall. The wooden headboard and matching nightstands add warmth with their rich, dark finish. Two matching table lamps provide soft, ambient lighting. A comfortable leather armchair occupies the corner near a set of large, white-trimmed windows with plantation shutters, offering ample natural light and a pleasant view. Opposite the bed, a wooden dresser holds a flat-screen TV, enhancing the room’s functionality. The plush carpet and neutral tones throughout create a calm and relaxing atmosphere.
Bathroom Vanity Area

This bathroom features a spacious double-sink vanity with a long white tiled countertop and honey-toned wooden cabinetry, providing ample storage. The fixtures are black matte, adding a modern contrast to the otherwise neutral and earthy palette. The walls are painted a warm taupe color, creating a cozy and sophisticated atmosphere. Above the vanity, two rectangular mirrors hang side by side, reflecting natural light and enhancing the room’s brightness. Through the open doorway, a glimpse of a bedroom and a white-tiled shower area can be seen, hinting at a practical, connected layout.
Home Office Corner

This compact home office utilizes a neutral color palette with beige walls and carpeting that provide a calm, inviting atmosphere. A minimalist white desk supports a modern desktop computer, emphasizing functionality without clutter. Adjacent to the desk stands a traditional floor lamp with a warm shade, adding soft ambient lighting. Mirrored sliding closet doors enhance the room’s spaciousness by reflecting natural light streaming through two white-framed windows fitted with plantation shutters. Across, a dark wood chest of drawers introduces rich contrast and a classic touch, balancing the room’s contemporary elements with subtle warmth.
Cozy Bedroom

This tranquil bedroom corner features a soft blue and beige color palette that creates a calming atmosphere. A large bed is dressed in light blue bedding with complementary patterned pillows, anchored between two wooden nightstands each topped with an elegant white lamp. To the left, a built-in window seat with a plush cushion and striped pillows sits beneath a tall, arched window with white plantation shutters, inviting natural light while providing privacy. The room’s high ceiling and ceiling fan add to the airy feel, while a serene coastal painting above the bed ties the peaceful decor together.
Bathroom Vanity Area

This bathroom features a wide countertop with white tiled surface and an inset oval sink framed by a polished chrome faucet. The vanity’s wooden cabinetry is finished in a warm natural tone, complementing the soft beige walls. A large mirror extends the length of the counter, enhancing the room’s bright and airy feel. Minimalist decor includes a small flower vase, neatly folded towel, and soap dispensers, adding subtle charm. To the right, a doorway reveals a bathtub with white tile surround and a striped shower curtain, completing the clean, functional aesthetic of the space.
Casual Sitting Area

This cozy sitting area features a blend of relaxation and functionality with a pair of dark brown leather recliners positioned beneath a large window with white plantation shutters, allowing natural light to fill the room. The walls are painted in warm beige tones, complementing the light beige carpet flooring. A round wooden table accompanied by two wooden chairs with woven backs adds a touch of vintage charm. A three-tier floor lamp offers additional soft lighting, and a ceiling fan with light in the center enhances comfort and air circulation. The layout comfortably supports both conversation and casual gaming or dining experiences.
Covered Patio Dining Area

This inviting patio features a light-colored pergola that casts dynamic patterns of sunlight and shade across the stamped concrete flooring. A sleek glass-top dining table is paired with six dark woven chairs, creating a contemporary yet relaxed outdoor dining space. Lush green hedges and well-maintained lawn surround the patio, enhancing privacy and providing a natural backdrop. Tall trees and various flowering plants add layered greenery and pops of color. The home’s exterior wall visible to the right includes a window with white plantation shutters, complementing the clean, fresh aesthetic of this outdoor living area.
Laundry Room

This compact laundry space features a clean and practical layout with an emphasis on functionality. A white front-loading washer and dryer are positioned side by side beneath a row of classic white cabinetry, providing ample storage for laundry supplies. The walls are painted in a soft beige tone, creating a neutral and calming backdrop. A built-in sink with a chrome pull-down faucet is set into the tiled countertop, adding convenience for hand washing or pre-treating stains. The beige tiled floor and minimalistic design contribute to an organized and bright atmosphere, ideal for everyday household tasks.
Listing Agent: Kathy Risley of Berkshire Hathaway HomeServices California Properties via Zillow