
This stunning home at 5608 Skimmer Drive, Apollo Beach, FL, exemplifies the classic coastal architectural style blended with modern luxury. Built in 2004, this David Weekley Manatee floor plan has been fully remodeled and thoughtfully updated, offering over 3,500 square feet of living space. It features 4 bedrooms, 4 bathrooms, a spacious loft, formal office, and dining room, alongside a ground-floor primary suite for maximum convenience and comfort. Situated on a saltwater canal, the property boasts direct, no-bridge access to Tampa Bay, perfect for boating enthusiasts. The lot is beautifully landscaped with mature palms and a large covered front porch welcoming you home. Inside, dramatic 24-foot ceilings, custom built-ins, and hardwood floors throughout the main level create an inviting and bright atmosphere. The kitchen was completely remodeled in 2022 with quartz countertops, high-end appliances including a KitchenAid gas cooktop and GE Monogram ovens, and a large center island with seating. The primary suite on the first floor offers private access to the heated saltwater pool and spa area, featuring a standalone soaking tub and custom marble shower in the ensuite bathroom. Upstairs houses a secondary full suite, plus two additional bedrooms and a versatile loft space ideal for a game room, home theater, or gym. The home is a true smart home, equipped with app-controlled systems, Ring security, plantation shutters, and a fully renovated garage with epoxy flooring. Recent upgrades include a new roof (2020), two Trane AC units (2016), interior/exterior paint (2020), a new water softener (2023), and a seawall with a 10,000 lb boat lift. The outdoor living area features an outdoor kitchen with a Napoleon rotisserie grill and Big Green Egg smoker, surrounded by low-maintenance artificial turf. Residents have exclusive access to Mirabay Club amenities such as pools, fitness center, sports courts, parks, and private boat ramp. Offered at $1,335,000, this meticulously maintained and thoughtfully enhanced home is ready to provide unparalleled coastal living in Apollo Beach, FL.
Entryway

This welcoming entryway features warm hardwood floors that complement the soft gray walls, creating a calm and inviting atmosphere. The double front doors are adorned with white plantation shutters, allowing natural light to filter in while maintaining privacy. A patterned runner rug adds subtle texture and directs the pathway inward. An elegant chandelier overhead adds a touch of sophistication, balancing the contemporary feel. A small dark wood console table against the wall beneath a tranquil seascape painting offers a spot for decorative accents and keys. The open doorway leads to a cozy adjacent living area, visible with comfortable seating and soft natural light.
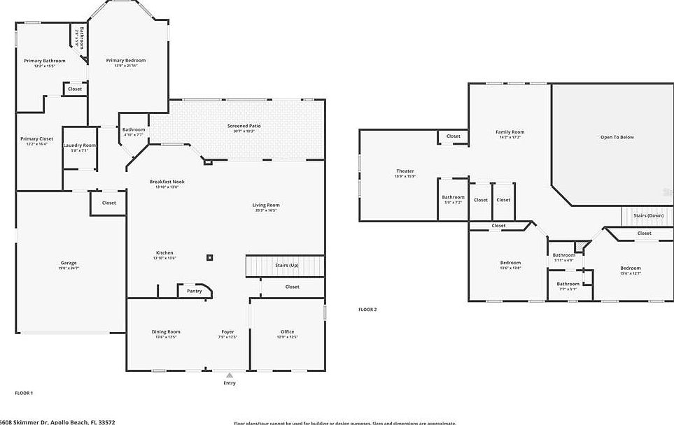
Floor Plans

This detailed floor plan reveals a spacious two-level home with a smart, open layout. The first floor features a large living room connected to the kitchen and breakfast nook, forming a hub for family activities. The primary bedroom suite includes a generously sized bathroom, closet, and laundry access. Complementing the downstairs are formal areas like the dining room and office near the entry for added functionality. Upstairs, the family room centers access to two bedrooms with individual bathrooms, a theater room for entertainment, and multiple closets ensuring ample storage. The design combines comfort with practicality, highlighting clear zoning for social, private, and work spaces.
Dining Room

This elegant dining area features a rectangular dark wood table with six matching chairs, each with light beige cushioned seats and backs. The walls are painted a soft, neutral gray complementing the white trim and crown molding, adding a refined architectural detail. Large windows and glass doors with white plantation shutters allow natural light to fill the space, enhancing the warm tone of the hardwood flooring. A classic chandelier with six lampshades hangs over the table, while a smaller chandelier in the adjacent space adds layered lighting. Subtle décor elements like a table runner, plates, candles, and an ocean-themed painting add warmth and character to the room.
Living Room and Kitchen View

This spacious living room features a soft, neutral color palette dominated by light grays and whites, creating a calm and inviting atmosphere. A large, L-shaped sectional sofa anchors the space, adorned with a mix of textured throw pillows that add subtle contrast and comfort. The plush area rug beneath the seating area incorporates muted blue and beige tones with a floral pattern, complementing the hardwood floors. Floor-to-ceiling windows with white plantation shutters bring in abundant natural light, enhancing the bright, airy feeling. The open layout flows seamlessly into a modern kitchen with white cabinetry, stainless steel appliances, and elegant pendant lighting, emphasizing a cohesive and functional living space.
Spacious Modern Kitchen

This open-concept kitchen features a large, angled island with a white countertop and three grey cushioned stools, perfect for casual dining or socializing while cooking. The island includes an integrated sink with a sleek, curved faucet. The cabinetry is white with silver hardware, complemented by a light gray, herringbone-pattern backsplash adding subtle texture. Stainless steel appliances including a large refrigerator and double ovens contribute to the modern aesthetic. Light wooden flooring contrasts gently with the soft gray walls and the island’s pastel blue paneling, creating an inviting and airy atmosphere. Pendant and recessed lighting provide ample illumination throughout.
Kitchen Island and Cabinets

This spacious kitchen features a clean, contemporary design with crisp white cabinetry lining the walls and extending to the ceiling for ample storage. A central island with a smooth white countertop echoes the cabinetry’s color, offering additional prep space and power outlets for convenience. Stainless steel appliances include a built-in oven and a sleek cooktop set against a textured, herringbone-patterned backsplash in subtle shades of white and gray, matching the overall cool tone of the room. Warm wood flooring complements the neutral gray walls, while pendant lights above the island and recessed ceiling lighting provide a bright, welcoming ambiance.
Dining Area Details

This dining area boasts a cozy, coastal-inspired ambiance with a warm wood floor complementing the muted gray walls. A square wooden table, painted white with a natural wood tabletop, is centered beneath a modern spherical chandelier with soft lighting. White wooden chairs with matching wood seats provide seating for four. Behind the dining set are large windows fitted with white plantation shutters, allowing ample natural light and views outside. Decorative accents include a large round wall clock with Roman numerals, a rectangular “Apollo Beach” sign, and a small wall plaque near a door, enhancing the homey and inviting atmosphere.
Laundry Room Details

This laundry room features a clean and modern design with a light gray color palette complemented by white cabinetry that offers ample storage space above the washer and dryer units. The room includes sleek stainless steel front-loading laundry machines positioned under a white countertop, providing a practical folding area. The floor is adorned with patterned tiles in muted blues and grays, adding subtle texture and interest to the space. The adjacent wall outside the room is painted in a soft blue-gray tone, decorated with two framed beach-themed photographs, enhancing a calm and coastal-inspired aesthetic.
Master Bedroom Retreat

This master bedroom exudes calm with soft pastel blue walls complemented by warm beige carpeting that anchors the space. A large white wooden bed with a classic paneled headboard stands as the room’s centerpiece, dressed in serene bedding featuring light blue coral patterns and neutral-toned pillows. On either side, matching white nightstands hold modern lamps with circular metal accents. The room boasts ample natural light from three large windows fitted with white plantation shutters, flanked by elegant beige curtains. Two blush-toned armchairs provide a cozy sitting area, while a white dresser adds storage and balances the tranquil coastal-inspired design. A sleek ceiling fan overhead completes the airy ambiance.
Cozy Sunroom Seating

This sunroom features a serene, inviting corner with two plush beige armchairs positioned on a soft taupe carpet. Each chair is adorned with a muted blue-gray patterned pillow that adds a subtle pop of complementary color. The walls are painted in a soft, light gray which amplifies natural light streaming through multiple white-framed, shuttered windows that wrap around the corner, offering stunning poolside views. Floor-length beige curtains frame the windows, enhancing the cozy ambiance while adding a touch of elegance. A door with matching shutters opens directly to the outdoor pool area, blending indoor comfort with outdoor leisure seamlessly.
Master Bathroom

This master bathroom features a symmetrical layout with a central freestanding bathtub placed between two large windows outfitted with white plantation shutters, allowing controlled natural light. Flanking the tub are two identical white vanities with ample storage drawers and open bottom shelves, each topped with round, frameless mirrors and lit by modern light fixtures. The soft gray walls complement the light wood-look tiles on the floor, creating a calm and airy atmosphere. A crystal chandelier adds elegance and a touch of luxury, making this bathroom both functional and visually soothing.
Walk-in Closet Organization

This spacious walk-in closet features an efficient double-tiered wire shelving system wrapping around two walls. The upper racks are filled with a wide range of colorful shirts and hats, while the lower racks neatly display pants and shirts, maximizing storage in an organized manner. The walls are painted a soft neutral color, allowing the vibrant clothing hues to stand out. The floor is carpeted in a light tone, adding warmth underfoot. The closet’s design emphasizes functionality and easy access, catering to a household with varied wardrobe needs while maintaining a tidy appearance.
Hallway Entrance with Family Touches

This hallway acts as a cozy transitional space connecting two bedrooms, distinguished by soft beige carpeting and walls painted in a calm, muted gray. A simple wooden console table with a dark finish anchors the area, adorned with a softly glowing lamp and framed photographs that give a warm, personal feel. Above the table, three grayscale family portraits add an intimate, emotional touch. Doorways on both sides offer glimpses into bedrooms—one with a rustic wooden bedframe and neutral linens, the other featuring a mounted TV and sports-themed décor. Subtle recessed lighting and white trim enhance the crisp, inviting atmosphere.
Loft Workspace and Recreation

This inviting loft area combines a functional workspace with a recreational zone, creating a versatile upper-level retreat. A built-in wooden desk with warm-toned cabinetry provides ample storage and a granite countertop, hosting a sleek computer setup and a small beverage cooler underneath. Soft neutral carpeting adds comfort underfoot, extending throughout the space. The walls are painted a soothing gray, complemented by abundant natural light streaming through large, grid-style windows. A classic wooden pool table anchors the room, positioned near a cozy seating nook by the windows. White railings with wood accents overlook the lower floor, enhancing openness and flow.
Game Room and Media Nook

This entertainment area features a classic wooden pool table with claw feet centered on plush, light beige carpeting. A trio of pendant lights with frosted glass shades hangs above, highlighting the billiards setup. Along the darker gray accent wall, a collection of vintage arcade machines adds nostalgic charm and colorful vibrancy. Natural light floods the space through three large windows dressed with white blinds, overlooking the neighborhood. To the right, a wooden high-top table paired with two cushioned stools creates a casual spot for socializing. The adjacent open doorway leads to a cozy media nook furnished with a large screen and bean bags, perfect for movies or gaming, framed by white curtains that add a soft touch against the neutral tones.
Bathroom Shower Area

This bathroom features a clean, contemporary design with soft, muted tones. The vanity has sage green cabinetry topped with a white countertop and undermount sink, complemented by a modern brushed nickel faucet. Above, a large round mirror is flanked by a sleek two-light fixture, illuminating the space softly. A white toilet is neatly positioned beside the vanity, with light-colored walls creating a serene atmosphere. The shower is enclosed in clear glass with a sliding door system, showcasing elongated white subway tiles arranged horizontally. The shower floor showcases small, textured pebble tiles adding subtle contrast and natural appeal to the room.
Cozy Bedroom Retreat

This inviting bedroom features a warm, neutral color palette with soft grey walls and beige carpeting that enhances the cozy atmosphere. A wooden bed frame with a natural finish pairs seamlessly with matching nightstands on either side, both topped with classic lamps radiating soft light. The bed is dressed with linens in subtle, complementary shades and a nautical-themed throw pillow for a touch of character. Two large windows framed with dark curtains allow ample natural light to flood the room, balancing brightness and privacy. A ceiling fan with light completes this restful, well-appointed space.
Bathroom with Bedroom View

This bathroom features a modern dual-sink vanity with a smooth white countertop and sleek brushed nickel faucets. Its cabinetry is a clean, classic white with simple hardware, complementing the light gray wall color. Above the vanity, a large mirror is flanked by a row of four frosted glass light fixtures, providing ample lighting. To the left, a glass-enclosed shower showcases an array of rectangular tiles in varied gray tones, adding texture and depth. The open door offers a view into a cozy bedroom with a carpeted floor, a wooden bedframe, and a ceiling fan, creating a seamless flow between the two spaces.
Bedroom with Sports Decor

This cozy bedroom features a soft gray color palette complemented by medium-toned wood furniture, including a paneled bed frame with under-bed storage drawers, matching nightstands, and a dresser. Natural light streams in through two adjacent windows dressed in plaid curtains that add a touch of warmth. The ceiling fan with wood-toned blades provides both style and function. A unique sports theme runs throughout the room, highlighted by a series of miniature football helmets mounted along the upper wall perimeter. The bedding also showcases various team logos, reinforcing the sporty and personalized atmosphere. A cushioned bench beneath the windows adds seating and storage convenience.
Organized Garage Storage

This garage blends functionality with clean organization, featuring a polished speckled epoxy floor that enhances brightness and durability. A series of sleek, gray storage cabinets with black bases line the right wall, providing ample concealed storage space. Above, sturdy overhead shelves hold clear and colored plastic bins for additional organization. The ceiling’s unique geometric LED lighting fixtures add a modern touch while illuminating the entire space evenly. On the left, bicycles are neatly parked against the wall, near banners and memorabilia showcasing team pride and automotive enthusiasm, giving the garage a personalized character.
Backyard Retreat

This outdoor haven features a tranquil pool area seamlessly integrated with a spa, showcasing soft beige stone tiles that extend throughout the patio. The pool’s curvilinear shape complements the round spa, bordered with a mosaic tile accent in shades of blue, enhancing the aquatic theme. The metal fence encloses the space, offering safety without obstructing views of lush palm trees and clear skies. A shaded dining area with a navy blue umbrella and black chairs invites relaxation and social gatherings. String lights hang overhead, adding a cozy evening ambiance to this inviting backyard retreat.
Listing Agent: Shawna Calvert of ALIGN RIGHT REALTY SOUTH SHORE via Zillow