
This stunning custom-designed home in Albuquerque, New Mexico, is a beautiful example of Southwestern architectural style with its smooth stucco exterior and flat rooflines, perfectly blending with the desert landscape. Situated on a generous 1/3 acre cul-de-sac lot, the property offers incredible mountain views that create a serene desert oasis atmosphere. The home spans 3,936 square feet and features versatile living spaces, including a gaming room with a wet bar that can be converted into an additional bedroom. Along with the downstairs office, this makes the home adaptable to 3 to 5 bedrooms total. Listed at $1,060,000, this exceptional property perfectly combines luxury, functionality, and picturesque surroundings.
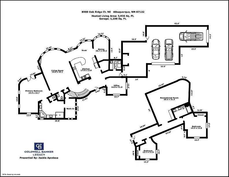
Architectural Floor Plan

This detailed floor plan reveals a spacious and thoughtfully designed home layout. The plan includes a large primary bedroom with an ensuite bathroom and walk-in closet, an open concept living room that flows into the kitchen and dining areas, designed with curves and angles to maximize space and light. The kitchen is centrally located with a cozy nook adjacent to the dining room. An office space is conveniently situated near the garage entrance. The layout also shows a recreational room and two additional bedrooms, emphasizing both communal and private spaces. The garage is sizable, designed for three vehicles with extra storage or workspace. Overall, the plan combines functionality with elegant architectural curves, creating a warm and welcoming atmosphere.
Exterior Front View

This spacious front exterior embraces a Southwestern architectural style with smooth stucco walls in earthy beige tones and a flat roof with tile accents. The entry gate is framed by mature greenery and decorative metalwork, offering a welcoming yet secure courtyard entrance. The expansive concrete driveway leads to a large two-car garage, flanked by low-maintenance landscaping including shrubs and small trees. The clean lines and minimalist palette blend naturally with the vibrant blue sky and verdant trees, creating a harmonious yet striking curb appeal. This space suggests privacy and a cohesive design connection to the surrounding environment.
Entryway and Staircase

This inviting entryway features a gracefully curved staircase with plush beige carpeting and a white banister accented by natural wood handrails. The flooring is warm-toned hardwood, adding a cozy contrast to the light-colored walls. Along the hallway, arched niches incorporate pops of vibrant orange, one serving as a charming built-in bench adorned with decorative pillows and wall art. Recessed lighting highlights the hallway’s smooth plaster finish and emphasizes the architectural details, while a grandfather clock adds a touch of classic elegance near the staircase base. The space balances warmth and sophistication, creating a welcoming transition from entry to living areas.
Home Office Space

This bright home office features hardwood floors that complement the warm beige walls and white baseboards. Two large windows with wooden trim bring in ample natural light, surrounded by lush greenery outside. A modern, adjustable-height desk with dual monitors and a black ergonomic chair anchors the workspace. Opposite the desk, a vintage-style wooden bench with a colorful embroidered cushion adds a cozy touch. Next to it, a wooden glass-front cabinet displays decorative items. The ceiling has a tray design with crown molding and a fan with wooden blades and multiple light fixtures, blending functionality with classic charm.
Living Room Space

This inviting living room features a high vaulted ceiling with exposed wood beams and a ceiling fan, contributing to an airy, spacious feel. Neutral beige walls and carpeting create a warm base, contrasted by a large black sectional sofa and a cozy brown leather swivel chair with an ottoman, arranged around a central wood coffee table. A distinctive rounded fireplace with sculptural, Southwestern-style elements anchors the room, flanked by large windows that bring in natural light and outdoor views. The design combines rustic touches with modern comfort, creating an open, welcoming atmosphere enhanced by wooden architectural accents and built-in shelving.
Spacious Living Room

This living room features a high, curved ceiling with wood paneling and exposed beams, creating a warm and inviting atmosphere. Large, vertically elongated windows provide abundant natural light, enhancing the airy feel of the space. The curved adobe-style fireplace anchors the room with southwestern charm. A black leather sectional and matching chair provide comfortable seating focused on a flat-screen TV mounted on the wall. Neutral beige carpeting complements the off-white walls. The open design extends to the kitchen area, unified by wood accents and a granite countertop breakfast bar with hanging pendant lights, blending rustic and modern aesthetics.
Living Room and Kitchen

This spacious open-concept living area features a blend of rustic and contemporary styles. The high vaulted ceiling is clad in warm wood planks, complemented by exposed wooden beams and trim, which frame the entrance to the kitchen and stairway. A ceiling fan with multiple light fixtures hangs prominently, adding both function and charm. The living room furniture includes a large black leather sectional accented with light cushions and a matching brown leather recliner with an ottoman. The beige carpet softens the room, contrasting with the polished tile surrounding the kitchen. The kitchen itself boasts a granite countertop bar with wooden bar stools, pendant lighting, and muted cabinetry, blending seamlessly with the overall earth-tone palette. An elevated loft area with a rounded railing adds architectural interest and extra living space. Built-in shelving and mirrored panels adorn one wall, providing both storage and a decorative focal point.
Kitchen Island and Counter

This kitchen features a spacious, polished granite countertop island with a natural beige and brown speckled pattern that adds elegance and functionality. Surrounding the island are light wood bar stools with simple, classic designs. The cabinetry across the back wall is painted in soft beige with raised panel doors, including glass-front upper cabinets for display. Above the cooking range, a muted green chimney-style vent hood complements the neutral tones. The ceiling showcases exposed wooden beams and planks, contributing warmth and rustic charm. Multiple glass pendant lights hang over the island, providing focused illumination and highlighting the room’s blend of contemporary comfort and traditional design elements.
Kitchen Island and Countertop

This kitchen boasts a spacious granite countertop island with a polished finish, centered between natural wood log beams on the ceiling for a rustic touch. The light brown, raised-panel cabinets complement the earthy color palette, extending around the kitchen with built-in stainless steel appliances. The pendant lights with exposed bulbs hang above the island, enhancing warmth and inviting ambiance. A sage green vent hood adds a subtle pop of color above the stove, surrounded by beige tile backsplash featuring mosaic accents. Wooden bar stools with cushioned seats provide casual seating at the island, blending comfort with natural textures.
Dining Room Details

This dining room features a spacious, rectangular wooden table with a rich, dark finish that serves as the room’s centerpiece, surrounded by six upholstered chairs in a deep reddish-brown leather. The flooring consists of large beige tiles with subtle patterns, contributing to the warm, neutral color palette. Four tall, narrow windows with wooden frames allow ample natural light, accentuated by soft beige walls. A classic chandelier with multiple white glass shades hangs from the coffered ceiling, adding an elegant touch. Minimalist wall sconces and a vibrant framed artwork complete the inviting and refined ambiance.
Cozy Breakfast Nook

This inviting breakfast nook features a square wooden table surrounded by four matching chairs with cushioned black seats, blending comfort and natural warmth. Three tall, narrow windows framed in natural wood flood the space with light while offering a partial view of an outside brick wall and greenery. Walls are painted a soothing olive green that complements the earth tones of the tiled floor and wooden ceiling beams above. The soft, diffused overhead pendant light adds a cozy ambiance. Simple decorative elements, such as a small plant and salt and pepper set on a round placemat, enhance the welcoming, functional feel.
Dining Room

This dining area features a large, dark wood table surrounded by leather upholstered chairs that offer both comfort and sophistication. The space is designed in a semi-circular layout accentuated by a set of tall, narrow windows that flood the room with natural light while offering views of the outdoor garden space. The neutral color palette of soft beige walls contrasts elegantly with the rich wood tones, and the tiled floor adds texture and durability. Ceiling details include a tiered tray design with a classic chandelier hanging centrally, enhancing the inviting atmosphere. Artistic wall decor adds a splash of color and personality to the room.
Bedroom Sitting Area

This spacious bedroom features a serene color palette with soft sage green walls complemented by warm wood accents in the door, bed frame, and built-in shelving. A cozy sitting area includes a plush brown loveseat and a wooden coffee table with metal legs, inviting relaxation. The carpeted floor adds warmth and comfort throughout the room. Architectural interest is provided by a tray ceiling with subtle two-tone paint and a ceiling fan with wooden blades and traditional light fixtures. Natural light filters in through a horizontal transom window above the shelves, highlighting decorative art and books neatly arranged on the wooden shelving unit.
Master Bedroom Details

This spacious master bedroom features a calming color palette with light blue walls complemented by warm natural wood tones in the bed frame, nightstands, and door trim. The elegant wooden bed with a classic sleigh design is dressed in soft blue bedding layered with a plaid throw and decorative pillows. Plush carpet flooring adds comfort and warmth underfoot. Architectural details include a tray ceiling with crown molding and a ceiling fan with frosted glass light fixtures. Large double French doors open to a cozy outdoor space, inviting natural light into the relaxing retreat.
Master Bathroom Vanity Area

This spacious master bathroom features a dual-sink vanity setup with warm, natural wood cabinetry topped with light beige countertops. Each vanity is framed with large rectangular mirrors bordered in dark wood, illuminated by classic four-light wall sconces with frosted glass shades. Between the two vanities, a cozy corner soaking tub is nestled, enclosed by tiled walls and steps, offering practicality and comfort. Soft green walls and matching ceiling alcove bring a calming vibe, while glass block windows provide gentle natural light privacy. Plush black rugs add contrast and warmth to the beige tiled flooring, completing the elegant and functional design.
Walk-In Closet Storage

This spacious walk-in closet is designed with ample storage featuring dual hanging rods extending along the walls, allowing easy organization of shirts, blouses, and jackets. The built-in shelving units hold folded items neatly and maximize vertical space. The soft beige carpet provides warmth underfoot, complementing the neutral off-white walls. Small diamond-shaped windows near the ceiling introduce natural light, enhancing the airy atmosphere. The closet balances functionality with a clean aesthetic, offering accessible and well-defined zones for storing various clothing types and accessories, making daily dressing efficient and pleasant.
Upper Hallway

This upper hallway features a light and serene ambiance highlighted by neutral, soft beige carpeting that runs the full length. The walls are painted a light, warm white, contrasted by sage green half-walls with natural wooden spindles that create an open view to the stairway below. The ceiling showcases exposed wood beams, adding rustic charm, while recessed lighting and wall sconces provide soft illumination. At the far end, a round window with a decorative inner design invites natural light, further enhancing the combination of Southwestern aesthetic elements with a contemporary, clean finish.
Outdoor Balcony Seating

This spacious outdoor balcony features a smooth, taupe-toned wooden deck floor that extends generously in front of stucco walls painted in a soft beige. The seating area consists of a charming wrought iron table with an intricate patterned top and two matching chairs, each equipped with cushioned seats in muted pastel stripes, perfectly blending comfort and style. Two rectangular windows and a glass door provide a subtle modern touch to the structure, reflecting the lush surrounding greenery. Beyond the balcony, scenic mountain views stretch under a bright blue sky dotted with fluffy white clouds, creating a serene atmosphere for relaxation or casual dining.
Game Room with Pool Table

This inviting game room centers around a vintage-style pool table with rich wooden detailing and green felt surface. The walls combine a soothing teal accent wall with soft beige, creating a balance between calm and warmth. Light carpeting cushions the floor, enhancing comfort and cozy appeal. A sleek ceiling fan with wooden blades adds modern sophistication while providing airflow. The room features natural and recessed lighting, highlighting the spacious layout that includes an adjacent open hallway with wooden doors and subtle architectural trim. A folded ping pong table and cue rack suggest versatile recreation options in this well-appointed entertainment space.
Compact Kitchen and Living Area

This cozy space combines a small kitchen with an adjacent living area, creating an efficient and inviting environment. The kitchen features warm, honey-toned wooden cabinets with modern silver handles and partially glass-paneled upper doors. The countertops are light granite with a subtle tiled backsplash in neutral shades that complement the cabinetry. A microwave is mounted above the sink, maximizing space. The living area boasts a dark navy-blue couch with geometric-patterned cushions, positioned against a beige wall adorned with framed art. The room is softly lit by recessed ceiling lights and natural light through three small rectangular windows, with light beige carpeting extending throughout for a warm, unified feel.
Cozy Living Room Details

This comfortable living room features a neutral color palette with beige walls and carpet, creating a warm and inviting atmosphere. A dark blue sofa adorned with geometric-patterned pillows anchors the seating area, complemented by a wooden coffee table with simple lines and lower shelf space. A small side table with a sculptural lamp adds an artistic touch beside the sofa. Opposite, a wall-mounted flat-screen TV is positioned above a wooden cabinet that houses electronic devices and decoration. Two windows provide natural light, while a modern ceiling fan with wooden blades and recessed lighting ensure a well-lit, airy space ideal for relaxation.
Bedroom with Workspace

This bedroom features a neutral color palette with soft beige walls and white ceilings accented by medium wood trim. Twin windows on adjacent walls bring natural light, highlighting the cozy beige carpeting. A dark wood bed frame with matching nightstand hosts a geometric white lamp and a comfortable quad-patterned duvet in grey, navy, and white tones. A ceiling fan with wooden blades and glass light fixtures adds a classic touch. Against the far wall, wooden sliding closet doors add warmth, while a black ergonomic office chair and desk provide a functional workspace. Sports memorabilia on the walls gives a personal touch to this practical and inviting room.
Covered Patio Seating

This outdoor covered patio features a long and curved layout with a warm wooden ceiling that adds natural texture and richness. The floor is a smooth, pinkish concrete complementing the light beige stucco walls, producing a soft and calming atmosphere. A black metal dining table with six mesh-backed chairs offers a comfortable space for outdoor meals or gatherings. Large windows and sliding glass doors line the home’s exterior wall, allowing light and easy access between indoor and outdoor spaces. The surrounding low retaining wall encloses a small garden area with greenery, creating a private and serene retreat for relaxation and entertaining.
Covered Patio Seating Area

This spacious covered patio features a warm wooden plank ceiling that adds natural texture and a cozy feel. The area is furnished with matching woven rattan-style chairs and sofas upholstered in soft light gray cushions, complementing the neutral beige stucco walls. Patterned gray and white throw pillows add a subtle decorative accent. Central to the seating grouping is a large square firepit table with a tiled top, creating a focal point for conversation and relaxation. Multiple large windows and French doors connect the outdoor space to the interior, enhancing the open, airy design and inviting natural light inside.
Covered Patio Seating Area

This spacious covered patio blends comfort and style with a natural wooden ceiling that adds warmth and texture overhead. The seating arrangement includes cushioned wicker armchairs and a matching loveseat centered around a fire pit table, perfect for evening gatherings. Adjacent to this is a dining table with chairs, offering ample space for outdoor meals. The color palette features neutral earth tones, from soft beige cushions to dark wicker frames, complementing the muted concrete patio floor. Beyond, a low stone wall borders the yard with scattered greenery and a terracotta chiminea, all set against a serene view of distant mountains under a bright blue sky.
Laundry Room Utilities

This laundry room is practical and straightforward, featuring a side-by-side front-loading washer and dryer in crisp white. The room is floodlit with clean white overhead lighting, emphasizing a neutral palette of beige walls and light gray floor tiles that add a subtle contrast. To the left, natural wood cabinets with classic paneling provide ample storage space, extending from base level to eye height. A countertop with a built-in utility sink offers convenient workspace for soaking or hand washing. Functional details include a wall-mounted ironing board, a stainless steel trash can, and accessible electrical panels, all contributing to a clean and organized utility space.
Garage Storage and Workshop

This spacious garage features a smooth concrete floor with ample open space for vehicle parking or larger projects. A well-lit area includes fluorescent fixtures overhead ensuring bright, functional lighting. Along the right wall, modular metal shelving holds various tools, cans, and equipment neatly arranged for practical access. Above, a raised loft runs along two walls, providing generous storage for boxes and bins, supported by sturdy metal braces. On the far side, light wood cabinetry and countertops create a functional workshop zone, complemented by organized hand tools and equipment on hooks and work surfaces. The overall design blends utility with order, showcasing an efficient and clean workspace.
Backyard Lawn and Walkway

This spacious backyard features a well-maintained green lawn bordered by a smooth, light pink concrete walkway that curves gently alongside the home’s exterior wall. The yard is enclosed by a low, beige masonry block wall that provides privacy while blending naturally with the desert-like environment. Tall trees, including a leafy willow and other mature greenery, cast inviting shade over a gravel area beside the lawn. Potted plants and a clay chiminea add subtle warmth and charm. The blue sky and distant mountains create a serene, airy atmosphere that enhances the outdoor living space.
Want to see more from Remodr?

Drop a comment below, share this with your friends and family, and don’t forget to follow us for more fresh ideas, updates, tips, and home trends.
Listing Agent: Jacqueline M. Apodaca of Coldwell Banker Legacy via Zillow