
Nestled in a quiet double cul-de-sac in Houston, TX, this stunning 4-bedroom, 3,164 sqft Classic Greek Revival home offers timeless elegance with modern comforts. Priced at $640,000 and set on a 0.25-acre lot, the residence boasts extensive woodwork and millwork throughout, adding warmth and sophistication. Spacious bedrooms each feature en-suite bathrooms for privacy and convenience. A versatile flex room upstairs serves perfectly as a game room or additional living space. This home blends style, space, and versatility in an unbeatable location.
1. Greek Revival Elegance

The exterior of this Classic Greek Revival-style home in Houston, TX, exudes timeless elegance with its stately white brick facade and iconic tall columns supporting a grand, gabled pediment. Dark shutters frame the arched and rectangular windows, adding contrast and charm. The meticulously maintained lawn and neatly trimmed shrubs enhance curb appeal, while the detached garage provides convenience. Situated in a quiet double cul-de-sac, this home perfectly blends classic architectural beauty with suburban comfort.
2. Where is Houston, TX?

Houston, TX, is a vibrant metropolis located in Southeast Texas near the Gulf of Mexico. Known as the fourth-largest city in the United States, it offers a rich blend of culture, diversity, and economic opportunity. The city is home to the renowned Texas Medical Center and NASA’s Johnson Space Center. Its bustling downtown features world-class dining, sports venues, and arts institutions like the Houston Museum District. Surrounded by lush parks and bayous, Houston combines urban energy with Southern charm.
3. Ground Floor Layout

The ground floor of this home offers a well-thought-out layout that blends functionality with comfort. It features a spacious living room at its heart, ideal for gatherings and relaxation. The kitchen is positioned nearby, providing ample space for cooking and entertaining. A formal dining room adds elegance, while a study/library offers a quiet retreat. The laundry/utility room adds convenience, and a powder room is accessible for guests. The primary suite is tucked away for privacy, complete with a walk-in closet and en-suite bath.
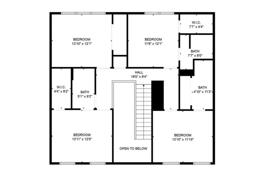
4. Second Floor layout

The second floor of this home features four spacious bedrooms, each offering ample natural light. A central hallway connects the rooms and provides access to multiple bathrooms for convenience. Two bedrooms include walk-in closets, while the others have easy access to storage and shared bath spaces. The stairwell leads up to an open-to-below area, creating an airy and connected feel to the lower level. The layout balances privacy and accessibility, making it ideal for a comfortable and functional living space.
5. Bright Dining Space

The entry and dining room of this home creates a bright and welcoming atmosphere with elegant design elements. The grand entrance features a dark wooden door framed by glass panels, allowing natural light to flow in. A staircase with white balusters and a wooden handrail adds a touch of sophistication. The dining area, adjacent to the entry, is framed by large arched windows that offer scenic outdoor views. A rustic wooden table with plush upholstered chairs sits on sleek tile flooring, blending classic charm with modern elegance.
6. Study with Built-In Shelves

The study of this home offers a sophisticated and functional space, ideal for work or relaxation. It features a wall of built-in wooden bookshelves, providing ample storage for books and décor. The neutral-toned tile flooring complements the crisp white walls, creating a bright and inviting atmosphere. Recessed lighting enhances the room’s elegance, while an open doorway connects it to other living areas. With its blend of style and practicality, this study is a perfect retreat for reading, studying, or working from home.
7. White Kitchen with Spacious Island

The kitchen of this home is a stunning blend of modern elegance and functional design. Featuring crisp white cabinetry, a spacious center island with built-in shelving, and sleek granite countertops, it offers ample storage and prep space. Pendant lighting highlights the open-concept layout, while large windows fill the room with natural light. Stainless steel appliances and a stylish backsplash add sophistication, and the adjacent breakfast nook provides a cozy spot to enjoy meals.
8. Inviting Living Space

The living room of this home is a bright and inviting space, featuring a classic white fireplace with elegant wall sconces that add warmth and charm. Large windows allow natural light to flood the room while offering a serene view of the backyard. The neutral color palette, high ceilings, and recessed lighting create an airy and spacious feel. A plush sofa sits atop a stylish area rug, enhancing the cozy ambiance. With seamless access to the kitchen and patio, this living area is perfect for relaxation and entertaining.
9. Bedroom with Natural Light

The primary bedroom of this home is a spacious and serene retreat, featuring a neutral color palette and large windows that flood the space with natural light. The high ceiling, complete with a modern ceiling fan, enhances the room’s airy ambiance. The elegant tiled flooring provides durability and a sleek aesthetic. With ample space for furniture and decor, this room is a versatile canvas for personalization. The large windows offer a view of the backyard, bringing in a connection to the outdoors while maintaining privacy and comfort.
10. Luxurious Bathroom

The primary bathroom of this home exudes elegance and relaxation with its spa-like design. A freestanding clawfoot bathtub sits beneath a large frosted window, allowing for natural light while maintaining privacy. The spacious glass-enclosed shower features sleek fixtures and marble-like tile, enhancing the luxurious feel. Dual vanities with granite countertops and classic white cabinetry provide ample storage and counter space. Recessed lighting and a large mirror complete the bright and airy ambiance, making this bathroom a true retreat.
11. Bright Bedroom

This bedroom offers a bright and inviting space with large windows that allow natural light to fill the room. The neutral color palette, soft carpet flooring, and crisp white walls create a versatile setting perfect for personalization. A modern ceiling fan enhances comfort, providing both style and functionality. With ample space for furniture, this room is ideal for a guest room, home office, or cozy retreat. The peaceful ambiance and charming neighborhood views make it a delightful place to relax and unwind.
12. Modern Bathroom with Luxurious Finishes

This bathroom offers a sleek and functional design with modern finishes. The glass-enclosed walk-in shower features elegant marble-style tile, creating a luxurious feel. A single-sink vanity with a granite countertop provides ample space for daily routines, while polished chrome fixtures add a touch of sophistication. The neutral color palette enhances the sense of space, making the bathroom feel bright and airy. A convenient hook for towels and a streamlined toilet complete the well-designed layout.
13. Laundry Room

The laundry room in this home is a functional and well-organized space designed for convenience. It features a full-size Maytag washer and dryer set against a clean, white wall. Above the appliances, there are sleek white storage cabinets, providing ample space for detergents, cleaning supplies, and other essentials. The bright and neutral color palette enhances the room’s fresh and airy feel. With its efficient layout and practical storage, this laundry area makes household chores simple and streamlined.
14. covered pergola

The patio of this home offers a spacious and inviting outdoor retreat, featuring a well-designed pergola that provides partial shade while allowing natural light to filter through. The floor is a combination of textured concrete and decorative brick accents, creating a stylish and durable foundation for outdoor activities. Large windows and glass doors connect the patio seamlessly to the interior, enhancing indoor-outdoor living. A fenced yard ensures privacy, making it an ideal space for relaxation or entertaining guests.
15. Spacious Backyard

The backyard of this home offers a spacious and inviting outdoor retreat, perfect for relaxation and entertainment. A large, mature tree provides ample shade, while the lush green lawn adds to the serene atmosphere. The covered patio extends from the house, offering a great space for outdoor dining or lounging. Enclosed by a tall wooden fence, this backyard ensures privacy and security. With plenty of room for gardening, play, or pets, this well-maintained yard is an ideal extension of the home’s living space.
Listing agent – Kristin Tillman @ Greenwood King Properties via Realtor.com