
Looking for your dream home in California? These three thoughtfully designed 3-bedroom real estate gems offer the perfect blend of comfort, functionality, and modern style. Whether you’re drawn to open-concept layouts, smart space-saving features, or homes built for entertaining, each floor plan highlights what today’s buyers value most. Dive in to explore how these homes make the most of their square footage and deliver everyday livability with a touch of California charm.
Where is California?

California is a vast and diverse state located on the west coast of the United States, stretching from the Pacific Ocean to the Sierra Nevada Mountains. With a population of nearly 40 million as of 2025, it’s the most populous state in the U.S. and a global leader in culture, technology, and entertainment. Home to iconic cities like Los Angeles, San Francisco, and San Diego, California offers everything from beaches and vineyards to deserts and redwood forests. Key attractions include Hollywood, Yosemite National Park, Silicon Valley, and the scenic Pacific Coast Highway. Known for its innovation, diversity, and natural beauty, California continues to attract homebuyers seeking opportunity, lifestyle variety, and a mild climate.
1. 4-Bed Real Estate in San Bernardino, CA – $551,842

This 4-bedroom, 3-bath real estate offering in San Bernardino features 1,800 square feet of stylish new construction priced at $551,842. Located in the Paloma at Summit Park community, the Niagra plan boasts open living and dining areas, a well-equipped kitchen with quartz countertops and a spacious island, and a main-floor bedroom with full bath. Upstairs includes a generous loft, a luxurious primary suite with a private bath and walk-in closet, plus two additional bedrooms. Surrounded by lush greenery and low-maintenance landscaping, the front of the house exudes a polished, modern look, ideal for both comfort and style.
Main Floor Layout

This main floor layout combines convenience and functionality, offering a spacious living room that seamlessly flows into the dining area and kitchen, ideal for both daily living and entertaining. The well-designed kitchen features ample counter space and modern appliances, with an optional 30″ cooktop for added flexibility. A nearby bedroom, perfect for guests or a home office, is conveniently located next to a full bath. The two-car garage provides easy access, with stairs leading to additional levels. This layout is ideal for families seeking practicality without sacrificing style.
Second Floor Layout

The second floor provides a comfortable and private retreat with three generously sized bedrooms, including the primary bedroom, which features a spacious walk-in closet and an ensuite bath. A convenient laundry room is located near the bedrooms, adding to the home’s practicality. The loft space offers a versatile area for relaxation or recreation, while a second full bathroom serves the other two bedrooms. This floorplan is perfect for families seeking a well-organized and functional space that still feels open and inviting.
Listing Agent – Richmond American Homes via Realtor.com
2.4-Bed Real Estate in Hesperia, CA – $551,842

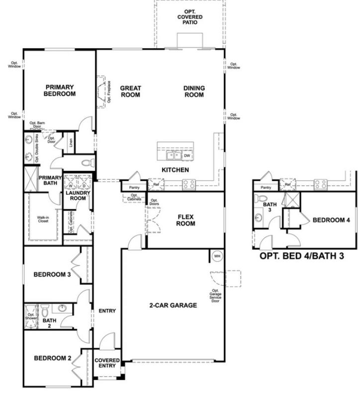
This 4-bedroom, 3-bath single-story real estate gem in Hesperia offers 2,080 square feet of beautifully designed living space for $551,842. The open layout includes a spacious great room, an optional fireplace, and a kitchen with a center island, generous pantry, and dining area. The primary suite features a private bath, linen storage, and an expansive walk-in closet. Two secondary bedrooms share a full bath, making this home ideal for families or guests. Thoughtful design and builder features add both style and convenience. This beautiful single-story home exudes warmth with its soft beige stucco exterior and classic Mediterranean tile roof.
floor plan

This spacious and well-designed main floor features a primary bedroom suite with a private bath and walk-in closet, offering a peaceful retreat. Two additional bedrooms, each with easy access to a full bath, provide ample space for family or guests. The open-concept living areas include a great room and dining room, creating a bright and airy space for relaxation and entertaining. The kitchen, with its central pantry, flows seamlessly into a flex room that can be adapted to meet various needs. The laundry room is conveniently located nearby, and the 2-car garage offers easy access to the home.
Listing Agent – Richmond American Homes via Realtor.com
3. 3-Bed Real Estate in Fortuna, CA – $383,000

This charming 3-bedroom, 2.5-bath real estate treasure in Fortuna spans 2,141 square feet on a generous 6,970-square-foot lot, priced at $383,000. Known as “The Peach Lady,” this 1906 Victorian has been thoughtfully updated with a new roof, refinished floors, and modern heating and electrical systems. The home features a spacious living room, study, eat-in kitchen, bonus room, and laundry. Outside, enjoy a fenced yard with fruit trees, raised garden beds, a workbench with 220v, and a detached garage with sliding barn doors. A timeless blend of history and comfort.
Main Floor layout

This thoughtfully designed floor plan offers a spacious living room perfect for entertaining, with an open flow into the kitchen and dining area. The well-appointed kitchen includes ample storage, while the cozy bedroom provides a peaceful retreat. A stylish bathroom and dedicated laundry area add convenience. Step outside onto the terrace to enjoy outdoor living, with additional space for relaxation or entertaining. A great option for those seeking a comfortable and practical home with modern touches.
Upper Floor Layout

This upper floor exudes a sense of spaciousness and tranquility, featuring a generously sized primary bedroom, ideal for creating your private retreat. The adjacent finished attic space offers a versatile room, whether you choose to use it as a home office or an additional living area. A well-placed WC adds convenience, while the expansive closet space ensures ample storage. With a simple staircase leading down to the rest of the home, this upper floor blends style and functionality for comfortable living.
Listing Agent – Jessika Chapman @ Corcoran Icon Properties Eureka via Realtor.com