
Discover this elegant 4-bedroom, 5-bathroom Colonial home in Staten Island, NY, listed at $1,644,000. Situated on a quiet street, this 4,200 sq. ft. residence sits on a spacious 7,840.8 sq. ft. lot. The open floor plan creates a seamless flow between the large eat-in kitchen, formal dining room, and inviting living areas. The expansive raised stone patio overlooks a beautifully landscaped yard with a sparkling in-ground pool, perfect for entertaining. With ample natural light and timeless architectural details, this home combines comfort and sophistication in a serene setting.
1. Elegant Colonial exterior

This elegant Colonial-style home boasts a striking white stucco exterior with classic architectural details. The grand arched entryway is framed by two stately columns, leading to a rich wooden front door with decorative glass accents. The home features a two-car garage with stylish white doors and a spacious circular brick driveway that adds to the home’s curb appeal. Large windows with ornate trim provide a refined touch, while the manicured lawn and mature landscaping enhance the home’s sophisticated charm. A brick and wrought-iron gate to the right offers a charming side entry to the backyard.
2. Where Is Staten Island, NY?

Staten Island, NY, is one of New York City’s five boroughs, located in the southwest part of the city. It is bordered by the New York Bay, the Arthur Kill, and the Kill Van Kull, with the Staten Island Ferry providing a direct connection to Manhattan. Known for its suburban feel, Staten Island offers a mix of urban and residential neighborhoods, abundant green spaces, and waterfront views. The Staten Island Greenbelt and Clove Lakes Park provide extensive hiking trails and natural beauty. The area is also home to the Staten Island Zoo, Staten Island Mall, and Historic Richmond Town, a preserved colonial village.
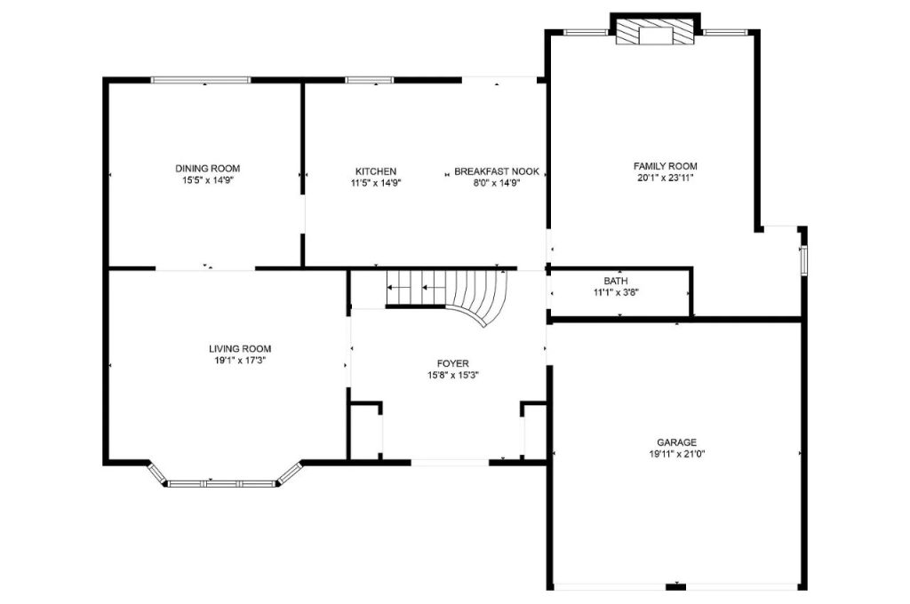
3. ground floor layout

The ground floor of this elegant home features a thoughtfully designed layout, blending style and functionality. Upon entering, you’re welcomed by a spacious foyer with a grand staircase. The open floor plan includes a bright living room with large windows, a formal dining room, and a well-appointed kitchen with a breakfast nook. A cozy yet expansive family room offers the perfect space for relaxation and entertaining. Completing the floor is a convenient half bath and an attached garage, providing both practicality and ease of access.
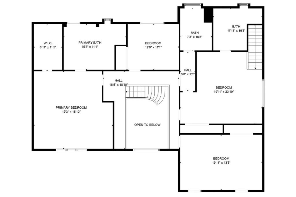
4. Second Floor layout

The second floor of this home offers a comfortable and private retreat, featuring a spacious primary bedroom with a walk-in closet and an en-suite bathroom. Three additional bedrooms provide ample space for family or guests, complemented by two additional full baths for added convenience. The open hallway overlooks the foyer below, creating a sense of openness and connection between the levels. Thoughtful design ensures that each room receives abundant natural light, while the well-planned layout offers both comfort and privacy for everyday living.
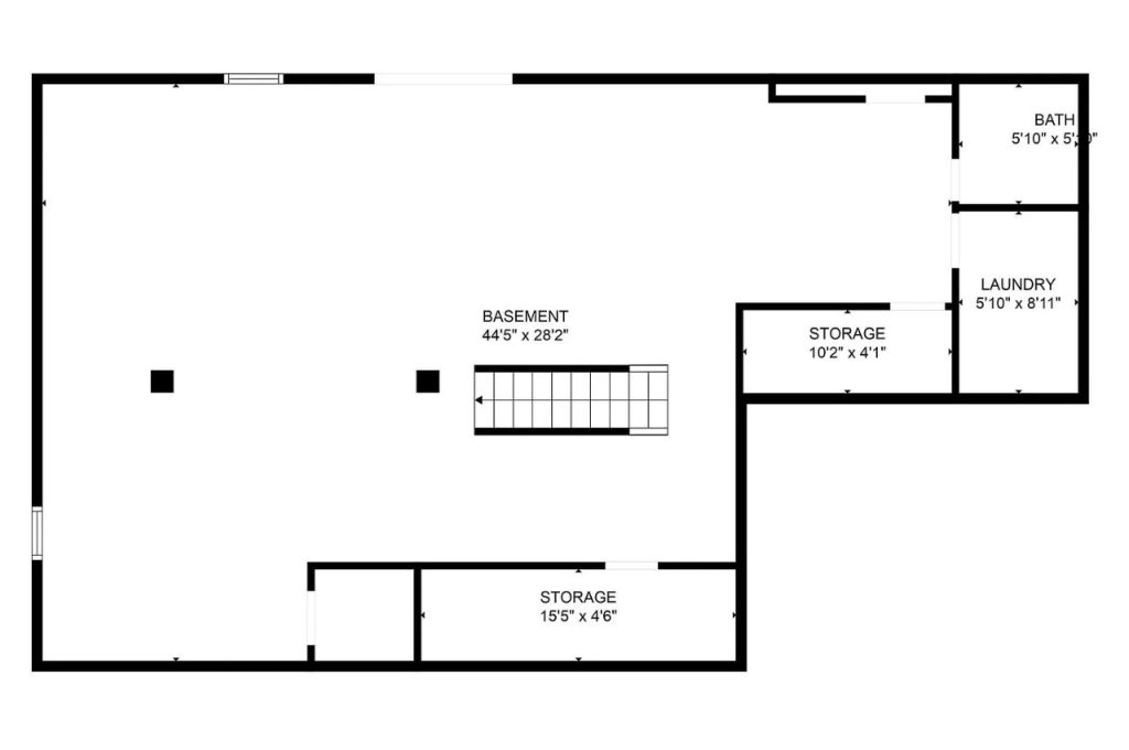
5. basement layout

The basement of this home is a spacious and versatile area with an open floor plan, allowing for various functional uses such as a recreation room, home gym, or additional living space. A centrally located staircase provides easy access, and the layout includes two storage rooms for organized storage solutions. A dedicated laundry room and a bathroom enhance convenience, making the space practical for daily use. With multiple access points and defined areas, this basement offers both utility and flexibility for homeowners.
6. Elegant Foyer

The foyer of this home exudes elegance and warmth with its glossy black tile flooring that reflects natural light, creating a sophisticated ambiance. A grand wooden staircase with classic balusters serves as a stunning focal point, complementing the rich wooden doors. The walls feature intricate panel molding, adding a touch of timeless charm. Thoughtfully placed decor, including a potted plant on an ornate stand, enhances the inviting atmosphere, making this entryway both stylish and welcoming.
7. Sophisticated Living Space

The living room of this home is a refined and inviting space, adorned with elegant furnishings and intricate details. A luxurious area rug anchors the seating arrangement, which includes plush cream-colored sofas and a stately armchair. A grand wooden coffee table with gold accents serves as the centerpiece, while classic artwork and a polished piano enhance the sophisticated ambiance. Open archways framed with decorative columns lead to the dining room and foyer, creating a seamless flow between spaces.
8. Dining Room with Classic Accents

This luxurious dining room exudes timeless elegance, featuring a polished wooden table surrounded by eight ornate, high-back chairs upholstered in cream fabric with gold accents. A sparkling crystal chandelier hangs above, adding a touch of grandeur. The marble floor is partially covered by an intricate area rug, complementing the traditional furnishings. Decorative columns and wainscoting enhance the room’s sophisticated ambiance. A large gilded painting and ornate sideboard complete the stately aesthetic, perfect for formal gatherings.
9. classic Kitchen with Breakfast Nook

This inviting kitchen features warm wood cabinetry, black granite countertops, and a matching island with additional storage and workspace. Stainless steel appliances and a sleek range hood add a modern touch. A glass-top breakfast table with six black leather chairs offers a cozy dining space, illuminated by stylish pendant lights. Sliding glass doors provide natural light and access to the backyard. Glossy terracotta tile flooring enhances the room’s warmth, while decorative shelving adds character and charm.
10. cozy Family Room

This spacious family room offers a warm and welcoming atmosphere, featuring a striking marble fireplace as its focal point. A large leather sectional provides ample seating, complemented by a glass-topped coffee table on a vibrant red area rug. Natural light pours in through dual glass doors and windows, enhancing the soft, neutral-toned walls. A mounted flat-screen TV and built-in media console add modern convenience, while framed photos and floral accents personalize the space for relaxed gatherings.
11. Bedroom with Elegant Accents

This spacious primary bedroom exudes sophistication with an opulent cream-colored bed frame, complete with intricate carvings and matching nightstands. A crystal chandelier adds a touch of grandeur, while large windows dressed in flowing drapes provide natural light and serene views. The plush bedding in soft gold tones complements the rich hardwood flooring, which is adorned with ornate area rugs. Classic furniture pieces, including a matching armoire, enhance the traditional aesthetic, creating a refined retreat.
12. spa inspired bathroom

This elegant bathroom showcases floor-to-ceiling marble tiles in warm peach tones, creating a sophisticated ambiance. A deep burgundy jacuzzi tub with gold fixtures serves as the focal point, perfect for relaxation. Dual sculpted vanities with modern sinks and mirrored accents provide ample space for daily routines. A large window allows natural light to brighten the space, while recessed lighting adds a soft glow. Classic wooden doors and gold hardware enhance the luxurious feel of this spa-inspired retreat.
13. Bedroom with Playful Charm

This vibrant bedroom features soft pink walls that create a cheerful and welcoming ambiance. Large windows with floral curtains fill the space with natural light and offer scenic views. The room is furnished with a sleek wooden bed frame, matching nightstands, and a spacious dresser with a curved mirror. A geometric-patterned area rug adds a contemporary touch, while a cozy corner with plush toys provides a playful element. The practical desk and ergonomic chair offer a comfortable workspace, making it both functional and stylish.
14. Elegant Bathroom

This bathroom features sleek marble-inspired tiles that lend a sophisticated charm. A spacious bathtub with a glass shower enclosure is equipped with a multi-functional shower panel. Natural light streams through the large window, creating a bright and airy ambiance. The double vanity with a glossy white finish offers ample storage and counter space. Above, a large mirror reflects light, enhancing the room’s spacious feel. Gold-accented fixtures add a touch of luxury, making this bathroom both stylish and functional.
15. Backyard with Pool and Patio

The back of this home boasts a spacious brick and stucco exterior, complemented by a towering chimney and elegant stone balustrades. A large deck extends from the upper level, providing a perfect space for outdoor dining under a shaded umbrella. Below, a covered patio offers additional seating and lounging options. The in-ground pool, currently covered, is surrounded by a stone paver patio. Tall privacy fences and mature greenery create a serene and secluded atmosphere, ideal for relaxation and entertaining.
Listing agent – JoAnn DellaRocca @ Connie Profaci Realty via Zillow