
Experience the perfect balance of style, comfort, and functionality with our curated selection of 5 beautiful 4-bedroom homes in Texas with floor plans. From spacious suburban retreats to modern city dwellings, these homes offer open layouts, contemporary amenities, and timeless architectural charm. Whether you’re looking for a cozy family home, a luxurious escape, or a stylish residence with scenic views, this collection has something for everyone. Explore these stunning homes and find inspiration for your dream Texas living space.
1. 4-bedroom House in Conroe, TX – $359,990

This elegant brick home in Conroe offers four bedrooms and 2.5 bathrooms across 2,481 sqft of thoughtfully designed living space. The grand arched entryway sets a welcoming tone, leading into a bright, open-concept interior with high ceilings and modern finishes. The spacious kitchen flows seamlessly into the living and dining areas, ideal for gatherings. Upstairs, generously sized bedrooms provide comfort and privacy. A two-car garage and private backyard complete this stylish suburban retreat.
Where is Conroe?

Conroe is a vibrant city north of Houston, Texas, known for its blend of small-town charm and modern conveniences. Nestled near the shores of Lake Conroe, it offers a mix of scenic beauty, outdoor recreation, and a thriving local economy. Originally a lumber town, Conroe has grown into a dynamic community with excellent schools, diverse dining, and cultural attractions. Its proximity to major highways and the Houston metro area makes it an ideal place for both relaxation and opportunity.
Main Level Floor Plan

Designed for effortless living, the main level seamlessly blends function and comfort. A welcoming foyer leads to the spacious family room, which flows into the open-concept kitchen and breakfast area—perfect for gatherings. The private master suite offers a generous walk-in closet and a spa-like bath. A formal dining room adds elegance, while a covered porch and optional patio extend the living space outdoors. A two-car garage and ample storage complete this thoughtfully crafted layout.
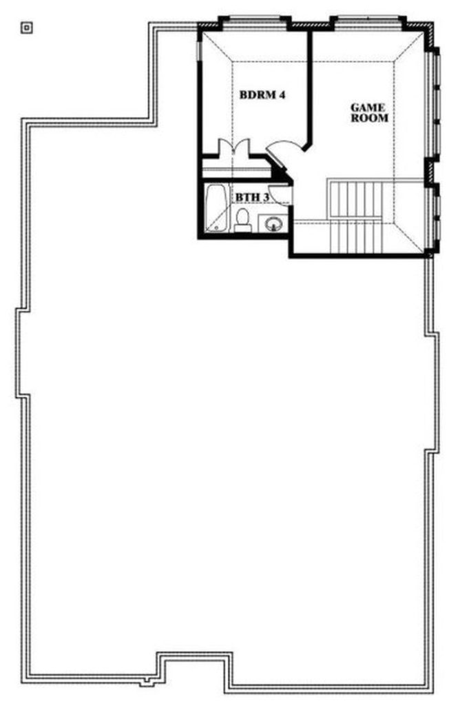
Upper Level Floor Plan

The upper level is designed for both relaxation and entertainment. Three spacious bedrooms provide comfort and privacy, while a shared full bath ensures convenience. A generously sized game room serves as a central gathering space, perfect for leisure or play. A walk-in closet adds extra storage, while the open-to-below design creates an airy, connected feel to the main level. This floor balances function and fun, making it an ideal retreat for family and guests alike.
Listing agent – Kendall Homes via realtor.com
2. 4-bedroom House in Fort Worth, TX – $614,900

This stunning modern farmhouse in Fort Worth features four bedrooms and three bathrooms across 2,813 sqft of beautifully designed space. A striking blend of stone and board-and-batten siding gives it a stylish yet timeless curb appeal. Inside, high ceilings and an open floor plan create a bright, airy atmosphere. The spacious kitchen, sleek finishes, and inviting living areas make it perfect for entertaining. A three-car garage and lush backyard offer practicality and relaxation in a prime location.
Where is Fort Worth?

Fort Worth is a dynamic city in North Texas, blending Western heritage with modern urban appeal. Known as “Cowtown,” it boasts historic stockyards, world-class museums, and a thriving arts scene. Its bustling downtown features Sundance Square, while the Trinity River offers outdoor escapes. Fort Worth’s strong economy, top-rated universities, and diverse dining make it a vibrant place to live and visit. With easy access to Dallas and major highways, it offers both big-city energy and Texas charm.
Main Level Floor Plan

Designed for seamless living, the main level blends comfort and practicality. A spacious primary suite offers a private retreat with a walk-in closet and luxurious bath. The open-concept kitchen flows effortlessly into the family and breakfast rooms, creating a welcoming space for gatherings. Three additional bedrooms, each with ample storage, ensure room for family or guests. A covered patio extends the living area outdoors, while the dining room and foyer add a touch of elegance.
Listing agent – GFO Homes via realtor.com
3. 4-bedroom House in Amarillo, TX – $330,480

This inviting brick home in Amarillo offers four bedrooms and two bathrooms across 2,050 sqft of well-designed space. Blending rustic charm with modern touches, the home features a striking brick-and-stone facade and large windows that fill the interior with natural light. The open-concept living area is perfect for entertaining, while the spacious kitchen boasts contemporary finishes. A covered patio and private backyard provide a peaceful retreat. With a two-car garage, this home offers comfort and convenience in a desirable location.
Where is Amarillo?

Amarillo sits in the heart of the Texas Panhandle, offering a unique blend of Western heritage and rugged natural beauty. Known for its iconic Cadillac Ranch and deep cowboy culture, the city is a gateway to the stunning Palo Duro Canyon. Amarillo’s economy thrives on agriculture, energy, and transportation, while its dining scene features famous Texas steakhouses. With Route 66 history, friendly locals, and wide-open spaces, Amarillo captures the spirit of the Lone Star State.
Main Level Floor Plan

This floor plan offers a well-balanced layout designed for both comfort and functionality. The master bedroom, complete with a walk-in closet and private bath, ensures a retreat-like space. Three additional bedrooms share a full bath, providing ample room for family or guests. The open-concept living and dining areas flow seamlessly into the kitchen, which features a spacious island. A covered patio extends the living space outdoors, while the garage and laundry area add everyday convenience.
Listing agent – Betenbough Homes via realtor.com
4. 4-bedroom House in Cypress, TX – $669,990

This stunning home in Cypress, TX, offers four bedrooms and three bathrooms across 3,100 sqft of elegant living space. The modern farmhouse design features a bright white brick exterior with soft green shutters and a charming arched entryway. Inside, an open floor plan provides ample natural light, spacious living areas, and high-end finishes. A beautifully landscaped front yard and three-car garage add to the home’s curb appeal. Situated in a desirable neighborhood, this home is perfect for families looking for both style and comfort.
Where is Cypress?

Cypress is a thriving suburban community northwest of Houston, Texas, known for its top-rated schools, master-planned neighborhoods, and strong local economy. Once a rural area, it has grown into a vibrant hub with excellent shopping, dining, and entertainment options. The region boasts scenic parks, golf courses, and access to nature trails, making it a great spot for outdoor enthusiasts. With easy access to major highways, Cypress offers a perfect mix of suburban comfort and city convenience.
Main Level Floor Plan

Designed for both relaxation and functionality, this layout offers an open-concept family and dining area that seamlessly connects to the kitchen, complete with a large island and walk-in pantry. A dedicated study provides a quiet workspace, while a retreat area adds flexibility for entertainment or relaxation. The owner’s retreat features a private bath and spacious walk-in closet. Additional bedrooms, multiple baths, and a covered porch enhance comfort, making this home perfect for modern living.
Listing agent – David Weekley Homes via realtor.com.
5. 4-bedroom House in Waxahachie, TX – $469,715

This gorgeous home in Waxahachie, TX, features four bedrooms and three bathrooms across 2,454 sqft. With a modern rustic design, it boasts a unique combination of light brick and dark wood accents, creating a striking exterior. The arched entryway and large bay windows add to its character, while the three-car garage with barn-style doors enhances its curb appeal. Inside, expect an open-concept floor plan, high ceilings, and elegant finishes throughout. Perfect for those seeking a stylish yet cozy living space in a growing community.
Where is Waxahachie?

Waxahachie is a charming city south of Dallas, Texas, known for its rich history, vibrant downtown, and stunning Victorian architecture. Often called the “Crape Myrtle Capital of Texas,” it boasts colorful blooms in summer and a welcoming small-town feel year-round. The city hosts popular festivals, including the Scarborough Renaissance Festival and Texas Country Reporter Festival. With historic landmarks, excellent schools, and easy access to Dallas, Waxahachie blends tradition with modern growth.
Main Level Floor Plan

This floor plan blends open-concept living with private retreats, perfect for both entertaining and relaxation. The spacious family room flows seamlessly into the kitchen and breakfast area, while a covered patio extends the living space outdoors. The primary suite offers a private sitting area, walk-in closet, and direct access to the main bath. Additional bedrooms feature walk-in closets, and a flexible study or dining area enhances functionality. Thoughtful design ensures comfort and convenience at every turn.
Upper Level Floor Plan

Designed for entertainment and privacy, the upper level features a spacious game room, ideal for gatherings, hobbies, or relaxation. A secluded fourth bedroom with an en-suite bath offers a comfortable retreat for guests or family members. Large windows invite natural light, creating a bright and airy atmosphere. Whether used for recreation, work, or rest, this level adds flexibility to the home, ensuring every space meets the needs of modern living.
Listing agent – Bloomfield Homes via realtor.com