
Located in the heart of Maple Grove, MN, this stunning modern farmhouse priced at $2,395,000 offers 5 bedrooms, 4.5 bathrooms, and an impressive 6,398 square feet of refined living space. Nestled on a 0.28-acre lot, the home blends bold contemporary lines with warm, welcoming charm—designed for upscale suburban living at its finest.
1. Striking Modern Farmhouse

This stunning two-story residence blends modern farmhouse aesthetics with sleek, contemporary touches. A bold black-and-white palette defines the facade, accented by vertical siding, stonework, and expansive windows that flood the interior with natural light. Dual glass garage doors and a cozy front porch swing add function and warmth, while steep gables lend a striking architectural presence.
2. Where is Maple Grove?

Maple Grove is a vibrant suburb located just northwest of Minneapolis in the state of Minnesota. Known for its scenic parks, top-rated schools, and thriving community, it offers a perfect blend of suburban comfort and urban convenience. With miles of trails, a bustling downtown area, and easy access to major highways, Maple Grove has become a sought-after destination for families and professionals alike seeking space, style, and a strong sense of neighborhood.
3. Ground floor layout

The ground floor layout offers a harmonious blend of space and function, ideal for modern living. An open-concept living and dining area flows seamlessly into the kitchen, complete with a large pantry for added convenience. Two dedicated office spaces provide work-from-home flexibility, while the mudroom and full bath near the entry ensure everyday practicality. A generous porch extends the living space outdoors, perfect for relaxing or entertaining year-round.
4. Second floor layout

The second floor offers a thoughtfully designed retreat, featuring five spacious bedrooms, including a luxurious primary suite with a spa-style bath and expansive walk-in closet. A central loft provides a flexible living space, while four additional bathrooms ensure convenience and privacy. The upstairs laundry room adds everyday ease, and ample closets throughout support seamless, organized living for families of all sizes.
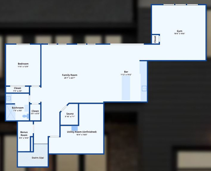
5. Basement floor layout

The lower level unfolds into a dynamic space designed for both relaxation and activity. A generous family room anchors the floor, flowing into a sleek bar area—ideal for entertaining. A private bedroom and full bath offer comfort for guests, while a gym and sauna elevate wellness at home. A bonus room adds flexibility, and ample storage, including an unfinished utility room, rounds out this versatile and inviting level.
6. Sophisticated Kitchen

This refined open-concept kitchen blends modern design with inviting warmth. Dark cabinetry with brushed gold hardware contrasts beautifully with the light quartz countertops and natural wood floors. Twin gold pendant lights create a dramatic focal point above the island, while exposed ceiling beams add architectural charm. Flowing into the living space, this layout encourages effortless entertaining and everyday ease.
7. Stylish Dining with Built-in Charm

This elegant dining area strikes a perfect balance between comfort and sophistication. A custom-built, tufted banquette in warm camel tones wraps the solid wood table, paired with sculptural chairs for a modern touch. Overhead, matching brass pendants echo the kitchen’s style, while exposed beams add visual warmth. With direct access to the patio and a built-in buffet, the space is ideal for everyday meals or hosting with ease.
9. scenic Living Room

Designed for comfort and connection, this light-filled living room pairs clean lines with natural textures. Expansive windows invite the outdoors in, offering sweeping treetop views that complement the warm wood floors. Dark vertical paneling flanks a sleek fireplace and TV wall, adding depth and contrast. Exposed ceiling beams, woven armchairs, and a richly hued area rug ground the space with organic charm.
10. Covered Patio Retreat

Blending indoor comfort with outdoor charm, this covered patio is made for year-round relaxation. A pitched cedar ceiling adds warmth overhead, while a sleek stone fireplace anchors the space with modern elegance. Black-framed screens frame tranquil woodland views, and cozy furnishings invite lingering conversations. Finished with a ceiling fan and patio heater, it’s a serene spot no matter the season.
11. Sophisticated Home Office

Bathed in natural light from expansive floor-to-ceiling windows, this elevated office blends productivity with style. A warm suede-toned sofa anchors the space, balanced by sleek black cabinetry and a rustic desk with classic turned legs. Above, a sculptural longhorn skull adds a Western edge. With a putting green for quick breaks and sweeping views, this space redefines the modern work-from-home experience.
12. sauna

This serene in-home sauna offers a luxurious escape, wrapped entirely in smooth, honey-toned wood for a calming, cohesive feel. Clean lines and built-in benches provide comfortable seating, while the glass door invites soft light from the adjacent room. Thoughtful details like the folded towel and stacked stones promise relaxation and rejuvenation, creating a spa-like sanctuary just steps away from everyday life.
13. Lounge with Entertainer’s Bar

This expansive lower-level lounge invites both relaxation and celebration with its open layout and refined finishes. A plush modular sofa in deep navy velvet anchors the seating area, while warm wood floors extend to a sleek bar outfitted with glass shelving and pendant lighting. Large windows flood the space with light, and a shuffleboard table adds a playful touch to this effortlessly stylish retreat.
14. Modern Home Gym

This light-filled fitness room blends function and flair with its clean layout and refined design elements. Expansive windows invite natural light, while a feature wall of round mirrors adds depth and visual interest. Sleek equipment, from a cable machine to a compact treadmill, supports a full-body workout. Neutral tones and uncluttered surfaces create a calm, energizing atmosphere perfect for daily training.
15. Primary Suite with Scenic Views

This inviting bedroom balances comfort and sophistication with its soft color palette and thoughtful design. A tray ceiling and elegant chandelier add subtle architectural interest, while wide windows frame calming views of treetops and sky. Light oak flooring pairs with a textured navy rug for warmth and depth. Accents in matte black—nightstands, dresser, and window trim—anchor the space with modern elegance.
16. Spa-Inspired Bathroom

This serene bathroom retreat pairs luxurious finishes with a tranquil ambiance. A long marble vanity with warm wood cabinetry is topped by modern gold fixtures and softly glowing sconces. The freestanding tub sits beneath a picture window, offering peaceful views and natural light. A glass-enclosed shower and vintage-style rug complete the space, blending comfort and sophistication in perfect harmony.
17. Exterior with Expansive Windows

This sleek rear façade combines clean lines and dramatic scale, wrapped in a deep charcoal exterior that enhances its contemporary appeal. Towering windows span across each level, offering uninterrupted views and bathing the interior in natural light. A covered patio and upper deck create seamless indoor-outdoor flow, while subtle architectural variations add depth and dimension to this refined, modern design.
Listing Agent – Ryan Platzke @ Coldwell Banker Realty via realtor.com