
This elegant single-family home at 27000 Pete’s Hill Trail in Elko New Market, MN, features 4 bedrooms, 3 bathrooms, and 2,826 sq ft of living space. Priced at $689,927, it sits on a premium lot bordered by wetlands on three sides, offering privacy and scenic views. Key features include a gourmet kitchen, open-concept living areas, and a spacious primary suite. Located at the end of a cul-de-sac, this home provides access to nearby parks and walking trails.
1. Charming Craftsman-Style Front View

This charming Craftsman-style home offers incredible curb appeal with a welcoming front porch, stone accents, and board-and-batten siding. The three-car garage provides ample space, while warm exterior lighting enhances the home’s inviting look at twilight. A cozy outdoor seating area by the entrance creates the perfect spot to enjoy sunsets. Surrounded by scenic woods, the home delivers privacy and a peaceful setting. The architecture blends elegance with modern comfort effortlessly.
2. Where is New Market, mN?

New Market, MN is a charming community located in Scott County, just south of the Twin Cities metro area. Known for its small-town atmosphere and beautiful countryside, New Market offers easy access to parks, trails, and golf courses. It’s close to Elko New Market, blending rural tranquility with modern conveniences like shops and dining. Residents enjoy a peaceful lifestyle while still being within commuting distance to Minneapolis and Saint Paul, making it ideal for those seeking both serenity and convenience.
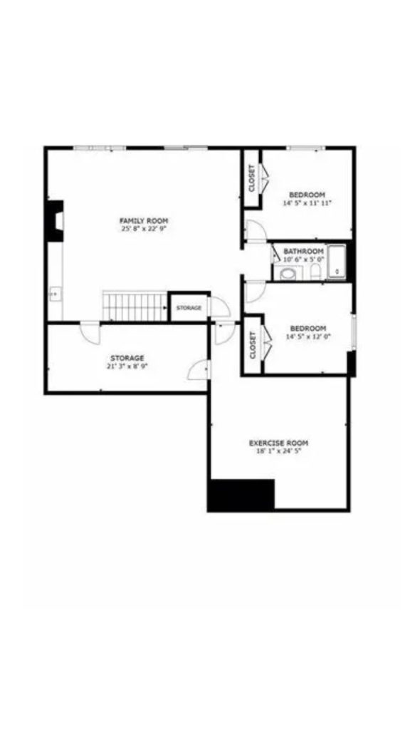
3. lower level layout

The basement of this home offers a spacious and versatile layout. It features a large family room perfect for gatherings, two well-sized bedrooms with closets, and a full bathroom. Additional highlights include a generous exercise room, ideal for fitness routines, and two separate storage areas to keep belongings organized. This level offers both comfort and functionality, making it a perfect space for relaxation, hobbies, and extended guest accommodations.
4. main level layout

The first floor showcases an open and functional layout with a spacious living room at its heart, connecting seamlessly to the dining area, kitchen, and cozy sunroom that leads to a private balcony. The primary bedroom offers a large walk-in closet and an en-suite bathroom. Additional highlights include a convenient laundry room, a welcoming entryway, an office with a closet, two full bathrooms, and a roomy garage with direct access to the home, all complemented by a covered front veranda.
5. Living Room Elegance with Fireplace

The living room of this home is a bright, welcoming space highlighted by an impressive gas fireplace surrounded by stacked stone and flanked by custom wood shelving. Vertical slat detailing above the fireplace draws the eye upward, emphasizing the room’s high ceilings. Natural light streams through a wall of oversized windows, offering tranquil outdoor views. Warm-toned wood floors and neutral wall colors create a calming atmosphere perfect for both entertaining and everyday living.
6. Modern White Kitchen with Island

This stunning kitchen combines classic design with modern upgrades, featuring crisp white cabinetry, quartz countertops, and sleek black hardware. A large center island provides casual seating for three, perfect for morning coffee or evening entertaining. Stainless steel appliances, pendant lighting, and a subway tile backsplash complete the look. Generous windows and an open layout keep the space feeling fresh, airy, and connected to the dining and living areas.
7. Dining Area with Scenic Views

The dining area sits just off the kitchen, offering stunning views of the wooded landscape through expansive windows. Light streams in, illuminating the round dining table, cushioned chairs, and a statement chandelier that adds elegance without overwhelming the space. A charming buffet cabinet provides stylish storage, while the open floor plan encourages easy flow between dining, cooking, and lounging areas — ideal for everyday living and special gatherings.
8. Primary Bedroom with Tray Ceiling

The serene primary bedroom offers a private escape, boasting a beautiful tray ceiling and wide windows that frame picturesque tree-lined views. Plush carpeting, warm neutral tones, and thoughtfully selected furnishings enhance the retreat-like ambiance. A luxurious bed sits between matching side tables, with a cozy armchair tucked beside the window — the perfect nook for morning coffee or evening reading. This space invites ultimate relaxation and comfort.
9. Guest Bedroom with Outdoor View

A welcoming guest bedroom combines cozy simplicity with bright, cheerful design. The large window frames outdoor views of a covered patio and tree canopy, blending nature with comfort. Crisp white walls and soft neutral carpeting add a clean, refreshing feel, while the room’s spaciousness easily accommodates a queen-size bed and dresser. Ideal for overnight guests or family, this light-filled room strikes a balance between stylish and homey.
10. Secondary Bedroom with Rock View

This secondary bedroom features a unique natural backdrop: large stones stacked beyond the window create a private, peaceful view. Clean lines, plush carpeting, and neutral walls make it feel serene and versatile — ready to be styled as a guest suite, a creative space, or a restful bedroom. Generous lighting and tasteful simplicity ensure the room feels open and welcoming, making it a true blank canvas to fit any need.
11. Modern Bathroom with Bathtub

This well-appointed bathroom offers a spa-like feel with its crisp white cabinetry, contemporary light fixtures, and an elegant framed mirror above the wide vanity. The tub-and-shower combo features a seamless glass enclosure and sleek white tile surround, bringing a clean, refreshing aesthetic. With ample storage and modern hardware finishes, this bathroom strikes a perfect balance of luxury and functionality for daily routines.
12. Stylish Walk-in Shower Bathroom

An upscale second bathroom delivers clean, contemporary design with a glass-enclosed walk-in shower, featuring matte black fixtures and matching hardware. A floating vanity with a bright white countertop and ample under-sink storage makes organization easy. Soft neutral wall colors and fresh lighting add to the spa-like environment, creating a stylish yet functional space perfect for guests or family members.
13. Laundry Room with Walk-In Closet Access

The home’s thoughtfully designed laundry room features custom cabinetry for extra storage, a deep utility sink, and side-by-side front-loading Electrolux washer and dryer units. Smartly positioned, it offers direct access to the expansive walk-in closet, streamlining daily chores. Crisp white cabinetry, stone countertops, and durable flooring make this space not just practical, but stylish and polished.
14. Home Office with Scenic Window

The designated home office creates a bright, focused workspace enhanced by a large window offering calming views of the landscaped backyard. Hardwood flooring, a neutral color scheme, and abundant natural light create an energizing yet peaceful environment for productivity. Whether working from home, studying, or crafting, this well-designed office offers functionality in an inspiring setting.
15. Cozy Outdoor Patio with Firepit

This inviting backyard patio offers a perfect spot for outdoor relaxation and gatherings. Nestled beneath the covered deck, a built-in firepit surrounded by comfortable Adirondack chairs creates an ideal setting for roasting marshmallows, sharing stories, or enjoying crisp evening air. The space feels private and peaceful, bordered by natural landscaping and wooded views beyond.
Listing agent – John Wichmann @ RE MAX Advantage Plus via Realtor.com