
This magnificent estate in Lake Villa, IL, is a masterpiece of grand design and timeless elegance. Set on 6.72 acres, this sprawling 10,500 sq. ft. residence offers 6 bedrooms and 8.5+ bathrooms, blending stately architectural elements with modern luxury. Towering windows, turreted corners, and a resort-style pool with cascading waterfalls create an unparalleled retreat for refined living.
1. Luxurious Lakefront Estate with Resort-Style Living

This stunning estate seamlessly blends traditional charm with modern grandeur, featuring a striking brick exterior and soaring gabled windows. The turreted corners and stone-accented pillars add architectural depth, while the expansive balconies provide breathtaking views. A cascading waterfall flows into a resort-style pool, creating a private oasis. Surrounded by lush landscaping, this home is a true retreat for luxury living.
2. Where is Lake Villa?

Lake Villa is a picturesque village in northeastern Illinois, nestled among scenic lakes and lush greenery. Known for its peaceful suburban charm, it offers a perfect blend of small-town tranquility and modern conveniences. Rich in natural beauty, the area features numerous parks, walking trails, and opportunities for water recreation. With excellent schools, local shops, and convenient access to Chicago via Metra and major highways, Lake Villa provides an ideal setting for those seeking both relaxation and connectivity.
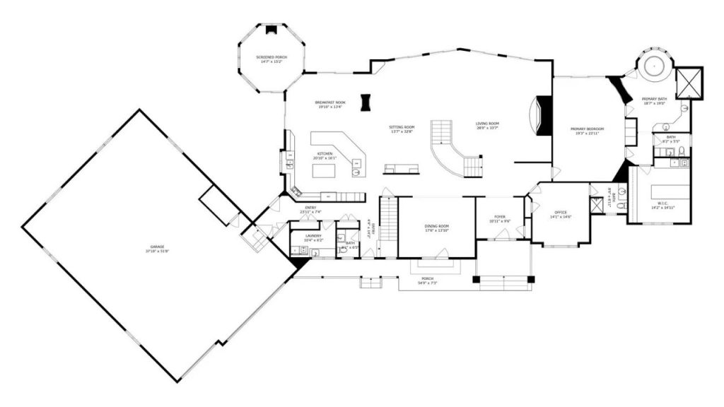
3. Main Floor – Expansive and Thoughtfully Designed

This stunning main level welcomes you with a grand foyer leading into an open-concept living space. A curved staircase serves as a striking focal point, while the formal dining room and private office add a touch of sophistication. The gourmet kitchen, complete with a breakfast nook, flows seamlessly into the sitting and living rooms, ideal for entertaining. The luxurious primary suite boasts a spacious walk-in closet and spa-like bath. A screened porch and a large garage enhance both comfort and convenience.
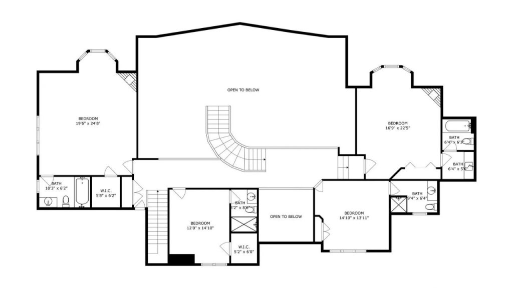
4. Second Floor – Spacious and Private Retreat

The second level features well-appointed bedrooms, each offering generous space and walk-in closets. A stunning open-to-below layout allows natural light to cascade through, enhancing the airy feel. Multiple bathrooms ensure privacy and convenience, while unique architectural details, such as bay windows and alcoves, add character. Whether for family living or hosting guests, this floor perfectly balances comfort and elegance.
5. Lower Level – Entertainment and Leisure Haven

Designed for relaxation and recreation, the lower level offers a vast entertainment space with a full bar, media room, and a large recreation area. A private bedroom and exercise room provide additional versatility. The seamless indoor-outdoor connection leads to an expansive patio and a swimming pool, making this the ultimate destination for both relaxation and entertaining. Thoughtfully designed, this level is a true extension of the home’s luxury and functionality.
6. Lakeside Room with Soaring Views

This breathtaking great room blends rustic elegance with modern openness, featuring a dramatic vaulted ceiling with warm wood paneling. A towering wall of windows frames a sweeping lakefront vista, flooding the space with natural light. Rich wood beams add architectural charm, while sliding glass doors provide seamless indoor-outdoor flow. The neutral-toned flooring enhances the airy feel, creating a serene retreat designed for both relaxation and entertaining.
7. Gourmet Kitchen

This expansive kitchen blends elegance and functionality, featuring rich wood cabinetry with intricate detailing. A striking granite island provides ample prep space and seating, complemented by sleek black barstools. Pendant lights with geometric frames add a modern touch, while a dramatic stone backsplash serves as a focal point. High-end stainless steel appliances are seamlessly integrated, and a large arched window bathes the space in natural light, creating a warm and inviting atmosphere.
8. Sophisticated Dining

This inviting dining space seamlessly blends style and comfort, featuring a round wooden table surrounded by plush, high-backed chairs. A sleek black-paneled fireplace creates a warm focal point, dividing the space while maintaining an open-concept flow. Overhead, a geometric pendant light adds a modern touch. The kitchen and bar area extend the space’s functionality, while rich wood finishes and natural light complete the refined yet welcoming atmosphere.
9. Scenic Sunroom

This breathtaking sunroom offers a 180-degree panoramic view of the serene lakefront, framed by warm wooden interiors. The floor-to-ceiling windows flood the space with natural light, creating a seamless connection to the outdoors. A cozy wicker dining set with plush cushions invites relaxed gatherings, perfect for morning coffee or evening sunsets. The combination of rich wood tones, abundant natural light, and tranquil scenery makes this a truly peaceful retreat.
10. Lakefront Living Room

This stunning living room seamlessly blends comfort and nature with its floor-to-ceiling windows showcasing breathtaking lake views. The open-concept design features warm wood tones, vaulted ceilings, and a cozy double-sided fireplace with a modern navy shiplap accent. Plush leather recliners and a sleek entertainment center create the perfect spot for relaxation, while sliding glass doors provide direct access to the scenic outdoor patio. Ideal for unwinding or entertaining, this space embodies lakeside luxury.
11. Elegant Dining Room

This striking dining room combines classic and modern elements, featuring deep blue walls contrasted with crisp white wainscoting. A dramatic tray ceiling with wood trim adds warmth and dimension, while a vintage-style chandelier creates an inviting ambiance. The large wooden dining table, surrounded by a mix of upholstered and wooden chairs, provides ample seating for gatherings. French doors open to a lush outdoor view, enhancing the space with natural light and a seamless connection to nature.
12. Luxurious Master Bedroom

This luxurious master bedroom exudes warmth and elegance with rich wood tones, plush bedding, and a stunning lake view. A grand wooden bed frame anchors the space, complemented by soft lighting, a tray ceiling, and a unique dual-fan fixture. The cozy fireplace adds charm, while floor-to-ceiling windows fill the room with natural light. Thoughtful décor, including a mirrored accent and framed photos, enhances the inviting ambiance, creating the perfect retreat for relaxation.
13. Lakeview bathroom

This stunning bathroom offers luxury and relaxation with breathtaking lake views. A large soaking tub sits beneath elegant bay windows, allowing natural light to flood the space. The glass-enclosed shower, dual vanity with granite countertops, and rich wooden cabinetry add sophistication. Soft blue walls and a tray ceiling enhance the spa-like ambiance, while marble flooring with a decorative inlay provides a refined touch. A private balcony access completes this serene retreat.
14. Sophisticated Home Office

This refined home office blends elegance with functionality, featuring rich wood furnishings and deep blue textured walls. A stately executive desk sits before a large arched window, allowing natural light to illuminate the space. Classic crown molding and oak trim enhance the timeless appeal. The built-in hutch and credenza provide ample storage, while a ceiling fan adds comfort. This thoughtfully designed workspace is ideal for productivity and style.
15. Primary Suite with Fireplace

This inviting primary suite offers warmth and comfort, featuring a cozy sitting area with a fireplace and scenic views through multiple windows. The room’s neutral tones, plush carpeting, and wood accents create a relaxing atmosphere. A raised platform defines the seating nook, perfect for unwinding. The ceiling fan ensures year-round comfort, while ample natural light enhances the space. Thoughtfully designed, this suite is both functional and serene.
16. Stylish Bathroom with Modern Accents

This elegant bathroom blends contemporary design with warm wood tones. A sleek vessel sink sits atop a granite countertop, complemented by rich wood cabinetry. The dark tiled backsplash adds depth, while a round mirror and linear light fixture create a modern touch. The shower-tub combination features a striking geometric tile accent and gold-tone hardware, adding a bold contrast. Thoughtfully designed, this space balances sophistication and functionality.
17. Cozy Lakeview Bedroom with Fireplace

This inviting bedroom features a warm and rustic design with natural wood tones and soft neutral colors. A grand wooden bed frame with textured bedding sits opposite a charming fireplace, creating a cozy and relaxing atmosphere. Large windows offer stunning lake views, bringing in natural light and a serene ambiance. The room is completed with a spacious dresser and mirror, a ceiling fan for comfort, and a sitting area by the windows, perfect for unwinding. It is a peaceful retreat blending elegance and comfort.
18. Living Room with Rustic Charm

This beautifully designed living space offers a warm and inviting ambiance with a large stone fireplace as the focal point. A plush sectional sofa provides ample seating, making it perfect for gatherings and relaxation. The nautical-inspired decor, wood trim accents, and large sliding glass doors bring a cozy yet open feel to the room, allowing for stunning lake views and easy outdoor access. Recessed lighting and neutral-toned carpeting add to the comfortable and sophisticated atmosphere, while a fun game area in the background enhances the entertainment appeal. A perfect blend of rustic charm and modern comfort!
19. Nautical-Inspired Entertainment Space

This stunning game room and bar area exudes a rich nautical theme with warm wood finishes, marine-style decor, and a sleek blue-felt pool table. The beautifully crafted wooden bar, complete with ship-inspired details and blue barstools, creates an inviting atmosphere for socializing. A cozy seating area with a mounted TV adds to the entertainment value, while large sliding glass doors bring in natural light and offer easy access to an outdoor patio. Thoughtfully designed with maritime accents, this space is the ultimate destination for relaxation and recreation!
20. Home Theater

This home theater exudes comfort and style with its plush red leather reclining seats, complete with built-in cup holders and side tables for ultimate convenience. The tiered seating arrangement ensures an optimal viewing experience for all guests. The room’s dark color scheme enhances the cinematic atmosphere, while red acoustic panels add a pop of color and improve sound quality. Classic film reel decor on the walls reinforces the movie-themed ambiance, making this the perfect space for immersive entertainment.
21. Luxury Home Gym

This stunning home gym and recreation space offers the perfect blend of fitness and relaxation. Featuring a variety of exercise equipment, a sleek ping-pong table, and a cozy seating area with a massage chair, this room is designed for both high-energy workouts and laid-back leisure. Expansive glass doors provide breathtaking views of the lake, allowing natural light to flood the space. The warm, inviting décor, accented with sports memorabilia and elegant wood finishes, makes this a dream retreat for fitness enthusiasts and game lovers alike.
22. Bar with Elegant Wood Finishes

This beautifully designed outdoor bar is the ultimate entertaining space, seamlessly blending rustic charm with modern luxury. Featuring rich wood countertops, a stylish brick backdrop, and a built-in TV, it’s perfect for hosting gatherings or enjoying a quiet evening drink. The open-air layout provides refreshing views of the surrounding nature, while the polished wood ceiling and soft lighting create a warm, inviting atmosphere. With a fully stocked bar and stainless-steel appliances, this lakeside retreat offers an unmatched blend of comfort and sophistication.
23. Lakeview living space

This stunning open-concept living space is designed to maximize natural light and breathtaking lake views. Expansive floor-to-ceiling windows and sliding glass doors lead to a private balcony, seamlessly blending indoor and outdoor living. The warm wood flooring complements the classic oak cabinetry, while a sleek black fireplace adds a cozy focal point. Perfect for entertaining or quiet relaxation, this inviting space offers modern comforts with a serene waterfront backdrop, making it an ideal lakeside retreat.
24. Lakeside Living

This stunning waterfront property offers the perfect blend of relaxation and adventure. Featuring direct access to the lake, a private dock, and a spacious rooftop deck, this home is an ideal retreat for those who love the water. Surrounded by mature trees and beautiful neighboring estates, it provides a serene escape while still offering modern amenities. Whether you’re looking to entertain, enjoy sunset views, or set off for a day of boating, this lakeside gem delivers an unbeatable lifestyle.
25. Stunning Rooftop Deck

This rooftop deck is a showstopper! With panoramic lake views, it’s the perfect spot to soak in stunning sunsets, entertain guests, or simply relax with a morning coffee. The spacious layout offers endless possibilities for outdoor furniture, lounging, and enjoying the fresh lakeside air. Imagine summer evenings spent here, taking in the peaceful surroundings while watching boats drift by.
Listing agent – Tracy Harwell @ HomeSmart Connect LLC via realtor.com.