
A lively 3-bedroom, 2-bathroom single family residence with 2,152 sq ft of living space is set at 14021 SW 153rd Ave, Miami, FL 33196. Priced at $700,000, this Real Estate treasure sits atop a 9,146 sq ft lot, mixing a carefree tropical ambiance with crisp, fresh lines. Its mint green exterior, sharp white trim, and rich landscaping provide a warm curb appeal, all set beneath the Florida sun against a backdrop of swaying palm trees. A charming focal point is given by the arched entrance, and everyday practicality is provided by the expansive driveway and two car garage with style.
1. Fresh Tropical Exterior

A light green facade immediately adds a fresh, tropical vibe to this bright house. Nicely trimmed shrubs, vivid orange flowers, and palm trees make for a lively but friendly entrance. The high covered porch with its pristine white columns brings charm without seeming too stuffy. Large front windows welcome the sunshine in, and the carefully manicured lawn provides a fresh, expansive background under the warm blue sky.
2. Where Is Miami?

Situated on Florida’s southeastern peninsula, Miami provides a dynamic combination of culture, coastal scenery, and perpetual sunshine. Famous for its beautiful beaches, vibrant neighborhoods, and cosmopolitan vibe, it’s a city where rainbow hued art deco buildings mingle with a hot food and nightlife scene. The balmy tropical climate, location near the ocean, and eclectic population make Miami a place that’s energetic and relaxed all at the same time.
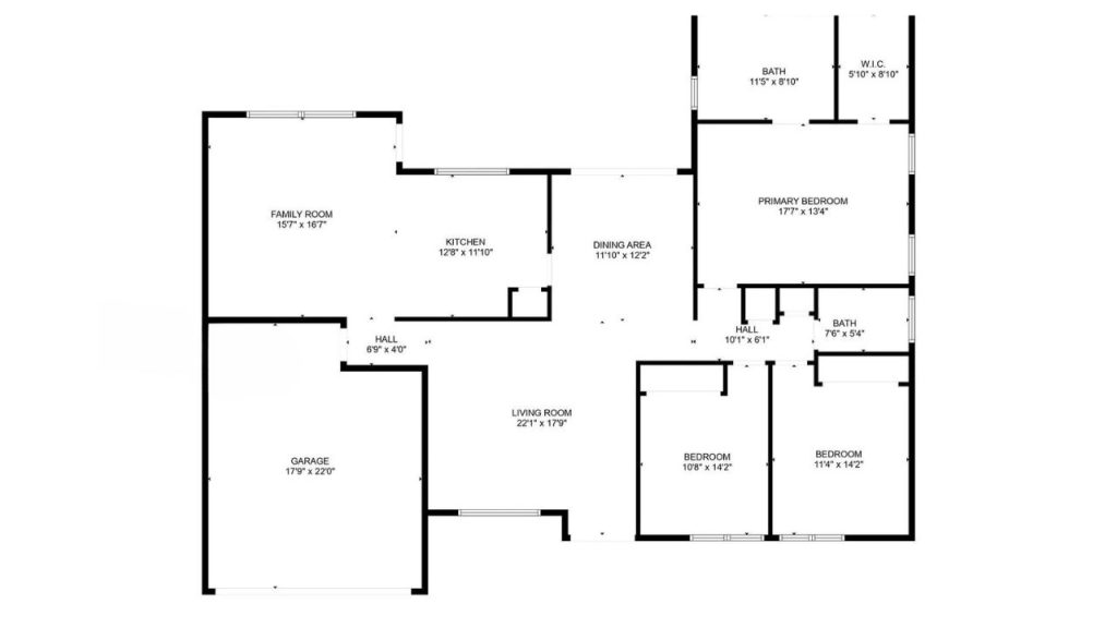
3. Floor Plan

With a relaxed design, this floor plan unites family areas with bedroom retreats in an intelligent manner. The center of the home features a family room (15’7″ x 16’7″) next to the kitchen (12’8″ x 11’10”) and a warm dining space (11’10” x 12’2″). The living room (22’1″ x 17’9″) provides an expansive retreat, ideal for comfortable evenings or social gatherings. Three bedrooms off a central hall feature a large master suite (17’7″ x 13’4″) with private bath and walk in closet, and two other bedrooms (10’8″ x 14’2″ and 11’4″ x 14’2″) that share a second bath close by. A two car garage (17’9″ x 22’0″) links directly to the living areas, marrying convenience with comfort.
4. Cozy Living Room Retreat

Step into this warm and welcoming living room where a cozy, L-shaped leather sectional sofa invites you to sink in and relax. Anchoring the area is a glossy entertainment center housing a big flat screen TV ideal for movie night, with an added smaller monitor providing a stylish touch. Two ceiling fans above with soft lighting ensure the breeze, while a potted orchid and a bright orchid add a burst of nature to the room. The white tile floor reflects the light, giving the room an airy feel, and a guitar in the corner suggests musical times spent here.
5. Elegant Sitting Area

A peaceful atmosphere pervades this cozy room, where cream colored, plush sofas with dainty patterns beckon relaxation. Sunlight streams through a big window, illuminating a verdant garden view that bridges the indoors with nature’s peace. A gleaming wooden coffee table is placed at the room’s center, covered with books and a candle, and an ornate gold mirror and framed photographs on a console add a dash of old world elegance. The plush carpeting beneath the feet is matched by the white tiled entrance, which leads to a cozy front door bordered by a cross.
6. Bright Kitchen Haven

Sunlight flows in through a large window, shining on the sparkling white cabinets and bold strike green marble counter that characterize this bright kitchen. A modern stainless steel oven and microwave sit ready for kitchen experiments, with a coffee machine and espresso machine suggestive of morning traditions. Bar stools fashioned from wood flank the breakfast bar, creating a warm place to sip and visit, with a glimpse of the outdoor patio just beyond. The white tile floor and understated decor design a clean, inviting space ideal for sitting down with close friends and family.
7. Welcoming Dining Space

A wooden dining table, warm and inviting, occupies the center of this light filled room, surrounded by six upholstered chairs that guarantee long, languid meals. A chandelier above sends a soft sparkle, and a colorful painting of fruit provides a splash of color against the white walls. Blue chairs on a patio await through large sliding glass doors, combining indoor comfort with outdoor charm. The shiny white tiles proceed to a corridor, where the hint of a bathroom contributes to the welcoming movement of the house.
8. Cheerful Bathroom Retreat

Bright light reflects off the white tile walls, where a fun blue and green shower curtain with seashell designs brings a beachy feel to this intimate room. A minimalist vanity with a big mirror doubles as a room mirror, with a sink and folded towels tucked away that speak of morning routines. In the background, a toilet and bathtub rest beneath a tiny window, allowing a soft natural light to creep in, and delicate decorative tiles with a diamond like accent add the clean and airy ambiance. Modern ceiling lights finish off this revitalizing refuge, ideal for relaxing.
9. Spacious Bathroom Escape

Natural light streams in through two small windows, lighting the green tiled walls and floor that create a fresh, earthy atmosphere in this bathroom. A long dual sink vanity runs along the length of the room, under a broad mirror and harsh overhead lights that provide a warm welcome. Glass enclosed showers with gold frames bring a touch of sophistication, and a couple of bottles and towels imply a room waiting for a soothing routine. The spotless white cabinets and open floor plan make it both functional and peaceful.
10. Tranquil Bedroom Sanctuary

Soft illumination pervades this serene bedroom, where a wooden bed covered in a warm blue blanket rests on a patterned rug, beckoning restful evenings. Two nightstands flank the bed, each with a lamp and personal touches, while a ceiling fan with lights adds an airy breeze. Coastal decor above the bed and on the dresser adds a peaceful atmosphere, completed by the sight of an ensuite bathroom through an open door. The white walls and soft carpet make a peaceful haven to relax.
11. Serene Bedroom Haven

A soft beige throw covers a tidy bed, forming a soothing focal point in this airy room, where a ceiling fan with warm glow provides a soothing ambience. Sheer curtained large windows peep into a hint of the outdoors, and a pot plant brings the outdoors in. Beach inspired artwork on the bed and on the bedside tables introduces a beachy feel, enhanced by wooden furniture and soft carpet underfoot. The room has the ambiance of a peaceful haven, ideal for relaxing mornings.
12. Restful Bedroom Oasis

A comfortable bed with plush gray bedding and a dark throw blankets the center stage, resting upon a rug in a patterned design that creates warmth within the room. A large window permits sunlight to seep in and provide views of greenery outside, while a potted greenery on the dresser adds natural elements indoors. Abstract blue paint above the bed provides a match for the soothing colors, while a ceiling fan with lights offers a soft breeze. Wood nightstands with lamps create a well rounded, welcoming room for peaceful nights.
13. Playful Backyard Nook

A lush green lawn stretches out, anchored by a quaint pink playhouse complete with Mickey Mouse ears, inducing smiles for young imaginations. Beside it, a stainless grill rests upon a paved patio, suggesting warm barbecues under the umbrella of surrounding trees. The large windowed, mint green house indicates a crisp, coastal feeling, while a wood fence creates seclusion on this intimate outdoor retreat. A pool net stands against the fence, indicating warm afternoons lounging near the water.
14. Sunny Patio Retreat

A wide patio opens with a heavy dining set, ideal for taking meals under the sky, as a shiny exercise bike suggests lively mornings. The mint green house with metal roofing and big windows displays a cool, coastal aesthetic, bordered by tall trees and an open blue sky. A soft stream from the overhead ceiling fan warms the room, and a rain chain supplies a playful feature at the periphery. Emerald green grass swells outward, beckoning the freedom of a barefooted stroll or hazy afternoon.
15. Lively Backyard Paradise

A glistening pool is at the center, flanked by a large expanse of lush green lawn studded with palm trees, ideal for sun kissed days and cooling dips. Mint green colored house has a metal roof and a covered patio with a dining set, ideal for alfresco dining, and a grill is at the ready nearby. A pink playhouse playhouse brings a whimsical element for children, and two blue chairs beside a boat trailer encourage relaxation in the midst of the tropical atmosphere. A wood fence provides privacy, turning this backyard into an actual family sanctuary.
Listing Agent – Monika Tefel @ Coldwell Banker Realty