
An open spaced Real Estate jewel in Fairfield, CA, this single family 3,366 sq ft residence is complete with five bedrooms and three and a half baths at the cost of $951,997. Found at 5956 Big Sky Dr, it combines streamlined design with fresh contemporary feel in its fresh outside look and charming porch. With expansive spaces for both purpose and coziness indoors, the perfect option exists here for families living in different generations or who frequently host visiting friends. The design accommodates an open concept atmosphere while providing ample private nooks for quiet time.
1. Modern Suburban Facade

Enter the elegance of this contemporary suburban residence, where clean lines and a subdued color scheme make for a warm first impression. The outside combines light gray stucco with a teal accent wall, accented by crisp white trim and stone pillars surrounding the entrance. A trimly manicured front lawn featuring young trees and low maintenance bushes provides an element of greenery, complemented by the double garage and spotless concrete driveway providing convenience for daily use. This face is a contemporary interpretation of suburban architecture, ideal for a family looking for style and simplicity.
2. Where Is Fairfield?

Located in the heart of Northern California, Fairfield provides an ideal combination of suburban peace and urban convenience, making it a great place for families and professionals. Situated between San Francisco and Sacramento, this city has a sunny Mediterranean climate, with rolling hills and surrounding vineyards contributing to its picturesque beauty. Residents have a thriving community with great schools, ethnic dining, and proximity to outdoor activities such as hiking in the adjacent Suisun Marsh. Fairfield embodies California living with a balance of nature and convenience.
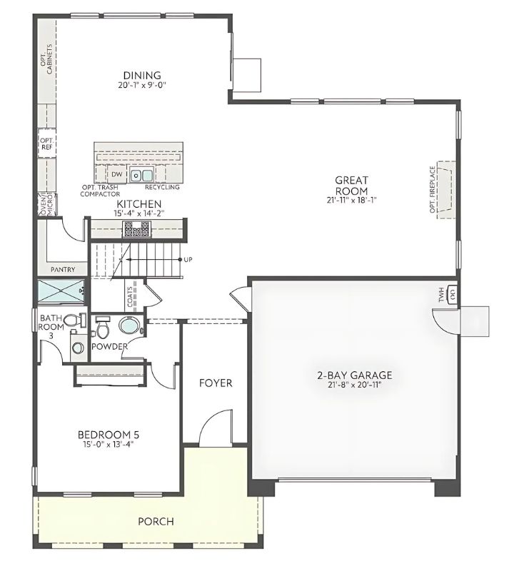
3. Main-Level Layout

Comfort and functionality define the layout of this primary level. A spacious kitchen serves as the hub, flowing into a sunny dining area and a large great room perfect for relaxed nights or lively gatherings. Hidden close to the front, a comfortably sized bedroom with an adjacent full bath and powder room provides convenience for visitors or extended family. The design also features a two-bay garage with convenient interior access, and a warm porch that adds charm and a casual welcome.
4. upper level layout

Upper level living is accomplished with ease and flexibility. A spacious master suite rests quietly at one end, with two walk in closets and a large bath with soaking tub and separate shower. Three other bedrooms, each with convenient access to a shared bathroom, provide ample space for family or guests. There’s a bright loft to expand the area further perfect for a reading corner or media lounge. Central laundry room simplifies everyday chores without going downstairs.
5. Modern Suburban Entry

Enter the whimsy of this contemporary suburban house, where subtle colors and linear architecture establish an inviting first impression. The façade is harmoniously balanced between light gray stucco, teal accent wall, crisp white trim, and stone pillars enclosing the front door. A well manicured front lawn with young trees and low maintenance shrubs provides a splash of green, while the double garage and spotless concrete driveway provide functionality for daily living. This facade is a modern interpretation of suburban style, ideal for a family looking for style and simplicity.
6. Peaceful Living Room

Imagine relaxing in this bright living room, where soft whites and natural light make for a serene haven. A comfortable sectional sofa, complete with pale blue pillows, welcomes cozy nights, while the slim fireplace and ceiling mounted TV lend a contemporary edge to the room. Light hardwood floors play off a textured gray rug, and understated trimmings such as potted plants and minimal vases add warmth without weight. Big windows with white shutters bring in the sunshine of California, and this room is a flawless combination of coziness and modernity.
7. Streamlined Kitchen Design

Imagine yourself preparing meals in this high end kitchen, where black cabinetry complements clean white quartz countertops for a dramatic contrast. The room boasts a large center island with a deep sink, ideal for meal preparation, and the stainless steel appliances, such as double ovens and a gas stove, accommodate any home cook’s requirements. A combination of gray subway tile and beige brick backsplash provides texture to the walls, and warm wood floors provide a homey balance to the streamlined look. Recessed lights maintain the space’s brightness, keeping it as functional as it is fashionable.
8. Coastal Cooking Space

Imagine sitting in this light filled kitchen, where white cabinets and a pale gray geometric backsplash create a beachy feel. The large island, topped with woven barstools, provides an informal area for morning coffee, while the stainless steel appliances, including a double oven, appeal to cooking aficionados. Potted flowers and country jars on the countertop bring in a sense of warmth, and the light hardwood floors maintain the area’s feeling of freshness and openness. Under cabinet lighting emphasizes the sophisticated quartz countertops, combining functionality with peaceful style.
9. Inviting Dining Corner

Mingle in this intimate dining space, where a wooden table dressed in a combination of cushioned chairs and a bench produces a sense of coziness and community. Big windows with sheer striped curtains let sunlight pour in and present a peaceful view of the backyard. Above, a woven pendant light provides a touch of texture, and the adjacent kitchen cabinets and subdued decor such as a centerpiece of foliage unite the space. The light wood floors and woven rug provide a natural ambiance, ideal for communal dining and conversation.
10. Serene Bath Escape

Relax in this peaceful bathroom, where a large soaking tub rests gracefully next to a big window, providing calm views of the open countryside. A glass enclosed shower with contemporary fixtures adds a note of luxury, and the neutral beige tile provides a clean, minimalist background. The soft cream walls add to the airy ambiance, and the large countertop offers plenty of room for everyday items. This area exudes serene sophistication, ideal for unwinding after a long day.
11. Minimal Bath Nook

Feel serene in this sleek bathroom, where a black vanity and white quartz countertop complement nicely the pale gray subway tile walls. A glass shower enclosure with streamlined fixtures is next to a contemporary toilet, while a wood shelf unit brings warmth and functional storage for towels. The vanity space, complete with a black faucet and understated trim such as a tiny plant and amber jars, is free of clutter. This style harmonizes contemporary functionality with a calming, understated look, perfect for an everyday renewal.
12. Cozy Sleep Sanctuary

Rest easy here in this calming bedroom, where soft whites and blues provide a relaxing refuge. The bed, under plush pillows, a striped throw, and a stuffed teddy, faces against a crisp white shiplap headboard, bringing in the coastal appeal. Sheer curtained windows with generous proportions allow loads of natural light, with a glimpse of suburban neighborhood beyond, and a woven pendant light adds the warmth above. White nightstands with little ornamentation, such as a potted plant and framed photographs, maintain the room light and uncluttered, ideal for restful nights.
13. Elegant Sleep Suite

Relax in this elegant bedroom, with its calming combination of a gray color scheme and natural light that creates a serene retreat. A bed adorned with fresh white bedding and patterned pillows lies underneath a collection of botanical prints for a discreet introduction of nature. A woven chandelier emits a warm ambiance, while tall windows with white shutters create framed vistas of expansive rolling hills. Coordinating nightstands with understated furnishings, such as lamps and mini plants, sit on either side of the bed, while a wicker footstool storage bench lends rough around the edges character to this elegant room.
14. Playful Bedroom Retreat

Find a bedroom that combines sleep with inspiration, with a minimalist dark headboard and a bed adorned in pale gray linens with textured pillows. Two contemporary blue lounge chairs form a snug reading area near the large windows, which fill the room with sunlight and provide suburban vistas. A corner drum set provides a playful, personal touch, while music inspired wall decor above the bed pulls the room together. The light gray carpet and simple accessories maintain the sense of openness, balancing relaxation with a young energy.
15. efficient laundry

Style and efficiency collide in this contemporary laundry room, where a dark cabinetry is offset by a crisp white countertop and subway tile backsplash. A streamlined washer and dryer are positioned under generous storage, while woven baskets on the counter have essentials stowed away neatly. The black and white patterned floor tiles bring a touch of whimsy, and a framed black and white photograph on the wall adds a dash of personality to the room. This beautifully designed space turns laundry day from a drudge into a slick ritual.
16. Outdoor Living Haven

Step into the warmth of this warm backyard patio, where a minimalist pergola with string lights provides a romantic atmosphere for night time gatherings. There is a wicker chair plastered wooden dining table next to a contemporary lounge space with a sectional and a suspended egg chair, ideal for relaxing. The area is bordered by a wood fence and low maintenance garden design, complemented by river rocks and potted plants for natural texture. This backyard retreat combines comfort and sophistication, perfect for savoring California’s pleasant evenings with friends and family.
Listing Agent – Tri Pointe Homes via realtor.com