
Set on a sprawling 1.26-acre lot in peaceful Linden, CA, this charming ranch-style real estate gem offers 3 bedrooms, 2 bathrooms, and 2,155 square feet of thoughtfully designed living space. Listed at $750,000, the home blends classic curb appeal with comfortable elegance—ideal for serene country living.
1. Charming Ranch Retreat with Lush Landscaping

This inviting single-story ranch home sits gracefully on over an acre of manicured grounds, framed by mature trees and vibrant flowerbeds. A classic brick facade is complemented by neutral tones and a low-pitched roof, offering a warm, grounded presence. The wide front lawn enhances the serene setting, while thoughtful landscaping adds bursts of color. A cozy front porch and paved drive complete the tranquil, country-inspired look.
2. Where is Linden?

Linden is a tranquil town in California’s San Joaquin County, surrounded by farmland and open skies. Known for its rural charm and small-town warmth, it offers a peaceful pace of life just a short drive from Stockton. With a close-knit community, scenic landscapes, and room to grow, Linden is ideal for those seeking space, comfort, and a connection to nature—all while staying within reach of Central Valley conveniences.
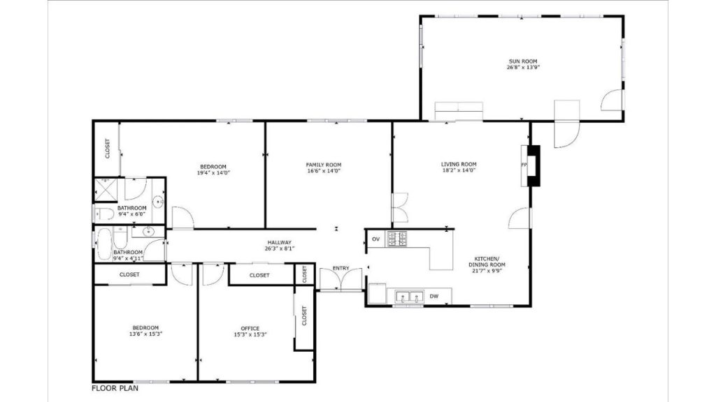
3. floor plan

This well-appointed single-story layout balances comfort and function with ease. Two spacious bedrooms, a versatile office, and two full bathrooms anchor the private wing, while the open-concept kitchen, living, and dining areas create an inviting central hub. A cozy family room connects seamlessly to a sun-filled living area and generous sunroom—ideal for relaxing or entertaining year-round.
4. Cozy Living Room with Serene Garden Views

Bathed in natural light, this welcoming living room offers a peaceful retreat with garden views framed by a wide picture window. Soft neutral tones create a calming backdrop, while classic furnishings and wood accents evoke a timeless charm. A plaid sofa, warm table lamps, and curated decor lend a homey feel, making this space ideal for quiet afternoons or casual gatherings.
5. Warm Kitchen with Natural Wood Accents

This inviting galley kitchen blends functionality with rustic charm, featuring rich, honey-toned wood cabinetry and matching floors that exude a cozy, grounded feel. Stainless steel appliances offer a modern touch, while expansive counters provide ample workspace. A dining nook framed by large windows creates a seamless connection to nature, enhanced by soft, natural light and simple decorative details that make the space feel like home.
6. Cozy Dining Nook with Classic Comfort

Anchored by a traditional wooden table, this intimate dining space radiates warmth and hospitality. Plush blue seat cushions add a pop of color, while large windows invite in views of the tree-lined street. A ceiling fan gently stirs the air above, enhancing the room’s relaxed vibe. Blending seamlessly into the open kitchen, this corner invites lingering over meals in a setting that feels both timeless and homey.
7. Tranquil Study with Nature Views

Bathed in soft natural light, this quiet study offers a calming place to focus or unwind. A built-in corner desk and floating shelves create a compact workspace, while the wide window frames lush greenery outside. Neutral tones and cozy carpeting contribute to a peaceful atmosphere, accented by cheerful wall art and a classic ceiling fan. It’s a versatile retreat that invites productivity and peace.
8. Cozy Bathroom with Classic Charm

This inviting bathroom offers a warm, timeless aesthetic with soft beige tones and natural wood cabinetry. A wide mirror reflects light throughout the space, enhancing its airy feel. The tub-shower combo is tucked neatly behind a pleated curtain, complemented by built-in corner shelves and brushed nickel fixtures. A simple floral artwork and delicate countertop arrangement add a graceful, homely touch.
9. Tranquil Bedroom with Vintage Elegance

This serene bedroom balances comfort and classic charm, featuring soft neutral walls and cozy carpeting underfoot. A checkered bedspread adds a subtle pattern, while matching lamps cast a warm, inviting glow. Traditional wood furnishings, including a stately dresser with mirror and graceful side tables, anchor the room. A tufted armchair in the corner completes the restful, lived-in ambiance.
10. Inviting Living Room with Rustic Warmth

This cozy living room blends comfort and charm, anchored by a golden brick fireplace with a decorative wrought-iron screen. Rich wood tones in the furniture and flooring complement the plush leather loveseat, accented with deep red throw pillows. Overhead fans and natural light from the dining area add to the relaxed ambiance, while a classic china cabinet adds a touch of vintage elegance.
11. Sunroom with Scenic Views and Casual Charm

This inviting sunroom blends comfort and playfulness with its wall-to-wall windows offering tranquil views of lush greenery. A light tile floor frames a soft area rug, creating a cozy zone for relaxation or gatherings. A foosball table adds a fun, casual touch, while potted plants and pet-themed wall art lend warmth and personality. The ceiling fan and soft lighting complete this breezy, multipurpose retreat.
12. Backyard Retreat with Rustic Pergola

This charming outdoor space invites relaxation beneath a wood-beamed pergola that anchors the patio with rustic elegance. Surrounded by lush greenery and vibrant shrubs, the seating area is perfect for alfresco dining or quiet mornings. A stone path leads past a mature shade tree, while a neatly fenced utility shed adds functionality. With its natural textures and open-air feel, this backyard blends comfort with countryside appeal.
Listing Agent – Rance Boysen @ Peter Boysen Realty via realtor.com