
Nestled in the hills of Montecito, CA, this beautifully crafted Mediterranean-style estate features 4 bedrooms, 3 bathrooms, and approximately 2,886 square feet of refined living space. Set on a lush 1.06-acre lot, the home offers timeless elegance, serene outdoor spaces, and stunning views of the surrounding landscape.
1. Mediterranean charm Villa

This stunning two-story Mediterranean villa sits gracefully on a lush hillside, featuring a smooth stucco exterior and classic clay tile roof. Arched windows and wrought-iron accents lend authentic charm, while multiple patios invite outdoor living. Framed by manicured hedges and swaying palms, the residence offers panoramic views of rolling hills and serene nature, blending luxury with peaceful seclusion.
2. Where is Montecito?

Montecito is a picturesque coastal community in Santa Barbara County, California, nestled between the Santa Ynez Mountains and the Pacific Ocean. Known for its serene ambiance and luxurious estates, Montecito offers lush landscapes, scenic hiking trails, and pristine beaches. With upscale dining, boutique shopping, and close proximity to downtown Santa Barbara, it blends natural beauty with refined living and a relaxed, elegant charm.
3. Hillside Estate with Breathtaking Views

Perched atop a winding road, this stunning estate seamlessly blends luxury with nature. Its terracotta roof and stucco façade reflect classic Mediterranean charm, while manicured hedges and lush landscaping frame the home beautifully. Expansive patios provide the perfect vantage point for panoramic hillside views, offering a serene retreat. A detached structure adds versatility, while curved driveways enhance the estate’s grand approach. This secluded haven captures both elegance and tranquility in perfect harmony.
4. Ground floor layout

The ground floor presents a thoughtful, open layout designed for both comfort and elegance. A spacious living room welcomes you with ample natural light, while the connected dining and family rooms create seamless areas for gathering and entertaining. The well-appointed kitchen sits conveniently nearby, with a bedroom, bathroom, and laundry room offering practical touches. Wide hallways and generous closets enhance convenience throughout.
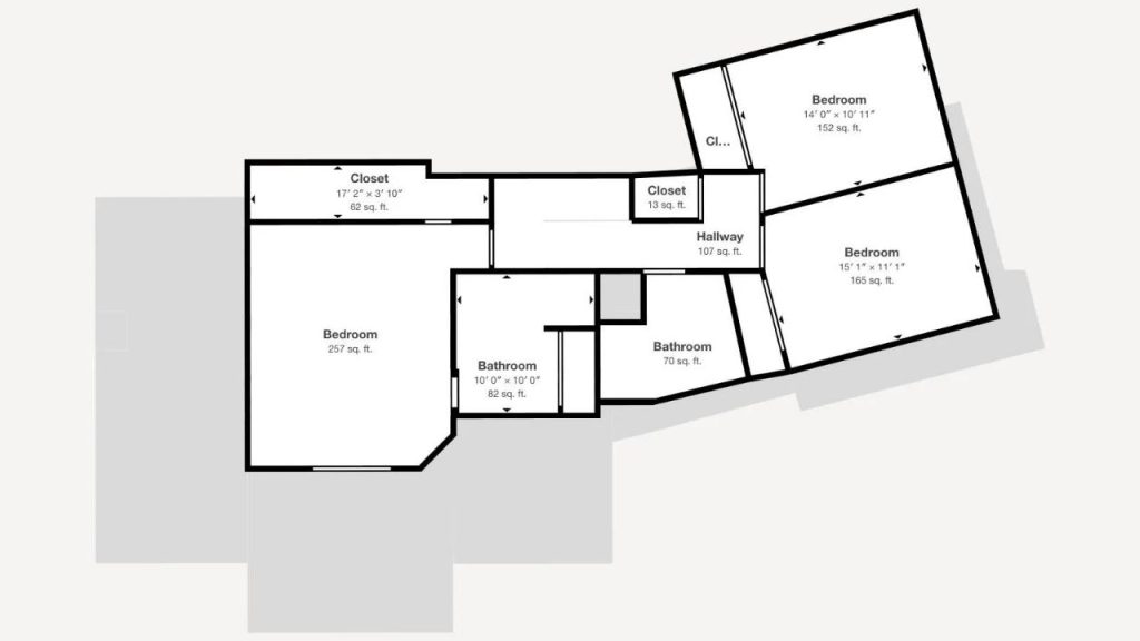
5. Second floor layout

The second floor offers a well-planned layout with three spacious bedrooms and two full bathrooms, creating a private retreat for family and guests. The primary bedroom features a large closet and plenty of room for relaxation. A wide hallway connects each space seamlessly, while multiple closets ensure generous storage. Bright, airy, and functional, this level balances comfort and sophistication for everyday living.
6. Elegant Entryway

This welcoming foyer is highlighted by a rich wooden door with intricate glass panels and a graceful arched transom above. Sunlight filters in, illuminating the bright tile floor accented with delicate mosaic details. An arched doorway leads to a cozy living area featuring a fireplace and warm wood flooring. Lush potted plants and soft blue rugs complete the scene, adding comfort and charm to this elegant entrance.
7. Living Room with Ocean Views

Bathed in natural light, this inviting living room features large glass doors that open to a balcony with stunning ocean vistas. Polished wood floors add warmth, while a vibrant area rug brings color and elegance. A cozy fireplace with intricate tile detail anchors the space, complemented by lush greenery and comfortable seating. The archway seamlessly connects to the entryway, creating an open, welcoming flow.
8. coastal Inspired Dining Room

This graceful dining room invites gatherings with a polished wood table and plush seating for eight. A crystal chandelier sparkles above, adding timeless elegance. Natural light pours through French doors and tall windows, framing picturesque ocean views. A classic china cabinet and cozy fireplace with blue tile accents complete the space, while the soft blue rug and bar seating create a perfect balance of formality and comfort.
9. Bright Home Office

This charming home office offers serene inspiration with large windows and French doors that open to a lush garden and reveal breathtaking ocean vistas. A simple wooden desk with a glass top and vintage lamp sits ready for work or study. The space is softened by warm wood flooring and a cozy, palm-patterned sofa, making it both functional and inviting for productivity or relaxation.
10. Cozy Sunroom

This inviting sunroom is filled with natural light from multiple windows showcasing lush greenery and ocean views. A sleek, tiled fireplace with intricate blue-and-white accents adds warmth and charm to the space. Wooden floors enhance the room’s natural feel, while simple furniture and cheerful touches like a vase of sunflowers create a relaxing nook perfect for reading, play, or quiet reflection.
11. Bright Coastal Kitchen

Bright and spacious kitchen featuring light wood cabinetry, sleek granite countertops, and stainless steel appliances. Large windows frame stunning ocean and hillside views, filling the space with natural light. A double sink and ample counter space make meal prep easy, while charming valances and tasteful decor add warmth. The open layout, combined with generous storage, creates a functional and inviting cooking environment.
12. Serene Primary Suite

This inviting primary suite blends comfort and elegance, featuring a cozy corner fireplace framed by soft green stucco and hand-painted tiles. French doors and large windows bathe the room in natural light while offering stunning ocean vistas. A rich wood dresser with an ornate mirror adds timeless charm, and a plush seating area invites relaxation. The neutral palette and classic furnishings create a serene retreat.
13. Private Terrace with Panoramic Views

This peaceful terrace offers a front-row seat to breathtaking ocean and hillside vistas. A pair of cushioned chairs and a glass-topped table create the perfect setting for morning coffee or evening sunsets. The soft stucco walls are accented with delicate tile insets, adding subtle charm. Surrounded by lush greenery and palm trees, this inviting outdoor retreat feels both intimate and expansive.
14. Tranquil Garden-View Retreat

This inviting bedroom radiates comfort with its warm wood furnishings and soft natural light. A carved bed frame and matching nightstands create timeless elegance, complemented by cozy bedding in muted tones. Large windows framed by flowing white drapes offer peaceful views of lush greenery. Thoughtful touches, from soft lighting to tasteful artwork, complete this restful and refined retreat.
15. Functional Bathroom

This bright and inviting bathroom offers a tranquil escape with its large window framing scenic views. Soft natural light dances across crisp white tiles and warm wood cabinetry, creating a cozy yet airy atmosphere. A spacious vanity with dual mirrors reflects elegance, while brass accents and delicate stained-glass window details add charm. The walk-in shower and plush seating area complete this peaceful, thoughtfully designed space.
16. Home Office with Coastal Accents

This inviting home office balances productivity and relaxation with its warm, sunlit ambiance. A large window framed by soft drapery fills the space with natural light, offering a serene view of the landscape beyond. The wooden desk and built-in shelving create a functional workspace, while a wicker loveseat and matching coffee table add a breezy, coastal charm. Thoughtfully placed greenery and ocean-inspired artwork enhance the tranquil atmosphere, making this a perfect retreat for both work and leisure.
17. nature Inspired Twin Bedroom

This charming twin bedroom blends warmth and tranquility, featuring rich wooden furniture and soft, natural hues. The tropical-patterned bedding and matching valance bring a fresh, organic touch, complemented by golden drapes that filter in gentle daylight. Classic nightstands with elegant table lamps provide symmetry and function, while the wide window frames a peaceful view of lush greenery. Thoughtful details, from framed artwork to subtle decor, create a welcoming retreat perfect for rest and relaxation.
Listing agent – Curtis Swan Ii @ Village Properties via realtor.com.