
Nestled in the heart of Princeton, NJ, this exquisite 6-bedroom estate offers luxury and tranquility on a sprawling 2.4-acre lot. A broad veranda overlooks a leafy canopy, while a covered patio and sport court enhance outdoor enjoyment. Inside, bright and airy spaces span three levels, warmed by radiant heat. Unique details like window seats, art niches, and tray ceilings add charm, complemented by a floating staircase. The eat-in kitchen boasts ample pantry space, and the lower level is designed for unforgettable gatherings. Offered at $2,875,000.
1. Elegant Princeton Estate with Verdant Grounds

This stunning Princeton estate sits gracefully on a 2.4-acre lot, surrounded by lush greenery and mature trees. A broad veranda extends across the front, offering a serene spot to enjoy the picturesque setting. The home’s elegant facade is complemented by a covered patio perfect for outdoor relaxation and entertaining. A private sport court adds a recreational touch, while manicured landscaping enhances the property’s natural beauty. With its stately presence and thoughtfully designed outdoor spaces, this home is a true retreat in a sought-after location.
2. Where Is Princeton, NJ?

Princeton, NJ, is a historic town in central New Jersey, known for its prestigious Princeton University and rich colonial heritage. Located between New York City and Philadelphia, it offers a blend of suburban charm and cultural sophistication. The area features tree-lined streets, historic architecture, and a vibrant downtown with shops, restaurants, and galleries. Princeton also boasts top-rated schools, lush parks, and the scenic Delaware and Raritan Canal, making it a desirable place to live, work, and explore.
3. first floor layout

The first floor of this elegant home offers an open and functional layout, perfect for modern living. A grand foyer with a curved staircase welcomes guests, leading into a spacious great room with access to a scenic balcony. The gourmet kitchen, complete with a breakfast area and pantry, flows seamlessly into the dining room. A private office provides a quiet workspace, while the main bedroom suite boasts a luxurious bath and walk-in closets. Additional highlights include a powder room, laundry room, side entry, and a three-car garage for convenience.
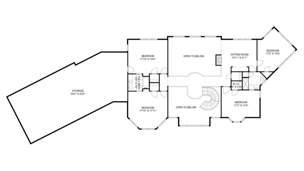
4. Second Floor layout

The second floor of this home features four spacious bedrooms, a full bathroom, and a walk-in closet. A sitting room provides a comfortable space for relaxation, while an expansive storage area offers ample room for organization. The layout includes an elegant curved staircase leading to an open hallway overlooking the level below, creating an airy and connected feel. With well-placed entrances and a thoughtful flow between spaces, this floor is designed for both privacy and communal living.
5. lower level layout

The lower level of this home is designed for entertainment and functionality, featuring a large family room that opens to a spacious patio. A wet bar and two kitchens provide ample space for hosting, while utility and storage rooms add convenience. A private bedroom with an en-suite bath offers comfortable accommodations. Additionally, an exercise room provides space for fitness activities. With a well-planned layout, this level seamlessly combines relaxation, practicality, and entertainment.
6. Foyer with Grand Staircase

The foyer of this home exudes elegance with its soaring ceilings, grand curved staircase, and polished marble floors. Natural light floods the space through tall arched windows, enhancing the warm neutral tones of the walls. A stunning double-door entry with intricate glasswork creates an inviting first impression. Decorative columns add a classical touch, while subtle recessed lighting provides a soft ambiance. This luxurious entryway seamlessly blends sophistication and warmth, setting the tone for the rest of the home.
7. living room with high ceiling

The living room is an elegant, spacious area with a high ceiling and an open floor plan, blending classic and modern design elements. A curved leather sectional sofa sits atop a patterned area rug, facing a sleek glass coffee table. A minimalist fireplace with an arched design and a mounted flat-screen TV serve as focal points. White columns and a grand staircase with a curved railing add sophistication. Large windows and glass doors bring in ample natural light, while neutral tones, polished floors, and contemporary décor create a luxurious yet inviting ambiance.
8. Elegant Marble Dining Room

The dining room exudes elegance with its soft, neutral color palette and luxurious finishes. A glossy, oval-shaped marble table sits at the center, surrounded by plush, blush-colored chairs. A grand crystal chandelier hangs above, adding a touch of opulence. Large windows framed with white trim let in natural light and offer serene views of the landscaped yard. The polished marble flooring, accented with a dark border, enhances the sophisticated ambiance. Decorative plants and modern artwork complete the refined yet inviting space.
9. Modern elegant Kitchen

The kitchen is a blend of modern elegance and functionality, featuring sleek wooden cabinetry with glass accents and polished black granite countertops. A large island with a curved design offers ample prep space and includes a breakfast bar with plush white barstools. Stainless steel appliances, including a double-door refrigerator and a stylish range hood, enhance the contemporary appeal. Large windows provide natural light, while arched openings seamlessly connect the space to the adjoining living areas, creating an open and inviting atmosphere.
10. Bedroom with Warm Wood Accents

This bedroom exudes warmth and sophistication with its rich wooden furniture, sage green walls, and elegant crown molding. A plush, quilted bedspread complements the hardwood flooring, creating a cozy yet refined atmosphere. The room features ample storage with a large wooden wardrobe and matching dresser, enhanced by a sleek, curved mirror. Soft recessed lighting and a modern ceiling fan add comfort, while multiple doors lead to an en-suite bathroom and walk-in closet, enhancing both functionality and luxury.
11. serene Bedroom

This serene bedroom features soft gray walls and ample natural light streaming through large, multi-pane windows. A vaulted ceiling with recessed lighting and a modern white ceiling fan adds an airy feel. The queen-sized bed, adorned with a floral-patterned comforter, is flanked by sleek, minimalist nightstands. Hardwood flooring enhances the warmth of the space, while subtle decorative accents, such as framed artwork and a contemporary abstract painting, create a tranquil and stylish retreat.
12. Marble Bathroom

This luxurious bathroom exudes elegance with its rich marble countertops and tiled walls, blending warm brown tones with crisp white cabinetry. A spacious vanity with dual sinks provides ample space, while large mirrors reflect natural light streaming through multiple windows. The glass-enclosed shower offers a sleek, modern touch, complemented by a deep soaking tub nestled against the window, creating a spa-like retreat. Thoughtful details, like plush towels and decorative candles, enhance the inviting ambiance of this serene space.
13. Entertainment-Focused Basement

This basement is a spacious and inviting entertainment hub, designed for relaxation and social gatherings. The open floor plan features stylish tile flooring with decorative inlays, enhancing the room’s modern aesthetic. A pool table takes center stage, accompanied by a cozy lounge area with plush seating. Multiple seating arrangements, potted plants, and ample natural light from large glass doors create a bright and airy atmosphere. This versatile space is perfect for hosting game nights or casual get-togethers.
14. Granite Bar with Sleek Design

The home’s stylish bar area is a modern entertainment hub, featuring a sleek black granite countertop paired with warm wood accents. High-backed black barstools with chrome bases provide comfortable seating, while mirrored walls add depth and sophistication. Glass shelves display an elegant collection of stemware, illuminated by soft lighting. The bar is well-equipped with a sink and ample storage, making it perfect for hosting guests. With its contemporary design and inviting atmosphere, this space is ideal for social gatherings and relaxation.
15. Backyard with Scenic Views

The back of this stunning estate is a private retreat, seamlessly blending luxury and nature. A spacious patio extends from the home, featuring a covered balcony with elegant columns, perfect for outdoor dining or relaxation. A grand staircase leads down to a lower-level terrace, offering direct access to a private basketball court. Surrounded by lush trees, this serene setting provides breathtaking seasonal views. With its elevated position and elegant design, the home ensures both privacy and sophistication in a picturesque natural setting.
Listing agent – Maura Mills @ Callaway Henderson Sotheby’s International Realty via realtor.com